Property
Account |
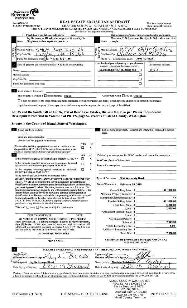
| Property ID: | 242687 | Abbreviated Legal Description: | DEER LK EST 2 LOT 35 & S/2 OF LOT 36 |
| Geographic ID: | S6460-02-00035-0 | Agent Code: | |
| Type: | Real | | |
| Tax Area: | 710 - APPRAISER-S Whid Schl Dist, outside Langley, improved & 1 acre or less | Land Use Code | 11 |
| Open Space: | N | DFL | N |
| Historic Property: | N | Remodel Property: | N |
| Multi-Family Redevelopment: | N | | |
| Township: | | Section: | |
| Range: | |
Location |
| Address: | 6391 CEDAR COVE LN CLINTON, WA 98236 | Mapsco: | |
| Neighborhood: | Cycle 4 | Map ID: | 804 |
| Neighborhood CD: | 4 |
Owner |
| Name: | SCHWALL, MATTHEW T | Owner ID: | 288886 |
| Mailing Address: | KAETLYN L SCHWALL 3119 BLUE SKY LP JEFFERSONVILLE, IN 47113-8970 | % Ownership: | 100.0000000000% |
| | | Exemptions: | |
Taxes and Assessment Details
Values
| (+) Improvement Homesite Value: | + | $0 | |
| (+) Improvement Non-Homesite Value: | + | $323,024 | |
| (+) Land Homesite Value: | + | $0 | |
| (+) Land Non-Homesite Value: | + | $250,000 | |
| (+) Curr Use (HS): | + | $0 | $0 |
| (+) Curr Use (NHS): | + | $0 | $0 |
| | | -------------------------- | |
| (=) Market Value: | = | $573,024 | |
| (–) Productivity Loss: | – | $0 | |
| | | -------------------------- | |
| (=) Subtotal: | = | $573,024 | |
| (+) Senior Appraised Value: | + | $0 | |
| (+) Non-Senior Appraised Value: | + | $573,024 | |
| | | -------------------------- | |
| (=) Total Appraised Value: | = | $573,024 | |
| (–) Senior Exemption Loss: | – | $0 | |
| (–) Exemption Loss: | – | $0 | |
| | | -------------------------- | |
| (=) Taxable Value: | = | $573,024 | |
Taxing Jurisdiction
| Owner: | SCHWALL, MATTHEW T | | |
| % Ownership: | 100.0000000000% | | |
| Total Value: | $573,024 | | |
| Tax Area: | 710 - APPRAISER-S Whid Schl Dist, outside Langley, improved & 1 acre or less |
| CF | Conservation Futures | 0.0313996660 | $573,024 | $573,024 | $17.99 | | |
| FIRE3 | Fire & Rescue Dist #3 S Whidbey GEN | 1.2130821753 | $573,024 | $573,024 | $695.13 | | |
| HOBOND | Hospital BOND | 0.1893405597 | $573,024 | $573,024 | $108.50 | | |
| HOGEN | Hospital GEN | 0.3848777722 | $573,024 | $573,024 | $220.54 | | |
| CE | County Current Expense | 0.3674210519 | $573,024 | $573,024 | $210.54 | | |
| CR | County Roads | 0.4614296361 | $573,024 | $573,024 | $264.41 | | |
| ISLANDEMS | Hospital GEN (EMS) | 0.4952018576 | $573,024 | $573,024 | $283.76 | | |
| LIB | Library Sno-Isle GEN | 0.3039084203 | $573,024 | $573,024 | $174.15 | | |
| PORTWHID | Port of S Whidbey GEN | 0.1086004714 | $573,024 | $573,024 | $62.23 | | |
| SCH206BOND | School 206 BOND | 0.5960237832 | $573,024 | $573,024 | $341.54 | | |
| SCH206CAP | School 206 CP | 0.3066144020 | $573,024 | $573,024 | $175.70 | | |
| SCH206MO | School 206 Enrichment | 0.4808755445 | $573,024 | $573,024 | $275.55 | | |
| ST | State School | 1.4761226122 | $573,024 | $573,024 | $845.85 | | |
| ST2 | State School Part 2 | 0.7953803475 | $573,024 | $573,024 | $455.77 | | |
| SWHIDPRBD | P & R S Whidbey BOND | 0.0144185398 | $573,024 | $573,024 | $8.26 | | |
| SWHIDPRBD3 | P & R S Whidbey BOND3 | 0.1483535547 | $573,024 | $573,024 | $85.01 | | |
| SWHIDPRMT | P & R S Whidbey GEN | 0.4600000000 | $573,024 | $573,024 | $263.59 | | |
| | Total Tax Rate: | 7.8330503944 | | | | | |
| | | | | Taxes w/Current Exemptions: | $4,488.52 | | |
| | | | | Taxes w/o Exemptions: | $4,488.52 | | |
Improvement / Building
| Improvement #1: | RESIDENTIAL | State Code: | Y | 2116.0 sqft | Value: | $323,024 |
| Bathrooms: | 3 | Bedrooms: | 3 | | Ceiling: | DRYWALL PAINTED | Cooling: | HEAT PUMP/CONV/V | | Exterior Wall/Cover: | WOOD SIDING | Floor Covering: | CARPET/VINYL 60-40 | | Floor Structure: | WOOD W/SUBFLOOR | Foundation: | CONCRETE | | Interior Finish: | DRYWALL PAINT | Plumbing Fixture Cnt: | 12 | | Roof Slope: | 6" IN 12" | Roof Structure/Cover: | CJ ASPHALT |
|
| | Type | Description | Class CD | Sub Class CD | Year Built | Area |
| | BAS | BASE/MAIN FLOOR | 3 | 0 | 1998 | 1230.0 |
| | AGR | ATTACHED GARAGE | 3 | 0 | 1998 | 548.0 |
| | UPS | UPPER STORY | 3 | 0 | 1998 | 886.0 |
| | OWP | OPEN WOOD PORCH W/STEPS | 3 | 0 | 1998 | 115.0 |
Sketch
Property Image
Land
| 1 | 15 | SQ (12001-21780) | 0.0000 | 0.00 | 0.00 | 0.00 | 1.00 | $250,000 | $0 |
Roll Value History
| 2026 | N/A | N/A | N/A | N/A | N/A |
| 2025 | $323,024 | $250,000 | $0 | $573,024 | $573,024 |
| 2024 | $326,952 | $230,000 | $0 | $556,952 | $556,952 |
| 2023 | $330,879 | $230,000 | $0 | $560,879 | $560,879 |
| 2022 | $303,183 | $210,000 | $0 | $513,183 | $513,183 |
| 2021 | $263,455 | $150,000 | $0 | $413,455 | $413,455 |
| 2020 | $256,707 | $130,000 | $0 | $386,707 | $386,707 |
| 2019 | $195,650 | $200,000 | $0 | $395,650 | $395,650 |
| 2018 | $187,212 | $130,000 | $0 | $317,212 | $317,212 |
| 2017 | $188,361 | $110,000 | $0 | $298,361 | $298,361 |
| 2016 | $190,659 | $65,000 | $0 | $255,659 | $255,659 |
| 2015 | $192,955 | $55,000 | $0 | $247,955 | $247,955 |
| 2014 | $196,425 | $65,000 | $0 | $261,425 | $261,425 |
| 2013 | $198,759 | $65,000 | $0 | $263,759 | $263,759 |
| 2012 | $201,092 | $81,000 | $0 | $282,092 | $282,092 |
| 2011 | $203,426 | $90,000 | $0 | $293,426 | $293,426 |
| 2010 | $212,719 | $90,000 | $0 | $302,719 | $302,719 |
| 2009 | $222,088 | $100,000 | $0 | $322,088 | $322,088 |
| 2008 | $220,705 | $100,000 | $0 | $320,705 | $320,705 |
| 2007 | $223,132 | $100,000 | $0 | $323,132 | $323,132 |
Deed and Sales History
| 1 | 02/19/2019 | WD | Warranty Deed | BLOOD, NYDIA AEOWYN | SCHWALL, MATTHEW T | | | $411,000.00 | 37672 | 4459645 |
| 2 | 10/24/2018 | QCD | Quit Claim Deed | STEPHENS III, KENNETH L | BLOOD, NYDIA AEOWYN | | | $0.00 | 36434 | 4454049 |
| 3 | 09/26/2018 | DECREE | Divorce Decree/Legal Separation | STEPHENS III, KENNETH L | BLOOD, NYDIA AEOWYN | | | | 87886 | |
| 4 | 05/02/2005 | WD | Warranty Deed | CURRIER, CHARLES J | STEPHENS III, KENNETH L | | | $274,500.00 | 51959 | 4133285 |
| 5 | 03/25/2002 | WD | Warranty Deed | MAGNUSON, RONALD R | CURRIER, CHARLES J | | | $230,000.00 | 21101 | 4015112 |
| 6 | 06/25/1998 | WD | Warranty Deed | SIMMONS, MELVIN T | MAGNUSON, RONALD R | | | $216,420.00 | 83501 | 98018181 |
| 7 | 05/01/1994 | OTHER | Other - Misc. Documents | SIMMONS, MELVIN T | SIMMONS, MELVIN T | | | $0.00 | 65888 | 94011689 |
| 8 | 05/01/1994 | QCD | Quit Claim Deed | SIMMONS, MELVIN T | SIMMONS, MELVIN T | | | $0.00 | 42000 | 94011690 |
| 9 | 10/01/1979 | CD | DNU - Correction Deed | FREDERICK, JOE R | SIMMONS, MELVIN T | | | $9,500.00 | 94878 | 35986 |
| 10 | 01/01/1900 | OTHER | Other - Misc. Documents | Unknown | MAGNUSON, RONALD R | | | $0.00 | 83501 | 98018181 |
| 11 | 01/01/1900 | OTHER | Other - Misc. Documents | MAGNUSON, RONALD R | FREDERICK, JOE R | | | $0.00 | 0 | 0 |
Payout Agreement
| No payout information available.. |