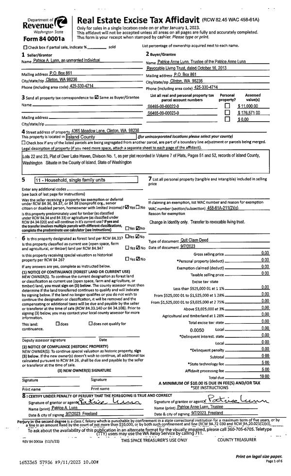
Property
Account |
| Property ID: | 242945 | Abbreviated Legal Description: | DEER LK HAV 1 LOT 23 |
| Geographic ID: | S6465-00-00023-0 | Agent Code: | |
| Type: | Real | | |
| Tax Area: | 710 - APPRAISER-S Whid Schl Dist, outside Langley, improved & 1 acre or less | Land Use Code | 11 |
| Open Space: | N | DFL | N |
| Historic Property: | N | Remodel Property: | N |
| Multi-Family Redevelopment: | N | | |
| Township: | | Section: | |
| Range: | |
Location |
| Address: | 4365 MEADOW LN CLINTON, WA 98236 | Mapsco: | |
| Neighborhood: | Cycle 4 | Map ID: | 819 |
| Neighborhood CD: | 4 |
Owner |
| Name: | LUNN TTEE, PATRICE ANNE | Owner ID: | 310030 |
| Mailing Address: | PO BOX 861 CLINTON, WA 98236 | % Ownership: | 100.0000000000% |
| | | Exemptions: | SNR/DSBL |
Taxes and Assessment Details
Values
| (+) Improvement Homesite Value: | + | $255,932 | |
| (+) Improvement Non-Homesite Value: | + | $0 | |
| (+) Land Homesite Value: | + | $240,000 | |
| (+) Land Non-Homesite Value: | + | $0 | |
| (+) Curr Use (HS): | + | $0 | $0 |
| (+) Curr Use (NHS): | + | $0 | $0 |
| | | -------------------------- | |
| (=) Market Value: | = | $495,932 | |
| (–) Productivity Loss: | – | $0 | |
| | | -------------------------- | |
| (=) Subtotal: | = | $495,932 | |
| (+) Senior Appraised Value: | + | $246,571 | |
| (+) Non-Senior Appraised Value: | + | $0 | |
| | | -------------------------- | |
| (=) Total Appraised Value: | = | $246,571 | |
| (–) Senior Exemption Loss: | – | $147,943 | |
| (–) Exemption Loss: | – | $0 | |
| | | -------------------------- | |
| (=) Taxable Value: | = | $98,628 | |
Taxing Jurisdiction
| Owner: | LUNN TTEE, PATRICE ANNE | | |
| % Ownership: | 100.0000000000% | | |
| Total Value: | $495,932 | | |
| Tax Area: | 710 - APPRAISER-S Whid Schl Dist, outside Langley, improved & 1 acre or less |
| CF | Conservation Futures | 0.0313996660 | $495,932 | $98,628 | $3.10 | | |
| FIRE3 | Fire & Rescue Dist #3 S Whidbey GEN | 1.2130821753 | $495,932 | $98,628 | $119.64 | | |
| HOBOND | Hospital BOND | 0.0000000000 | $495,932 | $0 | $0.00 | | |
| HOGEN | Hospital GEN | 0.3848777722 | $495,932 | $98,628 | $37.96 | | |
| CE | County Current Expense | 0.3674210519 | $495,932 | $98,628 | $36.24 | | |
| CR | County Roads | 0.4614296361 | $495,932 | $98,628 | $45.51 | | |
| ISLANDEMS | Hospital GEN (EMS) | 0.4952018576 | $495,932 | $98,628 | $48.84 | | |
| LIB | Library Sno-Isle GEN | 0.3039084203 | $495,932 | $98,628 | $29.97 | | |
| PORTWHID | Port of S Whidbey GEN | 0.1086004714 | $495,932 | $98,628 | $10.71 | | |
| SCH206BOND | School 206 BOND | 0.0000000000 | $495,932 | $0 | $0.00 | | |
| SCH206CAP | School 206 CP | 0.0000000000 | $495,932 | $0 | $0.00 | | |
| SCH206MO | School 206 Enrichment | 0.0000000000 | $495,932 | $0 | $0.00 | | |
| ST | State School | 1.4761226122 | $495,932 | $98,628 | $145.59 | | |
| ST2 | State School Part 2 | 0.0000000000 | $495,932 | $0 | $0.00 | | |
| SWHIDPRBD | P & R S Whidbey BOND | 0.0000000000 | $495,932 | $0 | $0.00 | | |
| SWHIDPRBD3 | P & R S Whidbey BOND3 | 0.0000000000 | $495,932 | $0 | $0.00 | | |
| SWHIDPRMT | P & R S Whidbey GEN | 0.4600000000 | $495,932 | $98,628 | $45.37 | | |
| | Total Tax Rate: | 5.3020436630 | | | | | |
| | | | | Taxes w/Current Exemptions: | $522.93 | | |
| | | | | Taxes w/o Exemptions: | $3,884.67 | | |
Improvement / Building
| Improvement #1: | RESIDENTIAL | State Code: | Y | 1354.0 sqft | Value: | $255,932 |
| Bathrooms: | 2 | Bedrooms: | 2 | | Ceiling: | DRYWALL PAINTED | Exterior Wall/Cover: | PLY/HARDBOARD T-111 | | Floor Covering: | HARDWOOD 100% | Floor Structure: | WOOD W/SUBFLOOR | | Foundation: | CONCRETE | Heating: | WALL HEAT ELECTRIC | | Interior Finish: | DRYWALL PAINT | Plumbing Fixture Cnt: | 9 | | Roof Slope: | 6" IN 12" | Roof Structure/Cover: | CJ ASPHALT |
|
| | Type | Description | Class CD | Sub Class CD | Year Built | Area |
| | BAS | BASE/MAIN FLOOR | 3 | 0 | 1994 | 1354.0 |
| | OP1 | OPEN PORCH SLAB | 3 | 0 | 1994 | 150.0 |
| | AGR | ATTACHED GARAGE | 3 | 0 | 1994 | 407.0 |
| | OWP | OPEN WOOD PORCH W/STEPS | 3 | 0 | 1994 | 49.0 |
| | OWP | OPEN WOOD PORCH W/STEPS | 3 | 0 | 1994 | 192.0 |
Sketch
Property Image
Land
| 1 | 13 | SQ (06001-08000) | 0.0000 | 0.00 | 0.00 | 0.00 | 1.00 | $240,000 | $0 |
Roll Value History
| 2026 | N/A | N/A | N/A | N/A | N/A |
| 2025 | $255,932 | $240,000 | $0 | $495,932 | $98,628 |
| 2024 | $259,162 | $230,000 | $0 | $489,162 | $98,628 |
| 2023 | $262,391 | $230,000 | $0 | $492,391 | $98,628 |
| 2022 | $240,522 | $210,000 | $0 | $450,522 | $176,571 |
| 2021 | $211,693 | $150,000 | $0 | $361,693 | $176,571 |
| 2020 | $188,812 | $130,000 | $0 | $318,812 | $176,571 |
| 2019 | $136,143 | $150,000 | $0 | $286,143 | $176,571 |
| 2018 | $136,571 | $110,000 | $0 | $246,571 | $246,571 |
| 2017 | $137,429 | $110,000 | $0 | $247,429 | $247,429 |
| 2016 | $139,149 | $65,000 | $0 | $204,149 | $134,149 |
| 2015 | $140,866 | $55,000 | $0 | $195,866 | $195,866 |
| 2014 | $147,810 | $55,000 | $0 | $202,810 | $202,810 |
| 2013 | $149,635 | $55,000 | $0 | $204,635 | $204,635 |
| 2012 | $151,460 | $55,000 | $0 | $206,460 | $82,584 |
| 2011 | $153,286 | $72,000 | $0 | $225,286 | $90,114 |
| 2010 | $155,339 | $72,000 | $0 | $227,339 | $90,936 |
| 2009 | $162,054 | $85,000 | $0 | $247,054 | $98,822 |
| 2008 | $150,886 | $78,000 | $0 | $228,886 | $228,886 |
| 2007 | $152,712 | $78,000 | $0 | $230,712 | $230,712 |
Deed and Sales History
| 1 | 09/07/2023 | QCD | Quit Claim Deed | LUNN, PATRICE A | LUNN TTEE, PATRICE ANNE | | | $0.00 | 57936 | 4564530 |
| 2 | 01/18/2016 | BARGSLD | Bargain And Sale Deed | MORTGAGE EQUITY CONVERSION ASSET TRUST 2011-1 | LUNN, PATRICE A | | | $226,000.00 | 23092 | 4393835 |
|   | |
| 3 | 11/03/2015 | TRUSTEED | Trustee's Deed | KLEVELAND, DIXIE LEE | MORTGAGE EQUITY CONVERSION ASSET TRUST 2011-1 | | | | 22061 | 4389009 |
| 4 | 08/30/2001 | WD | Warranty Deed | WALKER, HENRIETTA | KLEVELAND, DIXIE LEE | | | $136,718.00 | 13411 | 20041992 |
| 5 | 10/01/1997 | WD | Warranty Deed | WALKER, HENRIETTA | WALKER, HENRIETTA | | | $127,200.00 | 73909 | 97018681 |
| 6 | 10/01/1997 | ESTSEPPROP | Establish Separate Property | HEGGENES, CHRISTOPHER N | WALKER, HENRIETTA | | | $0.00 | 73910 | 97018682 |
| 7 | 06/01/1993 | WD | Warranty Deed | KING, DANIEL J | HEGGENES, CHRISTOPHER N | | | $6,100.00 | 32352 | 93012153 |
| 8 | 07/01/1990 | WD | Warranty Deed | KING, SHARILYN L | KING, DANIEL J | | | $2,500.00 | 3897 | 90012665 |
| 9 | 09/01/1988 | DECREE | Divorce Decree/Legal Separation | VOSE, ROBERT E | KING, SHARILYN L | | | $0.00 | 83444 | 88012892 |
| 10 | 08/01/1986 | QCD | Quit Claim Deed | KING, DANIEL J | VOSE, ROBERT E | | | $100.00 | 62344 | 86010676 |
| 11 | 08/01/1986 | WD | Warranty Deed | HAMILTON, DENNIS | KING, DANIEL J | | | $2,600.00 | 62348 | 86010701 |
| 12 | 09/01/1983 | PACD | Purchaser's Assignment | SMITH, JANICE E | HAMILTON, DENNIS | | | $0.00 | 32659 | 414990 |
| 13 | 11/01/1982 | REC | Real Estate Contract | VOSE, ROBERT E | SMITH, JANICE E | | | $3,500.00 | 22876 | 403188 |
| 14 | 01/01/1900 | OTHER | Other - Misc. Documents | HEGGENES, CHRISTOPHER E | VOSE, ROBERT E | | | $0.00 | 0 | 0 |
| 15 | 01/01/1900 | QCD | Quit Claim Deed | Unknown | HEGGENES, CHRISTOPHER E | | | $0.00 | 42147 | 94012390 |
Payout Agreement
| No payout information available.. |