Property
Account |
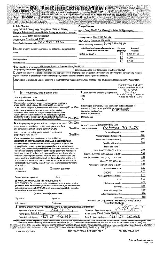
| Property ID: | 244275 | Abbreviated Legal Description: | DOMERUDE BCH LOT 21 BLK 2 |
| Geographic ID: | S6480-00-02021-0 | Agent Code: | |
| Type: | Real | | |
| Tax Area: | 580 - APPRAISER-Stan/Cam Schl Dist, Special Dist, improved & less than 1 acre | Land Use Code | 11 |
| Open Space: | N | DFL | N |
| Historic Property: | N | Remodel Property: | N |
| Multi-Family Redevelopment: | N | | |
| Township: | | Section: | |
| Range: | |
Location |
| Address: | 854 JUNIPER POINTE LN CAMANO ISLAND, WA 98282 | Mapsco: | |
| Neighborhood: | Cycle 5 | Map ID: | 980 |
| Neighborhood CD: | 5 |
Owner |
| Name: | FINNEY, PATRICK | Owner ID: | 262883 |
| Mailing Address: | CAMDEN MICHELLE FINNEY MARY ANN FINNEY SHELIA CADENA MARGARET T FINNEY 20411 13TH AVE NW SHORELINE, WA 98177 | % Ownership: | 100.0000000000% |
| | | Exemptions: | |
Taxes and Assessment Details
Values
| (+) Improvement Homesite Value: | + | $0 | |
| (+) Improvement Non-Homesite Value: | + | $221,947 | |
| (+) Land Homesite Value: | + | $0 | |
| (+) Land Non-Homesite Value: | + | $500,000 | |
| (+) Curr Use (HS): | + | $0 | $0 |
| (+) Curr Use (NHS): | + | $0 | $0 |
| | | -------------------------- | |
| (=) Market Value: | = | $721,947 | |
| (–) Productivity Loss: | – | $0 | |
| | | -------------------------- | |
| (=) Subtotal: | = | $721,947 | |
| (+) Senior Appraised Value: | + | $0 | |
| (+) Non-Senior Appraised Value: | + | $721,947 | |
| | | -------------------------- | |
| (=) Total Appraised Value: | = | $721,947 | |
| (–) Senior Exemption Loss: | – | $0 | |
| (–) Exemption Loss: | – | $0 | |
| | | -------------------------- | |
| (=) Taxable Value: | = | $721,947 | |
Taxing Jurisdiction
| Owner: | FINNEY, PATRICK | | |
| % Ownership: | 100.0000000000% | | |
| Total Value: | $721,947 | | |
| Tax Area: | 580 - APPRAISER-Stan/Cam Schl Dist, Special Dist, improved & less than 1 acre |
| CF | Conservation Futures | 0.0313996660 | $721,947 | $721,947 | $22.67 | | |
| EMS1 | Fire & Rescue Dist #1 Camano GEN (EMS) | 0.4998471806 | $721,947 | $721,947 | $360.86 | | |
| FIRE1 | Fire & Rescue Dist #1 Camano GEN | 1.2496603404 | $721,947 | $721,947 | $902.19 | | |
| FIRE1BOND | Fire & Rescue Dist #1 Camano BOND | 0.1630371212 | $721,947 | $721,947 | $117.70 | | |
| CE | County Current Expense | 0.3674210519 | $721,947 | $721,947 | $265.26 | | |
| CR | County Roads | 0.4614296361 | $721,947 | $721,947 | $333.13 | | |
| LIB | Library Sno-Isle GEN | 0.3039084203 | $721,947 | $721,947 | $219.41 | | |
| SCH205_401 | School 205-401 Enrichment | 1.3697998934 | $721,947 | $721,947 | $988.92 | | |
| SCH205BOND | School 205-401 BOND | 0.9354199323 | $721,947 | $721,947 | $675.32 | | |
| ST | State School | 1.4761226122 | $721,947 | $721,947 | $1,065.68 | | |
| ST2 | State School Part 2 | 0.7953803475 | $721,947 | $721,947 | $574.22 | | |
| | Total Tax Rate: | 7.6534262019 | | | | | |
| | | | | Taxes w/Current Exemptions: | $5,525.36 | | |
| | | | | Taxes w/o Exemptions: | $5,525.36 | | |
Improvement / Building
| Improvement #1: | RESIDENTIAL | State Code: | Y | 1266.0 sqft | Value: | $221,947 |
| Bathrooms: | 2 | Bedrooms: | 2 | | Ceiling: | TONGUE & GROOVE | Exterior Wall/Cover: | SHINGLE | | Floor Covering: | CARPET/VINYL 60-40 | Floor Structure: | WOOD W/SUBFLOOR | | Foundation: | CONCRETE | Heating: | FHA ELECTRIC | | Interior Finish: | DRYWALL PAINT | Plumbing Fixture Cnt: | 10 | | Roof Slope: | 12" IN 12" | Roof Structure/Cover: | BEAM ASPHALT |
|
| | Type | Description | Class CD | Sub Class CD | Year Built | Area |
| | BAS | BASE/MAIN FLOOR | 3 | 0 | 1939 | 844.0 |
| | UTY | STORAGE/UTILITY | 3 | 0 | 1939 | 56.0 |
| | OWP | OPEN WOOD PORCH W/STEPS | 3 | 0 | 1939 | 50.0 |
| | OWP | OPEN WOOD PORCH W/STEPS | 3 | 0 | 1939 | 960.0 |
| | OWC | OPEN WOOD PORCH W/STEPS/ROOF/C | 3 | 0 | 1939 | 40.0 |
| | UPH | HALF STORY | 3 | 0 | 1939 | 422.0 |
Sketch
Property Image
Land
| 1 | LB | LOW BANK | 0.0000 | 0.00 | 25.00 | 0.00 | 1.00 | $500,000 | $0 |
Roll Value History
| 2026 | N/A | N/A | N/A | N/A | N/A |
| 2025 | $221,947 | $500,000 | $0 | $721,947 | $721,947 |
| 2024 | $225,063 | $500,000 | $0 | $725,063 | $725,063 |
| 2023 | $228,178 | $470,000 | $0 | $698,178 | $698,178 |
| 2022 | $209,443 | $430,000 | $0 | $639,443 | $639,443 |
| 2021 | $189,020 | $350,000 | $0 | $539,020 | $539,020 |
| 2020 | $184,155 | $325,000 | $0 | $509,155 | $509,155 |
| 2019 | $131,466 | $325,000 | $0 | $456,466 | $456,466 |
| 2018 | $131,898 | $300,000 | $0 | $431,898 | $431,898 |
| 2017 | $132,761 | $275,000 | $0 | $407,761 | $407,761 |
| 2016 | $134,485 | $250,000 | $0 | $384,485 | $384,485 |
| 2015 | $101,036 | $250,000 | $0 | $351,036 | $351,036 |
| 2014 | $102,616 | $250,000 | $0 | $352,616 | $352,616 |
| 2013 | $104,194 | $234,913 | $0 | $339,107 | $339,107 |
| 2012 | $105,773 | $234,913 | $0 | $340,686 | $340,686 |
| 2011 | $107,352 | $247,277 | $0 | $354,629 | $354,629 |
| 2010 | $116,889 | $247,277 | $0 | $364,166 | $364,166 |
| 2009 | $91,977 | $288,745 | $0 | $380,722 | $380,722 |
| 2008 | $91,977 | $288,745 | $0 | $380,722 | $380,722 |
| 2007 | $93,489 | $307,610 | $0 | $401,099 | $401,099 |
Deed and Sales History
| 1 | 10/29/2025 | BARGSLD | Bargain And Sale Deed | FINNEY, PATRICK | FINNEY FIVE LLC | | | $0.00 | 65916 | 4595603 |
| 2 | 06/01/2013 | QCD | Quit Claim Deed | FINNEY, PATRICK J | FINNEY, PATRICK | | | $0.00 | 11730 | 4342387 |
| 3 | 07/01/1991 | QCD | Quit Claim Deed | FINNEY, FRANK J | FINNEY, PATRICK J | | | $0.00 | 12338 | 91009999 |
| 4 | 01/01/1900 | OTHER | Other - Misc. Documents | Unknown | FINNEY, FRANK J | | | $0.00 | 0 | 0 |
Payout Agreement
| No payout information available.. |