Property
Account |
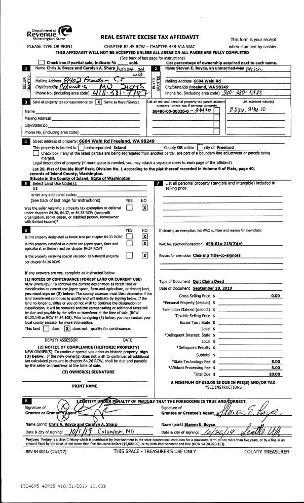
| Property ID: | 244710 | Abbreviated Legal Description: | DBLE BLUFF PK 1 LOT 20 |
| Geographic ID: | S6490-00-00020-0 | Agent Code: | |
| Type: | Real | | |
| Tax Area: | 712 - APPRAISER-S Whid Schl Dist, outside Langley, improved, greater than 1 acre | Land Use Code | 11 |
| Open Space: | N | DFL | N |
| Historic Property: | N | Remodel Property: | N |
| Multi-Family Redevelopment: | N | | |
| Township: | | Section: | |
| Range: | |
Location |
| Address: | 6604 WAHL RD FREELAND, WA 98249 | Mapsco: | |
| Neighborhood: | Cycle 3 | Map ID: | 348 |
| Neighborhood CD: | 3 |
Owner |
| Name: | BOYCE, STEVEN E | Owner ID: | 303812 |
| Mailing Address: | JENNIFER E LORD 6604 WAHL RD FREELAND, WA 98249 | % Ownership: | 100.0000000000% |
| | | Exemptions: | |
Taxes and Assessment Details
Values
| (+) Improvement Homesite Value: | + | $0 | |
| (+) Improvement Non-Homesite Value: | + | $310,575 | |
| (+) Land Homesite Value: | + | $0 | |
| (+) Land Non-Homesite Value: | + | $310,000 | |
| (+) Curr Use (HS): | + | $0 | $0 |
| (+) Curr Use (NHS): | + | $0 | $0 |
| | | -------------------------- | |
| (=) Market Value: | = | $620,575 | |
| (–) Productivity Loss: | – | $0 | |
| | | -------------------------- | |
| (=) Subtotal: | = | $620,575 | |
| (+) Senior Appraised Value: | + | $0 | |
| (+) Non-Senior Appraised Value: | + | $620,575 | |
| | | -------------------------- | |
| (=) Total Appraised Value: | = | $620,575 | |
| (–) Senior Exemption Loss: | – | $0 | |
| (–) Exemption Loss: | – | $0 | |
| | | -------------------------- | |
| (=) Taxable Value: | = | $620,575 | |
Taxing Jurisdiction
| Owner: | BOYCE, STEVEN E | | |
| % Ownership: | 100.0000000000% | | |
| Total Value: | $620,575 | | |
| Tax Area: | 712 - APPRAISER-S Whid Schl Dist, outside Langley, improved, greater than 1 acre |
| CF | Conservation Futures | 0.0313996660 | $620,575 | $620,575 | $19.49 | | |
| FIRE3 | Fire & Rescue Dist #3 S Whidbey GEN | 1.2130821753 | $620,575 | $620,575 | $752.81 | | |
| HOBOND | Hospital BOND | 0.1893405597 | $620,575 | $620,575 | $117.50 | | |
| HOGEN | Hospital GEN | 0.3848777722 | $620,575 | $620,575 | $238.85 | | |
| CE | County Current Expense | 0.3674210519 | $620,575 | $620,575 | $228.01 | | |
| CR | County Roads | 0.4614296361 | $620,575 | $620,575 | $286.35 | | |
| ISLANDEMS | Hospital GEN (EMS) | 0.4952018576 | $620,575 | $620,575 | $307.31 | | |
| LIB | Library Sno-Isle GEN | 0.3039084203 | $620,575 | $620,575 | $188.60 | | |
| PORTWHID | Port of S Whidbey GEN | 0.1086004714 | $620,575 | $620,575 | $67.39 | | |
| SCH206BOND | School 206 BOND | 0.5960237832 | $620,575 | $620,575 | $369.88 | | |
| SCH206CAP | School 206 CP | 0.3066144020 | $620,575 | $620,575 | $190.28 | | |
| SCH206MO | School 206 Enrichment | 0.4808755445 | $620,575 | $620,575 | $298.42 | | |
| ST | State School | 1.4761226122 | $620,575 | $620,575 | $916.04 | | |
| ST2 | State School Part 2 | 0.7953803475 | $620,575 | $620,575 | $493.59 | | |
| SWHIDPRBD | P & R S Whidbey BOND | 0.0144185398 | $620,575 | $620,575 | $8.95 | | |
| SWHIDPRBD3 | P & R S Whidbey BOND3 | 0.1483535547 | $620,575 | $620,575 | $92.06 | | |
| SWHIDPRMT | P & R S Whidbey GEN | 0.4600000000 | $620,575 | $620,575 | $285.46 | | |
| | Total Tax Rate: | 7.8330503944 | | | | | |
| | | | | Taxes w/Current Exemptions: | $4,860.99 | | |
| | | | | Taxes w/o Exemptions: | $4,860.99 | | |
Improvement / Building
| Improvement #1: | RESIDENTIAL | State Code: | Y | 1364.3 sqft | Value: | $310,575 |
| Bathrooms: | 2 | Bedrooms: | 2 | | Ceiling: | DRYWALL PAINTED | Exterior Wall/Cover: | CEMENT FIBER | | Floor Covering: | COLORED CONCRETE | Floor Structure: | WOOD W/SUBFLOOR | | Foundation: | CONCRETE | Heating: | RADIANT FLOOR | | Interior Finish: | DRYWALL PAINT | Plumbing Fixture Cnt: | 11 | | Roof Slope: | 8" IN 12" | Roof Structure/Cover: | CJ ASPHALT |
|
| | Type | Description | Class CD | Sub Class CD | Year Built | Area |
| | BAS | BASE/MAIN FLOOR | 3 | 0 | 2018 | 1364.3 |
| | OWR | OPEN WOOD PORCH W/STEPS/ROOF | 3 | 0 | 2018 | 93.0 |
| | DGR | DETACHED GARAGE | 3 | 0 | 2018 | 480.0 |
| | OCP | OPEN CARPORT | 3 | 0 | 2018 | 250.0 |
| | ATF | ATTIC FINISHED | 3 | 0 | 2018 | 480.0 |
| | OP4 | OPEN PORCH W/CEILING-ROOF | 3 | 0 | 2018 | 42.0 |
Sketch
Property Image
Land
| 1 | 18 | AC (02.01-03.00) | 2.4600 | 107157.60 | 0.00 | 0.00 | 1.00 | $310,000 | $0 |
Roll Value History
| 2026 | N/A | N/A | N/A | N/A | N/A |
| 2025 | $310,575 | $310,000 | $0 | $620,575 | $620,575 |
| 2024 | $313,060 | $290,000 | $0 | $603,060 | $603,060 |
| 2023 | $315,544 | $290,000 | $0 | $605,544 | $605,544 |
| 2022 | $189,351 | $270,000 | $0 | $459,351 | $459,351 |
| 2021 | $166,575 | $190,000 | $0 | $356,575 | $356,575 |
| 2020 | $150,274 | $180,000 | $0 | $330,274 | $330,274 |
| 2019 | $86,946 | $200,000 | $0 | $286,946 | $286,946 |
| 2018 | $56,869 | $100,000 | $0 | $156,869 | $156,869 |
| 2017 | $4,000 | $100,000 | $0 | $104,000 | $104,000 |
| 2016 | $4,000 | $100,000 | $0 | $104,000 | $104,000 |
| 2015 | $4,000 | $100,000 | $0 | $104,000 | $104,000 |
| 2014 | $4,000 | $75,000 | $0 | $79,000 | $79,000 |
| 2013 | $0 | $71,000 | $0 | $71,000 | $71,000 |
| 2012 | $0 | $71,000 | $0 | $71,000 | $71,000 |
| 2011 | $0 | $71,000 | $0 | $71,000 | $71,000 |
| 2010 | $0 | $71,000 | $0 | $71,000 | $71,000 |
| 2009 | $0 | $120,000 | $0 | $120,000 | $120,000 |
| 2008 | $0 | $135,000 | $0 | $135,000 | $135,000 |
| 2007 | $0 | $100,000 | $0 | $100,000 | $100,000 |
Deed and Sales History
| 1 | 04/14/2022 | QCD | Quit Claim Deed | BOYCE, STEVEN E | BOYCE, STEVEN E | | | $0.00 | 52784 | 4543731 |
| 2 | 10/25/2019 | QCD | Quit Claim Deed | BOYCE, STEVEN E | BOYCE, STEVEN E | | | $73,600.00 | 40916 | 4474535 |
| 3 | 10/28/2019 | QCD | Quit Claim Deed | BOYCE, STEVEN | BOYCE, STEVEN E | | | $0.00 | 40915 | 4474534 |
| 4 | 11/13/2017 | QCD | Quit Claim Deed | BOYCE, STEVE | BOYCE, STEVEN | | | $0.00 | 31957 | 4434338 |
| 5 | 09/20/2017 | WD | Warranty Deed | HANNON, TIMOTHY | BOYCE, STEVE | | | $175,000.00 | 31301 | 4431104 |
| 6 | 06/30/2017 | QCD | Quit Claim Deed | WEBER, JENNIFER L | HANNON, TIMOTHY | | | $0.00 | 30062 | 4425587 |
| 7 | 09/25/2007 | WD | Warranty Deed | COLOMBI, RON L | WEBER, JENNIFER L | | | $151,000.00 | 73323 | 4213311 |
| 8 | 12/15/2005 | WD | Warranty Deed | BRIGGS, VIRGINIA C | COLOMBI, RON L | | | $120,000.00 | 56218 | 4157209 |
| 9 | 05/01/1996 | OTHER | Other - Misc. Documents | SULLIVAN, VIRGINIA C | BRIGGS, VIRGINIA C | | | $0.00 | 66948 | 0 |
| 10 | 02/01/1990 | QCD | Quit Claim Deed | TALBER, CRAIG & | SULLIVAN, VIRGINIA C | | | $0.00 | 717 | 90002868 |
| 11 | 06/01/1987 | WD | Warranty Deed | TALBER, CRAIG & | TALBER, CRAIG & | | | $13,500.00 | 71676 | 87007881 |
| 12 | 06/01/1987 | QCD | Quit Claim Deed | GREEN, JESS E | TALBER, CRAIG & | | | $0.00 | 71675 | 87007880 |
| 13 | 01/01/1900 | OTHER | Other - Misc. Documents | Unknown | GREEN, JESS E | | | $0.00 | 0 | 0 |
Payout Agreement
| No payout information available.. |