Property
Account |
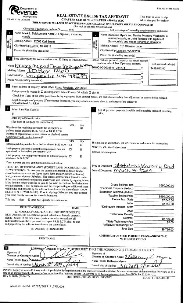
| Property ID: | 244774 | Abbreviated Legal Description: | DBLE BLUFF PK 1 LOT 26 |
| Geographic ID: | S6490-00-00026-0 | Agent Code: | |
| Type: | Real | | |
| Tax Area: | 712 - APPRAISER-S Whid Schl Dist, outside Langley, improved, greater than 1 acre | Land Use Code | 11 |
| Open Space: | N | DFL | N |
| Historic Property: | N | Remodel Property: | N |
| Multi-Family Redevelopment: | N | | |
| Township: | | Section: | |
| Range: | |
Location |
| Address: | 6501 WAHL RD FREELAND, WA 98249 | Mapsco: | |
| Neighborhood: | Cycle 3 | Map ID: | 349 |
| Neighborhood CD: | 3 |
Owner |
| Name: | TRAPP, SZYMON GRZEGORZ | Owner ID: | 309755 |
| Mailing Address: | KAROLINA A TRAPP 6501 WAHL RD FREELAND, WA 98249 | % Ownership: | 100.0000000000% |
| | | Exemptions: | |
Taxes and Assessment Details
Values
| (+) Improvement Homesite Value: | + | $0 | |
| (+) Improvement Non-Homesite Value: | + | $571,064 | |
| (+) Land Homesite Value: | + | $0 | |
| (+) Land Non-Homesite Value: | + | $310,000 | |
| (+) Curr Use (HS): | + | $0 | $0 |
| (+) Curr Use (NHS): | + | $0 | $0 |
| | | -------------------------- | |
| (=) Market Value: | = | $881,064 | |
| (–) Productivity Loss: | – | $0 | |
| | | -------------------------- | |
| (=) Subtotal: | = | $881,064 | |
| (+) Senior Appraised Value: | + | $0 | |
| (+) Non-Senior Appraised Value: | + | $881,064 | |
| | | -------------------------- | |
| (=) Total Appraised Value: | = | $881,064 | |
| (–) Senior Exemption Loss: | – | $0 | |
| (–) Exemption Loss: | – | $0 | |
| | | -------------------------- | |
| (=) Taxable Value: | = | $881,064 | |
Taxing Jurisdiction
| Owner: | TRAPP, SZYMON GRZEGORZ | | |
| % Ownership: | 100.0000000000% | | |
| Total Value: | $881,064 | | |
| Tax Area: | 712 - APPRAISER-S Whid Schl Dist, outside Langley, improved, greater than 1 acre |
| CF | Conservation Futures | 0.0313996660 | $881,064 | $881,064 | $27.67 | | |
| FIRE3 | Fire & Rescue Dist #3 S Whidbey GEN | 1.2130821753 | $881,064 | $881,064 | $1,068.80 | | |
| HOBOND | Hospital BOND | 0.1893405597 | $881,064 | $881,064 | $166.82 | | |
| HOGEN | Hospital GEN | 0.3848777722 | $881,064 | $881,064 | $339.10 | | |
| CE | County Current Expense | 0.3674210519 | $881,064 | $881,064 | $323.72 | | |
| CR | County Roads | 0.4614296361 | $881,064 | $881,064 | $406.55 | | |
| ISLANDEMS | Hospital GEN (EMS) | 0.4952018576 | $881,064 | $881,064 | $436.30 | | |
| LIB | Library Sno-Isle GEN | 0.3039084203 | $881,064 | $881,064 | $267.76 | | |
| PORTWHID | Port of S Whidbey GEN | 0.1086004714 | $881,064 | $881,064 | $95.68 | | |
| SCH206BOND | School 206 BOND | 0.5960237832 | $881,064 | $881,064 | $525.14 | | |
| SCH206CAP | School 206 CP | 0.3066144020 | $881,064 | $881,064 | $270.15 | | |
| SCH206MO | School 206 Enrichment | 0.4808755445 | $881,064 | $881,064 | $423.68 | | |
| ST | State School | 1.4761226122 | $881,064 | $881,064 | $1,300.56 | | |
| ST2 | State School Part 2 | 0.7953803475 | $881,064 | $881,064 | $700.78 | | |
| SWHIDPRBD | P & R S Whidbey BOND | 0.0144185398 | $881,064 | $881,064 | $12.70 | | |
| SWHIDPRBD3 | P & R S Whidbey BOND3 | 0.1483535547 | $881,064 | $881,064 | $130.71 | | |
| SWHIDPRMT | P & R S Whidbey GEN | 0.4600000000 | $881,064 | $881,064 | $405.29 | | |
| | Total Tax Rate: | 7.8330503944 | | | | | |
| | | | | Taxes w/Current Exemptions: | $6,901.41 | | |
| | | | | Taxes w/o Exemptions: | $6,901.41 | | |
Improvement / Building
| Improvement #1: | RESIDENTIAL | State Code: | Y | 2067.0 sqft | Value: | $571,064 |
| Bathrooms: | 2 | Bedrooms: | 3 | | Ceiling: | DRYWALL PAINTED | Cooling: | HEAT PUMP/CONV/V | | Exterior Wall/Cover: | SHINGLE | Floor Covering: | HARDWOOD 100% | | Floor Structure: | WOOD W/SUBFLOOR | Foundation: | CONCRETE | | Heating: | FHA GAS | Interior Finish: | DRYWALL PAINT | | Plumbing Fixture Cnt: | 11 | Roof Slope: | 12" IN 12" | | Roof Structure/Cover: | CJ ASPHALT |   |   |
|
| | Type | Description | Class CD | Sub Class CD | Year Built | Area |
| | BAS | BASE/MAIN FLOOR | 5 | 0 | 1995 | 1495.0 |
| | BIG | BUILT IN GARAGE | 5 | 0 | 1995 | 572.0 |
| | OWP | OPEN WOOD PORCH W/STEPS | 5 | 0 | 1995 | 162.0 |
| | UPH | HALF STORY | 5 | 0 | 1995 | 572.0 |
| | oLNS | LANDSCAPE | 5 | 0 | 1995 | 625.0 |
Sketch
Property Image
Land
| 1 | 18 | AC (02.01-03.00) | 2.3200 | 101059.20 | 0.00 | 0.00 | 1.00 | $310,000 | $0 |
Roll Value History
| 2026 | N/A | N/A | N/A | N/A | N/A |
| 2025 | $571,064 | $310,000 | $0 | $881,064 | $881,064 |
| 2024 | $575,733 | $290,000 | $0 | $865,733 | $865,733 |
| 2023 | $528,267 | $290,000 | $0 | $818,267 | $818,267 |
| 2022 | $483,793 | $270,000 | $0 | $753,793 | $753,793 |
| 2021 | $424,219 | $190,000 | $0 | $614,219 | $614,219 |
| 2020 | $412,543 | $180,000 | $0 | $592,543 | $592,543 |
| 2019 | $290,190 | $200,000 | $0 | $490,190 | $490,190 |
| 2018 | $229,812 | $190,000 | $0 | $419,812 | $419,812 |
| 2017 | $231,239 | $190,000 | $0 | $421,239 | $421,239 |
| 2016 | $234,093 | $125,000 | $0 | $359,093 | $359,093 |
| 2015 | $236,949 | $100,000 | $0 | $336,949 | $336,949 |
| 2014 | $239,803 | $100,000 | $0 | $339,803 | $339,803 |
| 2013 | $244,463 | $100,000 | $0 | $344,463 | $344,463 |
| 2012 | $248,440 | $115,000 | $0 | $363,440 | $363,440 |
| 2011 | $251,465 | $115,000 | $0 | $366,465 | $366,465 |
| 2010 | $263,930 | $115,000 | $0 | $378,930 | $378,930 |
| 2009 | $275,632 | $155,000 | $0 | $430,632 | $430,632 |
| 2008 | $279,372 | $100,000 | $0 | $379,372 | $379,372 |
| 2007 | $276,472 | $100,000 | $0 | $376,472 | $376,472 |
Deed and Sales History
| 1 | 08/17/2023 | WD | Warranty Deed | MYERS JTWROS, KATHLEEN | TRAPP, SZYMON GRZEGORZ | | | $975,000.00 | 57707 | 4563830 |
| 2 | 03/08/2019 | WD | Warranty Deed | DZIEKAN, MARK L | MYERS JTWROS, KATHLEEN | | | $550,000.00 | 37854 | 4460421 |
| 3 | 06/18/2002 | WD | Warranty Deed | DZIEKAN, MARK L | DZIEKAN, MARK L | | | $133,000.00 | 22409 | 4023691 |
| 4 | 06/15/2000 | WD | Warranty Deed | MCEACHERN, MICHAEL C | DZIEKAN, MARK L | | | $232,000.00 | 2269 | 20010871 |
| 5 | 09/01/1995 | WD | Warranty Deed | SCHEUTZOW, JAN T | MCEACHERN, MICHAEL C | | | $179,000.00 | 53400 | 95015657 |
| 6 | 04/01/1995 | WD | Warranty Deed | SCHEUTZOW, JAN T | SCHEUTZOW, JAN T | | | $29,500.00 | 51173 | 95005474 |
| 7 | 03/01/1995 | QCD | Quit Claim Deed | NW, REHAB A | SCHEUTZOW, JAN T | | | $0.00 | 51147 | 95005410 |
| 8 | 06/01/1989 | WD | Warranty Deed | HOWARD, BERNICE H | NW, REHAB A | | | $15,000.00 | 92594 | 89008794 |
| 9 | 01/01/1900 | OTHER | Other - Misc. Documents | Unknown | HOWARD, BERNICE H | | | $0.00 | 0 | 0 |
Payout Agreement
| No payout information available.. |