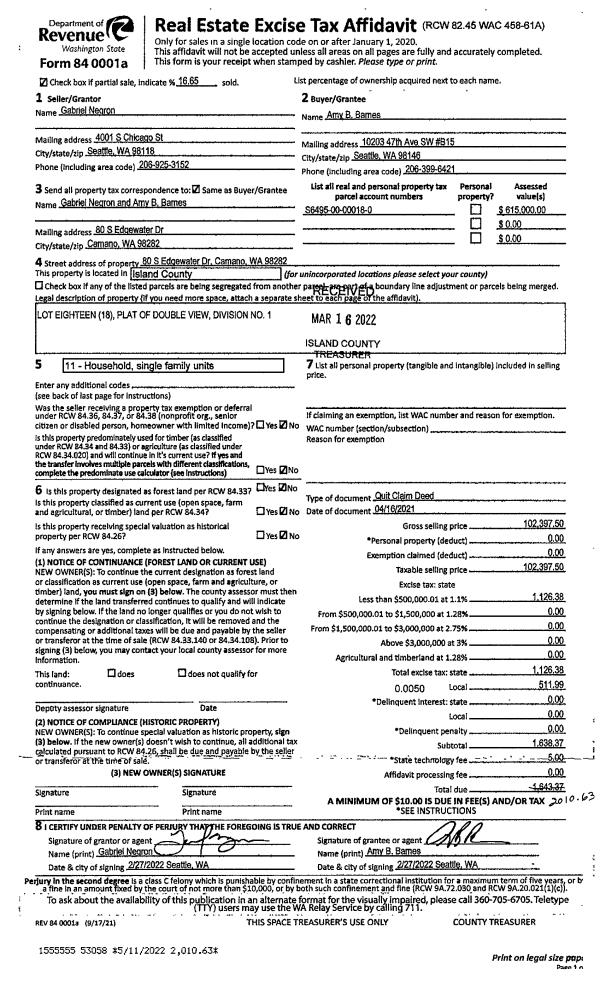
Property
Account |
| Property ID: | 245050 | Abbreviated Legal Description: | DOUBLE VU LOT 18 |
| Geographic ID: | S6495-00-00018-0 | Agent Code: | |
| Type: | Real | | |
| Tax Area: | 510 - APPRAISER-Stan/Cam Schl Dist, improved & 1 acre or less | Land Use Code | 11 |
| Open Space: | N | DFL | N |
| Historic Property: | N | Remodel Property: | N |
| Multi-Family Redevelopment: | N | | |
| Township: | | Section: | |
| Range: | |
Location |
| Address: | 80 EDGEWATER DR CAMANO ISLAND, WA 98282 | Mapsco: | |
| Neighborhood: | Cycle 5 | Map ID: | 458 |
| Neighborhood CD: | 5 |
Owner |
| Name: | BARNES, AMY B | Owner ID: | 279201 |
| Mailing Address: | GABRIEL NEGRON 80 EDGEWATER DR CAMANO ISLAND, WA 98282 | % Ownership: | 100.0000000000% |
| | | Exemptions: | |
Taxes and Assessment Details
Values
| (+) Improvement Homesite Value: | + | $0 | |
| (+) Improvement Non-Homesite Value: | + | $302,352 | |
| (+) Land Homesite Value: | + | $0 | |
| (+) Land Non-Homesite Value: | + | $575,000 | |
| (+) Curr Use (HS): | + | $0 | $0 |
| (+) Curr Use (NHS): | + | $0 | $0 |
| | | -------------------------- | |
| (=) Market Value: | = | $877,352 | |
| (–) Productivity Loss: | – | $0 | |
| | | -------------------------- | |
| (=) Subtotal: | = | $877,352 | |
| (+) Senior Appraised Value: | + | $0 | |
| (+) Non-Senior Appraised Value: | + | $877,352 | |
| | | -------------------------- | |
| (=) Total Appraised Value: | = | $877,352 | |
| (–) Senior Exemption Loss: | – | $0 | |
| (–) Exemption Loss: | – | $0 | |
| | | -------------------------- | |
| (=) Taxable Value: | = | $877,352 | |
Taxing Jurisdiction
| Owner: | BARNES, AMY B | | |
| % Ownership: | 100.0000000000% | | |
| Total Value: | $877,352 | | |
| Tax Area: | 510 - APPRAISER-Stan/Cam Schl Dist, improved & 1 acre or less |
| CF | Conservation Futures | 0.0313996660 | $877,352 | $877,352 | $27.55 | | |
| EMS1 | Fire & Rescue Dist #1 Camano GEN (EMS) | 0.4998471806 | $877,352 | $877,352 | $438.54 | | |
| FIRE1 | Fire & Rescue Dist #1 Camano GEN | 1.2496603404 | $877,352 | $877,352 | $1,096.39 | | |
| FIRE1BOND | Fire & Rescue Dist #1 Camano BOND | 0.1630371212 | $877,352 | $877,352 | $143.04 | | |
| CE | County Current Expense | 0.3674210519 | $877,352 | $877,352 | $322.36 | | |
| CR | County Roads | 0.4614296361 | $877,352 | $877,352 | $404.84 | | |
| LIB | Library Sno-Isle GEN | 0.3039084203 | $877,352 | $877,352 | $266.63 | | |
| SCH205_401 | School 205-401 Enrichment | 1.3697998934 | $877,352 | $877,352 | $1,201.80 | | |
| SCH205BOND | School 205-401 BOND | 0.9354199323 | $877,352 | $877,352 | $820.69 | | |
| ST | State School | 1.4761226122 | $877,352 | $877,352 | $1,295.08 | | |
| ST2 | State School Part 2 | 0.7953803475 | $877,352 | $877,352 | $697.83 | | |
| | Total Tax Rate: | 7.6534262019 | | | | | |
| | | | | Taxes w/Current Exemptions: | $6,714.75 | | |
| | | | | Taxes w/o Exemptions: | $6,714.75 | | |
Improvement / Building
| Improvement #1: | RESIDENTIAL | State Code: | Y | 1434.5 sqft | Value: | $302,352 |
| Bathrooms: | 1.75 | Bedrooms: | 2 | | Ceiling: | TONGUE & GROOVE | Exterior Wall/Cover: | WOOD SIDING | | Floor Covering: | HARDWOOD/CARP 60-40 | Floor Structure: | WOOD W/SUBFLOOR | | Foundation: | CONCRETE | Heating: | WALL HEAT ELECTRIC | | Interior Finish: | DRYWALL PAINT | Plumbing Fixture Cnt: | 9 | | Roof Slope: | 4" IN 12" | Roof Structure/Cover: | BEAM ASPHALT |
|
| | Type | Description | Class CD | Sub Class CD | Year Built | Area |
| | BAS | BASE/MAIN FLOOR | 4 | 0 | 1989 | 884.5 |
| | OP4 | OPEN PORCH W/CEILING-ROOF | 4 | 0 | 1989 | 252.0 |
| | UPS | UPPER STORY | 4 | 0 | 1989 | 300.0 |
| | OWP | OPEN WOOD PORCH W/STEPS | 4 | 0 | 1989 | 201.6 |
| | OWC | OPEN WOOD PORCH W/STEPS/ROOF/C | 4 | 0 | 1989 | 33.0 |
| | LOF | LOFT | 4 | 0 | 1989 | 250.0 |
Sketch
Property Image
Land
| 1 | HB | HIGH BLUFF | 0.0000 | 0.00 | 62.00 | 0.00 | 1.00 | $575,000 | $0 |
Roll Value History
| 2026 | N/A | N/A | N/A | N/A | N/A |
| 2025 | $302,352 | $575,000 | $0 | $877,352 | $877,352 |
| 2024 | $305,818 | $575,000 | $0 | $880,818 | $880,818 |
| 2023 | $309,283 | $575,000 | $0 | $884,283 | $884,283 |
| 2022 | $282,417 | $500,000 | $0 | $782,417 | $782,417 |
| 2021 | $226,944 | $350,000 | $0 | $576,944 | $576,944 |
| 2020 | $220,886 | $300,000 | $0 | $520,886 | $520,886 |
| 2019 | $161,336 | $300,000 | $0 | $461,336 | $461,336 |
| 2018 | $161,788 | $300,000 | $0 | $461,788 | $461,788 |
| 2017 | $162,635 | $250,000 | $0 | $412,635 | $412,635 |
| 2016 | $125,878 | $250,000 | $0 | $375,878 | $375,878 |
| 2015 | $106,031 | $250,000 | $0 | $356,031 | $356,031 |
| 2014 | $107,476 | $250,000 | $0 | $357,476 | $357,476 |
| 2013 | $108,922 | $177,952 | $0 | $286,874 | $286,874 |
| 2012 | $110,368 | $177,952 | $0 | $288,320 | $288,320 |
| 2011 | $111,814 | $222,440 | $0 | $334,254 | $334,254 |
| 2010 | $108,676 | $271,263 | $0 | $379,939 | $379,939 |
| 2009 | $117,458 | $291,681 | $0 | $409,139 | $409,139 |
| 2008 | $119,025 | $300,014 | $0 | $419,039 | $419,039 |
| 2007 | $120,607 | $250,012 | $0 | $370,619 | $370,619 |
Deed and Sales History
| 1 | 04/16/2021 | QCD | Quit Claim Deed | NEGRON, GABRIEL | BARNES, AMY B | | | $102,398.00 | 53058 | 4544928 |
| 2 | 03/24/2017 | WD | Warranty Deed | CLARK, PATRICK | BARNES, AMY B | | | $460,000.00 | 28679 | 4419886 |
| 3 | 08/16/2016 | SPWARDEED | Special Warranty Deed | KNOLL, RICHARD J | CLARK, PATRICK | | | $275,000.00 | 25736 | 4405402 |
| 4 | 12/01/1986 | WD | Warranty Deed | JACKSON, ROY E | KNOLL, RICHARD J | | | $35,000.00 | 63858 | 86017003 |
| 5 | 12/01/1986 | QCD | Quit Claim Deed | KNOLL, RICHARD J | RAINIER, NATIONAL B | | | $0.00 | 63596 | 86016209 |
| 6 | 04/01/1986 | QCD | Quit Claim Deed | JACKSON, ROY E | JACKSON, ROY E | | | $0.00 | 60765 | 86003596 |
| 7 | 03/01/1986 | QCD | Quit Claim Deed | JACKSON, ROY E | JACKSON, ROY E | | | $0.00 | 60523 | 86002602 |
Payout Agreement
| No payout information available.. |