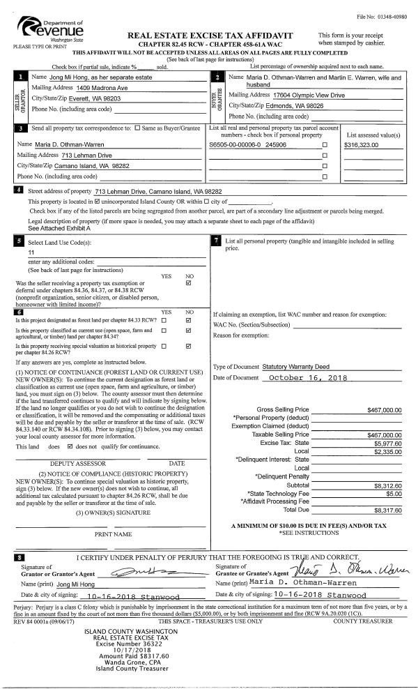
Property
Account |
| Property ID: | 245906 | Abbreviated Legal Description: | DRIFTWOOD HTS 1 LOT 6 |
| Geographic ID: | S6505-00-00006-0 | Agent Code: | |
| Type: | Real | | |
| Tax Area: | 510 - APPRAISER-Stan/Cam Schl Dist, improved & 1 acre or less | Land Use Code | 11 |
| Open Space: | N | DFL | N |
| Historic Property: | N | Remodel Property: | N |
| Multi-Family Redevelopment: | N | | |
| Township: | | Section: | |
| Range: | |
Location |
| Address: | 713 LEHMAN DR CAMANO ISLAND, WA 98282 | Mapsco: | |
| Neighborhood: | Cycle 5 | Map ID: | 922 |
| Neighborhood CD: | 5 |
Owner |
| Name: | OTHMAN-WARREN, MARIA | Owner ID: | 295733 |
| Mailing Address: | 713 LEHMAN DR CAMANO ISLAND, WA 98282 | % Ownership: | 100.0000000000% |
| | | Exemptions: | |
Taxes and Assessment Details
Values
| (+) Improvement Homesite Value: | + | $0 | |
| (+) Improvement Non-Homesite Value: | + | $340,804 | |
| (+) Land Homesite Value: | + | $0 | |
| (+) Land Non-Homesite Value: | + | $350,000 | |
| (+) Curr Use (HS): | + | $0 | $0 |
| (+) Curr Use (NHS): | + | $0 | $0 |
| | | -------------------------- | |
| (=) Market Value: | = | $690,804 | |
| (–) Productivity Loss: | – | $0 | |
| | | -------------------------- | |
| (=) Subtotal: | = | $690,804 | |
| (+) Senior Appraised Value: | + | $0 | |
| (+) Non-Senior Appraised Value: | + | $690,804 | |
| | | -------------------------- | |
| (=) Total Appraised Value: | = | $690,804 | |
| (–) Senior Exemption Loss: | – | $0 | |
| (–) Exemption Loss: | – | $0 | |
| | | -------------------------- | |
| (=) Taxable Value: | = | $690,804 | |
Taxing Jurisdiction
| Owner: | OTHMAN-WARREN, MARIA | | |
| % Ownership: | 100.0000000000% | | |
| Total Value: | $690,804 | | |
| Tax Area: | 510 - APPRAISER-Stan/Cam Schl Dist, improved & 1 acre or less |
| CF | Conservation Futures | 0.0313996660 | $690,804 | $690,804 | $21.69 | | |
| EMS1 | Fire & Rescue Dist #1 Camano GEN (EMS) | 0.4998471806 | $690,804 | $690,804 | $345.30 | | |
| FIRE1 | Fire & Rescue Dist #1 Camano GEN | 1.2496603404 | $690,804 | $690,804 | $863.27 | | |
| FIRE1BOND | Fire & Rescue Dist #1 Camano BOND | 0.1630371212 | $690,804 | $690,804 | $112.63 | | |
| CE | County Current Expense | 0.3674210519 | $690,804 | $690,804 | $253.82 | | |
| CR | County Roads | 0.4614296361 | $690,804 | $690,804 | $318.76 | | |
| LIB | Library Sno-Isle GEN | 0.3039084203 | $690,804 | $690,804 | $209.94 | | |
| SCH205_401 | School 205-401 Enrichment | 1.3697998934 | $690,804 | $690,804 | $946.26 | | |
| SCH205BOND | School 205-401 BOND | 0.9354199323 | $690,804 | $690,804 | $646.19 | | |
| ST | State School | 1.4761226122 | $690,804 | $690,804 | $1,019.71 | | |
| ST2 | State School Part 2 | 0.7953803475 | $690,804 | $690,804 | $549.45 | | |
| | Total Tax Rate: | 7.6534262019 | | | | | |
| | | | | Taxes w/Current Exemptions: | $5,287.02 | | |
| | | | | Taxes w/o Exemptions: | $5,287.02 | | |
Improvement / Building
| Improvement #1: | RESIDENTIAL | State Code: | Y | 2352.0 sqft | Value: | $340,804 |
| Bathrooms: | 2 | Bedrooms: | 4 | | Ceiling: | DRYWALL PAINTED | Exterior Wall/Cover: | PLY/HARDBOARD T-111 | | Floor Covering: | CARPET/VINYL 80-20 | Floor Structure: | WOOD W/SUBFLOOR | | Foundation: | CONCRETE | Heating: | FHA ELECTRIC | | Interior Finish: | DRYWALL PAINT | Plumbing Fixture Cnt: | 12 | | Roof Slope: | 5" IN 12" | Roof Structure/Cover: | CJ ASPHALT |
|
| | Type | Description | Class CD | Sub Class CD | Year Built | Area |
| | BAS | BASE/MAIN FLOOR | 3 | 0 | 1978 | 1392.0 |
| | DWN | DOWNSTAIRS LIVING AREA | 3 | 0 | 1978 | 960.0 |
| | UTY | STORAGE/UTILITY | 3 | 0 | 1978 | 164.0 |
| | OWP | OPEN WOOD PORCH W/STEPS | 3 | 0 | 1978 | 400.0 |
| | OWC | OPEN WOOD PORCH W/STEPS/ROOF/C | 3 | 0 | 1978 | 72.0 |
Sketch
Property Image
Land
| 1 | HB | HIGH BLUFF | 0.0000 | 0.00 | 0.00 | 0.00 | 1.00 | $350,000 | $0 |
Roll Value History
| 2026 | N/A | N/A | N/A | N/A | N/A |
| 2025 | $340,804 | $350,000 | $0 | $690,804 | $690,804 |
| 2024 | $320,816 | $350,000 | $0 | $670,816 | $670,816 |
| 2023 | $324,814 | $275,000 | $0 | $599,814 | $599,814 |
| 2022 | $297,738 | $250,000 | $0 | $547,738 | $547,738 |
| 2021 | $255,767 | $200,000 | $0 | $455,767 | $455,767 |
| 2020 | $249,496 | $200,000 | $0 | $449,496 | $449,496 |
| 2019 | $192,195 | $275,000 | $0 | $467,195 | $467,195 |
| 2018 | $190,157 | $250,000 | $0 | $440,157 | $440,157 |
| 2017 | $191,323 | $125,000 | $0 | $316,323 | $316,323 |
| 2016 | $193,657 | $125,000 | $0 | $318,657 | $318,657 |
| 2015 | $157,884 | $80,000 | $0 | $237,884 | $237,884 |
| 2014 | $160,021 | $80,000 | $0 | $240,021 | $240,021 |
| 2013 | $162,158 | $83,200 | $0 | $245,358 | $245,358 |
| 2012 | $164,292 | $83,200 | $0 | $247,492 | $247,492 |
| 2011 | $166,427 | $130,000 | $0 | $296,427 | $296,427 |
| 2010 | $169,158 | $130,000 | $0 | $299,158 | $299,158 |
| 2009 | $169,516 | $90,000 | $0 | $259,516 | $259,516 |
| 2008 | $169,588 | $175,000 | $0 | $344,588 | $344,588 |
| 2007 | $171,770 | $175,000 | $0 | $346,770 | $346,770 |
Deed and Sales History
| 1 | 06/22/2019 | QCD | Quit Claim Deed | OTHMAN-WARREN, MARIA D | OTHMAN-WARREN, MARIA | | | $0.00 | 44347 | 4494433 |
| 2 | 10/16/2018 | WD | Warranty Deed | HONG, JONG MI | OTHMAN-WARREN, MARIA D | | | $467,000.00 | 36322 | 4453563 |
| 3 | 06/28/2005 | WD | Warranty Deed | HONG, JONG MI | HONG, JONG MI | | | $380,000.00 | 53168 | 4139705 |
| 4 | 06/28/2005 | ESTSEPPROP | Establish Separate Property | WHITAKER, JAMES MICHAEL | HONG, JONG MI | | | $0.00 | 53167 | 4139704 |
| 5 | 03/28/2000 | WD | Warranty Deed | LEE, SEUNG H | WHITAKER, JAMES MICHAEL | | | $285,000.00 | 1151 | 20005636 |
| 6 | 03/01/1993 | WD | Warranty Deed | CRUICKSHANK, JAMES A | LEE, SEUNG H | | | $153,000.00 | 30860 | 93004532 |
| 7 | 01/01/1900 | OTHER | Other - Misc. Documents | Unknown | CRUICKSHANK, JAMES A | | | $0.00 | 0 | 0 |
Payout Agreement
| No payout information available.. |