Property
Account |
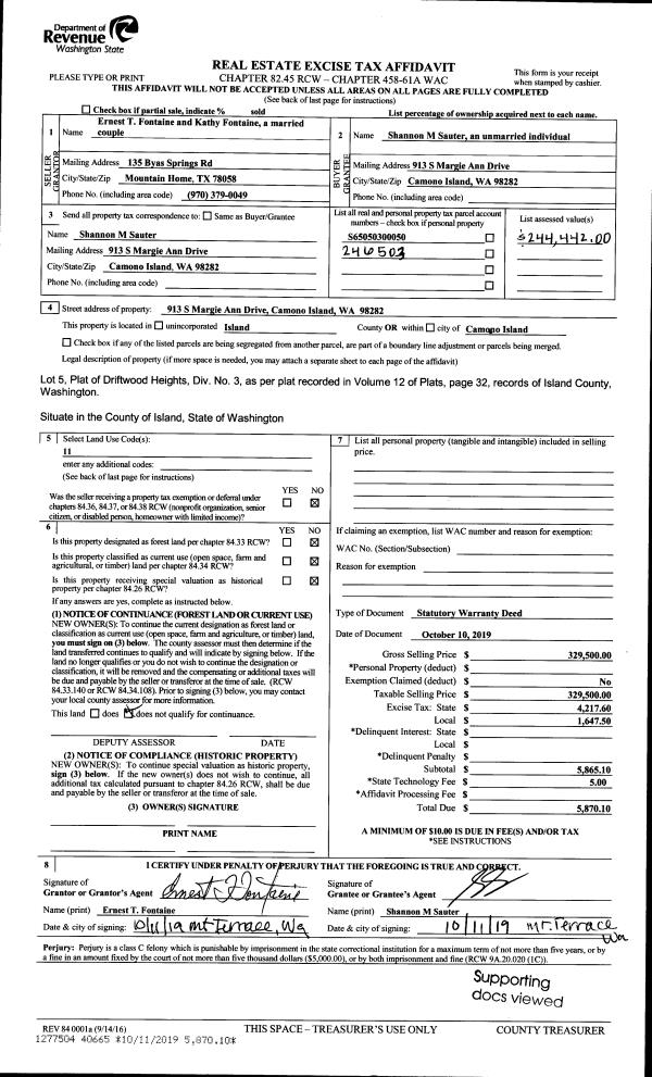
| Property ID: | 246503 | Abbreviated Legal Description: | DRIFTWOOD HTS 3 LOT 5 |
| Geographic ID: | S6505-03-00005-0 | Agent Code: | |
| Type: | Real | | |
| Tax Area: | 510 - APPRAISER-Stan/Cam Schl Dist, improved & 1 acre or less | Land Use Code | 11 |
| Open Space: | N | DFL | N |
| Historic Property: | N | Remodel Property: | N |
| Multi-Family Redevelopment: | N | | |
| Township: | | Section: | |
| Range: | |
Location |
| Address: | 913 MARGIE ANN DR CAMANO ISLAND, WA 98282 | Mapsco: | |
| Neighborhood: | Cycle 5 | Map ID: | 928 |
| Neighborhood CD: | 5 |
Owner |
| Name: | SAUTER, SHANNON M | Owner ID: | 292188 |
| Mailing Address: | 913 S MARGIE ANN DR CAMANO ISLAND, WA 98282 | % Ownership: | 100.0000000000% |
| | | Exemptions: | |
Taxes and Assessment Details
Values
| (+) Improvement Homesite Value: | + | $0 | |
| (+) Improvement Non-Homesite Value: | + | $155,669 | |
| (+) Land Homesite Value: | + | $0 | |
| (+) Land Non-Homesite Value: | + | $230,000 | |
| (+) Curr Use (HS): | + | $0 | $0 |
| (+) Curr Use (NHS): | + | $0 | $0 |
| | | -------------------------- | |
| (=) Market Value: | = | $385,669 | |
| (–) Productivity Loss: | – | $0 | |
| | | -------------------------- | |
| (=) Subtotal: | = | $385,669 | |
| (+) Senior Appraised Value: | + | $0 | |
| (+) Non-Senior Appraised Value: | + | $385,669 | |
| | | -------------------------- | |
| (=) Total Appraised Value: | = | $385,669 | |
| (–) Senior Exemption Loss: | – | $0 | |
| (–) Exemption Loss: | – | $0 | |
| | | -------------------------- | |
| (=) Taxable Value: | = | $385,669 | |
Taxing Jurisdiction
| Owner: | SAUTER, SHANNON M | | |
| % Ownership: | 100.0000000000% | | |
| Total Value: | $385,669 | | |
| Tax Area: | 510 - APPRAISER-Stan/Cam Schl Dist, improved & 1 acre or less |
| CF | Conservation Futures | 0.0313996660 | $385,669 | $385,669 | $12.11 | | |
| EMS1 | Fire & Rescue Dist #1 Camano GEN (EMS) | 0.4998471806 | $385,669 | $385,669 | $192.78 | | |
| FIRE1 | Fire & Rescue Dist #1 Camano GEN | 1.2496603404 | $385,669 | $385,669 | $481.96 | | |
| FIRE1BOND | Fire & Rescue Dist #1 Camano BOND | 0.1630371212 | $385,669 | $385,669 | $62.88 | | |
| CE | County Current Expense | 0.3674210519 | $385,669 | $385,669 | $141.70 | | |
| CR | County Roads | 0.4614296361 | $385,669 | $385,669 | $177.96 | | |
| LIB | Library Sno-Isle GEN | 0.3039084203 | $385,669 | $385,669 | $117.21 | | |
| SCH205_401 | School 205-401 Enrichment | 1.3697998934 | $385,669 | $385,669 | $528.29 | | |
| SCH205BOND | School 205-401 BOND | 0.9354199323 | $385,669 | $385,669 | $360.76 | | |
| ST | State School | 1.4761226122 | $385,669 | $385,669 | $569.29 | | |
| ST2 | State School Part 2 | 0.7953803475 | $385,669 | $385,669 | $306.75 | | |
| | Total Tax Rate: | 7.6534262019 | | | | | |
| | | | | Taxes w/Current Exemptions: | $2,951.69 | | |
| | | | | Taxes w/o Exemptions: | $2,951.69 | | |
Improvement / Building
| Improvement #1: | MANUFACTURED HOME | State Code: | Y | 1512.0 sqft | Value: | $155,669 |
| Bathrooms: | 2 | Bedrooms: | 2 | | Ceiling: | PLASTER PAINTED | Cooling: | EVAP NO DUCT | | Exterior Wall/Cover: | VINYL | Floor Covering: | CARPET 100% | | Floor Structure: | SLAB ON GRADE | Foundation: | SLAB | | Heating: | FHA ELECTRIC | Interior Finish: | PLASTER | | Plumbing Fixture Cnt: | 1 | Roof Slope: | FLAT | | Roof Structure/Cover: | CJ ALUMINIUM HEAVY |   |   |
|
| | Type | Description | Class CD | Sub Class CD | Year Built | Area |
| | BAS | BASE/MAIN FLOOR | 4 | 0 | 1990 | 1512.0 |
| | OWR | OPEN WOOD PORCH W/STEPS/ROOF | 4 | 0 | 1990 | 81.0 |
| | OWP | OPEN WOOD PORCH W/STEPS | 4 | 0 | 1990 | 714.0 |
| | DGR | DETACHED GARAGE | 4 | 0 | 1990 | 504.0 |
Sketch
Property Image
Land
| 1 | 16 | AC (00.51-01.00) | 0.0000 | 0.00 | 0.00 | 0.00 | 1.00 | $230,000 | $0 |
Roll Value History
| 2026 | N/A | N/A | N/A | N/A | N/A |
| 2025 | $155,669 | $230,000 | $0 | $385,669 | $385,669 |
| 2024 | $157,832 | $210,000 | $0 | $367,832 | $367,832 |
| 2023 | $141,008 | $230,000 | $0 | $371,008 | $371,008 |
| 2022 | $131,092 | $200,000 | $0 | $331,092 | $331,092 |
| 2021 | $111,031 | $140,000 | $0 | $251,031 | $251,031 |
| 2020 | $110,671 | $120,000 | $0 | $230,671 | $230,671 |
| 2019 | $89,442 | $155,000 | $0 | $244,442 | $244,442 |
| 2018 | $91,708 | $140,000 | $0 | $231,708 | $231,708 |
| 2017 | $93,972 | $90,000 | $0 | $183,972 | $183,972 |
| 2016 | $96,236 | $65,000 | $0 | $161,236 | $161,236 |
| 2015 | $73,265 | $50,000 | $0 | $123,265 | $123,265 |
| 2014 | $74,897 | $50,000 | $0 | $124,897 | $49,959 |
| 2013 | $76,529 | $52,000 | $0 | $128,529 | $51,412 |
| 2012 | $78,161 | $52,000 | $0 | $130,161 | $52,064 |
| 2011 | $79,793 | $84,000 | $0 | $163,793 | $65,517 |
| 2010 | $79,416 | $84,000 | $0 | $163,416 | $65,366 |
| 2009 | $81,408 | $110,000 | $0 | $191,408 | $76,563 |
| 2008 | $84,245 | $111,674 | $0 | $195,919 | $124,415 |
| 2007 | $86,393 | $112,000 | $0 | $198,393 | $198,393 |
Deed and Sales History
| 1 | 10/10/2019 | WD | Warranty Deed | FONTAINE, ERNEST T | SAUTER, SHANNON M | | | $329,500.00 | 40665 | 4473231 |
| 2 | 09/23/2015 | WD | Warranty Deed | BERGER, ELEANOR D | FONTAINE, ERNEST T | | | $199,096.00 | 21553 | 4386843 |
| 3 | 09/01/1990 | OTHER | Other - Misc. Documents | BERGER, ELEANOR D | BERGER, ELEANOR D | | | $44,995.00 | 11111111 | 0 |
| 4 | 12/01/1989 | WD | Warranty Deed | FREDERICKS, BARBARA J | BERGER, ELEANOR D | | | $18,000.00 | 95787 | 89018553 |
| 5 | 01/01/1900 | OTHER | Other - Misc. Documents | Unknown | FREDERICKS, BARBARA J | | | $0.00 | 0 | 0 |
Payout Agreement
| No payout information available.. |