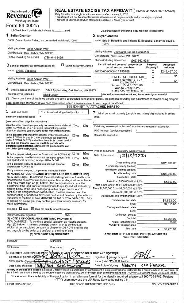
| 1 | 12/10/2021 | WD | Warranty Deed | PATINO, CESAR JUNIOR | BOBADILLA, ERIC B | | | $423,000.00 | 51397 | 4536284 |
| 2 | 10/21/2019 | QCD | Quit Claim Deed | PRIETOS, JUCELLE | PATINO, CESAR JUNIOR | | | $0.00 | 41154 | 4475844 |
| 3 | 11/18/2019 | WD | Warranty Deed | JOHNSON, JONATHAN R. | PATINO, CESAR JUNIOR | | | $300,000.00 | 41153 | 4475842 |
| 4 | 12/13/2016 | WD | Warranty Deed | WESTGATE MOBILE HOMES, INC. | JOHNSON, JONATHAN R. | | | $228,745.00 | 27368 | 4413417 |
| 5 | 05/06/2016 | WD | Warranty Deed | NORTHWEST BAPTIST FOUNDATION | WESTGATE MOBILE HOMES, INC. | | | $50,000.00 | 24198 | 4398836 |
| 6 | 01/16/2015 | WD | Warranty Deed | OAK HARBOR SOUTHERN BAPTIST CHURCH | NORTHWEST BAPTIST FOUNDATION | | | $0.00 | 19980 | 4380147 |
| 7 | 07/24/2014 | PRD | Personal Representatives Deed | RUSSELL, JAMES D | OAK HARBOR SOUTHERN BAPTIST CHURCH | | | $0.00 | 16259 | 4363311 |
| 8 | 12/01/1982 | OTHER | Other - Misc. Documents | RUSSELL, JAMES D | RUSSELL, JAMES D | | | $8,000.00 | 23050 | 0 |
| 9 | 12/01/1982 | REC | Real Estate Contract | VANCIL, LLOYD E | RUSSELL, JAMES D | | | $12,000.00 | 23049 | 403943 |
| 10 | 06/01/1981 | OTHER | Other - Misc. Documents | VANCIL, LLOYD E | VANCIL, LLOYD E | | | $1.00 | 11922 | 0 |
| 11 | 01/01/1900 | OTHER | Other - Misc. Documents | VANCIL, LLOYD E | VANCIL, LLOYD E | | | $0.00 | 0 | 0 |
| 12 | 01/01/1900 | OTHER | Other - Misc. Documents | Unknown | VANCIL, LLOYD E | | | $0.00 | 0 | 0 |