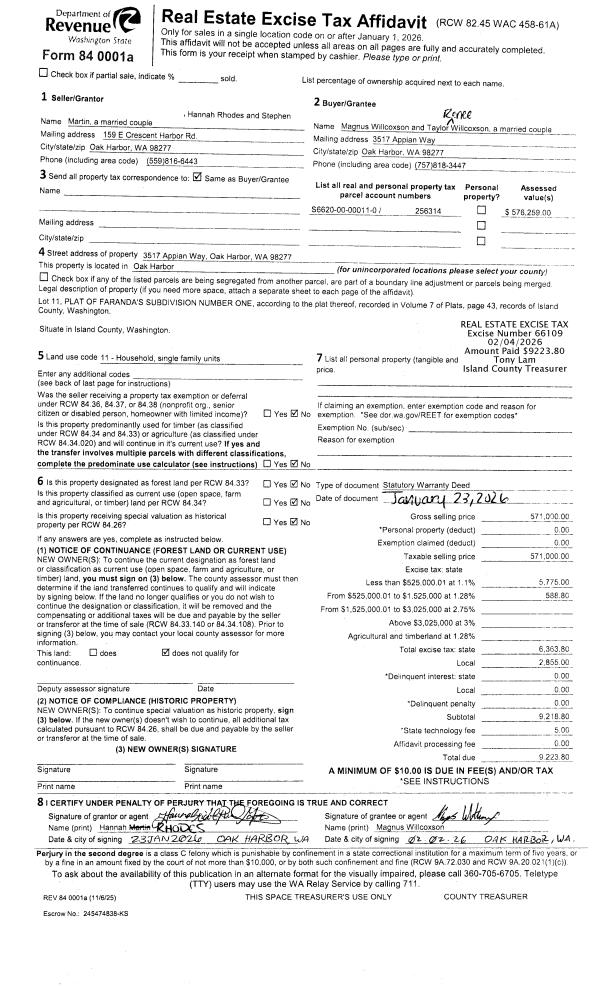
Property
Account |
| Property ID: | 256314 | Abbreviated Legal Description: | FARANDAS LOT 11 |
| Geographic ID: | S6620-00-00011-0 | Agent Code: | |
| Type: | Real | | |
| Tax Area: | 110 - APPRAISER-OH Schl Dist, outside OH, improved & 1 acre or less | Land Use Code | 11 |
| Open Space: | N | DFL | N |
| Historic Property: | N | Remodel Property: | N |
| Multi-Family Redevelopment: | N | | |
| Township: | | Section: | |
| Range: | |
Location |
| Address: | 3517 APPIAN WAY OAK HARBOR, WA 98277 | Mapsco: | |
| Neighborhood: | Cycle 6 | Map ID: | 610 |
| Neighborhood CD: | 6 |
Owner |
| Name: | RHODES, HANNAH | Owner ID: | 301448 |
| Mailing Address: | STEPHEN MARTIN 3517 APPIAN WAY OAK HARBOR, WA 98277 | % Ownership: | 100.0000000000% |
| | | Exemptions: | |
Taxes and Assessment Details
Values
| (+) Improvement Homesite Value: | + | $0 | |
| (+) Improvement Non-Homesite Value: | + | $376,259 | |
| (+) Land Homesite Value: | + | $0 | |
| (+) Land Non-Homesite Value: | + | $200,000 | |
| (+) Curr Use (HS): | + | $0 | $0 |
| (+) Curr Use (NHS): | + | $0 | $0 |
| | | -------------------------- | |
| (=) Market Value: | = | $576,259 | |
| (–) Productivity Loss: | – | $0 | |
| | | -------------------------- | |
| (=) Subtotal: | = | $576,259 | |
| (+) Senior Appraised Value: | + | $0 | |
| (+) Non-Senior Appraised Value: | + | $576,259 | |
| | | -------------------------- | |
| (=) Total Appraised Value: | = | $576,259 | |
| (–) Senior Exemption Loss: | – | $0 | |
| (–) Exemption Loss: | – | $0 | |
| | | -------------------------- | |
| (=) Taxable Value: | = | $576,259 | |
Taxing Jurisdiction
| Owner: | RHODES, HANNAH | | |
| % Ownership: | 100.0000000000% | | |
| Total Value: | $576,259 | | |
| Tax Area: | 110 - APPRAISER-OH Schl Dist, outside OH, improved & 1 acre or less |
| CF | Conservation Futures | 0.0313996660 | $576,259 | $576,259 | $18.09 | | |
| CEM1 | Cemetery #1 | 0.0040018856 | $576,259 | $576,259 | $2.31 | | |
| FIRE2 | Fire & Rescue Dist #2 N Whidbey GEN | 0.5381486274 | $576,259 | $576,259 | $310.11 | | |
| HOBOND | Hospital BOND | 0.1893405597 | $576,259 | $576,259 | $109.11 | | |
| HOGEN | Hospital GEN | 0.3848777722 | $576,259 | $576,259 | $221.79 | | |
| CE | County Current Expense | 0.3674210519 | $576,259 | $576,259 | $211.73 | | |
| CR | County Roads | 0.4614296361 | $576,259 | $576,259 | $265.90 | | |
| ISLANDEMS | Hospital GEN (EMS) | 0.4952018576 | $576,259 | $576,259 | $285.36 | | |
| LIB | Library Sno-Isle GEN | 0.3039084203 | $576,259 | $576,259 | $175.13 | | |
| NWHIDPRMT | P & R N Whidbey GEN | 0.1990272349 | $576,259 | $576,259 | $114.69 | | |
| SCH201MO | School 201 Enrichment | 2.3851112745 | $576,259 | $576,259 | $1,374.44 | | |
| ST | State School | 1.4761226122 | $576,259 | $576,259 | $850.63 | | |
| ST2 | State School Part 2 | 0.7953803475 | $576,259 | $576,259 | $458.35 | | |
| | Total Tax Rate: | 7.6313709459 | | | | | |
| | | | | Taxes w/Current Exemptions: | $4,397.64 | | |
| | | | | Taxes w/o Exemptions: | $4,397.64 | | |
Improvement / Building
| Improvement #1: | RESIDENTIAL | State Code: | Y | 1940.0 sqft | Value: | $376,259 |
| Bathrooms: | 2.5 | Bedrooms: | 3 | | Ceiling: | DRYWALL PAINTED | Cooling: | HEAT PUMP/CONV/V | | Exterior Wall/Cover: | PLY/HARDBOARD T-111 | Floor Covering: | CARPET/VINYL 20-80 | | Floor Structure: | WOOD W/SUBFLOOR | Foundation: | CONCRETE | | Interior Finish: | DRYWALL PAINT | Plumbing Fixture Cnt: | 13 | | Roof Slope: | 4" IN 12" | Roof Structure/Cover: | CJ ASPHALT |
|
| | Type | Description | Class CD | Sub Class CD | Year Built | Area |
| | BAS | BASE/MAIN FLOOR | 3 | 0 | 1995 | 1060.0 |
| | OWP | OPEN WOOD PORCH W/STEPS | 3 | 0 | 1995 | 406.0 |
| | AGR | ATTACHED GARAGE | 3 | 0 | 1995 | 576.0 |
| | UPS | UPPER STORY | 3 | 0 | 1995 | 880.0 |
| | OWC | OPEN WOOD PORCH W/STEPS/ROOF/C | 3 | 0 | 1995 | 304.0 |
| | oPOL | POLE BARN | 3 | 0 | 1995 | 1080.0 |
Sketch
Property Image
Land
| 1 | 16 | AC (00.51-01.00) | 0.6800 | 29620.80 | 0.00 | 0.00 | 1.00 | $200,000 | $0 |
Roll Value History
| 2026 | N/A | N/A | N/A | N/A | N/A |
| 2025 | $376,259 | $200,000 | $0 | $576,259 | $576,259 |
| 2024 | $380,520 | $200,000 | $0 | $580,520 | $580,520 |
| 2023 | $384,780 | $200,000 | $0 | $584,780 | $584,780 |
| 2022 | $352,724 | $200,000 | $0 | $552,724 | $552,724 |
| 2021 | $306,699 | $140,000 | $0 | $446,699 | $446,699 |
| 2020 | $298,515 | $140,000 | $0 | $438,515 | $438,515 |
| 2019 | $223,392 | $160,000 | $0 | $383,392 | $383,392 |
| 2018 | $224,047 | $150,000 | $0 | $374,047 | $374,047 |
| 2017 | $225,356 | $125,000 | $0 | $350,356 | $350,356 |
| 2016 | $181,224 | $90,000 | $0 | $271,224 | $271,224 |
| 2015 | $183,482 | $85,000 | $0 | $268,482 | $268,482 |
| 2014 | $192,486 | $80,000 | $0 | $272,486 | $272,486 |
| 2013 | $194,792 | $80,750 | $0 | $275,542 | $275,542 |
| 2012 | $197,098 | $80,750 | $0 | $277,848 | $277,848 |
| 2011 | $199,405 | $95,000 | $0 | $294,405 | $294,405 |
| 2010 | $205,981 | $95,000 | $0 | $300,981 | $300,981 |
| 2009 | $215,339 | $105,000 | $0 | $320,339 | $320,339 |
| 2008 | $218,741 | $107,115 | $0 | $325,856 | $325,856 |
| 2007 | $222,165 | $107,115 | $0 | $329,280 | $329,280 |
Deed and Sales History
| 1 | 01/23/2026 | WD | Warranty Deed | RHODES, HANNAH | WILCOXSON, MAGNUS | | | $571,000.00 | 66109 | 4596459 |
| 2 | 10/01/2021 | WD | Warranty Deed | HUFF, LETISHA L | RHODES, HANNAH | | | $504,000.00 | 50321 | 4530622 |
| 3 | 06/15/2020 | WD | Warranty Deed | CORTEZ, LEE | HUFF, LETISHA L | | | $445,000.00 | 43517 | 4489683 |
| 4 | 05/27/2016 | WD | Warranty Deed | DYER, KORY A | CORTEZ, LEE | | | $315,000.00 | 24541 | 4400259 |
| 5 | 09/11/2014 | WD | Warranty Deed | OLDEMEYER, CINDRA | DYER, KORY A | | | $220,000.00 | 16779 | 4365409 |
| 6 | 09/14/2011 | DECREE | Divorce Decree/Legal Separation | OLDEMEYER, STEVEN G / CINDRA | OLDEMEYER, CINDRA | | | $0.00 | 5659 | 4301939 |
| 7 | 02/01/1997 | WD | Warranty Deed | CROMER, LINDA S | OLDEMEYER, STEVEN G | | | $154,900.00 | 70425 | 97001961 |
| 8 | 05/01/1994 | QCD | Quit Claim Deed | KINGS-MEN, CONSTRUCTION I | CROMER, LINDA S | | | $0.00 | 41973 | 94011534 |
| 9 | 08/01/1993 | QCD | Quit Claim Deed | CROMER, LINDA S | KINGS-MEN, CONSTRUCTION I | | | $0.00 | 33037 | 93015755 |
| 10 | 06/01/1993 | WD | Warranty Deed | KESTER, ROBERT E | CROMER, LINDA S | | | $16,500.00 | 32195 | 93011328 |
| 11 | 04/01/1988 | WD | Warranty Deed | POWERS, BARBARA D | KESTER, ROBERT E | | | $17,850.00 | 81334 | 88005023 |
| 12 | 08/01/1978 | OTHER | Other - Misc. Documents | , | POWERS, BARBARA D | | | $0.00 | 83874 | 3379140 |
Payout Agreement
| No payout information available.. |