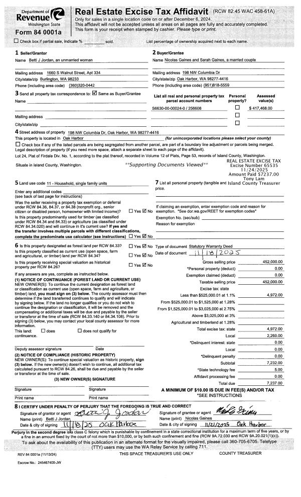
Property
Account |
| Property ID: | 256608 | Abbreviated Legal Description: | FIRDALE LOT 24 |
| Geographic ID: | S6630-00-00024-0 | Agent Code: | |
| Type: | Real | | |
| Tax Area: | 100 - APPRAISER-OH Schl Dist, in OH | Land Use Code | 11 |
| Open Space: | N | DFL | N |
| Historic Property: | N | Remodel Property: | N |
| Multi-Family Redevelopment: | N | | |
| Township: | | Section: | |
| Range: | |
Location |
| Address: | 198 NW COLUMBIA DR OAK HARBOR, WA 98277 | Mapsco: | |
| Neighborhood: | Cycle 1 | Map ID: | 253 |
| Neighborhood CD: | 1 |
Owner |
| Name: | JORDAN, JERRY | Owner ID: | 76561 |
| Mailing Address: | BETTI J JORDAN JTWRS 198 NW COLUMBIA DR OAK HARBOR, WA 98277-4416 | % Ownership: | 100.0000000000% |
| | | Exemptions: | |
Taxes and Assessment Details
Values
| (+) Improvement Homesite Value: | + | $0 | |
| (+) Improvement Non-Homesite Value: | + | $227,468 | |
| (+) Land Homesite Value: | + | $0 | |
| (+) Land Non-Homesite Value: | + | $190,000 | |
| (+) Curr Use (HS): | + | $0 | $0 |
| (+) Curr Use (NHS): | + | $0 | $0 |
| | | -------------------------- | |
| (=) Market Value: | = | $417,468 | |
| (–) Productivity Loss: | – | $0 | |
| | | -------------------------- | |
| (=) Subtotal: | = | $417,468 | |
| (+) Senior Appraised Value: | + | $0 | |
| (+) Non-Senior Appraised Value: | + | $417,468 | |
| | | -------------------------- | |
| (=) Total Appraised Value: | = | $417,468 | |
| (–) Senior Exemption Loss: | – | $0 | |
| (–) Exemption Loss: | – | $0 | |
| | | -------------------------- | |
| (=) Taxable Value: | = | $417,468 | |
Taxing Jurisdiction
| Owner: | JORDAN, JERRY | | |
| % Ownership: | 100.0000000000% | | |
| Total Value: | $417,468 | | |
| Tax Area: | 100 - APPRAISER-OH Schl Dist, in OH |
| CF | Conservation Futures | 0.0313996660 | $417,468 | $417,468 | $13.11 | | |
| CEM1 | Cemetery #1 | 0.0040018856 | $417,468 | $417,468 | $1.67 | | |
| COH | City of Oak Harbor | 2.3090730572 | $417,468 | $417,468 | $963.96 | | |
| OAKBOND | City of Oak Harbor BOND | 0.1902260131 | $417,468 | $417,468 | $79.41 | | |
| HOBOND | Hospital BOND | 0.1893405597 | $417,468 | $417,468 | $79.04 | | |
| HOGEN | Hospital GEN | 0.3848777722 | $417,468 | $417,468 | $160.67 | | |
| CE | County Current Expense | 0.3674210519 | $417,468 | $417,468 | $153.39 | | |
| ISLANDEMS | Hospital GEN (EMS) | 0.4952018576 | $417,468 | $417,468 | $206.73 | | |
| LIB | Library Sno-Isle GEN | 0.3039084203 | $417,468 | $417,468 | $126.87 | | |
| NWHIDPRMT | P & R N Whidbey GEN | 0.1990272349 | $417,468 | $417,468 | $83.09 | | |
| SCH201MO | School 201 Enrichment | 2.3851112745 | $417,468 | $417,468 | $995.71 | | |
| ST | State School | 1.4761226122 | $417,468 | $417,468 | $616.23 | | |
| ST2 | State School Part 2 | 0.7953803475 | $417,468 | $417,468 | $332.05 | | |
| | Total Tax Rate: | 9.1310917527 | | | | | |
| | | | | Taxes w/Current Exemptions: | $3,811.93 | | |
| | | | | Taxes w/o Exemptions: | $3,811.93 | | |
Improvement / Building
| Improvement #1: | RESIDENTIAL | State Code: | Y | 1456.0 sqft | Value: | $227,468 |
| Bathrooms: | 2.5 | Bedrooms: | 3 | | Ceiling: | DRY WALL SPRAYED | Exterior Wall/Cover: | PLY/HARDBOARD T-111 | | Floor Covering: | CARPET/VINYL 80-20 | Floor Structure: | WOOD W/SUBFLOOR | | Foundation: | CONCRETE | Heating: | BASEBOARD ELECTRIC | | Interior Finish: | DRYWALL PAINT | Plumbing Fixture Cnt: | 12 | | Roof Slope: | 5" IN 12" | Roof Structure/Cover: | CJ ASPHALT |
|
| | Type | Description | Class CD | Sub Class CD | Year Built | Area |
| | BAS | BASE/MAIN FLOOR | 3 | 0 | 1978 | 728.0 |
| | OP4 | OPEN PORCH W/CEILING-ROOF | 3 | 0 | 1978 | 102.0 |
| | OP4 | OPEN PORCH W/CEILING-ROOF | 3 | 0 | 1978 | 112.0 |
| | AGR | ATTACHED GARAGE | 3 | 0 | 1978 | 364.0 |
| | UPS | UPPER STORY | 3 | 0 | 1978 | 728.0 |
Sketch
Property Image
Land
| 1 | 15 | SQ (12001-21780) | 0.0000 | 0.00 | 0.00 | 0.00 | 1.00 | $190,000 | $0 |
Roll Value History
| 2026 | N/A | N/A | N/A | N/A | N/A |
| 2025 | $227,468 | $190,000 | $0 | $417,468 | $417,468 |
| 2024 | $235,191 | $180,000 | $0 | $415,191 | $415,191 |
| 2023 | $232,106 | $190,000 | $0 | $422,106 | $422,106 |
| 2022 | $212,968 | $180,000 | $0 | $392,968 | $392,968 |
| 2021 | $187,619 | $130,000 | $0 | $317,619 | $317,619 |
| 2020 | $182,450 | $100,000 | $0 | $282,450 | $282,450 |
| 2019 | $130,127 | $150,000 | $0 | $280,127 | $280,127 |
| 2018 | $130,538 | $130,000 | $0 | $260,538 | $260,538 |
| 2017 | $105,563 | $110,000 | $0 | $215,563 | $215,563 |
| 2016 | $107,161 | $90,000 | $0 | $197,161 | $197,161 |
| 2015 | $108,762 | $70,000 | $0 | $178,762 | $178,762 |
| 2014 | $110,360 | $55,000 | $0 | $165,360 | $165,360 |
| 2013 | $111,959 | $55,000 | $0 | $166,959 | $166,959 |
| 2012 | $113,559 | $65,000 | $0 | $178,559 | $178,559 |
| 2011 | $113,130 | $65,000 | $0 | $178,130 | $178,130 |
| 2010 | $122,795 | $65,000 | $0 | $187,795 | $187,795 |
| 2009 | $128,072 | $90,000 | $0 | $218,072 | $218,072 |
| 2008 | $129,809 | $95,000 | $0 | $224,809 | $224,809 |
| 2007 | $131,576 | $95,000 | $0 | $226,576 | $226,576 |
Deed and Sales History
| 1 | 11/18/2025 | WD | Warranty Deed | JORDAN, JERRY | GAINES, NICOLAS | | | $452,000.00 | 65535 | 4593808 |
| 2 | 04/01/1993 | WD | Warranty Deed | HICKS, TERRY G | JORDAN, JERRY & | | | $107,500.00 | 31128 | 93005696 |
| 3 | 08/01/1982 | WD | Warranty Deed | ORR, FRANKIE L | HICKS, TERRY G | | | $81,950.00 | 21850 | 399115 |
| 4 | 08/01/1979 | WD | Warranty Deed | HALL, EUGENE | ORR, FRANKIE L | | | $63,500.00 | 94009 | 357284 |
| 5 | 05/01/1979 | QCD | Quit Claim Deed | HAWLEY, LYNNETTE A | HALL, EUGENE | | | $2,298.00 | 928110 | 3537030 |
| 6 | 02/01/1979 | OTHER | Other - Misc. Documents | Unknown | HAWLEY, LYNNETTE A | | | $0.00 | 907410 | 3477340 |
Payout Agreement
| No payout information available.. |