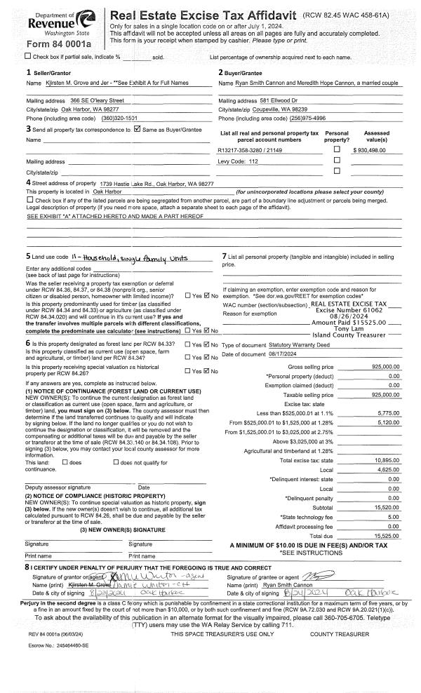
Property
Account |
| Property ID: | 262511 | Abbreviated Legal Description: | GREENBK BCH N83.58' OF S158.58' OF TRACT A INCL ADJ TIDES EX CORD 98D449 |
| Geographic ID: | S7040-00-00A03-0 | Agent Code: | |
| Type: | Real | | |
| Tax Area: | 310 - APPRAISER-Cpvl Schl Dist, outside Cpvl, improved & 1 acre or less | Land Use Code | 11 |
| Open Space: | N | DFL | N |
| Historic Property: | N | Remodel Property: | N |
| Multi-Family Redevelopment: | N | | |
| Township: | | Section: | |
| Range: | |
Location |
| Address: | 2829 NORTH BLUFF RD GREENBANK, WA 98253 | Mapsco: | |
| Neighborhood: | Cycle 3 | Map ID: | 368 |
| Neighborhood CD: | 3 |
Owner |
| Name: | 2829 NORTH BLUFF ROAD, LLC | Owner ID: | 313834 |
| Mailing Address: | 6545 A 34TH AVE NE SEATTLE, WA 98115 | % Ownership: | 100.0000000000% |
| | | Exemptions: | |
Taxes and Assessment Details
Values
| (+) Improvement Homesite Value: | + | $0 | |
| (+) Improvement Non-Homesite Value: | + | $682,778 | |
| (+) Land Homesite Value: | + | $0 | |
| (+) Land Non-Homesite Value: | + | $650,830 | |
| (+) Curr Use (HS): | + | $0 | $0 |
| (+) Curr Use (NHS): | + | $0 | $0 |
| | | -------------------------- | |
| (=) Market Value: | = | $1,333,608 | |
| (–) Productivity Loss: | – | $0 | |
| | | -------------------------- | |
| (=) Subtotal: | = | $1,333,608 | |
| (+) Senior Appraised Value: | + | $0 | |
| (+) Non-Senior Appraised Value: | + | $1,333,608 | |
| | | -------------------------- | |
| (=) Total Appraised Value: | = | $1,333,608 | |
| (–) Senior Exemption Loss: | – | $0 | |
| (–) Exemption Loss: | – | $0 | |
| | | -------------------------- | |
| (=) Taxable Value: | = | $1,333,608 | |
Taxing Jurisdiction
| Owner: | 2829 NORTH BLUFF ROAD, LLC | | |
| % Ownership: | 100.0000000000% | | |
| Total Value: | $1,333,608 | | |
| Tax Area: | 310 - APPRAISER-Cpvl Schl Dist, outside Cpvl, improved & 1 acre or less |
| CF | Conservation Futures | 0.0313996660 | $1,333,608 | $1,333,608 | $41.87 | | |
| CEM2 | Cemetery #2 | 0.0092609791 | $1,333,608 | $1,333,608 | $12.35 | | |
| FIRE5 | Fire & Rescue Dist #5 C Whidbey GEN | 1.1892169230 | $1,333,608 | $1,333,608 | $1,585.95 | | |
| FIRE5BOND | Fire & Rescue Dist #5 C Whidbey BOND | 0.1394359503 | $1,333,608 | $1,333,608 | $185.95 | | |
| HOBOND | Hospital BOND | 0.1893405597 | $1,333,608 | $1,333,608 | $252.51 | | |
| HOGEN | Hospital GEN | 0.3848777722 | $1,333,608 | $1,333,608 | $513.28 | | |
| CE | County Current Expense | 0.3674210519 | $1,333,608 | $1,333,608 | $490.00 | | |
| CR | County Roads | 0.4614296361 | $1,333,608 | $1,333,608 | $615.37 | | |
| ISLANDEMS | Hospital GEN (EMS) | 0.4952018576 | $1,333,608 | $1,333,608 | $660.41 | | |
| LIB | Library Sno-Isle GEN | 0.3039084203 | $1,333,608 | $1,333,608 | $405.29 | | |
| LIBCAP | Library Sno-Isle BOND (Cap Fac Imp Area) | 0.0528562629 | $1,333,608 | $1,333,608 | $70.49 | | |
| POCOUP | Port of Coupeville GEN | 0.1065226063 | $1,333,608 | $1,333,608 | $142.06 | | |
| POCOUPIDD | Port of Coupeville IDD | 0.3353038577 | $1,333,608 | $1,333,608 | $447.16 | | |
| COUPSDTECH | School 204 CP (TECH) | 0.1215123397 | $1,333,608 | $1,333,608 | $162.05 | | |
| SCH204MO | School 204 Enrichment | 0.6416662518 | $1,333,608 | $1,333,608 | $855.73 | | |
| ST | State School | 1.4761226122 | $1,333,608 | $1,333,608 | $1,968.57 | | |
| ST2 | State School Part 2 | 0.7953803475 | $1,333,608 | $1,333,608 | $1,060.73 | | |
| | Total Tax Rate: | 7.1008570943 | | | | | |
| | | | | Taxes w/Current Exemptions: | $9,469.77 | | |
| | | | | Taxes w/o Exemptions: | $9,469.77 | | |
Improvement / Building
| Improvement #1: | RESIDENTIAL | State Code: | Y | 2538.2 sqft | Value: | $682,778 |
| Bathrooms: | 5.75 | Bedrooms: | 4 | | Ceiling: | DRYWALL PAINTED | Exterior Wall/Cover: | CEMENT FIBER | | Floor Covering: | HARDWOOD/CARP 80-20 | Floor Structure: | WOOD W/SUBFLOOR | | Foundation: | CONCRETE | Heating: | FHA GAS | | Interior Finish: | DRYWALL PAINT | Plumbing Fixture Cnt: | 22 | | Roof Slope: | 6" IN 12" | Roof Structure/Cover: | CJ ASPHALT |
|
| | Type | Description | Class CD | Sub Class CD | Year Built | Area |
| | BAS | BASE/MAIN FLOOR | 5 | 0 | 2007 | 1548.2 |
| | OP2 | OPEN PORCH W/STEPS | 5 | 0 | 2007 | 334.2 |
| | AGR | ATTACHED GARAGE | 5 | 0 | 2007 | 368.2 |
| | UPH | HALF STORY | 5 | 0 | 2007 | 990.0 |
| | OWP | OPEN WOOD PORCH W/STEPS | 5 | 0 | 2007 | 197.0 |
| | OWP | OPEN WOOD PORCH W/STEPS | 5 | 0 | 2007 | 24.8 |
| | OWP | OPEN WOOD PORCH W/STEPS | 5 | 0 | 2007 | 719.8 |
| | OWC | OPEN WOOD PORCH W/STEPS/ROOF/C | 5 | 0 | 2007 | 205.6 |
| | OWC | OPEN WOOD PORCH W/STEPS/ROOF/C | 5 | 0 | 2007 | 197.0 |
Sketch
Property Image
Land
| 1 | LB | LOW BANK | 0.6239 | 27177.08 | 86.00 | 0.00 | 1.00 | $650,000 | $0 |
| 2 | 55 | TIDES | 0.0000 | 0.00 | 83.00 | 0.00 | 1.00 | $830 | $0 |
Roll Value History
| 2026 | N/A | N/A | N/A | N/A | N/A |
| 2025 | $682,778 | $650,830 | $0 | $1,333,608 | $1,333,608 |
| 2024 | $690,605 | $650,830 | $0 | $1,341,435 | $1,341,435 |
| 2023 | $702,264 | $625,830 | $0 | $1,328,094 | $1,328,094 |
| 2022 | $641,243 | $500,830 | $0 | $1,142,073 | $1,142,073 |
| 2021 | $562,581 | $450,830 | $0 | $1,013,411 | $1,013,411 |
| 2020 | $543,232 | $400,830 | $0 | $944,062 | $944,062 |
| 2019 | $404,913 | $450,830 | $0 | $855,743 | $855,743 |
| 2018 | $406,048 | $450,830 | $0 | $856,878 | $856,878 |
| 2017 | $408,160 | $450,830 | $0 | $858,990 | $858,990 |
| 2016 | $412,709 | $450,830 | $0 | $863,539 | $863,539 |
| 2015 | $417,258 | $450,830 | $0 | $868,088 | $868,088 |
| 2014 | $421,808 | $450,830 | $0 | $872,638 | $872,638 |
| 2013 | $426,358 | $493,252 | $0 | $919,610 | $919,610 |
| 2012 | $430,906 | $493,252 | $0 | $924,158 | $924,158 |
| 2011 | $435,455 | $493,252 | $0 | $928,707 | $928,707 |
| 2010 | $436,722 | $493,252 | $0 | $929,974 | $929,974 |
| 2009 | $454,780 | $585,582 | $0 | $1,040,362 | $1,040,362 |
| 2008 | $455,124 | $554,805 | $0 | $1,009,929 | $1,009,929 |
| 2007 | $459,929 | $438,505 | $0 | $898,434 | $898,434 |
Deed and Sales History
| 1 | 08/29/2024 | QCD | Quit Claim Deed | JOHNSON, JANE A | 2829 NORTH BLUFF ROAD, LLC | | | $0.00 | 61226 | 4576930 |
| 2 | 01/15/2003 | DECREE | Divorce Decree/Legal Separation | JOHNSON, GEORGE & | JOHNSON, JANE A | | | $0.00 | 41456 | 4097073 |
| 3 | 08/01/1997 | WD | Warranty Deed | KALBERER, HOTEL S | JOHNSON, GEORGE & | | | $250,000.00 | 73014 | 97014272 |
| 4 | 01/01/1984 | QCD | Quit Claim Deed | ST, MICHELLE V | KALBERER, HOTEL S | | | $0.00 | 40149 | 420002 |
| 5 | 01/01/1984 | TRUSTEED | Trustee's Deed | KALBERER, HOTEL S | ST, MICHELLE V | | | $100,000.00 | 40150 | 420003 |
| 6 | 08/01/1983 | QCD | Quit Claim Deed | KALBERER, HOTEL S | KALBERER, HOTEL S | | | $0.00 | 40148 | 420001 |
| 7 | 01/01/1900 | OTHER | Other - Misc. Documents | Unknown | KALBERER, HOTEL S | | | $0.00 | 0 | 0 |
Payout Agreement
| No payout information available.. |