Property
Account |
| Property ID: | 263547 | Abbreviated Legal Description: | GREENBNK WFT TR 1 LOT 4 |
| Geographic ID: | S7050-00-00004-0 | Agent Code: | |
| Type: | Real | | |
| Tax Area: | 312 - APPRAISER-Cpvl Schl Dist, outside Cpvl, improved, greater than 1 acre | Land Use Code | 11 |
| Open Space: | N | DFL | N |
| Historic Property: | N | Remodel Property: | N |
| Multi-Family Redevelopment: | N | | |
| Township: | | Section: | |
| Range: | |
Location |
| Address: | 2741 NORTH BLUFF RD GREENBANK, WA 98253 | Mapsco: | |
| Neighborhood: | Cycle 3 | Map ID: | 352 |
| Neighborhood CD: | 3 |
Owner |
| Name: | URSTAD, SCOTT K | Owner ID: | 311357 |
| Mailing Address: | REBECCA N URSTAD, HEIDI B & JAY P SUPPLE 211 KIRKLAND AVE #419 KIRKLAND, WA 98033 | % Ownership: | 100.0000000000% |
| | | Exemptions: | |
Taxes and Assessment Details
Values
| (+) Improvement Homesite Value: | + | $0 | |
| (+) Improvement Non-Homesite Value: | + | $655,809 | |
| (+) Land Homesite Value: | + | $0 | |
| (+) Land Non-Homesite Value: | + | $700,000 | |
| (+) Curr Use (HS): | + | $0 | $0 |
| (+) Curr Use (NHS): | + | $0 | $0 |
| | | -------------------------- | |
| (=) Market Value: | = | $1,355,809 | |
| (–) Productivity Loss: | – | $0 | |
| | | -------------------------- | |
| (=) Subtotal: | = | $1,355,809 | |
| (+) Senior Appraised Value: | + | $0 | |
| (+) Non-Senior Appraised Value: | + | $1,355,809 | |
| | | -------------------------- | |
| (=) Total Appraised Value: | = | $1,355,809 | |
| (–) Senior Exemption Loss: | – | $0 | |
| (–) Exemption Loss: | – | $0 | |
| | | -------------------------- | |
| (=) Taxable Value: | = | $1,355,809 | |
Taxing Jurisdiction
| Owner: | URSTAD, SCOTT K | | |
| % Ownership: | 100.0000000000% | | |
| Total Value: | $1,355,809 | | |
| Tax Area: | 312 - APPRAISER-Cpvl Schl Dist, outside Cpvl, improved, greater than 1 acre |
| CF | Conservation Futures | 0.0313996660 | $1,355,809 | $1,355,809 | $42.57 | | |
| CEM2 | Cemetery #2 | 0.0092609791 | $1,355,809 | $1,355,809 | $12.56 | | |
| FIRE5 | Fire & Rescue Dist #5 C Whidbey GEN | 1.1892169230 | $1,355,809 | $1,355,809 | $1,612.35 | | |
| FIRE5BOND | Fire & Rescue Dist #5 C Whidbey BOND | 0.1394359503 | $1,355,809 | $1,355,809 | $189.05 | | |
| HOBOND | Hospital BOND | 0.1893405597 | $1,355,809 | $1,355,809 | $256.71 | | |
| HOGEN | Hospital GEN | 0.3848777722 | $1,355,809 | $1,355,809 | $521.82 | | |
| CE | County Current Expense | 0.3674210519 | $1,355,809 | $1,355,809 | $498.15 | | |
| CR | County Roads | 0.4614296361 | $1,355,809 | $1,355,809 | $625.61 | | |
| ISLANDEMS | Hospital GEN (EMS) | 0.4952018576 | $1,355,809 | $1,355,809 | $671.40 | | |
| LIB | Library Sno-Isle GEN | 0.3039084203 | $1,355,809 | $1,355,809 | $412.04 | | |
| LIBCAP | Library Sno-Isle BOND (Cap Fac Imp Area) | 0.0528562629 | $1,355,809 | $1,355,809 | $71.66 | | |
| POCOUP | Port of Coupeville GEN | 0.1065226063 | $1,355,809 | $1,355,809 | $144.42 | | |
| POCOUPIDD | Port of Coupeville IDD | 0.3353038577 | $1,355,809 | $1,355,809 | $454.61 | | |
| COUPSDTECH | School 204 CP (TECH) | 0.1215123397 | $1,355,809 | $1,355,809 | $164.75 | | |
| SCH204MO | School 204 Enrichment | 0.6416662518 | $1,355,809 | $1,355,809 | $869.98 | | |
| ST | State School | 1.4761226122 | $1,355,809 | $1,355,809 | $2,001.34 | | |
| ST2 | State School Part 2 | 0.7953803475 | $1,355,809 | $1,355,809 | $1,078.38 | | |
| | Total Tax Rate: | 7.1008570943 | | | | | |
| | | | | Taxes w/Current Exemptions: | $9,627.40 | | |
| | | | | Taxes w/o Exemptions: | $9,627.40 | | |
Improvement / Building
| Improvement #1: | RESIDENTIAL | State Code: | Y | 3641.2 sqft | Value: | $655,809 |
| Bathrooms: | 3 | Bedrooms: | 2 | | Ceiling: | DRYWALL PAINTED | Exterior Wall/Cover: | CEMENT FIBER | | Floor Covering: | CERAMIC TILE/CPT 40-60 | Floor Structure: | WOOD W/SUBFLOOR | | Foundation: | CONCRETE | Heating: | RADIANT FLOOR | | Interior Finish: | DRYWALL PAINT | Plumbing Fixture Cnt: | 12 | | Roof Slope: | 10" IN 12" | Roof Structure/Cover: | CJ ALUMINIUM HEAVY |
|
| | Type | Description | Class CD | Sub Class CD | Year Built | Area |
| | BAS | BASE/MAIN FLOOR | 4 | 0 | 2003 | 1928.7 |
| | DWN | DOWNSTAIRS LIVING AREA | 4 | 0 | 2003 | 1712.5 |
| | OP1 | OPEN PORCH SLAB | 4 | 0 | 2003 | 77.2 |
| | OP4 | OPEN PORCH W/CEILING-ROOF | 4 | 0 | 2003 | 151.0 |
| | OCP | OPEN CARPORT | 4 | 0 | 2003 | 739.0 |
| | OWP | OPEN WOOD PORCH W/STEPS | 4 | 0 | 2003 | 1087.4 |
| | UTY | STORAGE/UTILITY | 4 | 0 | 2003 | 1728.0 |
Sketch
Property Image
Land
| 1 | LB | LOW BANK | 1.0100 | 43995.60 | 100.00 | 0.00 | 1.00 | $700,000 | $0 |
Roll Value History
| 2026 | N/A | N/A | N/A | N/A | N/A |
| 2025 | $655,809 | $700,000 | $0 | $1,355,809 | $1,355,809 |
| 2024 | $663,504 | $700,000 | $0 | $1,363,504 | $1,363,504 |
| 2023 | $671,195 | $675,000 | $0 | $1,346,195 | $1,346,195 |
| 2022 | $614,727 | $550,000 | $0 | $1,164,727 | $1,164,727 |
| 2021 | $540,625 | $450,000 | $0 | $990,625 | $990,625 |
| 2020 | $526,701 | $400,000 | $0 | $926,701 | $926,701 |
| 2019 | $355,463 | $425,000 | $0 | $780,463 | $780,463 |
| 2018 | $356,423 | $400,000 | $0 | $756,423 | $756,423 |
| 2017 | $358,244 | $350,000 | $0 | $708,244 | $708,244 |
| 2016 | $362,085 | $350,000 | $0 | $712,085 | $712,085 |
| 2015 | $365,926 | $350,000 | $0 | $715,926 | $715,926 |
| 2014 | $369,767 | $350,000 | $0 | $719,767 | $719,767 |
| 2013 | $373,608 | $378,888 | $0 | $752,496 | $752,496 |
| 2012 | $377,450 | $378,888 | $0 | $756,338 | $756,338 |
| 2011 | $381,290 | $378,888 | $0 | $760,178 | $760,178 |
| 2010 | $390,493 | $378,888 | $0 | $769,381 | $769,381 |
| 2009 | $406,278 | $473,611 | $0 | $879,889 | $879,889 |
| 2008 | $415,355 | $473,611 | $0 | $888,966 | $888,966 |
| 2007 | $345,930 | $466,018 | $0 | $811,948 | $811,948 |
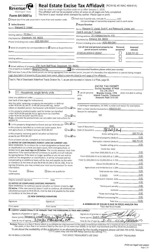
Deed and Sales History
| 1 | 01/25/2024 | QCD | Quit Claim Deed | URSTAD, MARGARET G | URSTAD, SCOTT K | | | $0.00 | 59152 | 4569142 |
| 2 | 03/20/2021 | WD | Warranty Deed | URSTAD, MARGARET G | URSTAD ET AL, MARGARGET G | | | $0.00 | 47466 | 47466 |
| 3 | 09/30/2020 | WD | Warranty Deed | URSTAD, KENNETH W | URSTAD, MARGARET G | | | $0.00 | 45374 | 4500329 |
| 4 | 10/02/2020 | WD | Warranty Deed | URSTAD, KENNETH W | URSTAD, MARGARET G | | | $0.00 | 45175 | 4499044 |
| 5 | 06/05/2002 | ESTSEPPROP | Establish Separate Property | URSTAD, KENNETH | URSTAD, KENNETH W | | | $0.00 | 22224 | 4022609 |
| 6 | 09/19/2000 | WD | Warranty Deed | URSTAD, MARGARET K | URSTAD, KENNETH | | | $145,000.00 | 3772 | 20017344 |
| 7 | 01/01/1997 | QCD | Quit Claim Deed | WIEDEMANN, MARGARET R | URSTAD, MARGARET K | | | $0.00 | 70068 | 97000197 |
| 8 | 12/01/1996 | QCD | Quit Claim Deed | WIEDEMANN, M R | WIEDEMANN, MARGARET R | | | $0.00 | 64459 | 96021680 |
| 9 | 10/01/1975 | OTHER | Other - Misc. Documents | Unknown | WIEDEMANN, M R | | | $0.00 | 56670 | 0 |
Payout Agreement
| No payout information available.. |