Property
Account |
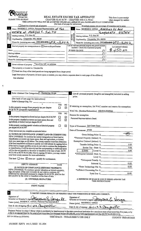
| Property ID: | 26821 | Abbreviated Legal Description: | 62 - IN GL1:BG MCR WLN SEC 32 E35*E751.17' S40*W185.48 TPB S40*W91' TO RD ELY ALG RD 320' N49*W280' TPB SUB TO EZ ALG SLY PT TGW & SUB EZ AF#91016088 |
| Geographic ID: | R13232-124-0410 | Agent Code: | |
| Type: | Real | | |
| Tax Area: | 319 - APPRAISER-Cpvl Schl Dist, outside Cpvl, vacant & 50 acres or less | Land Use Code | 91 |
| Open Space: | N | DFL | N |
| Historic Property: | N | Remodel Property: | N |
| Multi-Family Redevelopment: | N | | |
| Township: | 32 | Section: | 32 |
| Range: | R1 |
Location |
| Address: | COUPEVILLE, WA 98239 | Mapsco: | |
| Neighborhood: | Cycle 2 | Map ID: | 170 |
| Neighborhood CD: | 2 |
Owner |
| Name: | VARGA, MAXENE E | Owner ID: | 303649 |
| Mailing Address: | 3213 12TH STREET CT NW GIG HARBOR, WA 98335 | % Ownership: | 100.0000000000% |
| | | Exemptions: | U500 |
Taxes and Assessment Details
Values
| (+) Improvement Homesite Value: | + | $0 | |
| (+) Improvement Non-Homesite Value: | + | $0 | |
| (+) Land Homesite Value: | + | $0 | |
| (+) Land Non-Homesite Value: | + | $450 | |
| (+) Curr Use (HS): | + | $0 | $0 |
| (+) Curr Use (NHS): | + | $0 | $0 |
| | | -------------------------- | |
| (=) Market Value: | = | $450 | |
| (–) Productivity Loss: | – | $0 | |
| | | -------------------------- | |
| (=) Subtotal: | = | $450 | |
| (+) Senior Appraised Value: | + | $0 | |
| (+) Non-Senior Appraised Value: | + | $450 | |
| | | -------------------------- | |
| (=) Total Appraised Value: | = | $450 | |
| (–) Senior Exemption Loss: | – | $0 | |
| (–) Exemption Loss: | – | $450 | |
| | | -------------------------- | |
| (=) Taxable Value: | = | $0 | |
Taxing Jurisdiction
| Owner: | VARGA, MAXENE E | | |
| % Ownership: | 100.0000000000% | | |
| Total Value: | $450 | | |
| Tax Area: | 319 - APPRAISER-Cpvl Schl Dist, outside Cpvl, vacant & 50 acres or less |
| CF | Conservation Futures | 0.0313996660 | $450 | $0 | $0.00 | | |
| CEM2 | Cemetery #2 | 0.0092609791 | $450 | $0 | $0.00 | | |
| HOBOND | Hospital BOND | 0.1893405597 | $450 | $0 | $0.00 | | |
| HOGEN | Hospital GEN | 0.3848777722 | $450 | $0 | $0.00 | | |
| CE | County Current Expense | 0.3674210519 | $450 | $0 | $0.00 | | |
| CR | County Roads | 0.4614296361 | $450 | $0 | $0.00 | | |
| ISLANDEMS | Hospital GEN (EMS) | 0.4952018576 | $450 | $0 | $0.00 | | |
| LIB | Library Sno-Isle GEN | 0.3039084203 | $450 | $0 | $0.00 | | |
| LIBCAP | Library Sno-Isle BOND (Cap Fac Imp Area) | 0.0528562629 | $450 | $0 | $0.00 | | |
| POCOUP | Port of Coupeville GEN | 0.1065226063 | $450 | $0 | $0.00 | | |
| POCOUPIDD | Port of Coupeville IDD | 0.3353038577 | $450 | $0 | $0.00 | | |
| COUPSDTECH | School 204 CP (TECH) | 0.1215123397 | $450 | $0 | $0.00 | | |
| SCH204MO | School 204 Enrichment | 0.6416662518 | $450 | $0 | $0.00 | | |
| ST | State School | 1.4761226122 | $450 | $0 | $0.00 | | |
| ST2 | State School Part 2 | 0.7953803475 | $450 | $0 | $0.00 | | |
| | Total Tax Rate: | 5.7722042210 | | | | | |
| | | | | Taxes w/Current Exemptions: | $0.00 | | |
| | | | | Taxes w/o Exemptions: | $2.59 | | |
Improvement / Building
Sketch
| No sketches available for this property. |
Property Image
Land
| 1 | 91 | UNDEVELOPED LAND-METES AND BOUNDS | 0.3000 | 13068.00 | 0.00 | 0.00 | 1.00 | $450 | $0 |
Roll Value History
| 2026 | N/A | N/A | N/A | N/A | N/A |
| 2025 | $0 | $450 | $0 | $450 | $0 |
| 2024 | $0 | $450 | $0 | $450 | $0 |
| 2023 | $0 | $450 | $0 | $450 | $0 |
| 2022 | $0 | $450 | $0 | $450 | $0 |
| 2021 | $0 | $450 | $0 | $450 | $0 |
| 2020 | $0 | $450 | $0 | $450 | $0 |
| 2019 | $0 | $450 | $0 | $450 | $0 |
| 2018 | $0 | $450 | $0 | $450 | $0 |
| 2017 | $0 | $450 | $0 | $450 | $0 |
| 2016 | $0 | $450 | $0 | $450 | $0 |
| 2015 | $0 | $450 | $0 | $450 | $0 |
| 2014 | $0 | $499 | $0 | $499 | $0 |
| 2013 | $0 | $499 | $0 | $499 | $0 |
| 2012 | $0 | $450 | $0 | $450 | $0 |
| 2011 | $0 | $450 | $0 | $450 | $0 |
| 2010 | $0 | $450 | $0 | $450 | $0 |
| 2009 | $0 | $450 | $0 | $450 | $0 |
| 2008 | $0 | $450 | $0 | $450 | $450 |
| 2007 | $0 | $310 | $0 | $310 | $0 |
Deed and Sales History
| 1 | 04/01/2022 | QCD | Quit Claim Deed | SMITH, MARYON V | VARGA, MAXENE E | | | $0.00 | 52571 | 4542684 |
| 2 | 09/05/2001 | WD | Warranty Deed | SMITH, MARYON V | SMITH, MARYON V | | | $0.00 | 13447 | 20042254 |
| 3 | 05/11/2001 | QCD | Quit Claim Deed | SMITH, MARYON V | SMITH, MARYON V | | | $0.00 | 12059 | 20034032 |
| 4 | 08/31/2000 | OTHER | Other - Misc. Documents | SMITH, HAROLD A | SMITH, MARYON V | | | $0.00 | 68773 | 245254 |
| 5 | 01/01/1900 | OTHER | Other - Misc. Documents | Unknown | SMITH, HAROLD A | | | $0.00 | 0 | 0 |
Payout Agreement
| No payout information available.. |