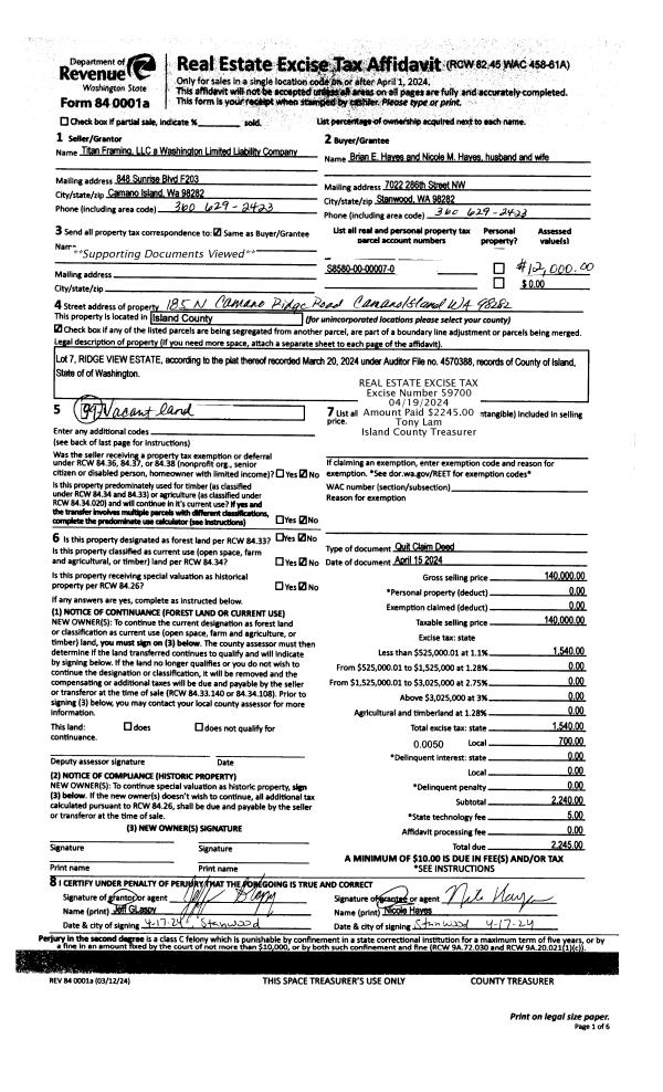
Property
Account |
| Property ID: | 269131 | Abbreviated Legal Description: | HERIT NO 2 LOT 20 |
| Geographic ID: | S7110-02-00020-0 | Agent Code: | |
| Type: | Real | | |
| Tax Area: | 100 - APPRAISER-OH Schl Dist, in OH | Land Use Code | 11 |
| Open Space: | N | DFL | N |
| Historic Property: | N | Remodel Property: | N |
| Multi-Family Redevelopment: | N | | |
| Township: | | Section: | |
| Range: | |
Location |
| Address: | 459 NW 7TH AVE OAK HARBOR, WA 98277 | Mapsco: | |
| Neighborhood: | Cycle 1 | Map ID: | 253 |
| Neighborhood CD: | 1 |
Owner |
| Name: | CHING, CONOR M | Owner ID: | 260613 |
| Mailing Address: | CASSANDRA K CHING 459 NW 7TH AVE OAK HARBOR, WA 98277 | % Ownership: | 100.0000000000% |
| | | Exemptions: | |
Taxes and Assessment Details
Values
| (+) Improvement Homesite Value: | + | $0 | |
| (+) Improvement Non-Homesite Value: | + | $270,425 | |
| (+) Land Homesite Value: | + | $0 | |
| (+) Land Non-Homesite Value: | + | $190,000 | |
| (+) Curr Use (HS): | + | $0 | $0 |
| (+) Curr Use (NHS): | + | $0 | $0 |
| | | -------------------------- | |
| (=) Market Value: | = | $460,425 | |
| (–) Productivity Loss: | – | $0 | |
| | | -------------------------- | |
| (=) Subtotal: | = | $460,425 | |
| (+) Senior Appraised Value: | + | $0 | |
| (+) Non-Senior Appraised Value: | + | $460,425 | |
| | | -------------------------- | |
| (=) Total Appraised Value: | = | $460,425 | |
| (–) Senior Exemption Loss: | – | $0 | |
| (–) Exemption Loss: | – | $0 | |
| | | -------------------------- | |
| (=) Taxable Value: | = | $460,425 | |
Taxing Jurisdiction
| Owner: | CHING, CONOR M | | |
| % Ownership: | 100.0000000000% | | |
| Total Value: | $460,425 | | |
| Tax Area: | 100 - APPRAISER-OH Schl Dist, in OH |
| CF | Conservation Futures | 0.0313996660 | $460,425 | $460,425 | $14.46 | | |
| CEM1 | Cemetery #1 | 0.0040018856 | $460,425 | $460,425 | $1.84 | | |
| COH | City of Oak Harbor | 2.3090730572 | $460,425 | $460,425 | $1,063.15 | | |
| OAKBOND | City of Oak Harbor BOND | 0.1902260131 | $460,425 | $460,425 | $87.58 | | |
| HOBOND | Hospital BOND | 0.1893405597 | $460,425 | $460,425 | $87.18 | | |
| HOGEN | Hospital GEN | 0.3848777722 | $460,425 | $460,425 | $177.21 | | |
| CE | County Current Expense | 0.3674210519 | $460,425 | $460,425 | $169.17 | | |
| ISLANDEMS | Hospital GEN (EMS) | 0.4952018576 | $460,425 | $460,425 | $228.00 | | |
| LIB | Library Sno-Isle GEN | 0.3039084203 | $460,425 | $460,425 | $139.93 | | |
| NWHIDPRMT | P & R N Whidbey GEN | 0.1990272349 | $460,425 | $460,425 | $91.64 | | |
| SCH201MO | School 201 Enrichment | 2.3851112745 | $460,425 | $460,425 | $1,098.16 | | |
| ST | State School | 1.4761226122 | $460,425 | $460,425 | $679.64 | | |
| ST2 | State School Part 2 | 0.7953803475 | $460,425 | $460,425 | $366.21 | | |
| | Total Tax Rate: | 9.1310917527 | | | | | |
| | | | | Taxes w/Current Exemptions: | $4,204.17 | | |
| | | | | Taxes w/o Exemptions: | $4,204.17 | | |
Improvement / Building
| Improvement #1: | RESIDENTIAL | State Code: | Y | 1616.0 sqft | Value: | $270,425 |
| Bathrooms: | 2 | Bedrooms: | 3 | | Ceiling: | DRY WALL SPRAYED | Exterior Wall/Cover: | CEMENT FIBER | | Floor Covering: | CARPET/VINYL 80-20 | Floor Structure: | WOOD W/SUBFLOOR | | Foundation: | CONCRETE | Heating: | FHA ELECTRIC | | Interior Finish: | DRYWALL PAINT | Plumbing Fixture Cnt: | 9 | | Roof Slope: | 4" IN 12" | Roof Structure/Cover: | CJ ASPHALT |
|
| | Type | Description | Class CD | Sub Class CD | Year Built | Area |
| | BAS | BASE/MAIN FLOOR | 3 | 0 | 1983 | 1200.0 |
| | OP4 | OPEN PORCH W/CEILING-ROOF | 3 | 0 | 1983 | 50.0 |
| | AGR | ATTACHED GARAGE | 3 | 0 | 1983 | 440.0 |
| | UPS | UPPER STORY | 3 | 0 | 1983 | 416.0 |
| | OWP | OPEN WOOD PORCH W/STEPS | 3 | 0 | 1983 | 120.0 |
Sketch
Property Image
Land
| 1 | 13 | SQ (06001-08000) | 0.0000 | 0.00 | 0.00 | 0.00 | 1.00 | $190,000 | $0 |
Roll Value History
| 2026 | N/A | N/A | N/A | N/A | N/A |
| 2025 | $270,425 | $190,000 | $0 | $460,425 | $460,425 |
| 2024 | $273,925 | $180,000 | $0 | $453,925 | $453,925 |
| 2023 | $256,065 | $190,000 | $0 | $446,065 | $446,065 |
| 2022 | $234,875 | $180,000 | $0 | $414,875 | $414,875 |
| 2021 | $206,838 | $120,000 | $0 | $326,838 | $326,838 |
| 2020 | $201,728 | $100,000 | $0 | $301,728 | $301,728 |
| 2019 | $147,723 | $150,000 | $0 | $297,723 | $297,723 |
| 2018 | $148,179 | $130,000 | $0 | $278,179 | $278,179 |
| 2017 | $129,366 | $110,000 | $0 | $239,366 | $239,366 |
| 2016 | $131,189 | $90,000 | $0 | $221,189 | $221,189 |
| 2015 | $133,012 | $70,000 | $0 | $203,012 | $203,012 |
| 2014 | $134,835 | $55,000 | $0 | $189,835 | $189,835 |
| 2013 | $136,657 | $55,000 | $0 | $191,657 | $191,657 |
| 2012 | $138,477 | $65,000 | $0 | $203,477 | $203,477 |
| 2011 | $128,428 | $65,000 | $0 | $193,428 | $193,428 |
| 2010 | $132,403 | $65,000 | $0 | $197,403 | $197,403 |
| 2009 | $138,242 | $87,150 | $0 | $225,392 | $225,392 |
| 2008 | $140,074 | $105,000 | $0 | $245,074 | $245,074 |
| 2007 | $141,905 | $105,000 | $0 | $246,905 | $246,905 |
Deed and Sales History
| 1 | 01/15/2013 | CCOMPROP | Create Community Property | CHING, CONOR M | CHING, CONOR M | | | $0.00 | 10152 | 4331535 |
| 2 | 08/13/2007 | WD | Warranty Deed | MITCHELL, KENNETH S | CHING, CONOR M | | | $245,000.00 | 72790 | 4209711 |
| 3 | 06/04/2003 | WD | Warranty Deed | WILLIAMS, AMAHL K | MITCHELL, KENNETH S | | | $147,700.00 | 32396 | 4061878 |
| 4 | 05/26/2000 | WD | Warranty Deed | MARRS, THOMAS M | WILLIAMS, AMAHL K | | | $137,536.00 | 1954 | 20009349 |
| 5 | 07/01/1996 | WD | Warranty Deed | HANAOKA, DALE T | MARRS, THOMAS M | | | $137,000.00 | 62479 | 96012341 |
| 6 | 10/01/1988 | WD | Warranty Deed | GETZ, ROBERT N | HANAOKA, DALE T | | | $87,500.00 | 83598 | 88013452 |
| 7 | 09/01/1983 | WD | Warranty Deed | LOFGREN, JAMES | GETZ, ROBERT N | | | $79,500.00 | 32586 | 414734 |
| 8 | 04/01/1983 | WD | Warranty Deed | ISLAND, SAVINGS & | LOFGREN, JAMES | | | $18,000.00 | 30922 | 408212 |
| 9 | 03/01/1982 | TRUSTEED | Trustee's Deed | DANARD, CUSTOM H | ISLAND, SAVINGS & | | | $13,500.00 | 20586 | 394063 |
| 10 | 01/01/1900 | OTHER | Other - Misc. Documents | Unknown | DANARD, CUSTOM H | | | $0.00 | 0 | 0 |
Payout Agreement
| No payout information available.. |