Property
Account |
| Property ID: | 26947 | Abbreviated Legal Description: | N 66 - IN GL3: BG 1166.88'E OF NWCR J C DAVIS DC N69*E 342.94' TPB N69*E91.05' N11*W TO SLN MADRONA DR SW ALG RD TP N8*W FR TPB S8*E TPB TGW & SUB EZ TGW 1/10 INT COM BCH LY N OF MADRONA DR (R13232-142-3630) |
| Geographic ID: | R13232-133-3800 | Agent Code: | |
| Type: | Real | | |
| Tax Area: | 319 - APPRAISER-Cpvl Schl Dist, outside Cpvl, vacant & 50 acres or less | Land Use Code | 91 |
| Open Space: | N | DFL | N |
| Historic Property: | N | Remodel Property: | N |
| Multi-Family Redevelopment: | N | | |
| Township: | 32 | Section: | 32 |
| Range: | R1 |
Location |
| Address: | | Mapsco: | |
| Neighborhood: | Cycle 2 | Map ID: | 171 |
| Neighborhood CD: | 2 |
Owner |
| Name: | MOORE, JOHNATHAN | Owner ID: | 309535 |
| Mailing Address: | MAGDALENE MOORE 4814 PREMIER AVE LONG BEACH, CA 90808 | % Ownership: | 100.0000000000% |
| | | Exemptions: | |
Taxes and Assessment Details
Values
| (+) Improvement Homesite Value: | + | $0 | |
| (+) Improvement Non-Homesite Value: | + | $0 | |
| (+) Land Homesite Value: | + | $0 | |
| (+) Land Non-Homesite Value: | + | $110,000 | |
| (+) Curr Use (HS): | + | $0 | $0 |
| (+) Curr Use (NHS): | + | $0 | $0 |
| | | -------------------------- | |
| (=) Market Value: | = | $110,000 | |
| (–) Productivity Loss: | – | $0 | |
| | | -------------------------- | |
| (=) Subtotal: | = | $110,000 | |
| (+) Senior Appraised Value: | + | $0 | |
| (+) Non-Senior Appraised Value: | + | $110,000 | |
| | | -------------------------- | |
| (=) Total Appraised Value: | = | $110,000 | |
| (–) Senior Exemption Loss: | – | $0 | |
| (–) Exemption Loss: | – | $0 | |
| | | -------------------------- | |
| (=) Taxable Value: | = | $110,000 | |
Taxing Jurisdiction
| Owner: | MOORE, JOHNATHAN | | |
| % Ownership: | 100.0000000000% | | |
| Total Value: | $110,000 | | |
| Tax Area: | 319 - APPRAISER-Cpvl Schl Dist, outside Cpvl, vacant & 50 acres or less |
| CF | Conservation Futures | 0.0313996660 | $110,000 | $110,000 | $3.45 | | |
| CEM2 | Cemetery #2 | 0.0092609791 | $110,000 | $110,000 | $1.02 | | |
| HOBOND | Hospital BOND | 0.1893405597 | $110,000 | $110,000 | $20.83 | | |
| HOGEN | Hospital GEN | 0.3848777722 | $110,000 | $110,000 | $42.34 | | |
| CE | County Current Expense | 0.3674210519 | $110,000 | $110,000 | $40.42 | | |
| CR | County Roads | 0.4614296361 | $110,000 | $110,000 | $50.76 | | |
| ISLANDEMS | Hospital GEN (EMS) | 0.4952018576 | $110,000 | $110,000 | $54.47 | | |
| LIB | Library Sno-Isle GEN | 0.3039084203 | $110,000 | $110,000 | $33.43 | | |
| LIBCAP | Library Sno-Isle BOND (Cap Fac Imp Area) | 0.0528562629 | $110,000 | $110,000 | $5.81 | | |
| POCOUP | Port of Coupeville GEN | 0.1065226063 | $110,000 | $110,000 | $11.72 | | |
| POCOUPIDD | Port of Coupeville IDD | 0.3353038577 | $110,000 | $110,000 | $36.88 | | |
| COUPSDTECH | School 204 CP (TECH) | 0.1215123397 | $110,000 | $110,000 | $13.37 | | |
| SCH204MO | School 204 Enrichment | 0.6416662518 | $110,000 | $110,000 | $70.58 | | |
| ST | State School | 1.4761226122 | $110,000 | $110,000 | $162.37 | | |
| ST2 | State School Part 2 | 0.7953803475 | $110,000 | $110,000 | $87.49 | | |
| | Total Tax Rate: | 5.7722042210 | | | | | |
| | | | | Taxes w/Current Exemptions: | $634.94 | | |
| | | | | Taxes w/o Exemptions: | $634.94 | | |
Improvement / Building
Sketch
| No sketches available for this property. |
Property Image
Land
| 1 | 91 | UNDEVELOPED LAND-METES AND BOUNDS | 0.4500 | 19602.00 | 0.00 | 0.00 | 1.00 | $110,000 | $0 |
Roll Value History
| 2026 | N/A | N/A | N/A | N/A | N/A |
| 2025 | $0 | $110,000 | $0 | $110,000 | $110,000 |
| 2024 | $0 | $110,000 | $0 | $110,000 | $110,000 |
| 2023 | $0 | $110,000 | $0 | $110,000 | $110,000 |
| 2022 | $0 | $110,000 | $0 | $110,000 | $110,000 |
| 2021 | $0 | $90,000 | $0 | $90,000 | $90,000 |
| 2020 | $0 | $90,000 | $0 | $90,000 | $90,000 |
| 2019 | $0 | $135,000 | $0 | $135,000 | $135,000 |
| 2018 | $0 | $105,000 | $0 | $105,000 | $105,000 |
| 2017 | $0 | $85,000 | $0 | $85,000 | $85,000 |
| 2016 | $0 | $85,000 | $0 | $85,000 | $85,000 |
| 2015 | $0 | $85,000 | $0 | $85,000 | $85,000 |
| 2014 | $0 | $84,400 | $0 | $84,400 | $84,400 |
| 2013 | $0 | $84,400 | $0 | $84,400 | $84,400 |
| 2012 | $0 | $95,000 | $0 | $95,000 | $95,000 |
| 2011 | $0 | $95,000 | $0 | $95,000 | $95,000 |
| 2010 | $0 | $95,000 | $0 | $95,000 | $95,000 |
| 2009 | $0 | $105,000 | $0 | $105,000 | $105,000 |
| 2008 | $0 | $112,500 | $0 | $112,500 | $112,500 |
| 2007 | $0 | $112,500 | $0 | $112,500 | $112,500 |
Deed and Sales History
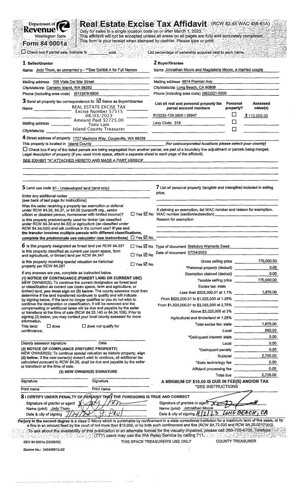
| 1 | 07/24/2023 | WD | Warranty Deed | THOM, JODY | MOORE, JOHNATHAN | | | $170,000.00 | 57515 | 4563052 |
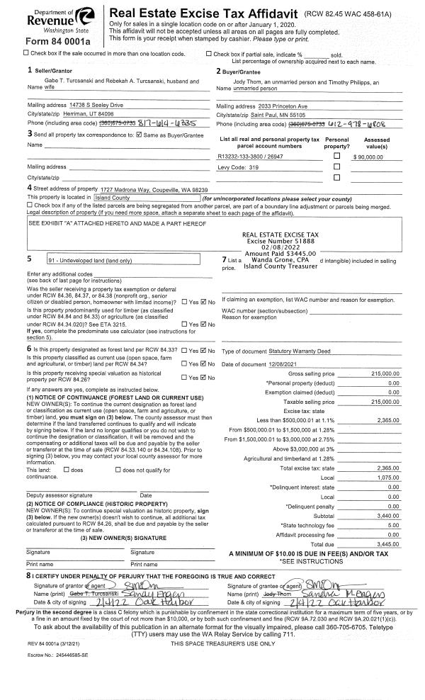
| 2 | 12/08/2021 | WD | Warranty Deed | TURCSANSKI, GABE T | THOM, JODY | | | $215,000.00 | 51888 | 4539301 |
| 3 | 05/08/2006 | WD | Warranty Deed | SAMPLES, BRENDA | TURCSANSKI, BAGE T | | | $115,000.00 | 62115 | 4170451 |
| 4 | 02/28/2003 | WD | Warranty Deed | MACINDOE, JAMES | SAMPLES, BRENDA | | | $66,000.00 | 30887 | 4049927 |
| 5 | 01/05/1999 | WD | Warranty Deed | RIDGEWAY, INVESTMENTS I | MACINDOE, JAMES | | | $47,000.00 | 90202 | 99001278 |
| 6 | 01/01/1990 | QCD | Quit Claim Deed | RIDGEWAY, INVESTMENTS I | RIDGEWAY, INVESTMENTS I | | | $0.00 | 1456 | 90004731 |
| 7 | 01/01/1990 | QCD | Quit Claim Deed | PARK, YONG M | RIDGEWAY, INVESTMENTS I | | | $0.00 | 1457 | 90004732 |
| 8 | 01/01/1990 | WD | Warranty Deed | ENRIDGE, NORMAN | PARK, YONG M | | | $23,000.00 | 1455 | 90004733 |
| 9 | 09/01/1982 | EZ | Easement | BELLER, MERLE L | ENRIDGE, NORMAN | | | $27,623.00 | 22312 | 401047 |
| 10 | 09/01/1978 | EZ | Easement | Unknown | BELLER, MERLE L | | | $22,500.00 | 84600 | 339946 |
Payout Agreement
| No payout information available.. |