Property
Account |
| Property ID: | 269569 | Abbreviated Legal Description: | HIDDEN BCH LOT J |
| Geographic ID: | S7115-00-0000J-0 | Agent Code: | |
| Type: | Real | | |
| Tax Area: | 310 - APPRAISER-Cpvl Schl Dist, outside Cpvl, improved & 1 acre or less | Land Use Code | 11 |
| Open Space: | N | DFL | N |
| Historic Property: | N | Remodel Property: | N |
| Multi-Family Redevelopment: | N | | |
| Township: | | Section: | |
| Range: | |
Location |
| Address: | 2365 HIDDEN BEACH DR GREENBANK, WA 98253 | Mapsco: | |
| Neighborhood: | Cycle 2 | Map ID: | 530 |
| Neighborhood CD: | 2 |
Owner |
| Name: | 2365 HIDDEN BEACH LLC | Owner ID: | 312192 |
| Mailing Address: | 7448 NE 123RD PL KIRKLAND, WA 98034 | % Ownership: | 100.0000000000% |
| | | Exemptions: | |
Taxes and Assessment Details
Values
| (+) Improvement Homesite Value: | + | $0 | |
| (+) Improvement Non-Homesite Value: | + | $297,128 | |
| (+) Land Homesite Value: | + | $0 | |
| (+) Land Non-Homesite Value: | + | $675,000 | |
| (+) Curr Use (HS): | + | $0 | $0 |
| (+) Curr Use (NHS): | + | $0 | $0 |
| | | -------------------------- | |
| (=) Market Value: | = | $972,128 | |
| (–) Productivity Loss: | – | $0 | |
| | | -------------------------- | |
| (=) Subtotal: | = | $972,128 | |
| (+) Senior Appraised Value: | + | $0 | |
| (+) Non-Senior Appraised Value: | + | $972,128 | |
| | | -------------------------- | |
| (=) Total Appraised Value: | = | $972,128 | |
| (–) Senior Exemption Loss: | – | $0 | |
| (–) Exemption Loss: | – | $0 | |
| | | -------------------------- | |
| (=) Taxable Value: | = | $972,128 | |
Taxing Jurisdiction
| Owner: | 2365 HIDDEN BEACH LLC | | |
| % Ownership: | 100.0000000000% | | |
| Total Value: | $972,128 | | |
| Tax Area: | 310 - APPRAISER-Cpvl Schl Dist, outside Cpvl, improved & 1 acre or less |
| CF | Conservation Futures | 0.0313996660 | $972,128 | $972,128 | $30.52 | | |
| CEM2 | Cemetery #2 | 0.0092609791 | $972,128 | $972,128 | $9.00 | | |
| FIRE5 | Fire & Rescue Dist #5 C Whidbey GEN | 1.1892169230 | $972,128 | $972,128 | $1,156.07 | | |
| FIRE5BOND | Fire & Rescue Dist #5 C Whidbey BOND | 0.1394359503 | $972,128 | $972,128 | $135.55 | | |
| HOBOND | Hospital BOND | 0.1893405597 | $972,128 | $972,128 | $184.06 | | |
| HOGEN | Hospital GEN | 0.3848777722 | $972,128 | $972,128 | $374.15 | | |
| CE | County Current Expense | 0.3674210519 | $972,128 | $972,128 | $357.18 | | |
| CR | County Roads | 0.4614296361 | $972,128 | $972,128 | $448.57 | | |
| ISLANDEMS | Hospital GEN (EMS) | 0.4952018576 | $972,128 | $972,128 | $481.40 | | |
| LIB | Library Sno-Isle GEN | 0.3039084203 | $972,128 | $972,128 | $295.44 | | |
| LIBCAP | Library Sno-Isle BOND (Cap Fac Imp Area) | 0.0528562629 | $972,128 | $972,128 | $51.38 | | |
| POCOUP | Port of Coupeville GEN | 0.1065226063 | $972,128 | $972,128 | $103.55 | | |
| POCOUPIDD | Port of Coupeville IDD | 0.3353038577 | $972,128 | $972,128 | $325.96 | | |
| COUPSDTECH | School 204 CP (TECH) | 0.1215123397 | $972,128 | $972,128 | $118.13 | | |
| SCH204MO | School 204 Enrichment | 0.6416662518 | $972,128 | $972,128 | $623.78 | | |
| ST | State School | 1.4761226122 | $972,128 | $972,128 | $1,434.98 | | |
| ST2 | State School Part 2 | 0.7953803475 | $972,128 | $972,128 | $773.21 | | |
| | Total Tax Rate: | 7.1008570943 | | | | | |
| | | | | Taxes w/Current Exemptions: | $6,902.93 | | |
| | | | | Taxes w/o Exemptions: | $6,902.93 | | |
Improvement / Building
| Improvement #1: | RESIDENTIAL | State Code: | Y | 1630.0 sqft | Value: | $297,128 |
| Bathrooms: | 2 | Bedrooms: | 2 | | Ceiling: | DRY WALL SPRAYED | Exterior Wall/Cover: | WOOD SIDING | | Floor Covering: | CARPET/VINYL 80-20 | Floor Structure: | WOOD W/SUBFLOOR | | Foundation: | CONCRETE | Heating: | BASEBOARD ELECTRIC | | Interior Finish: | DRYWALL PAINT | Plumbing Fixture Cnt: | 10 | | Roof Slope: | 4" IN 12" | Roof Structure/Cover: | CJ ASPHALT |
|
| | Type | Description | Class CD | Sub Class CD | Year Built | Area |
| | BAS | BASE/MAIN FLOOR | 3 | 0 | 1980 | 1054.0 |
| | AGR | ATTACHED GARAGE | 3 | 0 | 1980 | 160.0 |
| | BIG | BUILT IN GARAGE | 3 | 0 | 1980 | 224.0 |
| | UPS | UPPER STORY | 3 | 0 | 1980 | 576.0 |
| | OP1 | OPEN PORCH SLAB | 3 | 0 | 1980 | 606.0 |
| | OWC | OPEN WOOD PORCH W/STEPS/ROOF/C | 3 | 0 | 1980 | 112.0 |
| | OWP | OPEN WOOD PORCH W/STEPS | 3 | 0 | 1980 | 376.0 |
| | BAW | BALCONY WOOD RAIL | 3 | 0 | 1980 | 40.0 |
Sketch
Property Image
Land
| 1 | LB | LOW BANK | 0.2284 | 9949.10 | 60.00 | 0.00 | 1.00 | $675,000 | $0 |
Roll Value History
| 2026 | N/A | N/A | N/A | N/A | N/A |
| 2025 | $297,128 | $675,000 | $0 | $972,128 | $972,128 |
| 2024 | $296,052 | $650,000 | $0 | $946,052 | $946,052 |
| 2023 | $299,742 | $625,000 | $0 | $924,742 | $924,742 |
| 2022 | $274,751 | $600,000 | $0 | $874,751 | $874,751 |
| 2021 | $241,826 | $425,000 | $0 | $666,826 | $666,826 |
| 2020 | $224,078 | $375,000 | $0 | $599,078 | $599,078 |
| 2019 | $163,422 | $400,000 | $0 | $563,422 | $563,422 |
| 2018 | $125,405 | $350,000 | $0 | $475,405 | $475,405 |
| 2017 | $126,346 | $300,000 | $0 | $426,346 | $426,346 |
| 2016 | $128,232 | $300,000 | $0 | $428,232 | $428,232 |
| 2015 | $130,117 | $300,000 | $0 | $430,117 | $430,117 |
| 2014 | $132,002 | $300,000 | $0 | $432,002 | $432,002 |
| 2013 | $133,888 | $270,684 | $0 | $404,572 | $404,572 |
| 2012 | $131,398 | $270,684 | $0 | $402,082 | $402,082 |
| 2011 | $133,295 | $270,684 | $0 | $403,979 | $403,979 |
| 2010 | $140,652 | $270,684 | $0 | $411,336 | $411,336 |
| 2009 | $146,868 | $315,180 | $0 | $462,048 | $462,048 |
| 2008 | $148,797 | $315,180 | $0 | $463,977 | $463,977 |
| 2007 | $150,726 | $268,830 | $0 | $419,556 | $419,556 |
Deed and Sales History
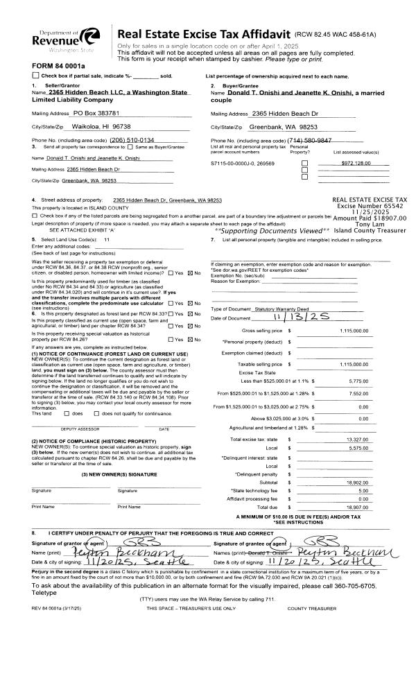
| 1 | 11/13/2025 | WD | Warranty Deed | 2365 HIDDEN BEACH LLC | ONISHI, DONALD T | | | $1,115,000.00 | 65542 | 4593859 |
| 2 | 04/29/2024 | QCD | Quit Claim Deed | BERGSTROM, LESLEY | 2365 HIDDEN BEACH LLC | | | $0.00 | 59815 | 4571868 |
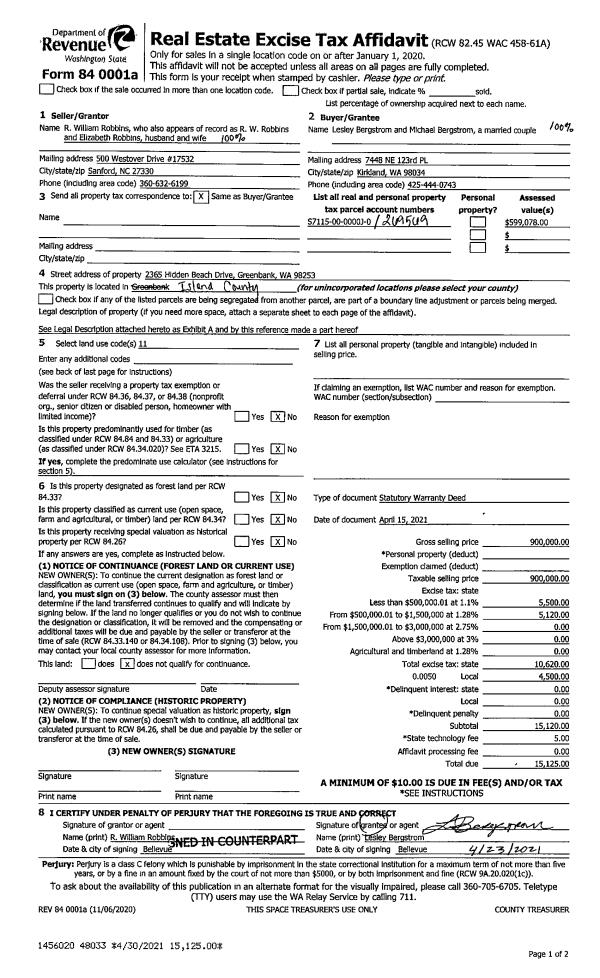
| 3 | 04/15/2021 | WD | Warranty Deed | ROBBINS, R WILLIAM | BERGSTROM, LESLEY | | | $900,000.00 | 48033 | 4517916 |
| 4 | 07/16/2007 | WD | Warranty Deed | KIRCHER TRUSTEE, ARTHER P | ROBBINS, R. WILLIAM | | | $616,500.00 | 72424 | 4207265 |
| 5 | 09/17/2002 | QCD | Quit Claim Deed | KIRCHER, ARTHER P | KIRCHER TRUSTEE, ARTHER P | | | $0.00 | 23699 | 4031819 |
| 6 | 07/01/1978 | OTHER | Other - Misc. Documents | Unknown | KIRCHER, ARTHER P | | | $24,000.00 | 83550 | 336903 |
Payout Agreement
| No payout information available.. |