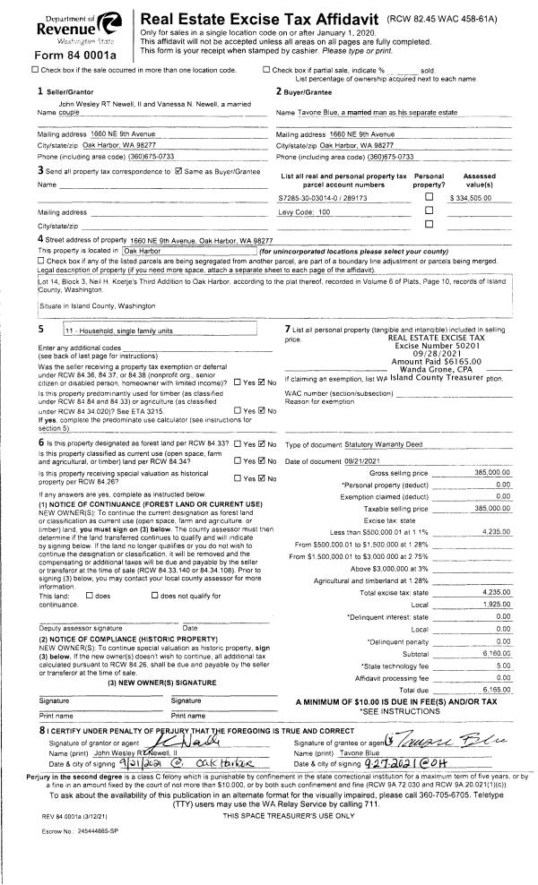
Property
Account |
| Property ID: | 269658 | Abbreviated Legal Description: | HIDDEN BCH LOT S |
| Geographic ID: | S7115-00-0000S-0 | Agent Code: | |
| Type: | Real | | |
| Tax Area: | 310 - APPRAISER-Cpvl Schl Dist, outside Cpvl, improved & 1 acre or less | Land Use Code | 11 |
| Open Space: | N | DFL | N |
| Historic Property: | N | Remodel Property: | N |
| Multi-Family Redevelopment: | N | | |
| Township: | | Section: | |
| Range: | |
Location |
| Address: | 2331 HIDDEN BEACH DR GREENBANK, WA 98253 | Mapsco: | |
| Neighborhood: | Cycle 2 | Map ID: | 530 |
| Neighborhood CD: | 2 |
Owner |
| Name: | SUN, EILEEN | Owner ID: | 300042 |
| Mailing Address: | NICHOLAS SUN 9830 NE 18TH ST BELLEVUE, WA 98004 | % Ownership: | 100.0000000000% |
| | | Exemptions: | |
Taxes and Assessment Details
Values
| (+) Improvement Homesite Value: | + | $0 | |
| (+) Improvement Non-Homesite Value: | + | $330,312 | |
| (+) Land Homesite Value: | + | $0 | |
| (+) Land Non-Homesite Value: | + | $675,000 | |
| (+) Curr Use (HS): | + | $0 | $0 |
| (+) Curr Use (NHS): | + | $0 | $0 |
| | | -------------------------- | |
| (=) Market Value: | = | $1,005,312 | |
| (–) Productivity Loss: | – | $0 | |
| | | -------------------------- | |
| (=) Subtotal: | = | $1,005,312 | |
| (+) Senior Appraised Value: | + | $0 | |
| (+) Non-Senior Appraised Value: | + | $1,005,312 | |
| | | -------------------------- | |
| (=) Total Appraised Value: | = | $1,005,312 | |
| (–) Senior Exemption Loss: | – | $0 | |
| (–) Exemption Loss: | – | $0 | |
| | | -------------------------- | |
| (=) Taxable Value: | = | $1,005,312 | |
Taxing Jurisdiction
| Owner: | SUN, EILEEN | | |
| % Ownership: | 100.0000000000% | | |
| Total Value: | $1,005,312 | | |
| Tax Area: | 310 - APPRAISER-Cpvl Schl Dist, outside Cpvl, improved & 1 acre or less |
| CF | Conservation Futures | 0.0313996660 | $1,005,312 | $1,005,312 | $31.57 | | |
| CEM2 | Cemetery #2 | 0.0092609791 | $1,005,312 | $1,005,312 | $9.31 | | |
| FIRE5 | Fire & Rescue Dist #5 C Whidbey GEN | 1.1892169230 | $1,005,312 | $1,005,312 | $1,195.53 | | |
| FIRE5BOND | Fire & Rescue Dist #5 C Whidbey BOND | 0.1394359503 | $1,005,312 | $1,005,312 | $140.18 | | |
| HOBOND | Hospital BOND | 0.1893405597 | $1,005,312 | $1,005,312 | $190.35 | | |
| HOGEN | Hospital GEN | 0.3848777722 | $1,005,312 | $1,005,312 | $386.92 | | |
| CE | County Current Expense | 0.3674210519 | $1,005,312 | $1,005,312 | $369.37 | | |
| CR | County Roads | 0.4614296361 | $1,005,312 | $1,005,312 | $463.88 | | |
| ISLANDEMS | Hospital GEN (EMS) | 0.4952018576 | $1,005,312 | $1,005,312 | $497.83 | | |
| LIB | Library Sno-Isle GEN | 0.3039084203 | $1,005,312 | $1,005,312 | $305.52 | | |
| LIBCAP | Library Sno-Isle BOND (Cap Fac Imp Area) | 0.0528562629 | $1,005,312 | $1,005,312 | $53.14 | | |
| POCOUP | Port of Coupeville GEN | 0.1065226063 | $1,005,312 | $1,005,312 | $107.09 | | |
| POCOUPIDD | Port of Coupeville IDD | 0.3353038577 | $1,005,312 | $1,005,312 | $337.08 | | |
| COUPSDTECH | School 204 CP (TECH) | 0.1215123397 | $1,005,312 | $1,005,312 | $122.16 | | |
| SCH204MO | School 204 Enrichment | 0.6416662518 | $1,005,312 | $1,005,312 | $645.07 | | |
| ST | State School | 1.4761226122 | $1,005,312 | $1,005,312 | $1,483.96 | | |
| ST2 | State School Part 2 | 0.7953803475 | $1,005,312 | $1,005,312 | $799.61 | | |
| | Total Tax Rate: | 7.1008570943 | | | | | |
| | | | | Taxes w/Current Exemptions: | $7,138.57 | | |
| | | | | Taxes w/o Exemptions: | $7,138.57 | | |
Improvement / Building
| Improvement #1: | RESIDENTIAL | State Code: | Y | 1520.0 sqft | Value: | $330,312 |
| Bathrooms: | 2 | Bedrooms: | 2 | | Ceiling: | TONGUE & GROOVE | Cooling: | HEAT PUMP/CONV/V | | Exterior Wall/Cover: | WOOD SIDING | Floor Covering: | CERAMIC TILE/CPT 40-60 | | Floor Structure: | WOOD W/SUBFLOOR | Foundation: | CONCRETE | | Interior Finish: | DRYWALL PAINT | Plumbing Fixture Cnt: | 10 | | Roof Slope: | 6" IN 12" | Roof Structure/Cover: | CJ WOOD SHAKES |
|
| | Type | Description | Class CD | Sub Class CD | Year Built | Area |
| | BAS | BASE/MAIN FLOOR | 4 | 0 | 1978 | 1200.0 |
| | UPS | UPPER STORY | 4 | 0 | 1978 | 320.0 |
| | BAW | BALCONY WOOD RAIL | 4 | 0 | 1978 | 80.0 |
| | OWP | OPEN WOOD PORCH W/STEPS | 4 | 0 | 1978 | 500.0 |
| | OWC | OPEN WOOD PORCH W/STEPS/ROOF/C | 4 | 0 | 1978 | 36.0 |
| | UTY | STORAGE/UTILITY | 4 | 0 | 1978 | 54.0 |
Sketch
Property Image
Land
| 1 | LB | LOW BANK | 0.1909 | 8315.60 | 60.00 | 0.00 | 1.00 | $675,000 | $0 |
Roll Value History
| 2026 | N/A | N/A | N/A | N/A | N/A |
| 2025 | $330,312 | $675,000 | $0 | $1,005,312 | $1,005,312 |
| 2024 | $334,280 | $650,000 | $0 | $984,280 | $984,280 |
| 2023 | $338,247 | $625,000 | $0 | $963,247 | $963,247 |
| 2022 | $309,876 | $600,000 | $0 | $909,876 | $909,876 |
| 2021 | $211,092 | $425,000 | $0 | $636,092 | $636,092 |
| 2020 | $203,324 | $375,000 | $0 | $578,324 | $578,324 |
| 2019 | $147,742 | $400,000 | $0 | $547,742 | $547,742 |
| 2018 | $125,480 | $350,000 | $0 | $475,480 | $475,480 |
| 2017 | $126,355 | $300,000 | $0 | $426,355 | $426,355 |
| 2016 | $115,951 | $300,000 | $0 | $415,951 | $415,951 |
| 2015 | $117,656 | $300,000 | $0 | $417,656 | $417,656 |
| 2014 | $119,362 | $300,000 | $0 | $419,362 | $419,362 |
| 2013 | $121,067 | $270,684 | $0 | $391,751 | $391,751 |
| 2012 | $117,433 | $270,684 | $0 | $388,117 | $388,117 |
| 2011 | $119,147 | $270,684 | $0 | $389,831 | $389,831 |
| 2010 | $128,534 | $270,684 | $0 | $399,218 | $399,218 |
| 2009 | $134,235 | $315,180 | $0 | $449,415 | $449,415 |
| 2008 | $136,032 | $315,180 | $0 | $451,212 | $451,212 |
| 2007 | $137,819 | $268,830 | $0 | $406,649 | $406,649 |
Deed and Sales History
| 1 | 06/28/2021 | WD | Warranty Deed | ONERHEIM, PAUL L / CAROL A | SUN, EILEEN | | | $939,000.00 | 48972 | 4523293 |
| 2 | 03/01/1992 | WD | Warranty Deed | JENSEN, DONALD M | ONERHEIM, PAUL L | | | $230,000.00 | 21061 | 92005315 |
| 3 | 01/01/1900 | OTHER | Other - Misc. Documents | Unknown | JENSEN, DONALD M | | | $0.00 | 0 | 0 |
Payout Agreement
| No payout information available.. |