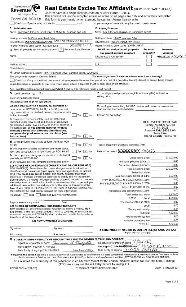
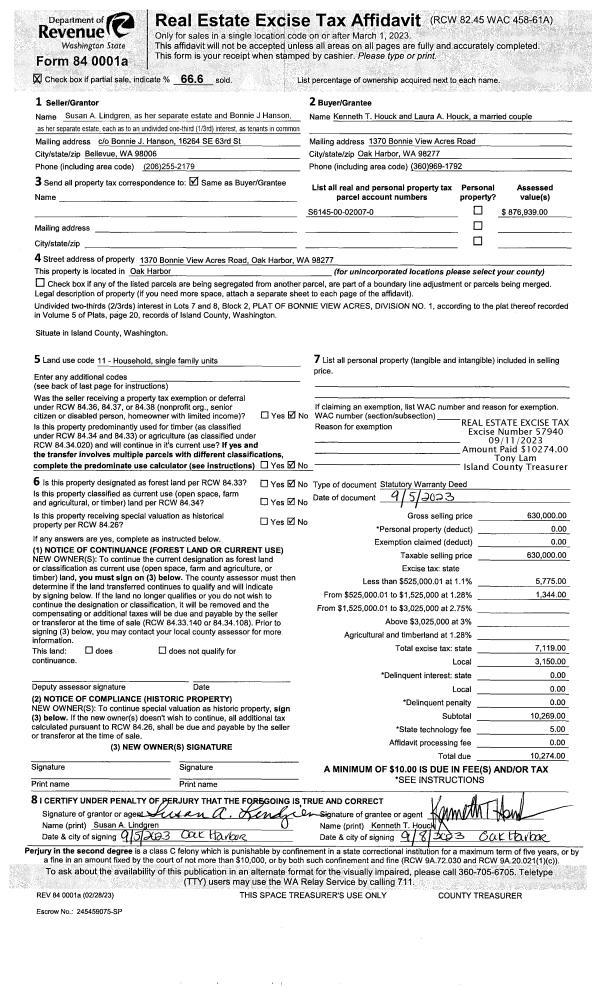
Property
Account |
| Property ID: | 269685 | Abbreviated Legal Description: | HIDDEN BCH LOT V |
| Geographic ID: | S7115-00-0000V-0 | Agent Code: | |
| Type: | Real | | |
| Tax Area: | 310 - APPRAISER-Cpvl Schl Dist, outside Cpvl, improved & 1 acre or less | Land Use Code | 11 |
| Open Space: | N | DFL | N |
| Historic Property: | N | Remodel Property: | N |
| Multi-Family Redevelopment: | N | | |
| Township: | | Section: | |
| Range: | |
Location |
| Address: | 2321 HIDDEN BEACH DR GREENBANK, WA 98253 | Mapsco: | |
| Neighborhood: | Cycle 2 | Map ID: | 530 |
| Neighborhood CD: | 2 |
Owner |
| Name: | THE JAMES BAMMERT REVOCABLE LIVING TRUST | Owner ID: | 310068 |
| Mailing Address: | 2747 W 34TH AVE DENVER, CO 80211 | % Ownership: | 100.0000000000% |
| | | Exemptions: | |
Taxes and Assessment Details
Values
| (+) Improvement Homesite Value: | + | $0 | |
| (+) Improvement Non-Homesite Value: | + | $168,186 | |
| (+) Land Homesite Value: | + | $0 | |
| (+) Land Non-Homesite Value: | + | $675,000 | |
| (+) Curr Use (HS): | + | $0 | $0 |
| (+) Curr Use (NHS): | + | $0 | $0 |
| | | -------------------------- | |
| (=) Market Value: | = | $843,186 | |
| (–) Productivity Loss: | – | $0 | |
| | | -------------------------- | |
| (=) Subtotal: | = | $843,186 | |
| (+) Senior Appraised Value: | + | $0 | |
| (+) Non-Senior Appraised Value: | + | $843,186 | |
| | | -------------------------- | |
| (=) Total Appraised Value: | = | $843,186 | |
| (–) Senior Exemption Loss: | – | $0 | |
| (–) Exemption Loss: | – | $0 | |
| | | -------------------------- | |
| (=) Taxable Value: | = | $843,186 | |
Taxing Jurisdiction
| Owner: | THE JAMES BAMMERT REVOCABLE LIVING TRUST | | |
| % Ownership: | 100.0000000000% | | |
| Total Value: | $843,186 | | |
| Tax Area: | 310 - APPRAISER-Cpvl Schl Dist, outside Cpvl, improved & 1 acre or less |
| CF | Conservation Futures | 0.0313996660 | $843,186 | $843,186 | $26.48 | | |
| CEM2 | Cemetery #2 | 0.0092609791 | $843,186 | $843,186 | $7.81 | | |
| FIRE5 | Fire & Rescue Dist #5 C Whidbey GEN | 1.1892169230 | $843,186 | $843,186 | $1,002.73 | | |
| FIRE5BOND | Fire & Rescue Dist #5 C Whidbey BOND | 0.1394359503 | $843,186 | $843,186 | $117.57 | | |
| HOBOND | Hospital BOND | 0.1893405597 | $843,186 | $843,186 | $159.65 | | |
| HOGEN | Hospital GEN | 0.3848777722 | $843,186 | $843,186 | $324.52 | | |
| CE | County Current Expense | 0.3674210519 | $843,186 | $843,186 | $309.80 | | |
| CR | County Roads | 0.4614296361 | $843,186 | $843,186 | $389.07 | | |
| ISLANDEMS | Hospital GEN (EMS) | 0.4952018576 | $843,186 | $843,186 | $417.55 | | |
| LIB | Library Sno-Isle GEN | 0.3039084203 | $843,186 | $843,186 | $256.25 | | |
| LIBCAP | Library Sno-Isle BOND (Cap Fac Imp Area) | 0.0528562629 | $843,186 | $843,186 | $44.57 | | |
| POCOUP | Port of Coupeville GEN | 0.1065226063 | $843,186 | $843,186 | $89.82 | | |
| POCOUPIDD | Port of Coupeville IDD | 0.3353038577 | $843,186 | $843,186 | $282.72 | | |
| COUPSDTECH | School 204 CP (TECH) | 0.1215123397 | $843,186 | $843,186 | $102.46 | | |
| SCH204MO | School 204 Enrichment | 0.6416662518 | $843,186 | $843,186 | $541.04 | | |
| ST | State School | 1.4761226122 | $843,186 | $843,186 | $1,244.65 | | |
| ST2 | State School Part 2 | 0.7953803475 | $843,186 | $843,186 | $670.65 | | |
| | Total Tax Rate: | 7.1008570943 | | | | | |
| | | | | Taxes w/Current Exemptions: | $5,987.34 | | |
| | | | | Taxes w/o Exemptions: | $5,987.34 | | |
Improvement / Building
| Improvement #1: | RESIDENTIAL | State Code: | Y | 1217.2 sqft | Value: | $168,186 |
| Bathrooms: | 1 | Bedrooms: | 2 | | Ceiling: | TONGUE & GROOVE | Exterior Wall/Cover: | SHINGLE | | Floor Covering: | CARPET/VINYL 80-20 | Floor Structure: | WOOD W/SUBFLOOR | | Foundation: | CONCRETE | Heating: | BASEBOARD ELECTRIC | | Interior Finish: | DRYWALL PAINT | Plumbing Fixture Cnt: | 6 | | Roof Slope: | 6" IN 12" | Roof Structure/Cover: | CJ ASPHALT |
|
| | Type | Description | Class CD | Sub Class CD | Year Built | Area |
| | BAS | BASE/MAIN FLOOR | 3 | 0 | 1978 | 913.2 |
| | OWP | OPEN WOOD PORCH W/STEPS | 3 | 0 | 1978 | 51.8 |
| | OWP | OPEN WOOD PORCH W/STEPS | 3 | 0 | 1978 | 662.0 |
| | LOF | LOFT | 3 | 0 | 1978 | 304.0 |
Sketch
| No sketches available for this property. |
Property Image
Land
| 1 | LB | LOW BANK | 0.1900 | 8276.40 | 60.00 | 0.00 | 1.00 | $675,000 | $0 |
Roll Value History
| 2026 | N/A | N/A | N/A | N/A | N/A |
| 2025 | $168,186 | $675,000 | $0 | $843,186 | $843,186 |
| 2024 | $163,161 | $650,000 | $0 | $813,161 | $813,161 |
| 2023 | $165,420 | $625,000 | $0 | $790,420 | $790,420 |
| 2022 | $151,833 | $600,000 | $0 | $751,833 | $751,833 |
| 2021 | $133,810 | $425,000 | $0 | $558,810 | $558,810 |
| 2020 | $130,745 | $375,000 | $0 | $505,745 | $505,745 |
| 2019 | $93,987 | $400,000 | $0 | $493,987 | $493,987 |
| 2018 | $76,128 | $350,000 | $0 | $426,128 | $426,128 |
| 2017 | $76,700 | $300,000 | $0 | $376,700 | $376,700 |
| 2016 | $77,845 | $300,000 | $0 | $377,845 | $377,845 |
| 2015 | $78,990 | $300,000 | $0 | $378,990 | $378,990 |
| 2014 | $80,136 | $300,000 | $0 | $380,136 | $380,136 |
| 2013 | $81,279 | $270,684 | $0 | $351,963 | $351,963 |
| 2012 | $80,244 | $270,684 | $0 | $350,928 | $350,928 |
| 2011 | $81,387 | $270,684 | $0 | $352,071 | $352,071 |
| 2010 | $87,013 | $270,684 | $0 | $357,697 | $357,697 |
| 2009 | $90,767 | $315,180 | $0 | $405,947 | $405,947 |
| 2008 | $91,926 | $315,180 | $0 | $407,106 | $407,106 |
| 2007 | $91,947 | $268,830 | $0 | $360,777 | $360,777 |
Deed and Sales History
| 1 | 09/14/2023 | QCD | Quit Claim Deed | BAMMERT, JAMES K | THE JAMES BAMMERT REVOCABLE LIVING TRUST | | | $0.00 | 57980 | 4564720 |
| 2 | 09/11/2023 | QCD | Quit Claim Deed | KAEMFER, KRISTINA L | BAMMERT, JAMES K | | | $0.00 | 57978 | 4564719 |
| 3 | 01/01/1900 | OTHER | Other - Misc. Documents | Unknown | BAMMERT, JAMES K | | | $0.00 | 0 | 0 |
Payout Agreement
| No payout information available.. |