Property
Account |
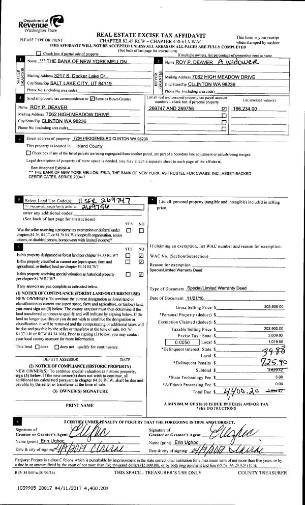
| Property ID: | 269756 | Abbreviated Legal Description: | HGHLND MDWS LOT 2 |
| Geographic ID: | S7120-00-00002-0 | Agent Code: | |
| Type: | Real | | |
| Tax Area: | 712 - APPRAISER-S Whid Schl Dist, outside Langley, improved, greater than 1 acre | Land Use Code | 11 |
| Open Space: | N | DFL | N |
| Historic Property: | N | Remodel Property: | N |
| Multi-Family Redevelopment: | N | | |
| Township: | | Section: | |
| Range: | |
Location |
| Address: | 7264 HEGGENES RD CLINTON, WA 98236 | Mapsco: | |
| Neighborhood: | Cycle 4 | Map ID: | 846 |
| Neighborhood CD: | 4 |
Owner |
| Name: | DEAVER, ROY P | Owner ID: | 279377 |
| Mailing Address: | 7062 HIGH MEADOW DR CLINTON, WA 98236 | % Ownership: | 100.0000000000% |
| | | Exemptions: | |
Taxes and Assessment Details
Values
| (+) Improvement Homesite Value: | + | $0 | |
| (+) Improvement Non-Homesite Value: | + | $77,850 | |
| (+) Land Homesite Value: | + | $0 | |
| (+) Land Non-Homesite Value: | + | $310,000 | |
| (+) Curr Use (HS): | + | $0 | $0 |
| (+) Curr Use (NHS): | + | $0 | $0 |
| | | -------------------------- | |
| (=) Market Value: | = | $387,850 | |
| (–) Productivity Loss: | – | $0 | |
| | | -------------------------- | |
| (=) Subtotal: | = | $387,850 | |
| (+) Senior Appraised Value: | + | $0 | |
| (+) Non-Senior Appraised Value: | + | $387,850 | |
| | | -------------------------- | |
| (=) Total Appraised Value: | = | $387,850 | |
| (–) Senior Exemption Loss: | – | $0 | |
| (–) Exemption Loss: | – | $0 | |
| | | -------------------------- | |
| (=) Taxable Value: | = | $387,850 | |
Taxing Jurisdiction
| Owner: | DEAVER, ROY P | | |
| % Ownership: | 100.0000000000% | | |
| Total Value: | $387,850 | | |
| Tax Area: | 712 - APPRAISER-S Whid Schl Dist, outside Langley, improved, greater than 1 acre |
| CF | Conservation Futures | 0.0313996660 | $387,850 | $387,850 | $12.18 | | |
| FIRE3 | Fire & Rescue Dist #3 S Whidbey GEN | 1.2130821753 | $387,850 | $387,850 | $470.49 | | |
| HOBOND | Hospital BOND | 0.1893405597 | $387,850 | $387,850 | $73.44 | | |
| HOGEN | Hospital GEN | 0.3848777722 | $387,850 | $387,850 | $149.27 | | |
| CE | County Current Expense | 0.3674210519 | $387,850 | $387,850 | $142.50 | | |
| CR | County Roads | 0.4614296361 | $387,850 | $387,850 | $178.97 | | |
| ISLANDEMS | Hospital GEN (EMS) | 0.4952018576 | $387,850 | $387,850 | $192.06 | | |
| LIB | Library Sno-Isle GEN | 0.3039084203 | $387,850 | $387,850 | $117.87 | | |
| PORTWHID | Port of S Whidbey GEN | 0.1086004714 | $387,850 | $387,850 | $42.12 | | |
| SCH206BOND | School 206 BOND | 0.5960237832 | $387,850 | $387,850 | $231.17 | | |
| SCH206CAP | School 206 CP | 0.3066144020 | $387,850 | $387,850 | $118.92 | | |
| SCH206MO | School 206 Enrichment | 0.4808755445 | $387,850 | $387,850 | $186.51 | | |
| ST | State School | 1.4761226122 | $387,850 | $387,850 | $572.51 | | |
| ST2 | State School Part 2 | 0.7953803475 | $387,850 | $387,850 | $308.49 | | |
| SWHIDPRBD | P & R S Whidbey BOND | 0.0144185398 | $387,850 | $387,850 | $5.59 | | |
| SWHIDPRBD3 | P & R S Whidbey BOND3 | 0.1483535547 | $387,850 | $387,850 | $57.54 | | |
| SWHIDPRMT | P & R S Whidbey GEN | 0.4600000000 | $387,850 | $387,850 | $178.41 | | |
| | Total Tax Rate: | 7.8330503944 | | | | | |
| | | | | Taxes w/Current Exemptions: | $3,038.04 | | |
| | | | | Taxes w/o Exemptions: | $3,038.04 | | |
Improvement / Building
| Improvement #1: | RESIDENTIAL | State Code: | Y | 2160.0 sqft | Value: | $77,850 |
| Bathrooms: | 2 | Bedrooms: | 2 | | Ceiling: | (NONE) | Exterior Wall/Cover: | WOOD SIDING | | Floor Covering: | (NONE) | Floor Structure: | WOOD W/SUBFLOOR | | Foundation: | CONCRETE | Heating: | FHA ELECTRIC | | Interior Finish: | (NONE) | Plumbing Fixture Cnt: | 9 | | Roof Slope: | 3" IN 12" | Roof Structure/Cover: | BEAM ALUMINUM HEAVY |
|
| | Type | Description | Class CD | Sub Class CD | Year Built | Area |
| | BAS | BASE/MAIN FLOOR | 3 | 0 | 1970 | 1080.0 |
| | OWP | OPEN WOOD PORCH W/STEPS | 3 | 0 | 1970 | 468.0 |
| | DWN | DOWNSTAIRS LIVING AREA | 3 | 0 | 1970 | 1080.0 |
| | ENP | ENCLOSED PORCH | 3 | 0 | 1970 | 160.0 |
| | OP1 | OPEN PORCH SLAB | 3 | 0 | 1970 | 432.0 |
| | UTY | STORAGE/UTILITY | 3 | 0 | 1970 | 432.0 |
Sketch
Property Image
Land
| 1 | 18 | AC (02.01-03.00) | 2.2100 | 96267.60 | 0.00 | 0.00 | 1.00 | $310,000 | $0 |
Roll Value History
| 2026 | N/A | N/A | N/A | N/A | N/A |
| 2025 | $77,850 | $310,000 | $0 | $387,850 | $387,850 |
| 2024 | $76,300 | $300,000 | $0 | $376,300 | $376,300 |
| 2023 | $77,850 | $290,000 | $0 | $367,850 | $367,850 |
| 2022 | $71,896 | $260,000 | $0 | $331,896 | $331,896 |
| 2021 | $62,020 | $175,000 | $0 | $237,020 | $237,020 |
| 2020 | $58,364 | $165,000 | $0 | $223,364 | $223,364 |
| 2019 | $44,133 | $200,000 | $0 | $244,133 | $244,133 |
| 2018 | $44,336 | $170,000 | $0 | $214,336 | $214,336 |
| 2017 | $44,744 | $150,000 | $0 | $194,744 | $194,744 |
| 2016 | $45,557 | $130,000 | $0 | $175,557 | $175,557 |
| 2015 | $46,371 | $100,000 | $0 | $146,371 | $146,371 |
| 2014 | $130,382 | $100,000 | $0 | $230,382 | $230,382 |
| 2013 | $132,359 | $85,000 | $0 | $217,359 | $217,359 |
| 2012 | $134,336 | $69,700 | $0 | $204,036 | $204,036 |
| 2011 | $136,314 | $82,000 | $0 | $218,314 | $218,314 |
| 2010 | $150,276 | $82,000 | $0 | $232,276 | $232,276 |
| 2009 | $156,317 | $155,000 | $0 | $311,317 | $311,317 |
| 2008 | $158,807 | $125,400 | $0 | $284,207 | $284,207 |
| 2007 | $159,468 | $125,400 | $0 | $284,868 | $284,868 |
Deed and Sales History
| 1 | 11/21/2016 | SPLTDWARDE | Special Limited Warranty Deed | BANK OF NEW YORK MELLON | DEAVER, ROY P | | | $203,900.00 | 28817 | 4420446 |
|   | |
| 2 | 09/14/2016 | TRUSTEED | Trustee's Deed | BELL, JEFFREY W & KAREN L | BANK OF NEW YORK MELLON | | | $0.00 | 26194 | 4407652 |
| 3 | 08/08/2001 | WD | Warranty Deed | HANAN, LARRY G | BELL, JEFFREY W | | | $179,463.00 | 13007 | 20039507 |
| 4 | 12/01/1990 | WD | Warranty Deed | Unknown | HANAN, LARRY G | | | $155,000.00 | 6743 | 90023541 |
Payout Agreement
| No payout information available.. |