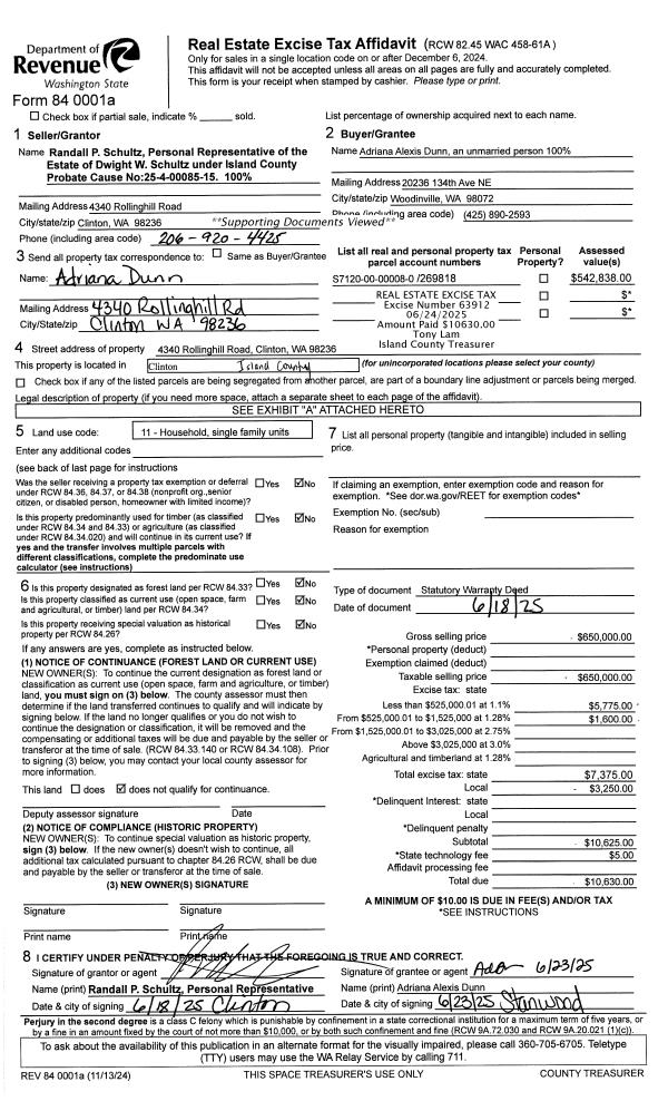
Property
Account |
| Property ID: | 269818 | Abbreviated Legal Description: | HGHLND MDWS LOT 8 |
| Geographic ID: | S7120-00-00008-0 | Agent Code: | |
| Type: | Real | | |
| Tax Area: | 712 - APPRAISER-S Whid Schl Dist, outside Langley, improved, greater than 1 acre | Land Use Code | 11 |
| Open Space: | N | DFL | N |
| Historic Property: | N | Remodel Property: | N |
| Multi-Family Redevelopment: | N | | |
| Township: | | Section: | |
| Range: | |
Location |
| Address: | 4340 ROLLINGHILL RD CLINTON, WA 98236 | Mapsco: | |
| Neighborhood: | Cycle 4 | Map ID: | 845 |
| Neighborhood CD: | 4 |
Owner |
| Name: | DUNN, ADRIANNA ALEXIS | Owner ID: | 317069 |
| Mailing Address: | 20236 134TH AVE NE WOODINVILLE, WA 98072 | % Ownership: | 100.0000000000% |
| | | Exemptions: | |
Taxes and Assessment Details
Values
| (+) Improvement Homesite Value: | + | $0 | |
| (+) Improvement Non-Homesite Value: | + | $234,530 | |
| (+) Land Homesite Value: | + | $0 | |
| (+) Land Non-Homesite Value: | + | $310,000 | |
| (+) Curr Use (HS): | + | $0 | $0 |
| (+) Curr Use (NHS): | + | $0 | $0 |
| | | -------------------------- | |
| (=) Market Value: | = | $544,530 | |
| (–) Productivity Loss: | – | $0 | |
| | | -------------------------- | |
| (=) Subtotal: | = | $544,530 | |
| (+) Senior Appraised Value: | + | $0 | |
| (+) Non-Senior Appraised Value: | + | $544,530 | |
| | | -------------------------- | |
| (=) Total Appraised Value: | = | $544,530 | |
| (–) Senior Exemption Loss: | – | $0 | |
| (–) Exemption Loss: | – | $0 | |
| | | -------------------------- | |
| (=) Taxable Value: | = | $544,530 | |
Taxing Jurisdiction
| Owner: | DUNN, ADRIANNA ALEXIS | | |
| % Ownership: | 100.0000000000% | | |
| Total Value: | $544,530 | | |
| Tax Area: | 712 - APPRAISER-S Whid Schl Dist, outside Langley, improved, greater than 1 acre |
| CF | Conservation Futures | 0.0313996660 | $544,530 | $544,530 | $17.10 | | |
| FIRE3 | Fire & Rescue Dist #3 S Whidbey GEN | 1.2130821753 | $544,530 | $544,530 | $660.56 | | |
| HOBOND | Hospital BOND | 0.1893405597 | $544,530 | $544,530 | $103.10 | | |
| HOGEN | Hospital GEN | 0.3848777722 | $544,530 | $544,530 | $209.58 | | |
| CE | County Current Expense | 0.3674210519 | $544,530 | $544,530 | $200.07 | | |
| CR | County Roads | 0.4614296361 | $544,530 | $544,530 | $251.26 | | |
| ISLANDEMS | Hospital GEN (EMS) | 0.4952018576 | $544,530 | $544,530 | $269.65 | | |
| LIB | Library Sno-Isle GEN | 0.3039084203 | $544,530 | $544,530 | $165.49 | | |
| PORTWHID | Port of S Whidbey GEN | 0.1086004714 | $544,530 | $544,530 | $59.14 | | |
| SCH206BOND | School 206 BOND | 0.5960237832 | $544,530 | $544,530 | $324.55 | | |
| SCH206CAP | School 206 CP | 0.3066144020 | $544,530 | $544,530 | $166.96 | | |
| SCH206MO | School 206 Enrichment | 0.4808755445 | $544,530 | $544,530 | $261.85 | | |
| ST | State School | 1.4761226122 | $544,530 | $544,530 | $803.79 | | |
| ST2 | State School Part 2 | 0.7953803475 | $544,530 | $544,530 | $433.11 | | |
| SWHIDPRBD | P & R S Whidbey BOND | 0.0144185398 | $544,530 | $544,530 | $7.85 | | |
| SWHIDPRBD3 | P & R S Whidbey BOND3 | 0.1483535547 | $544,530 | $544,530 | $80.78 | | |
| SWHIDPRMT | P & R S Whidbey GEN | 0.4600000000 | $544,530 | $544,530 | $250.48 | | |
| | Total Tax Rate: | 7.8330503944 | | | | | |
| | | | | Taxes w/Current Exemptions: | $4,265.32 | | |
| | | | | Taxes w/o Exemptions: | $4,265.32 | | |
Improvement / Building
| Improvement #1: | RESIDENTIAL | State Code: | Y | 1113.0 sqft | Value: | $234,530 |
| Bathrooms: | 2 | Bedrooms: | 3 | | Ceiling: | DRY WALL SPRAYED | Exterior Wall/Cover: | PLY/HARDBOARD T-111 | | Floor Covering: | CARPET/VINYL 80-20 | Floor Structure: | WOOD W/SUBFLOOR | | Foundation: | CONCRETE | Heating: | BASEBOARD ELECTRIC | | Interior Finish: | DRYWALL PAINT | Plumbing Fixture Cnt: | 9 | | Roof Slope: | 4" IN 12" | Roof Structure/Cover: | CJ ASPHALT |
|
| | Type | Description | Class CD | Sub Class CD | Year Built | Area |
| | BAS | BASE/MAIN FLOOR | 3 | 0 | 1974 | 1113.0 |
| | AGR | ATTACHED GARAGE | 3 | 0 | 1974 | 529.0 |
| | UTY | STORAGE/UTILITY | 3 | 0 | 1974 | 816.0 |
| | DGR | DETACHED GARAGE | 3 | 0 | 1974 | 558.6 |
| | CPD | OPEN CARPORT DIRT FLOOR | 3 | 0 | 1974 | 200.0 |
Sketch
Property Image
Land
| 1 | 18 | AC (02.01-03.00) | 2.1400 | 93218.40 | 0.00 | 0.00 | 1.00 | $310,000 | $0 |
Roll Value History
| 2026 | N/A | N/A | N/A | N/A | N/A |
| 2025 | $234,530 | $310,000 | $0 | $544,530 | $544,530 |
| 2024 | $242,838 | $300,000 | $0 | $542,838 | $542,838 |
| 2023 | $246,346 | $290,000 | $0 | $536,346 | $536,346 |
| 2022 | $226,256 | $260,000 | $0 | $486,256 | $486,256 |
| 2021 | $199,498 | $175,000 | $0 | $374,498 | $374,498 |
| 2020 | $171,205 | $165,000 | $0 | $336,205 | $336,205 |
| 2019 | $122,222 | $200,000 | $0 | $322,222 | $322,222 |
| 2018 | $122,638 | $170,000 | $0 | $292,638 | $292,638 |
| 2017 | $123,468 | $150,000 | $0 | $273,468 | $273,468 |
| 2016 | $125,129 | $130,000 | $0 | $255,129 | $255,129 |
| 2015 | $126,791 | $100,000 | $0 | $226,791 | $226,791 |
| 2014 | $121,394 | $100,000 | $0 | $221,394 | $221,394 |
| 2013 | $122,928 | $85,000 | $0 | $207,928 | $207,928 |
| 2012 | $124,462 | $69,700 | $0 | $194,162 | $194,162 |
| 2011 | $125,996 | $82,000 | $0 | $207,996 | $207,996 |
| 2010 | $116,137 | $82,000 | $0 | $198,137 | $198,137 |
| 2009 | $121,278 | $155,000 | $0 | $276,278 | $276,278 |
| 2008 | $116,670 | $125,400 | $0 | $242,070 | $242,070 |
| 2007 | $118,507 | $125,400 | $0 | $243,907 | $243,907 |
Deed and Sales History
| 1 | 06/18/2025 | WD | Warranty Deed | RANDALL P SCHULTZ, PR | DUNN, ADRIANNA ALEXIS | | | $650,000.00 | 63912 | 4587345 |
| 2 | 01/15/2009 | OTHER | Other - Misc. Documents | SCHULTZ, DWIGHT | SCHULTZ, DWIGHT W | | | $0.00 | 90109 | 4242944 |
| 3 | 08/26/1998 | WD | Warranty Deed | MUNZ, MICHAEL A | SCHULTZ, DWIGHT | | | $190,000.00 | 83423 | 98017834 |
| 4 | 03/01/1993 | WD | Warranty Deed | MORIARITY, JOHN R | MUNZ, MICHAEL A | | | $126,000.00 | 31087 | 93005643 |
| 5 | 10/01/1989 | WD | Warranty Deed | BEAR, DALE F | MORIARITY, JOHN R | | | $115,000.00 | 95103 | 89016397 |
| 6 | 07/01/1987 | PACD | Purchaser's Assignment | ALLERDICE, DWAIN B | BEAR, DALE F | | | $82,700.00 | 71930 | 87008923 |
| 7 | 07/01/1979 | EXECUTORD | Executor Deed | CLINTON, ROLAND | ALLERDICE, DWAIN B | | | $65,950.00 | 93607 | 356069 |
| 8 | 09/01/1978 | OTHER | Other - Misc. Documents | SCHULTZ, DWIGHT & | CLINTON, ROLAND | | | $0.00 | 845070 | 33969900 |
| 9 | 01/01/1900 | OTHER | Other - Misc. Documents | Unknown | SCHULTZ, DWIGHT & | | | $0.00 | 83423 | 98017834 |
Payout Agreement
| No payout information available.. |