Property
Account |
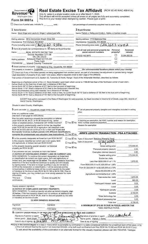
| Property ID: | 26983 | Abbreviated Legal Description: | 48 - IN GL3: BG 1166.88'E OF NWCR JC DAVIS DC S96.3' N58*E577' TPB N11*W520' TO ML SWLY ALG ML 100' S11*E 520' N58*E100' TPB EX RD |
| Geographic ID: | R13232-142-3870 | Agent Code: | |
| Type: | Real | | |
| Tax Area: | 312 - APPRAISER-Cpvl Schl Dist, outside Cpvl, improved, greater than 1 acre | Land Use Code | 11 |
| Open Space: | N | DFL | N |
| Historic Property: | N | Remodel Property: | N |
| Multi-Family Redevelopment: | N | | |
| Township: | 32 | Section: | 32 |
| Range: | R1 |
Location |
| Address: | 1723 MADRONA WAY COUPEVILLE, WA 98239 | Mapsco: | |
| Neighborhood: | Area 2 Waterfront Eastside Res | Map ID: | 171 |
| Neighborhood CD: | 2WFTE01R |
Owner |
| Name: | KELLEY, PATRICK J | Owner ID: | 309111 |
| Mailing Address: | CINDY L KELLEY 1715 MADRONA WAY COUPEVILLE, WA 98239 | % Ownership: | 100.0000000000% |
| | | Exemptions: | |
Taxes and Assessment Details
Values
| (+) Improvement Homesite Value: | + | $0 | |
| (+) Improvement Non-Homesite Value: | + | $9,292 | |
| (+) Land Homesite Value: | + | $0 | |
| (+) Land Non-Homesite Value: | + | $160,000 | |
| (+) Curr Use (HS): | + | $0 | $0 |
| (+) Curr Use (NHS): | + | $0 | $0 |
| | | -------------------------- | |
| (=) Market Value: | = | $169,292 | |
| (–) Productivity Loss: | – | $0 | |
| | | -------------------------- | |
| (=) Subtotal: | = | $169,292 | |
| (+) Senior Appraised Value: | + | $0 | |
| (+) Non-Senior Appraised Value: | + | $169,292 | |
| | | -------------------------- | |
| (=) Total Appraised Value: | = | $169,292 | |
| (–) Senior Exemption Loss: | – | $0 | |
| (–) Exemption Loss: | – | $0 | |
| | | -------------------------- | |
| (=) Taxable Value: | = | $169,292 | |
Taxing Jurisdiction
| Owner: | KELLEY, PATRICK J | | |
| % Ownership: | 100.0000000000% | | |
| Total Value: | $169,292 | | |
| Tax Area: | 312 - APPRAISER-Cpvl Schl Dist, outside Cpvl, improved, greater than 1 acre |
| CF | Conservation Futures | 0.0313996660 | $169,292 | $169,292 | $5.32 | | |
| CEM2 | Cemetery #2 | 0.0092609791 | $169,292 | $169,292 | $1.57 | | |
| FIRE5 | Fire & Rescue Dist #5 C Whidbey GEN | 1.1892169230 | $169,292 | $169,292 | $201.32 | | |
| FIRE5BOND | Fire & Rescue Dist #5 C Whidbey BOND | 0.1394359503 | $169,292 | $169,292 | $23.61 | | |
| HOBOND | Hospital BOND | 0.1893405597 | $169,292 | $169,292 | $32.05 | | |
| HOGEN | Hospital GEN | 0.3848777722 | $169,292 | $169,292 | $65.16 | | |
| CE | County Current Expense | 0.3674210519 | $169,292 | $169,292 | $62.20 | | |
| CR | County Roads | 0.4614296361 | $169,292 | $169,292 | $78.12 | | |
| ISLANDEMS | Hospital GEN (EMS) | 0.4952018576 | $169,292 | $169,292 | $83.83 | | |
| LIB | Library Sno-Isle GEN | 0.3039084203 | $169,292 | $169,292 | $51.45 | | |
| LIBCAP | Library Sno-Isle BOND (Cap Fac Imp Area) | 0.0528562629 | $169,292 | $169,292 | $8.95 | | |
| POCOUP | Port of Coupeville GEN | 0.1065226063 | $169,292 | $169,292 | $18.03 | | |
| POCOUPIDD | Port of Coupeville IDD | 0.3353038577 | $169,292 | $169,292 | $56.76 | | |
| COUPSDTECH | School 204 CP (TECH) | 0.1215123397 | $169,292 | $169,292 | $20.57 | | |
| SCH204MO | School 204 Enrichment | 0.6416662518 | $169,292 | $169,292 | $108.63 | | |
| ST | State School | 1.4761226122 | $169,292 | $169,292 | $249.90 | | |
| ST2 | State School Part 2 | 0.7953803475 | $169,292 | $169,292 | $134.65 | | |
| | Total Tax Rate: | 7.1008570943 | | | | | |
| | | | | Taxes w/Current Exemptions: | $1,202.12 | | |
| | | | | Taxes w/o Exemptions: | $1,202.12 | | |
Improvement / Building
| Improvement #1: | RESIDENTIAL | State Code: | Y | 0.0 sqft | Value: | $9,292 |
| | Type | Description | Class CD | Sub Class CD | Year Built | Area |
| | oSEP | SEPTIC | 3 | 0 | 1900 | 0.0 |
| | oUTI | UTILITY | 3 | 0 | 1900 | 140.0 |
| | OWR | OPEN WOOD PORCH W/STEPS/ROOF | 3 | 0 | 1900 | 30.6 |
Sketch
| No sketches available for this property. |
Property Image
Land
| 1 | 91 | UNDEVELOPED LAND-METES AND BOUNDS | 1.2000 | 52272.00 | 0.00 | 0.00 | 1.00 | $160,000 | $0 |
Roll Value History
| 2026 | N/A | N/A | N/A | N/A | N/A |
| 2025 | $9,292 | $160,000 | $0 | $169,292 | $169,292 |
| 2024 | $4,000 | $160,000 | $0 | $164,000 | $164,000 |
| 2023 | $4,000 | $290,000 | $0 | $294,000 | $294,000 |
| 2022 | $4,000 | $280,000 | $0 | $284,000 | $284,000 |
| 2021 | $4,000 | $150,000 | $0 | $154,000 | $154,000 |
| 2020 | $4,000 | $120,000 | $0 | $124,000 | $124,000 |
| 2019 | $4,000 | $125,000 | $0 | $129,000 | $129,000 |
| 2018 | $4,000 | $105,000 | $0 | $109,000 | $109,000 |
| 2017 | $4,000 | $90,000 | $0 | $94,000 | $94,000 |
| 2016 | $4,000 | $90,000 | $0 | $94,000 | $94,000 |
| 2015 | $4,000 | $125,000 | $0 | $129,000 | $129,000 |
| 2014 | $4,000 | $99,044 | $0 | $103,044 | $103,044 |
| 2013 | $4,000 | $99,044 | $0 | $103,044 | $103,044 |
| 2012 | $3,000 | $89,250 | $0 | $92,250 | $92,250 |
| 2011 | $3,000 | $105,000 | $0 | $108,000 | $108,000 |
| 2010 | $3,000 | $105,000 | $0 | $108,000 | $108,000 |
| 2009 | $3,000 | $125,000 | $0 | $128,000 | $128,000 |
| 2008 | $3,000 | $127,500 | $0 | $130,500 | $130,500 |
| 2007 | $3,000 | $127,500 | $0 | $130,500 | $130,500 |
Deed and Sales History
| 1 | 06/26/2023 | WD | Warranty Deed | GRIGAL, MARK & LAURI | KELLEY, PATRICK J | | | $170,000.00 | 57138 | 4561628 |
| 2 | 05/22/2007 | OTHER | Other - Misc. Documents | GRIGAL, MARK | GRIGAL, MARK & LAURI | | | $200.00 | 71903 | 0 |
| 3 | 05/10/2006 | WD | Warranty Deed | GRIGAL, MARK | GRIGAL, MARK | | | $0.00 | 62204 | 4170953 |
| 4 | 05/10/2006 | WD | Warranty Deed | MOODY, KENNETH C | GRIGAL, MARK | | | $150,000.00 | 62139 | 4170571 |
| 5 | 11/01/1995 | WD | Warranty Deed | ABRAHAMSE, GREGORY A | MOODY, KENNETH C | | | $64,500.00 | 53998 | 95018368 |
| 6 | 06/01/1990 | WD | Warranty Deed | ECHOLS, ELIZABETH J | ABRAHAMSE, GREGORY A | | | $40,000.00 | 3592 | 90011631 |
| 7 | 09/01/1989 | OTHER | Other - Misc. Documents | MARTIN, GERALD E | ECHOLS, ELIZABETH J | | | $0.00 | 63403 | 0 |
| 8 | 01/01/1900 | OTHER | Other - Misc. Documents | ECHOLS, ELIZABETH J | MARTIN, GERALD E | | | $0.00 | 0 | 0 |
| 9 | 01/01/1900 | REC | Real Estate Contract | Unknown | ECHOLS, ELIZABETH J | | | $0.00 | 58735 | 0 |
Payout Agreement
| No payout information available.. |