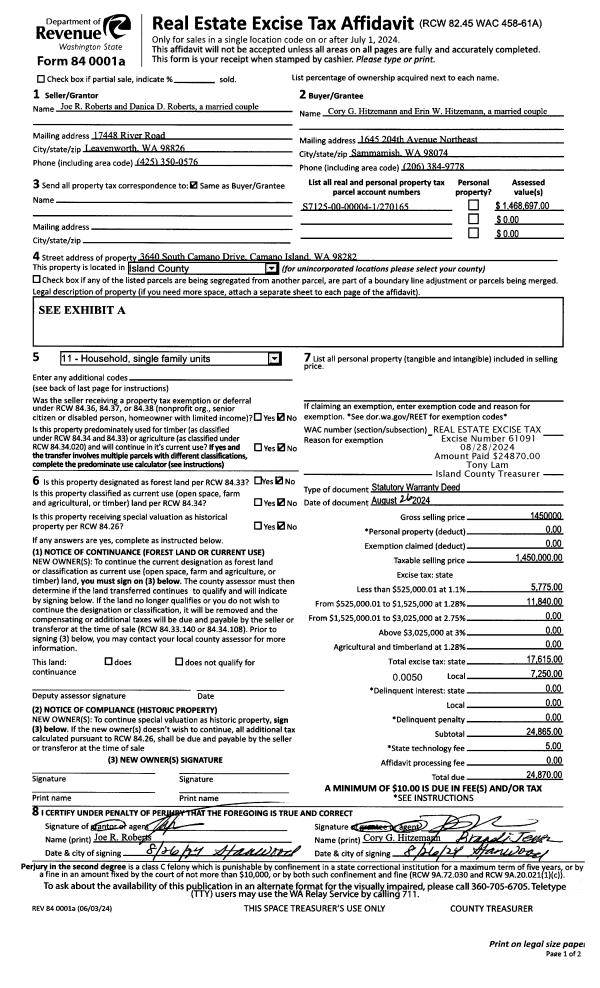
Property
Account |
| Property ID: | 270165 | Abbreviated Legal Description: | HILNDS CAM LOT 4 EX: BG NECR LOT 4 S ALG E BDY 90' W100' N127' N37*E TO N BDY SD LOT SELY ALG N BDY 100' TPB |
| Geographic ID: | S7125-00-00004-1 | Agent Code: | |
| Type: | Real | | |
| Tax Area: | 542 - APPRAISER-Stan/Cam Schl Dist, Special Dist, improved, greater than 1 acre | Land Use Code | 11 |
| Open Space: | N | DFL | N |
| Historic Property: | N | Remodel Property: | N |
| Multi-Family Redevelopment: | N | | |
| Township: | | Section: | |
| Range: | |
Location |
| Address: | 3640 SOUTH CAMANO DR CAMANO ISLAND, WA 98282 | Mapsco: | |
| Neighborhood: | 58RscamWF-South Cam | Map ID: | 874 |
| Neighborhood CD: | 58RscamWF |
Owner |
| Name: | HITZEMANN, CORY G | Owner ID: | 313683 |
| Mailing Address: | ERIN W HITZEMANN 1645 204TH AVE NORTHEAST SAMMAMISH, WA 98047 | % Ownership: | 100.0000000000% |
| | | Exemptions: | |
Taxes and Assessment Details
Values
| (+) Improvement Homesite Value: | + | $0 | |
| (+) Improvement Non-Homesite Value: | + | $604,183 | |
| (+) Land Homesite Value: | + | $0 | |
| (+) Land Non-Homesite Value: | + | $875,000 | |
| (+) Curr Use (HS): | + | $0 | $0 |
| (+) Curr Use (NHS): | + | $0 | $0 |
| | | -------------------------- | |
| (=) Market Value: | = | $1,479,183 | |
| (–) Productivity Loss: | – | $0 | |
| | | -------------------------- | |
| (=) Subtotal: | = | $1,479,183 | |
| (+) Senior Appraised Value: | + | $0 | |
| (+) Non-Senior Appraised Value: | + | $1,479,183 | |
| | | -------------------------- | |
| (=) Total Appraised Value: | = | $1,479,183 | |
| (–) Senior Exemption Loss: | – | $0 | |
| (–) Exemption Loss: | – | $0 | |
| | | -------------------------- | |
| (=) Taxable Value: | = | $1,479,183 | |
Taxing Jurisdiction
| Owner: | HITZEMANN, CORY G | | |
| % Ownership: | 100.0000000000% | | |
| Total Value: | $1,479,183 | | |
| Tax Area: | 542 - APPRAISER-Stan/Cam Schl Dist, Special Dist, improved, greater than 1 acre |
| CF | Conservation Futures | 0.0313996660 | $1,479,183 | $1,479,183 | $46.45 | | |
| EMS1 | Fire & Rescue Dist #1 Camano GEN (EMS) | 0.4998471806 | $1,479,183 | $1,479,183 | $739.37 | | |
| FIRE1 | Fire & Rescue Dist #1 Camano GEN | 1.2496603404 | $1,479,183 | $1,479,183 | $1,848.48 | | |
| FIRE1BOND | Fire & Rescue Dist #1 Camano BOND | 0.1630371212 | $1,479,183 | $1,479,183 | $241.16 | | |
| CE | County Current Expense | 0.3674210519 | $1,479,183 | $1,479,183 | $543.48 | | |
| CR | County Roads | 0.4614296361 | $1,479,183 | $1,479,183 | $682.54 | | |
| LIB | Library Sno-Isle GEN | 0.3039084203 | $1,479,183 | $1,479,183 | $449.54 | | |
| SCH205_401 | School 205-401 Enrichment | 1.3697998934 | $1,479,183 | $1,479,183 | $2,026.18 | | |
| SCH205BOND | School 205-401 BOND | 0.9354199323 | $1,479,183 | $1,479,183 | $1,383.66 | | |
| ST | State School | 1.4761226122 | $1,479,183 | $1,479,183 | $2,183.46 | | |
| ST2 | State School Part 2 | 0.7953803475 | $1,479,183 | $1,479,183 | $1,176.51 | | |
| | Total Tax Rate: | 7.6534262019 | | | | | |
| | | | | Taxes w/Current Exemptions: | $11,320.83 | | |
| | | | | Taxes w/o Exemptions: | $11,320.83 | | |
Improvement / Building
| Improvement #1: | RESIDENTIAL | State Code: | Y | 2420.7 sqft | Value: | $604,183 |
| Bathrooms: | 2.5 | Bedrooms: | 2 | | Ceiling: | TONGUE & GROOVE | Cooling: | HEAT PUMP/CONV/V | | Exterior Wall/Cover: | WOOD SIDING | Floor Covering: | SOFTWOOD/VINYL 80-20 | | Floor Structure: | WOOD W/SUBFLOOR | Foundation: | CONCRETE | | Interior Finish: | DRYWALL PAINT | Plumbing Fixture Cnt: | 13 | | Roof Slope: | 3" IN 12" | Roof Structure/Cover: | BEAM ROLL COMPOSITION |
|
| | Type | Description | Class CD | Sub Class CD | Year Built | Area |
| | BAS | BASE/MAIN FLOOR | 5 | 0 | 1965 | 1579.7 |
| | OWP | OPEN WOOD PORCH W/STEPS | 5 | 0 | 1965 | 636.0 |
| | OP1 | OPEN PORCH SLAB | 5 | 0 | 1965 | 468.1 |
| | DWN | DOWNSTAIRS LIVING AREA | 5 | 0 | 1965 | 841.0 |
| | DGR | DETACHED GARAGE | 5 | 0 | 1965 | 864.0 |
| | CPD | OPEN CARPORT DIRT FLOOR | 5 | 0 | 1965 | 165.0 |
| | UTY | STORAGE/UTILITY | 5 | 0 | 1965 | 168.0 |
| | CPD | OPEN CARPORT DIRT FLOOR | 5 | 0 | 1965 | 432.0 |
| | UTY | STORAGE/UTILITY | 5 | 0 | 1965 | 864.0 |
| | CPD | OPEN CARPORT DIRT FLOOR | 5 | 0 | 1965 | 280.0 |
Sketch
| No sketches available for this property. |
Property Image
Land
| 1 | HB | HIGH BLUFF | 4.3500 | 189486.00 | 230.00 | 0.00 | 1.00 | $875,000 | $0 |
Roll Value History
| 2026 | N/A | N/A | N/A | N/A | N/A |
| 2025 | $604,183 | $875,000 | $0 | $1,479,183 | $1,479,183 |
| 2024 | $611,441 | $850,000 | $0 | $1,461,441 | $1,461,441 |
| 2023 | $618,697 | $850,000 | $0 | $1,468,697 | $1,468,697 |
| 2022 | $566,807 | $750,000 | $0 | $1,316,807 | $1,316,807 |
| 2021 | $323,482 | $525,000 | $0 | $848,482 | $848,482 |
| 2020 | $303,497 | $450,000 | $0 | $753,497 | $753,497 |
| 2019 | $235,122 | $500,000 | $0 | $735,122 | $735,122 |
| 2018 | $235,826 | $450,000 | $0 | $685,826 | $685,826 |
| 2017 | $237,239 | $450,000 | $0 | $687,239 | $687,239 |
| 2016 | $215,129 | $450,000 | $0 | $665,129 | $665,129 |
| 2015 | $163,944 | $450,000 | $0 | $613,944 | $613,944 |
| 2014 | $166,723 | $450,000 | $0 | $616,723 | $616,723 |
| 2013 | $158,752 | $414,240 | $0 | $572,992 | $572,992 |
| 2012 | $161,089 | $487,341 | $0 | $648,430 | $259,372 |
| 2011 | $163,430 | $609,176 | $0 | $772,606 | $309,042 |
| 2010 | $172,972 | $676,862 | $0 | $849,834 | $339,934 |
| 2009 | $178,906 | $729,107 | $0 | $908,013 | $363,205 |
| 2008 | $182,068 | $720,216 | $0 | $902,284 | $902,284 |
| 2007 | $185,192 | $720,216 | $0 | $905,408 | $905,408 |
Deed and Sales History
| 1 | 08/26/2024 | WD | Warranty Deed | ROBERTS, JOE R | HITZEMANN, CORY G | | | $1,450,000.00 | 61091 | 4576360 |
| 2 | 03/10/2021 | WD | Warranty Deed | JOHNSON, MARVIN W | ROBERTS, JOE R | | | $1,400,000.00 | 47365 | 4513714 |
| 3 | 09/06/2013 | WD | Warranty Deed | OTIS, NANCY LYNN | JOHNSON, MARVIN W | | | $609,500.00 | 12704 | 4347697 |
| 4 | 11/11/2003 | WD | Warranty Deed | CAMERON, VERNA H | OTIS, NANCY LYNN | | | $460,000.00 | 35450 | 4084966 |
| 5 | 02/01/1990 | DECREE | Divorce Decree/Legal Separation | RADFORD, WELLINGTON M | CAMERON, VERNA H | | | $0.00 | 63485 | 90000013 |
| 6 | 10/01/1988 | WD | Warranty Deed | MINGST, DONALD M | RADFORD, WELLINGTON M | | | $150,000.00 | 83402 | 88012722 |
| 7 | 01/01/1900 | OTHER | Other - Misc. Documents | Unknown | MINGST, DONALD M | | | $0.00 | 0 | 0 |
Payout Agreement
| No payout information available.. |