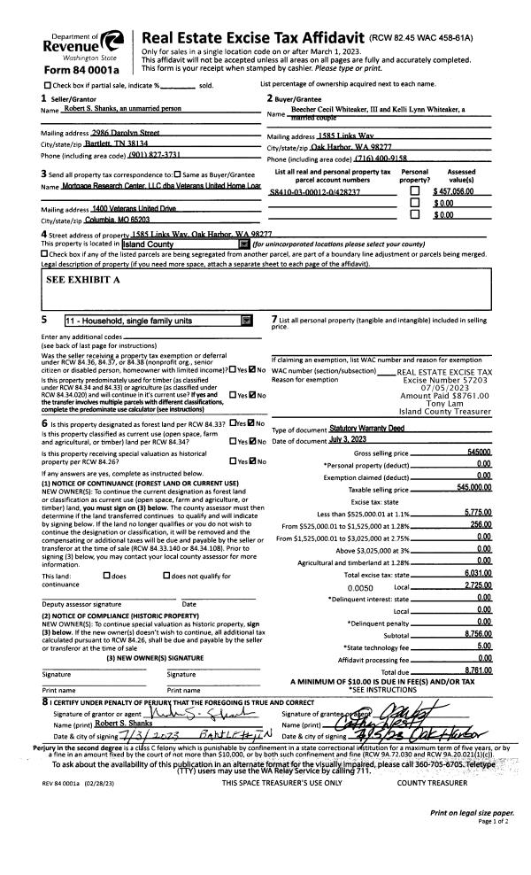
Property
Account |
| Property ID: | 270593 | Abbreviated Legal Description: | HIGHLANDS ON CAMANO N65'OF LOT 32 ELY OF W CAM DR INCL ADJ VAC ST ALG ELN |
| Geographic ID: | S7125-00-00032-1 | Agent Code: | |
| Type: | Real | | |
| Tax Area: | 549 - APPRAISER-Stan/Cam Schl Dist, Special Dist, vacant & 50 acres or less | Land Use Code | 99 |
| Open Space: | N | DFL | N |
| Historic Property: | N | Remodel Property: | N |
| Multi-Family Redevelopment: | N | | |
| Township: | | Section: | |
| Range: | |
Location |
| Address: | | Mapsco: | |
| Neighborhood: | 58SofTamarackNB | Map ID: | 869 |
| Neighborhood CD: | 58RstamNB |
Owner |
| Name: | KLEINER TTEE, KAREN | Owner ID: | 308882 |
| Mailing Address: | 9829 NORTHEAST 25TH ST BELLEVUE, WA 98004 | % Ownership: | 100.0000000000% |
| | | Exemptions: | |
Taxes and Assessment Details
Values
| (+) Improvement Homesite Value: | + | N/A | |
| (+) Improvement Non-Homesite Value: | + | N/A | |
| (+) Land Homesite Value: | + | N/A | |
| (+) Land Non-Homesite Value: | + | N/A | Ag / Timber Use Value |
| (+) Curr Use (HS): | + | N/A | N/A |
| (+) Curr Use (NHS): | + | N/A | N/A |
| | | -------------------------- | |
| (=) Market Value: | = | N/A | |
| (–) Productivity Loss: | – | N/A | |
| | | -------------------------- | |
| (=) Subtotal: | = | N/A | |
| (+) Senior Appraised Value: | + | N/A | |
| (+) Non-Senior Appraised Value: | + | N/A | |
| | | -------------------------- | |
| (=) Total Appraised Value: | = | N/A | |
| (–) Senior Exemption Loss: | – | N/A | |
| (–) Exemption Loss: | – | N/A | |
| | | -------------------------- | |
| (=) Taxable Value: | = | N/A | |
Taxing Jurisdiction
| Owner: | KLEINER TTEE, KAREN | | |
| % Ownership: | 100.0000000000% | | |
| Total Value: | N/A | | |
| Tax Area: | 549 - APPRAISER-Stan/Cam Schl Dist, Special Dist, vacant & 50 acres or less |
| CF | Conservation Futures | N/A | N/A | N/A | N/A | | |
| CCD | Camano Conservation District | N/A | N/A | N/A | N/A | | |
| EMS1 | Fire & Rescue Dist #1 Camano GEN (EMS) | N/A | N/A | N/A | N/A | | |
| CE | County Current Expense | N/A | N/A | N/A | N/A | | |
| CR | County Roads | N/A | N/A | N/A | N/A | | |
| LCIB | Library Sno-Isle BOND (Camano Island) | N/A | N/A | N/A | N/A | | |
| LIB | Library Sno-Isle GEN | N/A | N/A | N/A | N/A | | |
| SCH205_401 | School 205-401 Enrichment | N/A | N/A | N/A | N/A | | |
| SCH205BOND | School 205-401 BOND | N/A | N/A | N/A | N/A | | |
| ST | State School | N/A | N/A | N/A | N/A | | |
| ST2 | State School Part 2 | N/A | N/A | N/A | N/A | | |
| PTMBNAREG | Port of Mabana Regular Levy | N/A | N/A | N/A | N/A | | |
| | Total Tax Rate: | N/A | | | | | |
| | | | | Taxes w/Current Exemptions: | N/A | | |
| | | | | Taxes w/o Exemptions: | N/A | | |
Improvement / Building
Sketch
| No sketches available for this property. |
Property Image
Land
| 1 | 16 | AC (00.51-01.00) | 0.9700 | 42253.20 | 0.00 | 0.00 | 1.00 | N/A | N/A |
Roll Value History
| 2026 | N/A | N/A | N/A | N/A | N/A |
| 2025 | $0 | $17,000 | $0 | $17,000 | $17,000 |
| 2024 | $0 | $17,000 | $0 | $17,000 | $17,000 |
| 2023 | $0 | $9,000 | $0 | $9,000 | $9,000 |
| 2022 | $0 | $9,000 | $0 | $9,000 | $9,000 |
| 2021 | $0 | $7,000 | $0 | $7,000 | $7,000 |
| 2020 | $0 | $7,000 | $0 | $7,000 | $7,000 |
| 2019 | $0 | $7,000 | $0 | $7,000 | $7,000 |
| 2018 | $0 | $7,000 | $0 | $7,000 | $7,000 |
| 2017 | $0 | $5,000 | $0 | $5,000 | $5,000 |
| 2016 | $0 | $5,000 | $0 | $5,000 | $5,000 |
| 2015 | $0 | $13,280 | $0 | $13,280 | $13,280 |
| 2014 | $0 | $13,280 | $0 | $13,280 | $13,280 |
| 2013 | $0 | $13,280 | $0 | $13,280 | $13,280 |
| 2012 | $0 | $13,280 | $0 | $13,280 | $13,280 |
| 2011 | $0 | $13,280 | $0 | $13,280 | $13,280 |
| 2010 | $0 | $13,280 | $0 | $13,280 | $13,280 |
| 2009 | $0 | $80,400 | $0 | $80,400 | $80,400 |
| 2008 | $0 | $71,280 | $0 | $71,280 | $71,280 |
| 2007 | $0 | $85,000 | $0 | $85,000 | $85,000 |
Deed and Sales History
| 1 | 06/01/2023 | WD | Warranty Deed | JOLLEY, JOHN J | KLEINER TTEE, KAREN | | | $1,995,000.00 | 56918 | 4560694 |
|   | |
| 2 | 05/01/1998 | WD | Warranty Deed | JOLLEY, JACK J | JOLLEY, JOHN J | | | | 82250 | 98011758 |
| 3 | 06/01/1983 | QCD | Quit Claim Deed | JOLLEY, JACK J | GRANT, JAMES W | | | $0.00 | 31580 | 410801 |
| 4 | 06/01/1983 | PACD | Purchaser's Assignment | GRANT, MARY P | JOLLEY, JACK J | | | $28,000.00 | 31581 | 410800 |
| 5 | 06/01/1980 | CD | DNU - Correction Deed | GRANT, JAMES W | GRANT, MARY P | | | $0.00 | 2034 | 370051 |
| 6 | 06/01/1980 | EXECUTORD | Executor Deed | SPRUNG, DOUGLAS L | GRANT, JAMES W | | | $152,500.00 | 2011 | 369979 |
| 7 | 01/01/1900 | OTHER | Other - Misc. Documents | Unknown | SPRUNG, DOUGLAS L | | | $0.00 | 0 | 0 |
Payout Agreement
| No payout information available.. |