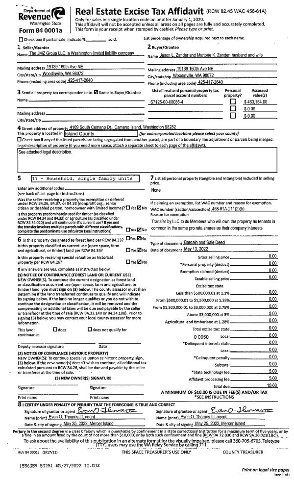
Property
Account |
| Property ID: | 270753 | Abbreviated Legal Description: | HIGHLANDS ON CAMANO N85' OF FOLL TR: PT LOT 35 LY ELY OF CO RD & N/2 OF LOT 40 TGW PT VAC STS 316D580 SUB EZ COMB 7/9/82 (TR A SP75-36) |
| Geographic ID: | S7125-00-00035-4 | Agent Code: | |
| Type: | Real | | |
| Tax Area: | 542 - APPRAISER-Stan/Cam Schl Dist, Special Dist, improved, greater than 1 acre | Land Use Code | 11 |
| Open Space: | N | DFL | N |
| Historic Property: | N | Remodel Property: | N |
| Multi-Family Redevelopment: | N | | |
| Township: | | Section: | |
| Range: | |
Location |
| Address: | 4169 SOUTH CAMANO DR CAMANO ISLAND, WA 98282 | Mapsco: | |
| Neighborhood: | 58SofTamarackS | Map ID: | 884 |
| Neighborhood CD: | 58RstamS |
Owner |
| Name: | ZANDER ET AL, JASON | Owner ID: | 311438 |
| Mailing Address: | 9022 NE 40TH PL YARROW POINT, WA 98004 | % Ownership: | 100.0000000000% |
| | | Exemptions: | |
Taxes and Assessment Details
Values
| (+) Improvement Homesite Value: | + | $0 | |
| (+) Improvement Non-Homesite Value: | + | $1,084,030 | |
| (+) Land Homesite Value: | + | $0 | |
| (+) Land Non-Homesite Value: | + | $280,000 | |
| (+) Curr Use (HS): | + | $0 | $0 |
| (+) Curr Use (NHS): | + | $0 | $0 |
| | | -------------------------- | |
| (=) Market Value: | = | $1,364,030 | |
| (–) Productivity Loss: | – | $0 | |
| | | -------------------------- | |
| (=) Subtotal: | = | $1,364,030 | |
| (+) Senior Appraised Value: | + | $0 | |
| (+) Non-Senior Appraised Value: | + | $1,364,030 | |
| | | -------------------------- | |
| (=) Total Appraised Value: | = | $1,364,030 | |
| (–) Senior Exemption Loss: | – | $0 | |
| (–) Exemption Loss: | – | $0 | |
| | | -------------------------- | |
| (=) Taxable Value: | = | $1,364,030 | |
Taxing Jurisdiction
| Owner: | ZANDER ET AL, JASON | | |
| % Ownership: | 100.0000000000% | | |
| Total Value: | $1,364,030 | | |
| Tax Area: | 542 - APPRAISER-Stan/Cam Schl Dist, Special Dist, improved, greater than 1 acre |
| CF | Conservation Futures | 0.0313996660 | $1,364,030 | $1,364,030 | $42.83 | | |
| EMS1 | Fire & Rescue Dist #1 Camano GEN (EMS) | 0.4998471806 | $1,364,030 | $1,364,030 | $681.81 | | |
| FIRE1 | Fire & Rescue Dist #1 Camano GEN | 1.2496603404 | $1,364,030 | $1,364,030 | $1,704.57 | | |
| FIRE1BOND | Fire & Rescue Dist #1 Camano BOND | 0.1630371212 | $1,364,030 | $1,364,030 | $222.39 | | |
| CE | County Current Expense | 0.3674210519 | $1,364,030 | $1,364,030 | $501.17 | | |
| CR | County Roads | 0.4614296361 | $1,364,030 | $1,364,030 | $629.40 | | |
| LIB | Library Sno-Isle GEN | 0.3039084203 | $1,364,030 | $1,364,030 | $414.54 | | |
| SCH205_401 | School 205-401 Enrichment | 1.3697998934 | $1,364,030 | $1,364,030 | $1,868.45 | | |
| SCH205BOND | School 205-401 BOND | 0.9354199323 | $1,364,030 | $1,364,030 | $1,275.94 | | |
| ST | State School | 1.4761226122 | $1,364,030 | $1,364,030 | $2,013.48 | | |
| ST2 | State School Part 2 | 0.7953803475 | $1,364,030 | $1,364,030 | $1,084.92 | | |
| | Total Tax Rate: | 7.6534262019 | | | | | |
| | | | | Taxes w/Current Exemptions: | $10,439.50 | | |
| | | | | Taxes w/o Exemptions: | $10,439.50 | | |
Improvement / Building
| Improvement #1: | RESIDENTIAL | State Code: | Y | 1455.0 sqft | Value: | $364,933 |
| Bathrooms: | 1 | Bedrooms: | 1 | | Ceiling: | DRYWALL PAINTED | Exterior Wall/Cover: | WOOD SIDING | | Floor Covering: | TERRAZO | Floor Structure: | WOOD W/SUBFLOOR | | Foundation: | CONCRETE | Heating: | WALL HEAT ELECTRIC | | Interior Finish: | DRYWALL PAINT | Plumbing Fixture Cnt: | 6 | | Roof Slope: | 8" IN 12" | Roof Structure/Cover: | CJ ASPHALT |
|
| | Type | Description | Class CD | Sub Class CD | Year Built | Area |
| | BAS | BASE/MAIN FLOOR | 3 | 0 | 1918 | 927.0 |
| | OCP | OPEN CARPORT | 3 | 0 | 1918 | 341.0 |
| | UTY | STORAGE/UTILITY | 3 | 0 | 1918 | 33.0 |
| | UTY | STORAGE/UTILITY | 3 | 0 | 1918 | 160.0 |
| | OWC | OPEN WOOD PORCH W/STEPS/ROOF/C | 3 | 0 | 1918 | 156.0 |
| | UPH | HALF STORY | 3 | 0 | 1918 | 528.0 |
| | DGR | DETACHED GARAGE | 3 | 0 | 1918 | 1800.0 |
| | DGR | DETACHED GARAGE | 3 | 0 | 1918 | 384.0 |
| Improvement #2: | RESIDENTIAL | State Code: | Y | 1738.5 sqft | Value: | $719,097 |
| Bathrooms: | 1.5 | Bedrooms: | 0 | | Ceiling: | TONGUE & GROOVE | Exterior Wall/Cover: | CEMENT FIBER | | Floor Covering: | HARDWOOD/CARP 80-20 | Floor Structure: | WOOD W/SUBFLOOR | | Foundation: | SLAB | Heating: | FHA GAS | | Interior Finish: | DRYWALL PAINT | Plumbing Fixture Cnt: | 10 | | Roof Slope: | 8" IN 12" | Roof Structure/Cover: | CJ ASPHALT |
|
| | Type | Description | Class CD | Sub Class CD | Year Built | Area |
| | BAS | BASE/MAIN FLOOR | 4 | 0 | 2024 | 1260.0 |
| | UTY | STORAGE/UTILITY | 4 | 0 | 2024 | 1931.5 |
| | AGR | ATTACHED GARAGE | 4 | 0 | 2024 | 1670.0 |
| | DWN | DOWNSTAIRS LIVING AREA | 4 | 0 | 2024 | 478.5 |
| | OWP | OPEN WOOD PORCH W/STEPS | 4 | 0 | 2024 | 0.0 |
| | OWC | OPEN WOOD PORCH W/STEPS/ROOF/C | 4 | 0 | 2024 | 1244.0 |
Sketch
Property Image
Land
| 1 | 18 | AC (02.01-03.00) | 2.1500 | 93654.00 | 0.00 | 0.00 | 1.00 | $280,000 | $0 |
Roll Value History
| 2026 | N/A | N/A | N/A | N/A | N/A |
| 2025 | $1,084,030 | $280,000 | $0 | $1,364,030 | $1,364,030 |
| 2024 | $1,031,581 | $260,000 | $0 | $1,291,581 | $1,291,581 |
| 2023 | $487,104 | $240,000 | $0 | $727,104 | $727,104 |
| 2022 | $425,702 | $210,000 | $0 | $635,702 | $635,702 |
| 2021 | $303,154 | $160,000 | $0 | $463,154 | $463,154 |
| 2020 | $296,032 | $140,000 | $0 | $436,032 | $436,032 |
| 2019 | $219,091 | $170,000 | $0 | $389,091 | $389,091 |
| 2018 | $219,704 | $150,000 | $0 | $369,704 | $369,704 |
| 2017 | $187,441 | $80,000 | $0 | $267,441 | $267,441 |
| 2016 | $189,672 | $80,000 | $0 | $269,672 | $269,672 |
| 2015 | $137,298 | $50,000 | $0 | $187,298 | $187,298 |
| 2014 | $138,939 | $50,000 | $0 | $188,939 | $188,939 |
| 2013 | $140,578 | $50,000 | $0 | $190,578 | $190,578 |
| 2012 | $142,217 | $74,400 | $0 | $216,617 | $216,617 |
| 2011 | $143,857 | $93,000 | $0 | $236,857 | $236,857 |
| 2010 | $147,682 | $93,000 | $0 | $240,682 | $240,682 |
| 2009 | $149,479 | $120,000 | $0 | $269,479 | $269,479 |
| 2008 | $151,120 | $99,000 | $0 | $250,120 | $250,120 |
| 2007 | $153,366 | $110,000 | $0 | $263,366 | $263,366 |
Deed and Sales History
| 1 | 04/18/2023 | OTHER | Other - Misc. Documents | ZANDER, JASON L | ZANDER, MICHAEL E | | | $0.00 | 56827 | 4560408 |
| 2 | 05/13/2022 | BARGSLD | Bargain And Sale Deed | THE JMZ GROUP LLC | ZANDER, JASON L | | | $0.00 | 53251 | 4545818 |
| 3 | 05/28/2021 | BARGSLD | Bargain And Sale Deed | ZANDER, JASON L | THE JMZ GROUP LLC | | | $0.00 | 48732 | 4522132 |
| 4 | 10/09/2017 | QCD | Quit Claim Deed | ZANDER, JASON L | ZANDER, JASON L | | | $0.00 | 31463 | 4431860 |
| 5 | 10/09/2017 | WD | Warranty Deed | WILSON, DAVID T | ZANDER, JASON L | | | $386,000.00 | 31464 | 4431861 |
| 6 | 04/27/2005 | WD | Warranty Deed | LAMB, MICHAEL S | WILSON, DAVID T | | | $252,850.00 | 51911 | 4133064 |
| 7 | 10/28/2003 | WD | Warranty Deed | NASH, GLEN | LAMB, MICHAEL S | | | $212,000.00 | 35007 | 4081844 |
| 8 | 12/01/1989 | WD | Warranty Deed | CARLSON, SHARRON H | NASH, GLEN | | | $84,500.00 | 95695 | 89018274 |
| 9 | 01/01/1989 | DECREE | Divorce Decree/Legal Separation | CARLSON, ROD W | CARLSON, SHARRON H | | | $0.00 | 90050 | 89000170 |
| 10 | 07/01/1982 | OTHER | Other - Misc. Documents | CARLSON, ROD W | CARLSON, ROD W | | | $0.00 | 59554 | 0 |
| 11 | 04/01/1982 | OTHER | Other - Misc. Documents | CARLSON, ROD W | CARLSON, ROD W | | | $1.00 | 59475 | 0 |
| 12 | 07/01/1975 | OTHER | Other - Misc. Documents | Unknown | CARLSON, ROD W | | | $4,900.00 | 55932 | 0 |
Payout Agreement
| No payout information available.. |