Property
Account |
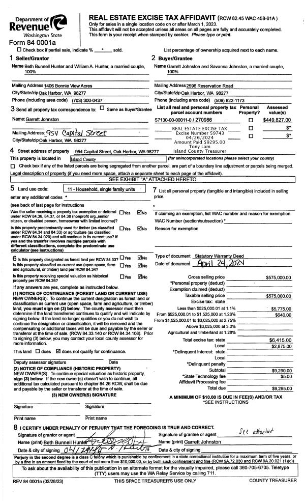
| Property ID: | 270986 | Abbreviated Legal Description: | HIGHLD TR LOT 11 |
| Geographic ID: | S7130-00-00011-0 | Agent Code: | |
| Type: | Real | | |
| Tax Area: | 110 - APPRAISER-OH Schl Dist, outside OH, improved & 1 acre or less | Land Use Code | 11 |
| Open Space: | N | DFL | N |
| Historic Property: | N | Remodel Property: | N |
| Multi-Family Redevelopment: | N | | |
| Township: | | Section: | |
| Range: | |
Location |
| Address: | 954 CAPITAL ST OAK HARBOR, WA 98277 | Mapsco: | |
| Neighborhood: | Cycle 1 | Map ID: | 119 |
| Neighborhood CD: | 1 |
Owner |
| Name: | JOHNSTON, GARRETT | Owner ID: | 312111 |
| Mailing Address: | SAVANNA JOHNSTON 954 CAPITAL ST OAK HARBOR, WA 98277 | % Ownership: | 100.0000000000% |
| | | Exemptions: | |
Taxes and Assessment Details
Values
| (+) Improvement Homesite Value: | + | $0 | |
| (+) Improvement Non-Homesite Value: | + | $362,554 | |
| (+) Land Homesite Value: | + | $0 | |
| (+) Land Non-Homesite Value: | + | $180,000 | |
| (+) Curr Use (HS): | + | $0 | $0 |
| (+) Curr Use (NHS): | + | $0 | $0 |
| | | -------------------------- | |
| (=) Market Value: | = | $542,554 | |
| (–) Productivity Loss: | – | $0 | |
| | | -------------------------- | |
| (=) Subtotal: | = | $542,554 | |
| (+) Senior Appraised Value: | + | $0 | |
| (+) Non-Senior Appraised Value: | + | $542,554 | |
| | | -------------------------- | |
| (=) Total Appraised Value: | = | $542,554 | |
| (–) Senior Exemption Loss: | – | $0 | |
| (–) Exemption Loss: | – | $0 | |
| | | -------------------------- | |
| (=) Taxable Value: | = | $542,554 | |
Taxing Jurisdiction
| Owner: | JOHNSTON, GARRETT | | |
| % Ownership: | 100.0000000000% | | |
| Total Value: | $542,554 | | |
| Tax Area: | 110 - APPRAISER-OH Schl Dist, outside OH, improved & 1 acre or less |
| CF | Conservation Futures | 0.0313996660 | $542,554 | $542,554 | $17.04 | | |
| CEM1 | Cemetery #1 | 0.0040018856 | $542,554 | $542,554 | $2.17 | | |
| FIRE2 | Fire & Rescue Dist #2 N Whidbey GEN | 0.5381486274 | $542,554 | $542,554 | $291.97 | | |
| HOBOND | Hospital BOND | 0.1893405597 | $542,554 | $542,554 | $102.73 | | |
| HOGEN | Hospital GEN | 0.3848777722 | $542,554 | $542,554 | $208.82 | | |
| CE | County Current Expense | 0.3674210519 | $542,554 | $542,554 | $199.35 | | |
| CR | County Roads | 0.4614296361 | $542,554 | $542,554 | $250.35 | | |
| ISLANDEMS | Hospital GEN (EMS) | 0.4952018576 | $542,554 | $542,554 | $268.67 | | |
| LIB | Library Sno-Isle GEN | 0.3039084203 | $542,554 | $542,554 | $164.89 | | |
| NWHIDPRMT | P & R N Whidbey GEN | 0.1990272349 | $542,554 | $542,554 | $107.98 | | |
| SCH201MO | School 201 Enrichment | 2.3851112745 | $542,554 | $542,554 | $1,294.05 | | |
| ST | State School | 1.4761226122 | $542,554 | $542,554 | $800.88 | | |
| ST2 | State School Part 2 | 0.7953803475 | $542,554 | $542,554 | $431.54 | | |
| | Total Tax Rate: | 7.6313709459 | | | | | |
| | | | | Taxes w/Current Exemptions: | $4,140.44 | | |
| | | | | Taxes w/o Exemptions: | $4,140.44 | | |
Improvement / Building
| Improvement #1: | RESIDENTIAL | State Code: | Y | 1990.0 sqft | Value: | $362,554 |
| Bathrooms: | 3 | Bedrooms: | 3 | | Ceiling: | DRYWALL PAINTED | Exterior Wall/Cover: | WOOD SIDING | | Floor Covering: | CARPET/VINYL 80-20 | Floor Structure: | WOOD W/SUBFLOOR | | Foundation: | CONCRETE | Heating: | FHA GAS | | Interior Finish: | DRYWALL PAINT | Plumbing Fixture Cnt: | 12 | | Roof Slope: | 4" IN 12" | Roof Structure/Cover: | CJ ASPHALT |
|
| | Type | Description | Class CD | Sub Class CD | Year Built | Area |
| | BAS | BASE/MAIN FLOOR | 3 | 0 | 1977 | 1330.0 |
| | AGR | ATTACHED GARAGE | 3 | 0 | 1977 | 528.0 |
| | UPS | UPPER STORY | 3 | 0 | 1977 | 660.0 |
| | OWP | OPEN WOOD PORCH W/STEPS | 3 | 0 | 1977 | 180.0 |
| | OWC | OPEN WOOD PORCH W/STEPS/ROOF/C | 3 | 0 | 1977 | 240.0 |
Sketch
| No sketches available for this property. |
Property Image
Land
| 1 | 15 | SQ (12001-21780) | 0.0000 | 0.00 | 0.00 | 0.00 | 1.00 | $180,000 | $0 |
Roll Value History
| 2026 | N/A | N/A | N/A | N/A | N/A |
| 2025 | $362,554 | $180,000 | $0 | $542,554 | $542,554 |
| 2024 | $297,914 | $180,000 | $0 | $477,914 | $477,914 |
| 2023 | $269,827 | $180,000 | $0 | $449,827 | $449,827 |
| 2022 | $247,967 | $180,000 | $0 | $427,967 | $427,967 |
| 2021 | $212,240 | $120,000 | $0 | $332,240 | $332,240 |
| 2020 | $207,279 | $100,000 | $0 | $307,279 | $307,279 |
| 2019 | $157,184 | $140,000 | $0 | $297,184 | $297,184 |
| 2018 | $157,737 | $120,000 | $0 | $277,737 | $277,737 |
| 2017 | $154,092 | $120,000 | $0 | $274,092 | $274,092 |
| 2016 | $156,359 | $90,000 | $0 | $246,359 | $246,359 |
| 2015 | $158,627 | $70,000 | $0 | $228,627 | $228,627 |
| 2014 | $160,891 | $60,000 | $0 | $220,891 | $220,891 |
| 2013 | $163,158 | $55,000 | $0 | $218,158 | $218,158 |
| 2012 | $153,705 | $55,250 | $0 | $208,955 | $208,955 |
| 2011 | $157,591 | $65,000 | $0 | $222,591 | $222,591 |
| 2010 | $172,493 | $65,000 | $0 | $237,493 | $237,493 |
| 2009 | $179,952 | $75,000 | $0 | $254,952 | $254,952 |
| 2008 | $182,351 | $125,280 | $0 | $307,631 | $307,631 |
| 2007 | $184,758 | $125,280 | $0 | $310,038 | $310,038 |
Deed and Sales History
| 1 | 04/24/2024 | WD | Warranty Deed | HUNTER, BETH BUNNELL | JOHNSTON, GARRETT | | | $575,000.00 | 59743 | 4571615 |
| 2 | 04/19/2021 | WD | Warranty Deed | SMITH, RYAN A | HUNTER, BETH BUNNELL | | | $475,000.00 | 47944 | 4517398 |
| 3 | 10/11/2012 | WD | Warranty Deed | WILLIAMS, BRIAN J | SMITH, RYAN A | | | $273,000.00 | 9221 | 4325599 |
| 4 | 09/15/2003 | WD | Warranty Deed | MILLER, VICKIE I | WILLIAMS, BRIAN J | | | $210,000.00 | 34202 | 4075744 |
| 5 | 08/01/1980 | TRUSTEED | Trustee's Deed | MILLER, VICKIE I | MILLER, VICKIE I | | | $0.00 | 58913 | 0 |
| 6 | 07/01/1980 | PACD | Purchaser's Assignment | MILLER, BRUCE L | MILLER, VICKIE I | | | $0.00 | 2316 | 371002 |
| 7 | 01/01/1900 | OTHER | Other - Misc. Documents | Unknown | MILLER, BRUCE L | | | $0.00 | 0 | 0 |
Payout Agreement
| No payout information available.. |