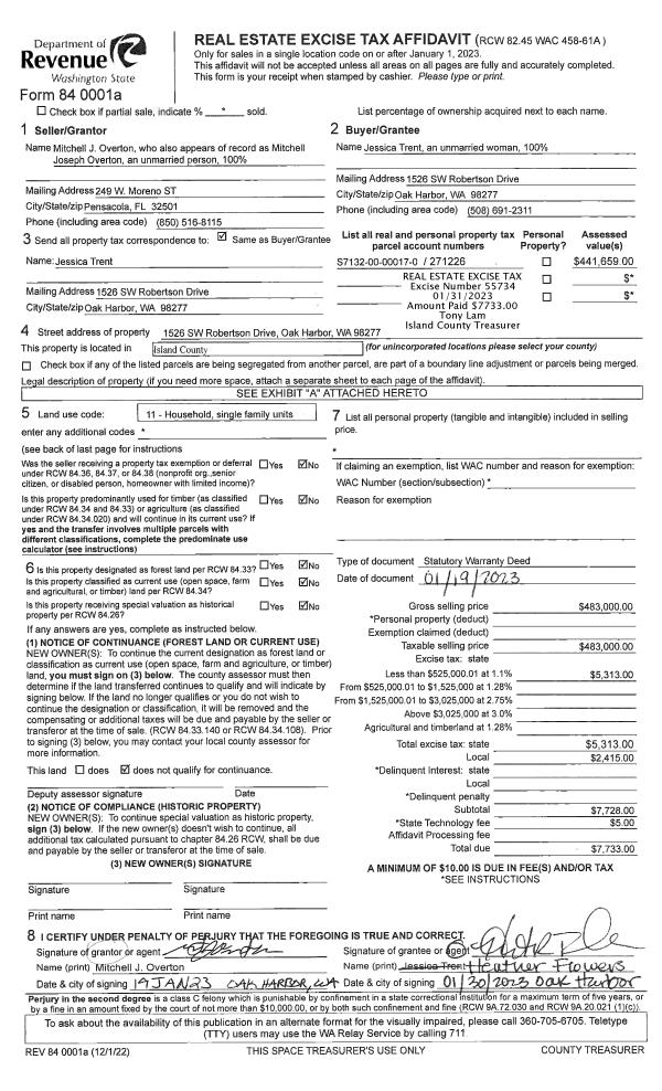
Property
Account |
| Property ID: | 271226 | Abbreviated Legal Description: | HGHLNDS WEST 1 LOT 17 |
| Geographic ID: | S7132-00-00017-0 | Agent Code: | |
| Type: | Real | | |
| Tax Area: | 100 - APPRAISER-OH Schl Dist, in OH | Land Use Code | 11 |
| Open Space: | N | DFL | N |
| Historic Property: | N | Remodel Property: | N |
| Multi-Family Redevelopment: | N | | |
| Township: | | Section: | |
| Range: | |
Location |
| Address: | 1526 SW ROBERTSON DR OAK HARBOR, WA 98277 | Mapsco: | |
| Neighborhood: | Cycle 1 | Map ID: | 92 |
| Neighborhood CD: | 1 |
Owner |
| Name: | TRENT, JESSICA | Owner ID: | 307415 |
| Mailing Address: | 1526 SW ROBERTSON DR OAK HARBOR, WA 98277 | % Ownership: | 100.0000000000% |
| | | Exemptions: | |
Taxes and Assessment Details
Values
| (+) Improvement Homesite Value: | + | $0 | |
| (+) Improvement Non-Homesite Value: | + | $299,767 | |
| (+) Land Homesite Value: | + | $0 | |
| (+) Land Non-Homesite Value: | + | $210,000 | |
| (+) Curr Use (HS): | + | $0 | $0 |
| (+) Curr Use (NHS): | + | $0 | $0 |
| | | -------------------------- | |
| (=) Market Value: | = | $509,767 | |
| (–) Productivity Loss: | – | $0 | |
| | | -------------------------- | |
| (=) Subtotal: | = | $509,767 | |
| (+) Senior Appraised Value: | + | $0 | |
| (+) Non-Senior Appraised Value: | + | $509,767 | |
| | | -------------------------- | |
| (=) Total Appraised Value: | = | $509,767 | |
| (–) Senior Exemption Loss: | – | $0 | |
| (–) Exemption Loss: | – | $0 | |
| | | -------------------------- | |
| (=) Taxable Value: | = | $509,767 | |
Taxing Jurisdiction
| Owner: | TRENT, JESSICA | | |
| % Ownership: | 100.0000000000% | | |
| Total Value: | $509,767 | | |
| Tax Area: | 100 - APPRAISER-OH Schl Dist, in OH |
| CF | Conservation Futures | 0.0313996660 | $509,767 | $509,767 | $16.01 | | |
| CEM1 | Cemetery #1 | 0.0040018856 | $509,767 | $509,767 | $2.04 | | |
| COH | City of Oak Harbor | 2.3090730572 | $509,767 | $509,767 | $1,177.09 | | |
| OAKBOND | City of Oak Harbor BOND | 0.1902260131 | $509,767 | $509,767 | $96.97 | | |
| HOBOND | Hospital BOND | 0.1893405597 | $509,767 | $509,767 | $96.52 | | |
| HOGEN | Hospital GEN | 0.3848777722 | $509,767 | $509,767 | $196.20 | | |
| CE | County Current Expense | 0.3674210519 | $509,767 | $509,767 | $187.30 | | |
| ISLANDEMS | Hospital GEN (EMS) | 0.4952018576 | $509,767 | $509,767 | $252.44 | | |
| LIB | Library Sno-Isle GEN | 0.3039084203 | $509,767 | $509,767 | $154.92 | | |
| NWHIDPRMT | P & R N Whidbey GEN | 0.1990272349 | $509,767 | $509,767 | $101.46 | | |
| SCH201MO | School 201 Enrichment | 2.3851112745 | $509,767 | $509,767 | $1,215.85 | | |
| ST | State School | 1.4761226122 | $509,767 | $509,767 | $752.48 | | |
| ST2 | State School Part 2 | 0.7953803475 | $509,767 | $509,767 | $405.46 | | |
| | Total Tax Rate: | 9.1310917527 | | | | | |
| | | | | Taxes w/Current Exemptions: | $4,654.74 | | |
| | | | | Taxes w/o Exemptions: | $4,654.74 | | |
Improvement / Building
| Improvement #1: | RESIDENTIAL | State Code: | Y | 2000.0 sqft | Value: | $299,767 |
| Bathrooms: | 2.5 | Bedrooms: | 4 | | Ceiling: | DRY WALL SPRAYED | Exterior Wall/Cover: | WOOD SIDING | | Floor Covering: | CARPET/VINYL 80-20 | Floor Structure: | WOOD W/SUBFLOOR | | Foundation: | CONCRETE | Heating: | FHA GAS | | Interior Finish: | DRYWALL PAINT | Plumbing Fixture Cnt: | 12 | | Roof Slope: | 4" IN 12" | Roof Structure/Cover: | CJ ASPHALT |
|
| | Type | Description | Class CD | Sub Class CD | Year Built | Area |
| | BAS | BASE/MAIN FLOOR | 3 | 0 | 1983 | 1310.0 |
| | OP4 | OPEN PORCH W/CEILING-ROOF | 3 | 0 | 1983 | 48.0 |
| | AGR | ATTACHED GARAGE | 3 | 0 | 1983 | 484.0 |
| | OWP | OPEN WOOD PORCH W/STEPS | 3 | 0 | 1983 | 80.0 |
| | DWN | DOWNSTAIRS LIVING AREA | 3 | 0 | 1983 | 690.0 |
Sketch
Property Image
Land
| 1 | 15 | SQ (12001-21780) | 0.0000 | 0.00 | 0.00 | 0.00 | 1.00 | $210,000 | $0 |
Roll Value History
| 2026 | N/A | N/A | N/A | N/A | N/A |
| 2025 | $299,767 | $210,000 | $0 | $509,767 | $509,767 |
| 2024 | $288,964 | $190,000 | $0 | $478,964 | $478,964 |
| 2023 | $285,362 | $190,000 | $0 | $475,362 | $475,362 |
| 2022 | $261,659 | $180,000 | $0 | $441,659 | $441,659 |
| 2021 | $230,361 | $120,000 | $0 | $350,361 | $350,361 |
| 2020 | $224,497 | $100,000 | $0 | $324,497 | $324,497 |
| 2019 | $170,129 | $150,000 | $0 | $320,129 | $320,129 |
| 2018 | $170,640 | $130,000 | $0 | $300,640 | $300,640 |
| 2017 | $167,297 | $110,000 | $0 | $277,297 | $277,297 |
| 2016 | $169,288 | $90,000 | $0 | $259,288 | $259,288 |
| 2015 | $171,280 | $70,000 | $0 | $241,280 | $241,280 |
| 2014 | $159,488 | $55,000 | $0 | $214,488 | $214,488 |
| 2013 | $161,559 | $55,000 | $0 | $216,559 | $216,559 |
| 2012 | $163,630 | $68,000 | $0 | $231,630 | $231,630 |
| 2011 | $167,561 | $68,000 | $0 | $235,561 | $235,561 |
| 2010 | $178,612 | $68,000 | $0 | $246,612 | $246,612 |
| 2009 | $186,226 | $75,000 | $0 | $261,226 | $261,226 |
| 2008 | $188,499 | $100,000 | $0 | $288,499 | $288,499 |
| 2007 | $190,779 | $100,000 | $0 | $290,779 | $290,779 |
Deed and Sales History
| 1 | 01/19/2023 | WD | Warranty Deed | OVERTON, MITCHELL J | TRENT, JESSICA | | | $483,000.00 | 55734 | 4556231 |
| 2 | 10/29/2019 | WD | Warranty Deed | HARLAN, SETH WENDELL | OVERTON, MITCHELL J | | | $358,000.00 | 40940 | 4474684 |
| 3 | 10/08/2014 | ESTSEPPROP | Establish Separate Property | HARLAN, SETH WENDELL | HARLAN, SETH WENDELL | | | $0.00 | 17161 | 4366965 |
| 4 | 10/08/2014 | WD | Warranty Deed | BADGER, NORMA | HARLAN, SETH WENDELL | | | $235,000.00 | 17160 | 4366964 |
| 5 | 07/01/1997 | WD | Warranty Deed | DECKARD, RICHARD A | BADGER, NORMA | | | $160,500.00 | 72487 | 97011657 |
| 6 | 06/01/1993 | WD | Warranty Deed | PEEPLES, JACK G | DECKARD, RICHARD A | | | $147,000.00 | 32346 | 93012201 |
| 7 | 09/01/1986 | WD | Warranty Deed | COCHRANE, MICHAEL J | PEEPLES, JACK G | | | $104,900.00 | 62552 | 86011559 |
| 8 | 06/01/1982 | WD | Warranty Deed | KOETJE, GORDON | COCHRANE, MICHAEL J | | | $86,500.00 | 21305 | 396928 |
| 9 | 12/01/1981 | WD | Warranty Deed | KOETJE, AGENCY R | KOETJE, GORDON | | | $18,500.00 | 13755 | 391069 |
| 10 | 07/01/1981 | REC | Real Estate Contract | KINGMA, R H | KOETJE, AGENCY R | | | $18,396.00 | 12334 | 386105 |
| 11 | 06/01/1981 | QCD | Quit Claim Deed | HAMMING, GORDON | KINGMA, R H | | | $0.00 | 11662 | 383639 |
| 12 | 04/01/1979 | OTHER | Other - Misc. Documents | Unknown | HAMMING, GORDON | | | $145,000.00 | 91586 | 350448 |
Payout Agreement
| No payout information available.. |