Property
Account |
| Property ID: | 271556 | Abbreviated Legal Description: | HILLCREST HSTD TR LOT 13 TGW W/2 VAC OLYMPIC AVE TGW EZ AF#87008212-13 |
| Geographic ID: | S7135-00-00013-0 | Agent Code: | |
| Type: | Real | | |
| Tax Area: | 319 - APPRAISER-Cpvl Schl Dist, outside Cpvl, vacant & 50 acres or less | Land Use Code | 99 |
| Open Space: | N | DFL | N |
| Historic Property: | N | Remodel Property: | N |
| Multi-Family Redevelopment: | N | | |
| Township: | | Section: | |
| Range: | |
Location |
| Address: | 238 PARKER WOODS LN COUPEVILLE, WA 98239 | Mapsco: | |
| Neighborhood: | Cycle 2 | Map ID: | 183 |
| Neighborhood CD: | 2 |
Owner |
| Name: | KELLISON, KOLTON RL | Owner ID: | 310422 |
| Mailing Address: | 15331 SR 20 COUPEVILLE, WA 98239 | % Ownership: | 100.0000000000% |
| | | Exemptions: | |
Taxes and Assessment Details
Values
| (+) Improvement Homesite Value: | + | $0 | |
| (+) Improvement Non-Homesite Value: | + | $0 | |
| (+) Land Homesite Value: | + | $0 | |
| (+) Land Non-Homesite Value: | + | $160,000 | |
| (+) Curr Use (HS): | + | $0 | $0 |
| (+) Curr Use (NHS): | + | $0 | $0 |
| | | -------------------------- | |
| (=) Market Value: | = | $160,000 | |
| (–) Productivity Loss: | – | $0 | |
| | | -------------------------- | |
| (=) Subtotal: | = | $160,000 | |
| (+) Senior Appraised Value: | + | $0 | |
| (+) Non-Senior Appraised Value: | + | $160,000 | |
| | | -------------------------- | |
| (=) Total Appraised Value: | = | $160,000 | |
| (–) Senior Exemption Loss: | – | $0 | |
| (–) Exemption Loss: | – | $0 | |
| | | -------------------------- | |
| (=) Taxable Value: | = | $160,000 | |
Taxing Jurisdiction
| Owner: | KELLISON, KOLTON RL | | |
| % Ownership: | 100.0000000000% | | |
| Total Value: | $160,000 | | |
| Tax Area: | 319 - APPRAISER-Cpvl Schl Dist, outside Cpvl, vacant & 50 acres or less |
| CF | Conservation Futures | 0.0313996660 | $160,000 | $160,000 | $5.02 | | |
| CEM2 | Cemetery #2 | 0.0092609791 | $160,000 | $160,000 | $1.48 | | |
| HOBOND | Hospital BOND | 0.1893405597 | $160,000 | $160,000 | $30.29 | | |
| HOGEN | Hospital GEN | 0.3848777722 | $160,000 | $160,000 | $61.58 | | |
| CE | County Current Expense | 0.3674210519 | $160,000 | $160,000 | $58.79 | | |
| CR | County Roads | 0.4614296361 | $160,000 | $160,000 | $73.83 | | |
| ISLANDEMS | Hospital GEN (EMS) | 0.4952018576 | $160,000 | $160,000 | $79.23 | | |
| LIB | Library Sno-Isle GEN | 0.3039084203 | $160,000 | $160,000 | $48.63 | | |
| LIBCAP | Library Sno-Isle BOND (Cap Fac Imp Area) | 0.0528562629 | $160,000 | $160,000 | $8.46 | | |
| POCOUP | Port of Coupeville GEN | 0.1065226063 | $160,000 | $160,000 | $17.04 | | |
| POCOUPIDD | Port of Coupeville IDD | 0.3353038577 | $160,000 | $160,000 | $53.65 | | |
| COUPSDTECH | School 204 CP (TECH) | 0.1215123397 | $160,000 | $160,000 | $19.44 | | |
| SCH204MO | School 204 Enrichment | 0.6416662518 | $160,000 | $160,000 | $102.67 | | |
| ST | State School | 1.4761226122 | $160,000 | $160,000 | $236.18 | | |
| ST2 | State School Part 2 | 0.7953803475 | $160,000 | $160,000 | $127.26 | | |
| | Total Tax Rate: | 5.7722042210 | | | | | |
| | | | | Taxes w/Current Exemptions: | $923.55 | | |
| | | | | Taxes w/o Exemptions: | $923.55 | | |
Improvement / Building
Sketch
| No sketches available for this property. |
Property Image
Land
| 1 | 32 | AC (03.01-09.99) | 3.8900 | 0.00 | 0.00 | 0.00 | 1.00 | $160,000 | $0 |
Roll Value History
| 2026 | N/A | N/A | N/A | N/A | N/A |
| 2025 | $0 | $160,000 | $0 | $160,000 | $160,000 |
| 2024 | $0 | $150,000 | $0 | $150,000 | $150,000 |
| 2023 | $0 | $140,000 | $0 | $140,000 | $140,000 |
| 2022 | $0 | $130,000 | $0 | $130,000 | $130,000 |
| 2021 | $0 | $130,000 | $0 | $130,000 | $130,000 |
| 2020 | $0 | $120,000 | $0 | $120,000 | $120,000 |
| 2019 | $0 | $100,000 | $0 | $100,000 | $100,000 |
| 2018 | $0 | $100,000 | $0 | $100,000 | $100,000 |
| 2017 | $0 | $85,000 | $0 | $85,000 | $85,000 |
| 2016 | $0 | $85,000 | $0 | $85,000 | $85,000 |
| 2015 | $0 | $80,000 | $0 | $80,000 | $80,000 |
| 2014 | $0 | $77,800 | $0 | $77,800 | $77,800 |
| 2013 | $0 | $93,360 | $0 | $93,360 | $93,360 |
| 2012 | $0 | $93,360 | $0 | $93,360 | $93,360 |
| 2011 | $0 | $93,360 | $0 | $93,360 | $93,360 |
| 2010 | $0 | $93,360 | $0 | $93,360 | $93,360 |
| 2009 | $0 | $95,305 | $0 | $95,305 | $95,305 |
| 2008 | $0 | $149,765 | $0 | $149,765 | $149,765 |
| 2007 | $0 | $66,130 | $0 | $66,130 | $66,130 |
Deed and Sales History
| 1 | 10/16/2023 | WD | Warranty Deed | PARHANIEMI TTEE, COLLEEN D | KELLISON, KOLTON RL | | | $175,000.00 | 58284 | 4565889 |
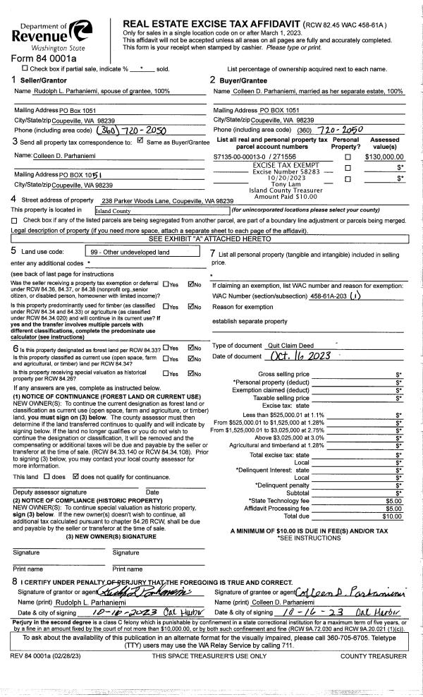
| 2 | 10/16/2023 | QCD | Quit Claim Deed | PARHANIEMI, RUDOLPH | PARHANIEMI, COLLEEN | | | $0.00 | 58283 | 4565888 |
| 3 | 07/19/2021 | QCD | Quit Claim Deed | PARHANIEMI, COLLEEN D | PARHANIEMI TTEE, COLLEEN D | | | $0.00 | 49226 | 4524816 |
| 4 | 03/19/2015 | WD | Warranty Deed | LIND, JENNIFER | PARHANIEMI, COLLEEN D | | | $85,500.00 | 18879 | 4375281 |
| 5 | 10/01/1992 | QCD | Quit Claim Deed | LIND, CURTISS G | LIND, JENNIFER | | | $0.00 | 24541 | 92022184 |
| 6 | 01/01/1900 | OTHER | Other - Misc. Documents | Unknown | LIND, CURTISS G | | | $0.00 | 0 | 0 |
Payout Agreement
| No payout information available.. |