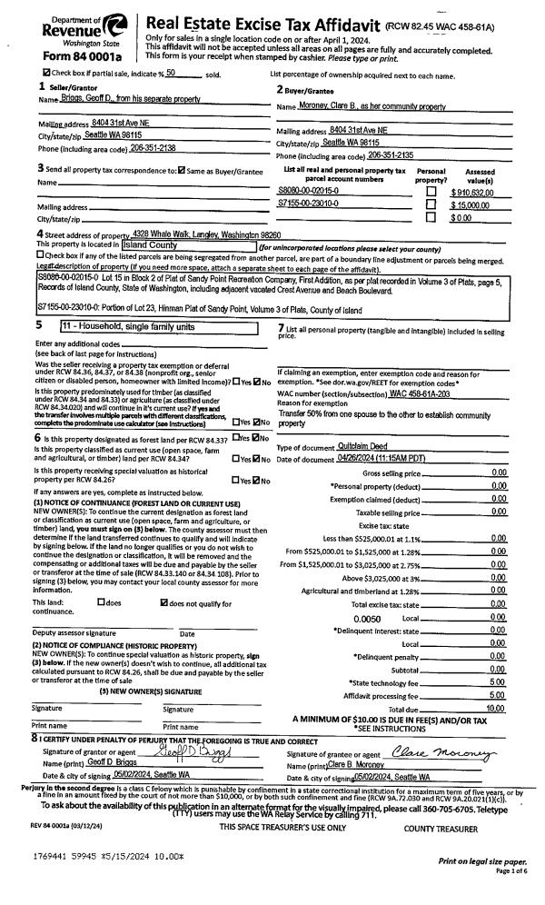
Property
Account |
| Property ID: | 273723 | Abbreviated Legal Description: | HINMANS N10' OF S70' OF W/2 LOT 23 |
| Geographic ID: | S7155-00-23010-0 | Agent Code: | |
| Type: | Real | | |
| Tax Area: | 710 - APPRAISER-S Whid Schl Dist, outside Langley, improved & 1 acre or less | Land Use Code | 11 |
| Open Space: | N | DFL | N |
| Historic Property: | N | Remodel Property: | N |
| Multi-Family Redevelopment: | N | | |
| Township: | | Section: | |
| Range: | |
Location |
| Address: | | Mapsco: | |
| Neighborhood: | Cycle 4 | Map ID: | 722 |
| Neighborhood CD: | 4 |
Owner |
| Name: | MORONEY, CLARE B | Owner ID: | 312334 |
| Mailing Address: | GEOFF BRIGGS 8404 31ST AVE NE SEATTLE, WA 98115 | % Ownership: | 100.0000000000% |
| | | Exemptions: | |
Taxes and Assessment Details
Values
| (+) Improvement Homesite Value: | + | N/A | |
| (+) Improvement Non-Homesite Value: | + | N/A | |
| (+) Land Homesite Value: | + | N/A | |
| (+) Land Non-Homesite Value: | + | N/A | Ag / Timber Use Value |
| (+) Curr Use (HS): | + | N/A | N/A |
| (+) Curr Use (NHS): | + | N/A | N/A |
| | | -------------------------- | |
| (=) Market Value: | = | N/A | |
| (–) Productivity Loss: | – | N/A | |
| | | -------------------------- | |
| (=) Subtotal: | = | N/A | |
| (+) Senior Appraised Value: | + | N/A | |
| (+) Non-Senior Appraised Value: | + | N/A | |
| | | -------------------------- | |
| (=) Total Appraised Value: | = | N/A | |
| (–) Senior Exemption Loss: | – | N/A | |
| (–) Exemption Loss: | – | N/A | |
| | | -------------------------- | |
| (=) Taxable Value: | = | N/A | |
Taxing Jurisdiction
| Owner: | MORONEY, CLARE B | | |
| % Ownership: | 100.0000000000% | | |
| Total Value: | N/A | | |
| Tax Area: | 710 - APPRAISER-S Whid Schl Dist, outside Langley, improved & 1 acre or less |
| CF | Conservation Futures | N/A | N/A | N/A | N/A | | |
| WCD | Whidbey Conservation District | N/A | N/A | N/A | N/A | | |
| FIRE3 | Fire & Rescue Dist #3 S Whidbey GEN | N/A | N/A | N/A | N/A | | |
| HOBOND | Hospital BOND | N/A | N/A | N/A | N/A | | |
| HOGEN | Hospital GEN | N/A | N/A | N/A | N/A | | |
| CE | County Current Expense | N/A | N/A | N/A | N/A | | |
| CR | County Roads | N/A | N/A | N/A | N/A | | |
| ISLANDEMS | Hospital GEN (EMS) | N/A | N/A | N/A | N/A | | |
| LIB | Library Sno-Isle GEN | N/A | N/A | N/A | N/A | | |
| PORTWHID | Port of S Whidbey GEN | N/A | N/A | N/A | N/A | | |
| SCH206CAP | School 206 CP | N/A | N/A | N/A | N/A | | |
| SCH206MO | School 206 Enrichment | N/A | N/A | N/A | N/A | | |
| ST | State School | N/A | N/A | N/A | N/A | | |
| ST2 | State School Part 2 | N/A | N/A | N/A | N/A | | |
| SWHIDPRBD | P & R S Whidbey BOND | N/A | N/A | N/A | N/A | | |
| SWHIDPRBD2 | P & R S Whidbey BOND2 | N/A | N/A | N/A | N/A | | |
| SWHIDPRMT | P & R S Whidbey GEN | N/A | N/A | N/A | N/A | | |
| | Total Tax Rate: | N/A | | | | | |
| | | | | Taxes w/Current Exemptions: | N/A | | |
| | | | | Taxes w/o Exemptions: | N/A | | |
Improvement / Building
| Improvement #1: | RESIDENTIAL | State Code: | Y | 0.0 sqft | Value: | N/A |
Sketch
| No sketches available for this property. |
Property Image
Land
| 1 | 12 | SQ (00000-06000) | 0.0000 | 0.00 | 0.00 | 0.00 | 1.00 | N/A | N/A |
Roll Value History
| 2026 | N/A | N/A | N/A | N/A | N/A |
| 2025 | $5,000 | $15,000 | $0 | $20,000 | $20,000 |
| 2024 | $5,000 | $10,000 | $0 | $15,000 | $15,000 |
| 2023 | $5,000 | $10,000 | $0 | $15,000 | $15,000 |
| 2022 | $5,000 | $10,000 | $0 | $15,000 | $15,000 |
| 2021 | $5,000 | $10,000 | $0 | $15,000 | $15,000 |
| 2020 | $5,000 | $10,000 | $0 | $15,000 | $15,000 |
| 2019 | $5,000 | $10,000 | $0 | $15,000 | $15,000 |
| 2018 | $5,000 | $10,000 | $0 | $15,000 | $15,000 |
| 2017 | $5,000 | $10,000 | $0 | $15,000 | $15,000 |
| 2016 | $5,000 | $10,000 | $0 | $15,000 | $15,000 |
| 2015 | $5,000 | $10,000 | $0 | $15,000 | $15,000 |
| 2014 | $2,934 | $11,700 | $0 | $14,634 | $14,634 |
| 2013 | $2,934 | $11,700 | $0 | $14,634 | $14,634 |
| 2012 | $2,934 | $11,700 | $0 | $14,634 | $14,634 |
| 2011 | $2,934 | $13,000 | $0 | $15,934 | $15,934 |
| 2010 | $2,934 | $13,000 | $0 | $15,934 | $15,934 |
| 2009 | $2,934 | $13,000 | $0 | $15,934 | $15,934 |
| 2008 | $2,934 | $13,000 | $0 | $15,934 | $15,934 |
| 2007 | $2,934 | $13,000 | $0 | $15,934 | $15,934 |
Deed and Sales History
| 1 | 04/26/2024 | QCD | Quit Claim Deed | BRIGGS UNDIV 50% INT, GARRETT C | MORONEY, CLARE B | | | $0.00 | 59945 | 4572322 |
| 2 | 04/26/2024 | QCD | Quit Claim Deed | BRIGGS, GARRETT C | BRIGGS, GEOFF D | | | $475,000.00 | 59944 | 4572320 |
|   | |
| 3 | 04/11/2013 | QCD | Quit Claim Deed | BRIGGS, GEORGE COYLE | BRIGGS UNDIV 50% INT, GARRETT C | | | $0.00 | 11336 | 4340019 |
| 4 | 04/11/2013 | TRUSTEED | Trustee's Deed | BRIGGS, GEORGE C | BRIGGS, GEORGE COYLE | | | $0.00 | 11240 | 4339410 |
| 5 | 10/01/1993 | QCD | Quit Claim Deed | BRIGGS, GEORGE C | BRIGGS, GEORGE C | | | $0.00 | 34749 | 93024795 |
| 6 | 05/01/1988 | WD | Warranty Deed | PENNINGTON, W J | BRIGGS, GEORGE C | | | $3,000.00 | 81551 | 88005872 |
| 7 | 01/01/1900 | OTHER | Other - Misc. Documents | Unknown | PENNINGTON, W J | | | $0.00 | 0 | 0 |
Payout Agreement
| No payout information available.. |