Property
Account |
| Property ID: | 276542 | Abbreviated Legal Description: | HHGY 2 LOT 3 |
| Geographic ID: | S7165-02-00003-0 | Agent Code: | |
| Type: | Real | | |
| Tax Area: | 770 - APPRAISER-S Whid Schl Dist, Special District, improved & less than 1 acre | Land Use Code | 11 |
| Open Space: | N | DFL | N |
| Historic Property: | N | Remodel Property: | N |
| Multi-Family Redevelopment: | N | | |
| Township: | | Section: | |
| Range: | |
Location |
| Address: | 1310 GREENWAY PLACE FREELAND, WA 98249 | Mapsco: | |
| Neighborhood: | Cycle 3 | Map ID: | 288 |
| Neighborhood CD: | 3 |
Owner |
| Name: | SCOVILLE, THEODORE AARON | Owner ID: | 315288 |
| Mailing Address: | MARLA MARIA BAHM-SCOVILLE 3810 S COURT ST SEATTLE, WA 98144 | % Ownership: | 100.0000000000% |
| | | Exemptions: | |
Taxes and Assessment Details
Values
| (+) Improvement Homesite Value: | + | $0 | |
| (+) Improvement Non-Homesite Value: | + | $580,933 | |
| (+) Land Homesite Value: | + | $0 | |
| (+) Land Non-Homesite Value: | + | $330,000 | |
| (+) Curr Use (HS): | + | $0 | $0 |
| (+) Curr Use (NHS): | + | $0 | $0 |
| | | -------------------------- | |
| (=) Market Value: | = | $910,933 | |
| (–) Productivity Loss: | – | $0 | |
| | | -------------------------- | |
| (=) Subtotal: | = | $910,933 | |
| (+) Senior Appraised Value: | + | $0 | |
| (+) Non-Senior Appraised Value: | + | $910,933 | |
| | | -------------------------- | |
| (=) Total Appraised Value: | = | $910,933 | |
| (–) Senior Exemption Loss: | – | $0 | |
| (–) Exemption Loss: | – | $0 | |
| | | -------------------------- | |
| (=) Taxable Value: | = | $910,933 | |
Taxing Jurisdiction
| Owner: | SCOVILLE, THEODORE AARON | | |
| % Ownership: | 100.0000000000% | | |
| Total Value: | $910,933 | | |
| Tax Area: | 770 - APPRAISER-S Whid Schl Dist, Special District, improved & less than 1 acre |
| CF | Conservation Futures | 0.0313996660 | $910,933 | $910,933 | $28.60 | | |
| FIRE3 | Fire & Rescue Dist #3 S Whidbey GEN | 1.2130821753 | $910,933 | $910,933 | $1,105.04 | | |
| HOBOND | Hospital BOND | 0.1893405597 | $910,933 | $910,933 | $172.48 | | |
| HOGEN | Hospital GEN | 0.3848777722 | $910,933 | $910,933 | $350.60 | | |
| CE | County Current Expense | 0.3674210519 | $910,933 | $910,933 | $334.70 | | |
| CR | County Roads | 0.4614296361 | $910,933 | $910,933 | $420.33 | | |
| ISLANDEMS | Hospital GEN (EMS) | 0.4952018576 | $910,933 | $910,933 | $451.10 | | |
| LIB | Library Sno-Isle GEN | 0.3039084203 | $910,933 | $910,933 | $276.84 | | |
| PORTWHID | Port of S Whidbey GEN | 0.1086004714 | $910,933 | $910,933 | $98.93 | | |
| SCH206BOND | School 206 BOND | 0.5960237832 | $910,933 | $910,933 | $542.94 | | |
| SCH206CAP | School 206 CP | 0.3066144020 | $910,933 | $910,933 | $279.31 | | |
| SCH206MO | School 206 Enrichment | 0.4808755445 | $910,933 | $910,933 | $438.05 | | |
| ST | State School | 1.4761226122 | $910,933 | $910,933 | $1,344.65 | | |
| ST2 | State School Part 2 | 0.7953803475 | $910,933 | $910,933 | $724.54 | | |
| SWHIDPRBD | P & R S Whidbey BOND | 0.0144185398 | $910,933 | $910,933 | $13.13 | | |
| SWHIDPRBD3 | P & R S Whidbey BOND3 | 0.1483535547 | $910,933 | $910,933 | $135.14 | | |
| SWHIDPRMT | P & R S Whidbey GEN | 0.4600000000 | $910,933 | $910,933 | $419.03 | | |
| | Total Tax Rate: | 7.8330503944 | | | | | |
| | | | | Taxes w/Current Exemptions: | $7,135.41 | | |
| | | | | Taxes w/o Exemptions: | $7,135.41 | | |
Improvement / Building
| Improvement #1: | RESIDENTIAL | State Code: | Y | 2827.8 sqft | Value: | $580,933 |
| Bathrooms: | 2.5 | Bedrooms: | 3 | | Ceiling: | DRYWALL PAINTED | Cooling: | HEAT PUMP/CONV/V | | Exterior Wall/Cover: | WOOD SIDING | Floor Covering: | HARDWOOD/CARP 60-40 | | Floor Structure: | WOOD W/SUBFLOOR | Foundation: | CONCRETE | | Interior Finish: | DRYWALL PAINT | Plumbing Fixture Cnt: | 15 | | Roof Slope: | 10" IN 12" | Roof Structure/Cover: | CJ ASPHALT |
|
| | Type | Description | Class CD | Sub Class CD | Year Built | Area |
| | BAS | BASE/MAIN FLOOR | 4 | 0 | 2008 | 1531.8 |
| | DWN | DOWNSTAIRS LIVING AREA | 4 | 0 | 2008 | 720.0 |
| | OP4 | OPEN PORCH W/CEILING-ROOF | 4 | 0 | 2008 | 158.0 |
| | AGR | ATTACHED GARAGE | 4 | 0 | 2008 | 535.0 |
| | OWP | OPEN WOOD PORCH W/STEPS | 4 | 0 | 2008 | 76.0 |
| | OWP | OPEN WOOD PORCH W/STEPS | 4 | 0 | 2008 | 95.0 |
| | OWC | OPEN WOOD PORCH W/STEPS/ROOF/C | 4 | 0 | 2008 | 213.0 |
| | UPH | HALF STORY | 4 | 0 | 2008 | 576.0 |
| | UB8 | BASEMENT UNFINISHED 8" | 4 | 0 | 2008 | 34.0 |
Sketch
Property Image
Land
| 1 | 14 | SQ (08001-12000) | 0.1800 | 7840.80 | 0.00 | 0.00 | 1.00 | $330,000 | $0 |
Roll Value History
| 2026 | N/A | N/A | N/A | N/A | N/A |
| 2025 | $580,933 | $330,000 | $0 | $910,933 | $910,933 |
| 2024 | $558,436 | $300,000 | $0 | $858,436 | $858,436 |
| 2023 | $563,402 | $250,000 | $0 | $813,402 | $813,402 |
| 2022 | $514,104 | $270,000 | $0 | $784,104 | $784,104 |
| 2021 | $405,223 | $190,000 | $0 | $595,223 | $595,223 |
| 2020 | $393,672 | $170,000 | $0 | $563,672 | $563,672 |
| 2019 | $290,117 | $210,000 | $0 | $500,117 | $500,117 |
| 2018 | $275,580 | $180,000 | $0 | $455,580 | $455,580 |
| 2017 | $277,047 | $130,000 | $0 | $407,047 | $407,047 |
| 2016 | $280,124 | $115,000 | $0 | $395,124 | $395,124 |
| 2015 | $283,202 | $100,000 | $0 | $383,202 | $383,202 |
| 2014 | $286,280 | $100,000 | $0 | $386,280 | $386,280 |
| 2013 | $291,580 | $65,000 | $0 | $356,580 | $356,580 |
| 2012 | $294,681 | $65,000 | $0 | $359,681 | $359,681 |
| 2011 | $297,783 | $100,000 | $0 | $397,783 | $397,783 |
| 2010 | $302,441 | $100,000 | $0 | $402,441 | $402,441 |
| 2009 | $311,828 | $100,000 | $0 | $411,828 | $411,828 |
| 2008 | $305,752 | $125,000 | $0 | $430,752 | $430,752 |
| 2007 | $0 | $100,000 | $0 | $100,000 | $100,000 |
Deed and Sales History
| 1 | 01/30/2025 | WD | Warranty Deed | MONETTI, ANDREW FREDERICK | SCOVILLE, THEODORE AARON | | | $950,000.00 | 62446 | 4581786 |
| 2 | 12/14/2021 | WD | Warranty Deed | OTIS, DONI L | MONETTI, ANDREW FREDERICK | | | $875,000.00 | 51433 | 4536446 |
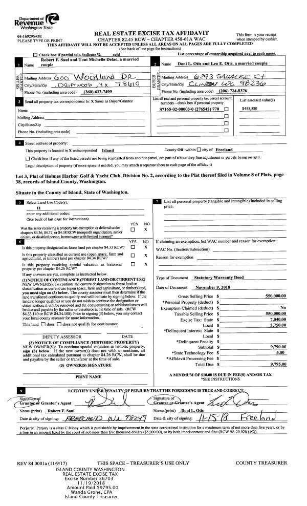
| 3 | 11/09/2018 | WD | Warranty Deed | SAUL, ROBERT F | OTIS, DONI L | | | $550,000.00 | 36703 | 4455237 |
| 4 | 09/27/2007 | WD | Warranty Deed | DETTRICH, MICHAEL L | SAUL, ROBERT F | | | $122,500.00 | 73276 | 4213075 |
| 5 | 07/23/2004 | 5 | DNU - Marriage License/Name Change | DETTRICH, MICHAEL L | DETTRICH, MICHAEL L | | | $0.00 | 43334 | 4107644 |
| 6 | 07/19/2004 | WD | Warranty Deed | RANKIN TRUSTEES, JACK H/DOROTH | DETTRICH, MICHAEL L | | | $38,000.00 | 4333 | 4107643 |
| 7 | 09/09/2002 | QCD | Quit Claim Deed | RANKIN, JACK H | RANKIN TRUSTEES, JACK H/DOROTH | | | $0.00 | 23585 | 4030656 |
| 8 | 07/01/1994 | WD | Warranty Deed | TIFFANY, THEODORE | RANKIN, JACK H | | | $36,000.00 | 43008 | 94016285 |
| 9 | 11/01/1979 | EXECUTORD | Executor Deed | BAIRD, LAURENCE E | TIFFANY, THEODORE | | | $8,000.00 | 95498 | 361837 |
| 10 | 01/01/1900 | OTHER | Other - Misc. Documents | Unknown | BAIRD, LAURENCE E | | | $0.00 | 0 | 0 |
Payout Agreement
| No payout information available.. |