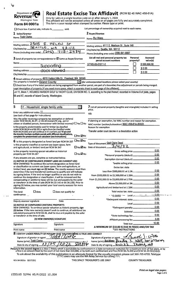
Property
Account |
| Property ID: | 277266 | Abbreviated Legal Description: | HHGY 5 LOT 11 BLK 1 |
| Geographic ID: | S7165-05-01011-0 | Agent Code: | |
| Type: | Real | | |
| Tax Area: | 770 - APPRAISER-S Whid Schl Dist, Special District, improved & less than 1 acre | Land Use Code | 11 |
| Open Space: | N | DFL | N |
| Historic Property: | N | Remodel Property: | N |
| Multi-Family Redevelopment: | N | | |
| Township: | | Section: | |
| Range: | |
Location |
| Address: | 4916 HARBOR HILLS DR FREELAND, WA 98249 | Mapsco: | |
| Neighborhood: | Cycle 3 | Map ID: | 290 |
| Neighborhood CD: | 3 |
Owner |
| Name: | WANG, RUI | Owner ID: | 304119 |
| Mailing Address: | 4111 E MADISON ST SUITE 148 SEATTLE, WA 98112 | % Ownership: | 100.0000000000% |
| | | Exemptions: | |
Taxes and Assessment Details
Values
| (+) Improvement Homesite Value: | + | $0 | |
| (+) Improvement Non-Homesite Value: | + | $495,871 | |
| (+) Land Homesite Value: | + | $0 | |
| (+) Land Non-Homesite Value: | + | $330,000 | |
| (+) Curr Use (HS): | + | $0 | $0 |
| (+) Curr Use (NHS): | + | $0 | $0 |
| | | -------------------------- | |
| (=) Market Value: | = | $825,871 | |
| (–) Productivity Loss: | – | $0 | |
| | | -------------------------- | |
| (=) Subtotal: | = | $825,871 | |
| (+) Senior Appraised Value: | + | $0 | |
| (+) Non-Senior Appraised Value: | + | $825,871 | |
| | | -------------------------- | |
| (=) Total Appraised Value: | = | $825,871 | |
| (–) Senior Exemption Loss: | – | $0 | |
| (–) Exemption Loss: | – | $0 | |
| | | -------------------------- | |
| (=) Taxable Value: | = | $825,871 | |
Taxing Jurisdiction
| Owner: | WANG, RUI | | |
| % Ownership: | 100.0000000000% | | |
| Total Value: | $825,871 | | |
| Tax Area: | 770 - APPRAISER-S Whid Schl Dist, Special District, improved & less than 1 acre |
| CF | Conservation Futures | 0.0313996660 | $825,871 | $825,871 | $25.93 | | |
| FIRE3 | Fire & Rescue Dist #3 S Whidbey GEN | 1.2130821753 | $825,871 | $825,871 | $1,001.85 | | |
| HOBOND | Hospital BOND | 0.1893405597 | $825,871 | $825,871 | $156.37 | | |
| HOGEN | Hospital GEN | 0.3848777722 | $825,871 | $825,871 | $317.86 | | |
| CE | County Current Expense | 0.3674210519 | $825,871 | $825,871 | $303.44 | | |
| CR | County Roads | 0.4614296361 | $825,871 | $825,871 | $381.08 | | |
| ISLANDEMS | Hospital GEN (EMS) | 0.4952018576 | $825,871 | $825,871 | $408.97 | | |
| LIB | Library Sno-Isle GEN | 0.3039084203 | $825,871 | $825,871 | $250.99 | | |
| PORTWHID | Port of S Whidbey GEN | 0.1086004714 | $825,871 | $825,871 | $89.69 | | |
| SCH206BOND | School 206 BOND | 0.5960237832 | $825,871 | $825,871 | $492.24 | | |
| SCH206CAP | School 206 CP | 0.3066144020 | $825,871 | $825,871 | $253.22 | | |
| SCH206MO | School 206 Enrichment | 0.4808755445 | $825,871 | $825,871 | $397.14 | | |
| ST | State School | 1.4761226122 | $825,871 | $825,871 | $1,219.09 | | |
| ST2 | State School Part 2 | 0.7953803475 | $825,871 | $825,871 | $656.88 | | |
| SWHIDPRBD | P & R S Whidbey BOND | 0.0144185398 | $825,871 | $825,871 | $11.91 | | |
| SWHIDPRBD3 | P & R S Whidbey BOND3 | 0.1483535547 | $825,871 | $825,871 | $122.52 | | |
| SWHIDPRMT | P & R S Whidbey GEN | 0.4600000000 | $825,871 | $825,871 | $379.90 | | |
| | Total Tax Rate: | 7.8330503944 | | | | | |
| | | | | Taxes w/Current Exemptions: | $6,469.08 | | |
| | | | | Taxes w/o Exemptions: | $6,469.08 | | |
Improvement / Building
| Improvement #1: | RESIDENTIAL | State Code: | Y | 2683.5 sqft | Value: | $495,871 |
| Bathrooms: | 3 | Bedrooms: | 4 | | Ceiling: | DRYWALL PAINTED | Exterior Wall/Cover: | CEMENT FIBER | | Floor Covering: | HARDWOOD/CARP 60-40 | Floor Structure: | WOOD W/SUBFLOOR | | Foundation: | CONCRETE | Heating: | FHA GAS | | Interior Finish: | DRYWALL PAINT | Plumbing Fixture Cnt: | 16 | | Roof Slope: | 5" IN 12" | Roof Structure/Cover: | CJ ASPHALT |
|
| | Type | Description | Class CD | Sub Class CD | Year Built | Area |
| | BAS | BASE/MAIN FLOOR | 4 | 0 | 2006 | 2130.0 |
| | DWN | DOWNSTAIRS LIVING AREA | 4 | 0 | 2006 | 553.5 |
| | BGR | BASEMENT GARAGE | 4 | 0 | 2006 | 504.0 |
| | UTY | STORAGE/UTILITY | 4 | 0 | 2006 | 199.5 |
| | OWP | OPEN WOOD PORCH W/STEPS | 4 | 0 | 2006 | 96.0 |
| | OWP | OPEN WOOD PORCH W/STEPS | 4 | 0 | 2006 | 128.0 |
| | OWC | OPEN WOOD PORCH W/STEPS/ROOF/C | 4 | 0 | 2006 | 80.0 |
Sketch
Property Image
Land
| 1 | 13 | SQ (06001-08000) | 0.1700 | 7405.20 | 0.00 | 0.00 | 1.00 | $330,000 | $0 |
Roll Value History
| 2026 | N/A | N/A | N/A | N/A | N/A |
| 2025 | $495,871 | $330,000 | $0 | $825,871 | $825,871 |
| 2024 | $501,974 | $300,000 | $0 | $801,974 | $801,974 |
| 2023 | $508,077 | $250,000 | $0 | $758,077 | $758,077 |
| 2022 | $465,591 | $270,000 | $0 | $735,591 | $735,591 |
| 2021 | $409,666 | $190,000 | $0 | $599,666 | $599,666 |
| 2020 | $398,950 | $170,000 | $0 | $568,950 | $568,950 |
| 2019 | $298,911 | $210,000 | $0 | $508,911 | $508,911 |
| 2018 | $299,768 | $180,000 | $0 | $479,768 | $479,768 |
| 2017 | $301,439 | $130,000 | $0 | $431,439 | $431,439 |
| 2016 | $304,865 | $85,000 | $0 | $389,865 | $389,865 |
| 2015 | $308,290 | $100,000 | $0 | $408,290 | $408,290 |
| 2014 | $311,715 | $100,000 | $0 | $411,715 | $411,715 |
| 2013 | $324,589 | $100,000 | $0 | $424,589 | $424,589 |
| 2012 | $328,115 | $100,000 | $0 | $428,115 | $428,115 |
| 2011 | $331,644 | $135,000 | $0 | $466,644 | $466,644 |
| 2010 | $337,831 | $135,000 | $0 | $472,831 | $472,831 |
| 2009 | $351,958 | $150,000 | $0 | $501,958 | $501,958 |
| 2008 | $355,800 | $150,000 | $0 | $505,800 | $505,800 |
| 2007 | $356,130 | $150,000 | $0 | $506,130 | $506,130 |
Deed and Sales History
| 1 | 03/04/2022 | QCD | Quit Claim Deed | CLARKE, TODD | WANG, RUI | | | $0.00 | 52996 | 4544718 |
| 2 | 11/12/2009 | TRUSTEED | Trustee's Deed | THE BANK OF NEW YORK MELLON AS | WANG, RUI | | | $257,250.00 | 92796 | 4263751 |
| 3 | 03/11/2009 | TRUSTEED | Trustee's Deed | PECK, JARED | THE BANK OF NEW YORK MELLON AS | | | $241,167.00 | 90546 | 4246508 |
| 4 | 09/02/2004 | WD | Warranty Deed | MCDOUGALL, JACQUELYN H | PECK, JARED | | | $46,750.00 | 44254 | 4112553 |
| 5 | 08/01/1997 | QCD | Quit Claim Deed | MCDOUGALL, JACQUELYN H | MCDOUGALL, JACQUELYN H | | | $0.00 | 72796 | 97014227 |
| 6 | 12/01/1990 | QCD | Quit Claim Deed | MCDOUGALL, JACQUELYN H | MCDOUGALL, JACQUELYN H | | | $0.00 | 31759 | 97014227 |
| 7 | 10/01/1978 | OTHER | Other - Misc. Documents | MCDOUGALL, JACQUELYN H | MCDOUGALL, JACQUELYN H | | | $0.00 | 58571 | 0 |
| 8 | 10/01/1978 | QCD | Quit Claim Deed | Unknown | MCDOUGALL, JACQUELYN H | | | $0.00 | 5949 | 90020194 |
Payout Agreement
| No payout information available.. |