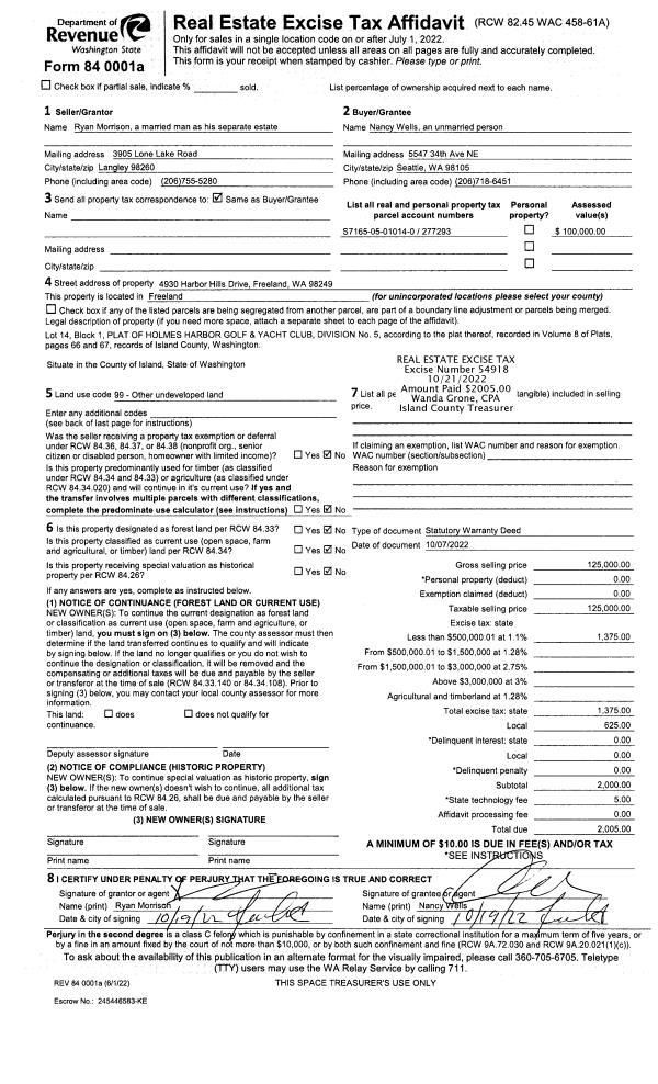
Property
Account |
| Property ID: | 277293 | Abbreviated Legal Description: | HHGY 5 LOT 14 BLK 1 |
| Geographic ID: | S7165-05-01014-0 | Agent Code: | |
| Type: | Real | | |
| Tax Area: | 770 - APPRAISER-S Whid Schl Dist, Special District, improved & less than 1 acre | Land Use Code | 11 |
| Open Space: | N | DFL | N |
| Historic Property: | N | Remodel Property: | N |
| Multi-Family Redevelopment: | N | | |
| Township: | | Section: | |
| Range: | |
Location |
| Address: | 4930 HARBOR HILLS DR FREELAND, WA 98249 | Mapsco: | |
| Neighborhood: | Cycle 3 | Map ID: | 290 |
| Neighborhood CD: | 3 |
Owner |
| Name: | WELLS, NANCY | Owner ID: | 306399 |
| Mailing Address: | 4930 HARBOR HILLS DR FREELAND, WA 98249-9792 | % Ownership: | 100.0000000000% |
| | | Exemptions: | |
Taxes and Assessment Details
Values
| (+) Improvement Homesite Value: | + | $0 | |
| (+) Improvement Non-Homesite Value: | + | $602,117 | |
| (+) Land Homesite Value: | + | $0 | |
| (+) Land Non-Homesite Value: | + | $330,000 | |
| (+) Curr Use (HS): | + | $0 | $0 |
| (+) Curr Use (NHS): | + | $0 | $0 |
| | | -------------------------- | |
| (=) Market Value: | = | $932,117 | |
| (–) Productivity Loss: | – | $0 | |
| | | -------------------------- | |
| (=) Subtotal: | = | $932,117 | |
| (+) Senior Appraised Value: | + | $0 | |
| (+) Non-Senior Appraised Value: | + | $932,117 | |
| | | -------------------------- | |
| (=) Total Appraised Value: | = | $932,117 | |
| (–) Senior Exemption Loss: | – | $0 | |
| (–) Exemption Loss: | – | $0 | |
| | | -------------------------- | |
| (=) Taxable Value: | = | $932,117 | |
Taxing Jurisdiction
| Owner: | WELLS, NANCY | | |
| % Ownership: | 100.0000000000% | | |
| Total Value: | $932,117 | | |
| Tax Area: | 770 - APPRAISER-S Whid Schl Dist, Special District, improved & less than 1 acre |
| CF | Conservation Futures | 0.0313996660 | $932,117 | $932,117 | $29.27 | | |
| FIRE3 | Fire & Rescue Dist #3 S Whidbey GEN | 1.2130821753 | $932,117 | $932,117 | $1,130.73 | | |
| HOBOND | Hospital BOND | 0.1893405597 | $932,117 | $932,117 | $176.49 | | |
| HOGEN | Hospital GEN | 0.3848777722 | $932,117 | $932,117 | $358.75 | | |
| CE | County Current Expense | 0.3674210519 | $932,117 | $932,117 | $342.48 | | |
| CR | County Roads | 0.4614296361 | $932,117 | $932,117 | $430.11 | | |
| ISLANDEMS | Hospital GEN (EMS) | 0.4952018576 | $932,117 | $932,117 | $461.59 | | |
| LIB | Library Sno-Isle GEN | 0.3039084203 | $932,117 | $932,117 | $283.28 | | |
| PORTWHID | Port of S Whidbey GEN | 0.1086004714 | $932,117 | $932,117 | $101.23 | | |
| SCH206BOND | School 206 BOND | 0.5960237832 | $932,117 | $932,117 | $555.56 | | |
| SCH206CAP | School 206 CP | 0.3066144020 | $932,117 | $932,117 | $285.80 | | |
| SCH206MO | School 206 Enrichment | 0.4808755445 | $932,117 | $932,117 | $448.23 | | |
| ST | State School | 1.4761226122 | $932,117 | $932,117 | $1,375.92 | | |
| ST2 | State School Part 2 | 0.7953803475 | $932,117 | $932,117 | $741.39 | | |
| SWHIDPRBD | P & R S Whidbey BOND | 0.0144185398 | $932,117 | $932,117 | $13.44 | | |
| SWHIDPRBD3 | P & R S Whidbey BOND3 | 0.1483535547 | $932,117 | $932,117 | $138.28 | | |
| SWHIDPRMT | P & R S Whidbey GEN | 0.4600000000 | $932,117 | $932,117 | $428.77 | | |
| | Total Tax Rate: | 7.8330503944 | | | | | |
| | | | | Taxes w/Current Exemptions: | $7,301.32 | | |
| | | | | Taxes w/o Exemptions: | $7,301.32 | | |
Improvement / Building
| Improvement #1: | RESIDENTIAL | State Code: | Y | 3125.4 sqft | Value: | $602,117 |
| Bathrooms: | 2.75 | Bedrooms: | 4 | | Ceiling: | DRYWALL PAINTED | Exterior Wall/Cover: | CEMENT FIBER | | Floor Covering: | VINYL 100% | Floor Structure: | WOOD W/SUBFLOOR | | Foundation: | CONCRETE | Heating: | FHA GAS | | Interior Finish: | DRYWALL PAINT | Plumbing Fixture Cnt: | 14 | | Roof Slope: | 6" IN 12" | Roof Structure/Cover: | CJ ASPHALT |
|
| | Type | Description | Class CD | Sub Class CD | Year Built | Area |
| | BAS | BASE/MAIN FLOOR | 4 | 0 | 2024 | 1893.7 |
| | AGR | ATTACHED GARAGE | 4 | 0 | 2024 | 611.5 |
| | DWN | DOWNSTAIRS LIVING AREA | 4 | 0 | 2024 | 1231.7 |
| | OWP | OPEN WOOD PORCH W/STEPS | 4 | 0 | 2024 | 52.9 |
| | OWR | OPEN WOOD PORCH W/STEPS/ROOF | 4 | 0 | 2024 | 475.5 |
| | OP4 | OPEN PORCH W/CEILING-ROOF | 4 | 0 | 2024 | 221.3 |
Sketch
Property Image
Land
| 1 | 13 | SQ (06001-08000) | 0.1800 | 7840.80 | 0.00 | 0.00 | 1.00 | $330,000 | $0 |
Roll Value History
| 2026 | N/A | N/A | N/A | N/A | N/A |
| 2025 | $602,117 | $330,000 | $0 | $932,117 | $932,117 |
| 2024 | $300,411 | $110,000 | $0 | $410,411 | $410,411 |
| 2023 | $0 | $110,000 | $0 | $110,000 | $110,000 |
| 2022 | $0 | $100,000 | $0 | $100,000 | $100,000 |
| 2021 | $0 | $65,000 | $0 | $65,000 | $65,000 |
| 2020 | $0 | $65,000 | $0 | $65,000 | $65,000 |
| 2019 | $0 | $65,000 | $0 | $65,000 | $65,000 |
| 2018 | $0 | $65,000 | $0 | $65,000 | $65,000 |
| 2017 | $0 | $65,000 | $0 | $65,000 | $65,000 |
| 2016 | $0 | $65,000 | $0 | $65,000 | $65,000 |
| 2015 | $0 | $60,000 | $0 | $60,000 | $60,000 |
| 2014 | $0 | $55,000 | $0 | $55,000 | $55,000 |
| 2013 | $0 | $65,000 | $0 | $65,000 | $65,000 |
| 2012 | $0 | $65,000 | $0 | $65,000 | $65,000 |
| 2011 | $0 | $100,000 | $0 | $100,000 | $100,000 |
| 2010 | $0 | $100,000 | $0 | $100,000 | $100,000 |
| 2009 | $0 | $100,000 | $0 | $100,000 | $100,000 |
| 2008 | $0 | $125,000 | $0 | $125,000 | $125,000 |
| 2007 | $0 | $125,000 | $0 | $125,000 | $125,000 |
Deed and Sales History
| 1 | 10/07/2022 | WD | Warranty Deed | MORRISON, RYAN | WELLS, NANCY | | | $125,000.00 | 54918 | 4552836 |
| 2 | 08/25/2020 | QCD | Quit Claim Deed | MORRISON, FANY | MORRISON, RYAN | | | $0.00 | 44586 | 4495645 |
| 3 | 08/25/2020 | WD | Warranty Deed | RICKER, JOHN S | MORRISON, RYAN | | | $55,000.00 | 44585 | 4495644 |
| 4 | 10/06/2004 | WD | Warranty Deed | RUPP, ROGER E | RICKER, JOHN S | | | $55,000.00 | 44877 | 415586 |
| 5 | 01/01/1900 | OTHER | Other - Misc. Documents | Unknown | RUPP, ROGER E | | | $0.00 | 0 | 0 |
Payout Agreement
| No payout information available.. |