Property
Account |
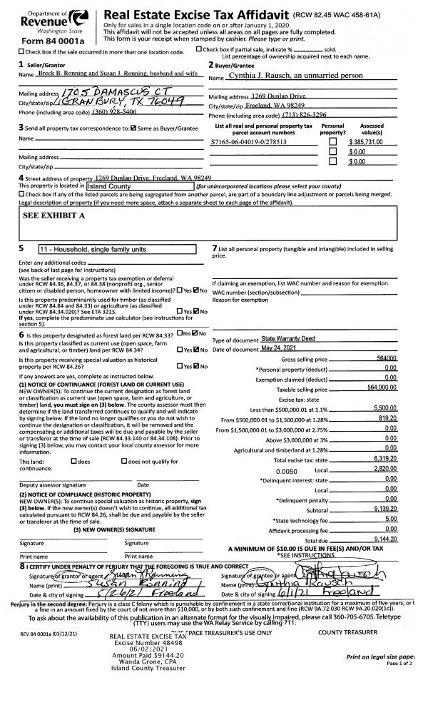
| Property ID: | 278513 | Abbreviated Legal Description: | HHGY 6 LOT 19 BLK 4 |
| Geographic ID: | S7165-06-04019-0 | Agent Code: | |
| Type: | Real | | |
| Tax Area: | 770 - APPRAISER-S Whid Schl Dist, Special District, improved & less than 1 acre | Land Use Code | 11 |
| Open Space: | N | DFL | N |
| Historic Property: | N | Remodel Property: | N |
| Multi-Family Redevelopment: | N | | |
| Township: | | Section: | |
| Range: | |
Location |
| Address: | 1269 DUNLAP DR FREELAND, WA 98249 | Mapsco: | |
| Neighborhood: | Cycle 3 | Map ID: | 287 |
| Neighborhood CD: | 3 |
Owner |
| Name: | RAUSCH, CYNTHIA J | Owner ID: | 299621 |
| Mailing Address: | 1269 DUNLAP DR FREELAND, WA 98249 | % Ownership: | 100.0000000000% |
| | | Exemptions: | |
Taxes and Assessment Details
Values
| (+) Improvement Homesite Value: | + | $0 | |
| (+) Improvement Non-Homesite Value: | + | $355,813 | |
| (+) Land Homesite Value: | + | $0 | |
| (+) Land Non-Homesite Value: | + | $285,000 | |
| (+) Curr Use (HS): | + | $0 | $0 |
| (+) Curr Use (NHS): | + | $0 | $0 |
| | | -------------------------- | |
| (=) Market Value: | = | $640,813 | |
| (–) Productivity Loss: | – | $0 | |
| | | -------------------------- | |
| (=) Subtotal: | = | $640,813 | |
| (+) Senior Appraised Value: | + | $0 | |
| (+) Non-Senior Appraised Value: | + | $640,813 | |
| | | -------------------------- | |
| (=) Total Appraised Value: | = | $640,813 | |
| (–) Senior Exemption Loss: | – | $0 | |
| (–) Exemption Loss: | – | $0 | |
| | | -------------------------- | |
| (=) Taxable Value: | = | $640,813 | |
Taxing Jurisdiction
| Owner: | RAUSCH, CYNTHIA J | | |
| % Ownership: | 100.0000000000% | | |
| Total Value: | $640,813 | | |
| Tax Area: | 770 - APPRAISER-S Whid Schl Dist, Special District, improved & less than 1 acre |
| CF | Conservation Futures | 0.0313996660 | $640,813 | $640,813 | $20.12 | | |
| FIRE3 | Fire & Rescue Dist #3 S Whidbey GEN | 1.2130821753 | $640,813 | $640,813 | $777.36 | | |
| HOBOND | Hospital BOND | 0.1893405597 | $640,813 | $640,813 | $121.33 | | |
| HOGEN | Hospital GEN | 0.3848777722 | $640,813 | $640,813 | $246.63 | | |
| CE | County Current Expense | 0.3674210519 | $640,813 | $640,813 | $235.45 | | |
| CR | County Roads | 0.4614296361 | $640,813 | $640,813 | $295.69 | | |
| ISLANDEMS | Hospital GEN (EMS) | 0.4952018576 | $640,813 | $640,813 | $317.33 | | |
| LIB | Library Sno-Isle GEN | 0.3039084203 | $640,813 | $640,813 | $194.75 | | |
| PORTWHID | Port of S Whidbey GEN | 0.1086004714 | $640,813 | $640,813 | $69.59 | | |
| SCH206BOND | School 206 BOND | 0.5960237832 | $640,813 | $640,813 | $381.94 | | |
| SCH206CAP | School 206 CP | 0.3066144020 | $640,813 | $640,813 | $196.48 | | |
| SCH206MO | School 206 Enrichment | 0.4808755445 | $640,813 | $640,813 | $308.15 | | |
| ST | State School | 1.4761226122 | $640,813 | $640,813 | $945.92 | | |
| ST2 | State School Part 2 | 0.7953803475 | $640,813 | $640,813 | $509.69 | | |
| SWHIDPRBD | P & R S Whidbey BOND | 0.0144185398 | $640,813 | $640,813 | $9.24 | | |
| SWHIDPRBD3 | P & R S Whidbey BOND3 | 0.1483535547 | $640,813 | $640,813 | $95.07 | | |
| SWHIDPRMT | P & R S Whidbey GEN | 0.4600000000 | $640,813 | $640,813 | $294.77 | | |
| | Total Tax Rate: | 7.8330503944 | | | | | |
| | | | | Taxes w/Current Exemptions: | $5,019.51 | | |
| | | | | Taxes w/o Exemptions: | $5,019.51 | | |
Improvement / Building
| Improvement #1: | RESIDENTIAL | State Code: | Y | 1677.5 sqft | Value: | $355,813 |
| Bathrooms: | 2 | Bedrooms: | 3 | | Ceiling: | DRYWALL PAINTED | Exterior Wall/Cover: | CEMENT FIBER | | Floor Covering: | CERAMIC TILE/HWD 40/60 | Floor Structure: | WOOD W/SUBFLOOR | | Foundation: | CONCRETE | Heating: | FHA GAS | | Interior Finish: | DRYWALL PAINT | Plumbing Fixture Cnt: | 12 | | Roof Slope: | 6" IN 12" | Roof Structure/Cover: | CJ ASPHALT |
|
| | Type | Description | Class CD | Sub Class CD | Year Built | Area |
| | BAS | BASE/MAIN FLOOR | 3 | 0 | 2000 | 1677.5 |
| | OP4 | OPEN PORCH W/CEILING-ROOF | 3 | 0 | 2000 | 30.0 |
| | OP4 | OPEN PORCH W/CEILING-ROOF | 3 | 0 | 2000 | 240.0 |
| | AGR | ATTACHED GARAGE | 3 | 0 | 2000 | 530.5 |
Sketch
Property Image
Land
| 1 | 15 | SQ (12001-21780) | 0.2800 | 12196.80 | 0.00 | 0.00 | 1.00 | $285,000 | $0 |
Roll Value History
| 2026 | N/A | N/A | N/A | N/A | N/A |
| 2025 | $355,813 | $285,000 | $0 | $640,813 | $640,813 |
| 2024 | $360,087 | $260,000 | $0 | $620,087 | $620,087 |
| 2023 | $364,361 | $240,000 | $0 | $604,361 | $604,361 |
| 2022 | $333,804 | $200,000 | $0 | $533,804 | $533,804 |
| 2021 | $293,629 | $115,000 | $0 | $408,629 | $408,629 |
| 2020 | $285,731 | $100,000 | $0 | $385,731 | $385,731 |
| 2019 | $195,465 | $170,000 | $0 | $365,465 | $365,465 |
| 2018 | $196,025 | $140,000 | $0 | $336,025 | $336,025 |
| 2017 | $197,111 | $120,000 | $0 | $317,111 | $317,111 |
| 2016 | $199,349 | $75,000 | $0 | $274,349 | $274,349 |
| 2015 | $201,590 | $65,000 | $0 | $266,590 | $266,590 |
| 2014 | $203,829 | $55,000 | $0 | $258,829 | $258,829 |
| 2013 | $212,988 | $45,000 | $0 | $257,988 | $257,988 |
| 2012 | $215,381 | $45,900 | $0 | $261,281 | $261,281 |
| 2011 | $217,777 | $54,000 | $0 | $271,777 | $271,777 |
| 2010 | $227,654 | $65,000 | $0 | $292,654 | $292,654 |
| 2009 | $237,410 | $82,000 | $0 | $319,410 | $319,410 |
| 2008 | $237,943 | $85,000 | $0 | $322,943 | $322,943 |
| 2007 | $232,118 | $78,000 | $0 | $310,118 | $310,118 |
Deed and Sales History
| 1 | 05/24/2021 | WD | Warranty Deed | RONNING, BRECK B | RAUSCH, CYNTHIA J | | | $564,000.00 | 48498 | 4520705 |
| 2 | 09/28/2010 | QCD | Quit Claim Deed | BRECK B RONNING | RONNING, BRECK B | | | $0.00 | 2519 | 4282516 |
| 3 | 09/24/2010 | QCD | Quit Claim Deed | RONNING LIVING TRUST | BRECK B RONNING | | | $0.00 | 2518 | 4282517 |
| 4 | 08/22/2002 | QCD | Quit Claim Deed | RONNING, CARL J | RONNING TRUSTEE, CARL J | | | $0.00 | 23506 | 4030363 |
| 5 | 07/30/2002 | WD | Warranty Deed | MONTEITH, ROBERT D | RONNING, CARL J | | | $197,500.00 | 23203 | 4028504 |
| 6 | 07/24/2000 | QCD | Quit Claim Deed | MONTEITH, ROBERT D | MONTEITH, ROBERT D | | | $0.00 | 3283 | 20013635 |
| 7 | 07/24/2000 | QCD | Quit Claim Deed | CRONIN, DARTY | MONTEITH, ROBERT D | | | $0.00 | 2904 | 20013635 |
| 8 | 02/01/1998 | QCD | Quit Claim Deed | TODD, DAN & | CRONIN, DARTY | | | $0.00 | 80683 | 98003674 |
| 9 | 10/01/1994 | WD | Warranty Deed | BECKMAN, LESLIE A | TODD, DAN & | | | $25,000.00 | 44320 | 94022288 |
| 10 | 11/01/1990 | QCD | Quit Claim Deed | BECKMAN, LESLIE A | BECKMAN, LESLIE A | | | $0.00 | 6622 | 90023086 |
| 11 | 10/01/1986 | QCD | Quit Claim Deed | SUTTER, PAMELA E | BECKMAN, LESLIE A | | | $0.00 | 62979 | 86013458 |
| 12 | 01/01/1984 | OTHER | Other - Misc. Documents | SUTTER, ROBERT J | SUTTER, PAMELA E | | | $0.00 | 60384 | 0 |
| 13 | 10/01/1982 | QCD | Quit Claim Deed | SUTTER, ROBERT J | SUTTER, ROBERT J | | | $0.00 | 22794 | 402824 |
| 14 | 10/01/1982 | QCD | Quit Claim Deed | FIRST, REALTY I | SUTTER, ROBERT J | | | $0.00 | 30219 | 405280 |
| 15 | 01/01/1900 | OTHER | Other - Misc. Documents | Unknown | FIRST, REALTY I | | | $0.00 | 0 | 0 |
Payout Agreement
| No payout information available.. |