Property
Account |
| Property ID: | 278853 | Abbreviated Legal Description: | HHGY 7 LOT 10 BLK 3 |
| Geographic ID: | S7165-07-03010-0 | Agent Code: | |
| Type: | Real | | |
| Tax Area: | 779 - APPRAISER-S Whid Schl Dist, Special District, vacant & 50 acres or less | Land Use Code | 99 |
| Open Space: | N | DFL | N |
| Historic Property: | N | Remodel Property: | N |
| Multi-Family Redevelopment: | N | | |
| Township: | | Section: | |
| Range: | |
Location |
| Address: | | Mapsco: | |
| Neighborhood: | Cycle 3 | Map ID: | 290 |
| Neighborhood CD: | 3 |
Owner |
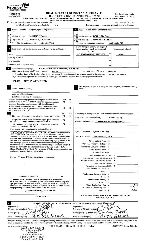
| Name: | SLAIS, COLIN | Owner ID: | 296338 |
| Mailing Address: | 14508 N 91ST ST SCOTTSDALE, AZ 85260 | % Ownership: | 100.0000000000% |
| | | Exemptions: | |
Taxes and Assessment Details
Values
| (+) Improvement Homesite Value: | + | $0 | |
| (+) Improvement Non-Homesite Value: | + | $0 | |
| (+) Land Homesite Value: | + | $0 | |
| (+) Land Non-Homesite Value: | + | $110,000 | |
| (+) Curr Use (HS): | + | $0 | $0 |
| (+) Curr Use (NHS): | + | $0 | $0 |
| | | -------------------------- | |
| (=) Market Value: | = | $110,000 | |
| (–) Productivity Loss: | – | $0 | |
| | | -------------------------- | |
| (=) Subtotal: | = | $110,000 | |
| (+) Senior Appraised Value: | + | $0 | |
| (+) Non-Senior Appraised Value: | + | $110,000 | |
| | | -------------------------- | |
| (=) Total Appraised Value: | = | $110,000 | |
| (–) Senior Exemption Loss: | – | $0 | |
| (–) Exemption Loss: | – | $0 | |
| | | -------------------------- | |
| (=) Taxable Value: | = | $110,000 | |
Taxing Jurisdiction
| Owner: | SLAIS, COLIN | | |
| % Ownership: | 100.0000000000% | | |
| Total Value: | $110,000 | | |
| Tax Area: | 779 - APPRAISER-S Whid Schl Dist, Special District, vacant & 50 acres or less |
| CF | Conservation Futures | 0.0313996660 | $110,000 | $110,000 | $3.45 | | |
| HOBOND | Hospital BOND | 0.1893405597 | $110,000 | $110,000 | $20.83 | | |
| HOGEN | Hospital GEN | 0.3848777722 | $110,000 | $110,000 | $42.34 | | |
| CE | County Current Expense | 0.3674210519 | $110,000 | $110,000 | $40.42 | | |
| CR | County Roads | 0.4614296361 | $110,000 | $110,000 | $50.76 | | |
| ISLANDEMS | Hospital GEN (EMS) | 0.4952018576 | $110,000 | $110,000 | $54.47 | | |
| LIB | Library Sno-Isle GEN | 0.3039084203 | $110,000 | $110,000 | $33.43 | | |
| PORTWHID | Port of S Whidbey GEN | 0.1086004714 | $110,000 | $110,000 | $11.95 | | |
| SCH206BOND | School 206 BOND | 0.5960237832 | $110,000 | $110,000 | $65.56 | | |
| SCH206CAP | School 206 CP | 0.3066144020 | $110,000 | $110,000 | $33.73 | | |
| SCH206MO | School 206 Enrichment | 0.4808755445 | $110,000 | $110,000 | $52.90 | | |
| ST | State School | 1.4761226122 | $110,000 | $110,000 | $162.37 | | |
| ST2 | State School Part 2 | 0.7953803475 | $110,000 | $110,000 | $87.49 | | |
| SWHIDPRBD | P & R S Whidbey BOND | 0.0144185398 | $110,000 | $110,000 | $1.59 | | |
| SWHIDPRBD3 | P & R S Whidbey BOND3 | 0.1483535547 | $110,000 | $110,000 | $16.32 | | |
| SWHIDPRMT | P & R S Whidbey GEN | 0.4600000000 | $110,000 | $110,000 | $50.60 | | |
| | Total Tax Rate: | 6.6199682191 | | | | | |
| | | | | Taxes w/Current Exemptions: | $728.21 | | |
| | | | | Taxes w/o Exemptions: | $728.21 | | |
Improvement / Building
Sketch
| No sketches available for this property. |
Property Image
Land
| 1 | 13 | SQ (06001-08000) | 0.1700 | 7405.20 | 0.00 | 0.00 | 1.00 | $110,000 | $0 |
Roll Value History
| 2026 | N/A | N/A | N/A | N/A | N/A |
| 2025 | $0 | $110,000 | $0 | $110,000 | $110,000 |
| 2024 | $0 | $120,000 | $0 | $120,000 | $120,000 |
| 2023 | $0 | $100,000 | $0 | $100,000 | $100,000 |
| 2022 | $0 | $70,000 | $0 | $70,000 | $70,000 |
| 2021 | $0 | $60,000 | $0 | $60,000 | $60,000 |
| 2020 | $0 | $50,000 | $0 | $50,000 | $50,000 |
| 2019 | $0 | $40,000 | $0 | $40,000 | $40,000 |
| 2018 | $0 | $35,000 | $0 | $35,000 | $35,000 |
| 2017 | $0 | $35,000 | $0 | $35,000 | $35,000 |
| 2016 | $0 | $35,000 | $0 | $35,000 | $35,000 |
| 2015 | $0 | $60,000 | $0 | $60,000 | $60,000 |
| 2014 | $0 | $55,000 | $0 | $55,000 | $55,000 |
| 2013 | $0 | $30,000 | $0 | $30,000 | $30,000 |
| 2012 | $0 | $45,900 | $0 | $45,900 | $45,900 |
| 2011 | $0 | $54,000 | $0 | $54,000 | $54,000 |
| 2010 | $0 | $65,000 | $0 | $65,000 | $65,000 |
| 2009 | $0 | $82,000 | $0 | $82,000 | $82,000 |
| 2008 | $0 | $100,000 | $0 | $100,000 | $100,000 |
| 2007 | $0 | $100,000 | $0 | $100,000 | $100,000 |
Deed and Sales History
| 1 | 09/23/2020 | QCD | Quit Claim Deed | MAGANA, MARTA I | SLAIS, COLIN | | | $0.00 | 45009 | 4498161 |
| 2 | 09/23/2020 | WD | Warranty Deed | WATERSHIP PROPERTIES LLC | SLAIS, COLIN | | | $54,500.00 | 44998 | 4498160 |
| 3 | 10/15/2003 | 5 | DNU - Marriage License/Name Change | COMEGYS, RIPLEY S | WATERSHIP PROPERTIES LLC, | | | $0.00 | 34822 | 4080482 |
| 4 | 05/02/2003 | WD | Warranty Deed | ANDERSEN & T BJORNSTAD, A B | COMEGYS, RIPLEY S | | | $12,000.00 | 32233 | 4060560 |
| 5 | 01/01/1900 | OTHER | Other - Misc. Documents | Unknown | ANDERSEN & T BJORNSTAD, A B | | | $0.00 | 0 | 0 |
Payout Agreement
| 409 | Active | Annual Payments | | 10/24/2012 3:08:26 PM | Annually | 2 | $0 |