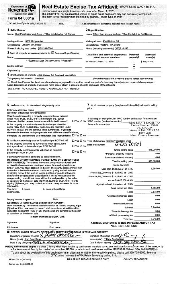
Property
Account |
| Property ID: | 278915 | Abbreviated Legal Description: | HHGY 7 LOT 16 BLK 3 |
| Geographic ID: | S7165-07-03016-0 | Agent Code: | |
| Type: | Real | | |
| Tax Area: | 770 - APPRAISER-S Whid Schl Dist, Special District, improved & less than 1 acre | Land Use Code | 11 |
| Open Space: | N | DFL | N |
| Historic Property: | N | Remodel Property: | N |
| Multi-Family Redevelopment: | N | | |
| Township: | | Section: | |
| Range: | |
Location |
| Address: | 4848 HAINES RD FREELAND, WA 98249 | Mapsco: | |
| Neighborhood: | Cycle 3 | Map ID: | 290 |
| Neighborhood CD: | 3 |
Owner |
| Name: | MCNEAL JTWROS, TIFFANY ANN | Owner ID: | 311497 |
| Mailing Address: | JOSEPH SCOTT HILTON JTWROS 4848 HAINES RD FREELAND, WA 98249 | % Ownership: | 100.0000000000% |
| | | Exemptions: | |
Taxes and Assessment Details
Values
| (+) Improvement Homesite Value: | + | $0 | |
| (+) Improvement Non-Homesite Value: | + | $249,160 | |
| (+) Land Homesite Value: | + | $0 | |
| (+) Land Non-Homesite Value: | + | $285,000 | |
| (+) Curr Use (HS): | + | $0 | $0 |
| (+) Curr Use (NHS): | + | $0 | $0 |
| | | -------------------------- | |
| (=) Market Value: | = | $534,160 | |
| (–) Productivity Loss: | – | $0 | |
| | | -------------------------- | |
| (=) Subtotal: | = | $534,160 | |
| (+) Senior Appraised Value: | + | $0 | |
| (+) Non-Senior Appraised Value: | + | $534,160 | |
| | | -------------------------- | |
| (=) Total Appraised Value: | = | $534,160 | |
| (–) Senior Exemption Loss: | – | $0 | |
| (–) Exemption Loss: | – | $0 | |
| | | -------------------------- | |
| (=) Taxable Value: | = | $534,160 | |
Taxing Jurisdiction
| Owner: | MCNEAL JTWROS, TIFFANY ANN | | |
| % Ownership: | 100.0000000000% | | |
| Total Value: | $534,160 | | |
| Tax Area: | 770 - APPRAISER-S Whid Schl Dist, Special District, improved & less than 1 acre |
| CF | Conservation Futures | 0.0313996660 | $534,160 | $534,160 | $16.77 | | |
| FIRE3 | Fire & Rescue Dist #3 S Whidbey GEN | 1.2130821753 | $534,160 | $534,160 | $647.98 | | |
| HOBOND | Hospital BOND | 0.1893405597 | $534,160 | $534,160 | $101.14 | | |
| HOGEN | Hospital GEN | 0.3848777722 | $534,160 | $534,160 | $205.59 | | |
| CE | County Current Expense | 0.3674210519 | $534,160 | $534,160 | $196.26 | | |
| CR | County Roads | 0.4614296361 | $534,160 | $534,160 | $246.48 | | |
| ISLANDEMS | Hospital GEN (EMS) | 0.4952018576 | $534,160 | $534,160 | $264.52 | | |
| LIB | Library Sno-Isle GEN | 0.3039084203 | $534,160 | $534,160 | $162.34 | | |
| PORTWHID | Port of S Whidbey GEN | 0.1086004714 | $534,160 | $534,160 | $58.01 | | |
| SCH206BOND | School 206 BOND | 0.5960237832 | $534,160 | $534,160 | $318.37 | | |
| SCH206CAP | School 206 CP | 0.3066144020 | $534,160 | $534,160 | $163.78 | | |
| SCH206MO | School 206 Enrichment | 0.4808755445 | $534,160 | $534,160 | $256.86 | | |
| ST | State School | 1.4761226122 | $534,160 | $534,160 | $788.49 | | |
| ST2 | State School Part 2 | 0.7953803475 | $534,160 | $534,160 | $424.86 | | |
| SWHIDPRBD | P & R S Whidbey BOND | 0.0144185398 | $534,160 | $534,160 | $7.70 | | |
| SWHIDPRBD3 | P & R S Whidbey BOND3 | 0.1483535547 | $534,160 | $534,160 | $79.24 | | |
| SWHIDPRMT | P & R S Whidbey GEN | 0.4600000000 | $534,160 | $534,160 | $245.71 | | |
| | Total Tax Rate: | 7.8330503944 | | | | | |
| | | | | Taxes w/Current Exemptions: | $4,184.10 | | |
| | | | | Taxes w/o Exemptions: | $4,184.10 | | |
Improvement / Building
| Improvement #1: | RESIDENTIAL | State Code: | Y | 1200.0 sqft | Value: | $249,160 |
| Bathrooms: | 2 | Bedrooms: | 3 | | Ceiling: | DRYWALL PAINTED | Exterior Wall/Cover: | WOOD SIDING | | Floor Covering: | CARPET/VINYL 60-40 | Floor Structure: | WOOD W/SUBFLOOR | | Foundation: | CONCRETE | Heating: | FHA GAS | | Interior Finish: | DRYWALL PAINT | Plumbing Fixture Cnt: | 11 | | Roof Slope: | 12" IN 12" | Roof Structure/Cover: | CJ ASPHALT |
|
| | Type | Description | Class CD | Sub Class CD | Year Built | Area |
| | BAS | BASE/MAIN FLOOR | 3 | 0 | 1997 | 750.0 |
| | AGR | ATTACHED GARAGE | 3 | 0 | 1997 | 400.0 |
| | UPS | UPPER STORY | 3 | 0 | 1997 | 450.0 |
Sketch
Property Image
Land
| 1 | 13 | SQ (06001-08000) | 0.1700 | 7405.20 | 0.00 | 0.00 | 1.00 | $285,000 | $0 |
Roll Value History
| 2026 | N/A | N/A | N/A | N/A | N/A |
| 2025 | $249,160 | $285,000 | $0 | $534,160 | $534,160 |
| 2024 | $252,154 | $260,000 | $0 | $512,154 | $512,154 |
| 2023 | $255,147 | $240,000 | $0 | $495,147 | $495,147 |
| 2022 | $233,751 | $200,000 | $0 | $433,751 | $433,751 |
| 2021 | $205,616 | $115,000 | $0 | $320,616 | $320,616 |
| 2020 | $199,591 | $100,000 | $0 | $299,591 | $299,591 |
| 2019 | $140,207 | $170,000 | $0 | $310,207 | $310,207 |
| 2018 | $140,598 | $140,000 | $0 | $280,598 | $280,598 |
| 2017 | $140,835 | $120,000 | $0 | $260,835 | $260,835 |
| 2016 | $142,400 | $75,000 | $0 | $217,400 | $217,400 |
| 2015 | $143,965 | $85,000 | $0 | $228,965 | $228,965 |
| 2014 | $118,964 | $65,000 | $0 | $183,964 | $183,964 |
| 2013 | $143,287 | $65,000 | $0 | $208,287 | $208,287 |
| 2012 | $144,953 | $65,000 | $0 | $209,953 | $209,953 |
| 2011 | $146,619 | $100,000 | $0 | $246,619 | $246,619 |
| 2010 | $152,035 | $100,000 | $0 | $252,035 | $252,035 |
| 2009 | $158,577 | $100,000 | $0 | $258,577 | $258,577 |
| 2008 | $160,532 | $125,000 | $0 | $285,532 | $285,532 |
| 2007 | $163,538 | $100,000 | $0 | $263,538 | $263,538 |
Deed and Sales History
| 1 | 02/20/2024 | WD | Warranty Deed | POECHLAUER TRUSTEE, KURT | MCNEAL JTWROS, TIFFANY ANN | | | $515,000.00 | 59262 | 4569669 |
| 2 | 04/13/2017 | WD | Warranty Deed | BRIGHT JR, ROBERT A | POECHLAUER TRUSTEE, KURT | | | $286,000.00 | 28847 | 4420638 |
| 3 | 07/02/2015 | SPWARDEED | Special Warranty Deed | FEDERAL NATIONAL MORTGAGE ASSOCIATION | BRIGHT JR, ROBERT A | | | $0.00 | 20311 | 4381451 |
| 4 | 10/23/2014 | TRUSTEED | Trustee's Deed | GORTON, NATHAN | FEDERAL NATIONAL MORTGAGE ASSOCIATION | | | $0.00 | 17374 | 4367757 |
| 5 | 04/13/2007 | WD | Warranty Deed | SHERLOCK, JOAN T | GORTON, NATHAN | | | $275,000.00 | 71492 | 4201270 |
| 6 | 04/01/1996 | WD | Warranty Deed | P, O K | SHERLOCK, JOAN T | | | $21,500.00 | 61480 | 96007380 |
| 7 | 06/01/1979 | TRUSTEED | Trustee's Deed | HARBOR, LAND C | P, O K | | | $3,900.00 | 93193 | 354909 |
| 8 | 01/01/1900 | OTHER | Other - Misc. Documents | Unknown | HARBOR, LAND C | | | $0.00 | 0 | 0 |
Payout Agreement
| No payout information available.. |