Property
Account |
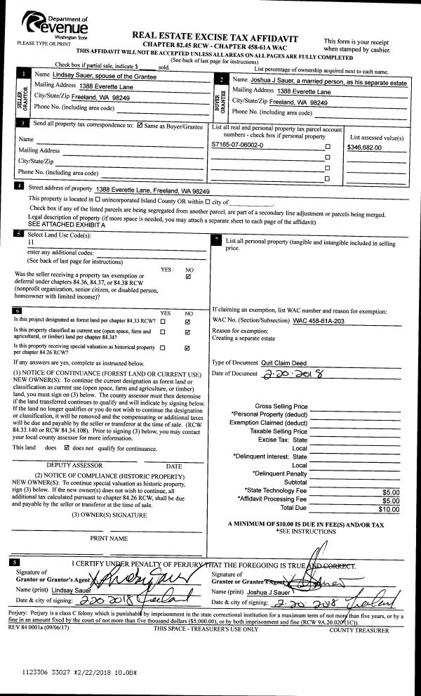
| Property ID: | 279246 | Abbreviated Legal Description: | HHGY 7 LOT 2 BLK 6 |
| Geographic ID: | S7165-07-06002-0 | Agent Code: | |
| Type: | Real | | |
| Tax Area: | 770 - APPRAISER-S Whid Schl Dist, Special District, improved & less than 1 acre | Land Use Code | 11 |
| Open Space: | N | DFL | N |
| Historic Property: | N | Remodel Property: | N |
| Multi-Family Redevelopment: | N | | |
| Township: | | Section: | |
| Range: | |
Location |
| Address: | 1388 EVERETTE LN FREELAND, WA 98249 | Mapsco: | |
| Neighborhood: | Cycle 3 | Map ID: | 290 |
| Neighborhood CD: | 3 |
Owner |
| Name: | SAUER, JOSHUA J | Owner ID: | 284018 |
| Mailing Address: | LINDSAY SAUER 1388 EVERETTE LN FREELAND, WA 98249 | % Ownership: | 100.0000000000% |
| | | Exemptions: | |
Taxes and Assessment Details
Values
| (+) Improvement Homesite Value: | + | $0 | |
| (+) Improvement Non-Homesite Value: | + | $385,719 | |
| (+) Land Homesite Value: | + | $0 | |
| (+) Land Non-Homesite Value: | + | $260,000 | |
| (+) Curr Use (HS): | + | $0 | $0 |
| (+) Curr Use (NHS): | + | $0 | $0 |
| | | -------------------------- | |
| (=) Market Value: | = | $645,719 | |
| (–) Productivity Loss: | – | $0 | |
| | | -------------------------- | |
| (=) Subtotal: | = | $645,719 | |
| (+) Senior Appraised Value: | + | $0 | |
| (+) Non-Senior Appraised Value: | + | $645,719 | |
| | | -------------------------- | |
| (=) Total Appraised Value: | = | $645,719 | |
| (–) Senior Exemption Loss: | – | $0 | |
| (–) Exemption Loss: | – | $0 | |
| | | -------------------------- | |
| (=) Taxable Value: | = | $645,719 | |
Taxing Jurisdiction
| Owner: | SAUER, JOSHUA J | | |
| % Ownership: | 100.0000000000% | | |
| Total Value: | $645,719 | | |
| Tax Area: | 770 - APPRAISER-S Whid Schl Dist, Special District, improved & less than 1 acre |
| CF | Conservation Futures | 0.0313996660 | $645,719 | $645,719 | $20.28 | | |
| FIRE3 | Fire & Rescue Dist #3 S Whidbey GEN | 1.2130821753 | $645,719 | $645,719 | $783.31 | | |
| HOBOND | Hospital BOND | 0.1893405597 | $645,719 | $645,719 | $122.26 | | |
| HOGEN | Hospital GEN | 0.3848777722 | $645,719 | $645,719 | $248.52 | | |
| CE | County Current Expense | 0.3674210519 | $645,719 | $645,719 | $237.25 | | |
| CR | County Roads | 0.4614296361 | $645,719 | $645,719 | $297.95 | | |
| ISLANDEMS | Hospital GEN (EMS) | 0.4952018576 | $645,719 | $645,719 | $319.76 | | |
| LIB | Library Sno-Isle GEN | 0.3039084203 | $645,719 | $645,719 | $196.24 | | |
| PORTWHID | Port of S Whidbey GEN | 0.1086004714 | $645,719 | $645,719 | $70.13 | | |
| SCH206BOND | School 206 BOND | 0.5960237832 | $645,719 | $645,719 | $384.86 | | |
| SCH206CAP | School 206 CP | 0.3066144020 | $645,719 | $645,719 | $197.99 | | |
| SCH206MO | School 206 Enrichment | 0.4808755445 | $645,719 | $645,719 | $310.51 | | |
| ST | State School | 1.4761226122 | $645,719 | $645,719 | $953.16 | | |
| ST2 | State School Part 2 | 0.7953803475 | $645,719 | $645,719 | $513.59 | | |
| SWHIDPRBD | P & R S Whidbey BOND | 0.0144185398 | $645,719 | $645,719 | $9.31 | | |
| SWHIDPRBD3 | P & R S Whidbey BOND3 | 0.1483535547 | $645,719 | $645,719 | $95.79 | | |
| SWHIDPRMT | P & R S Whidbey GEN | 0.4600000000 | $645,719 | $645,719 | $297.03 | | |
| | Total Tax Rate: | 7.8330503944 | | | | | |
| | | | | Taxes w/Current Exemptions: | $5,057.94 | | |
| | | | | Taxes w/o Exemptions: | $5,057.94 | | |
Improvement / Building
| Improvement #1: | RESIDENTIAL | State Code: | Y | 1742.0 sqft | Value: | $385,719 |
| Bathrooms: | 2 | Bedrooms: | 3 | | Ceiling: | DRYWALL PAINTED | Exterior Wall/Cover: | CEMENT FIBER | | Floor Covering: | HARDWOOD/CARP 60-40 | Floor Structure: | WOOD W/SUBFLOOR | | Foundation: | CONCRETE | Heating: | FHA GAS | | Interior Finish: | DRYWALL PAINT | Plumbing Fixture Cnt: | 12 | | Roof Slope: | 5" IN 12" | Roof Structure/Cover: | CJ ASPHALT |
|
| | Type | Description | Class CD | Sub Class CD | Year Built | Area |
| | BAS | BASE/MAIN FLOOR | 4 | 0 | 2006 | 1742.0 |
| | AGR | ATTACHED GARAGE | 4 | 0 | 2006 | 440.0 |
| | OWP | OPEN WOOD PORCH W/STEPS | 4 | 0 | 2006 | 245.0 |
Sketch
Property Image
Land
| 1 | 14 | SQ (08001-12000) | 0.2200 | 9583.20 | 0.00 | 0.00 | 1.00 | $260,000 | $0 |
Roll Value History
| 2026 | N/A | N/A | N/A | N/A | N/A |
| 2025 | $385,719 | $260,000 | $0 | $645,719 | $645,719 |
| 2024 | $390,244 | $260,000 | $0 | $650,244 | $650,244 |
| 2023 | $394,768 | $230,000 | $0 | $624,768 | $624,768 |
| 2022 | $361,559 | $200,000 | $0 | $561,559 | $561,559 |
| 2021 | $317,967 | $115,000 | $0 | $432,967 | $432,967 |
| 2020 | $308,289 | $100,000 | $0 | $408,289 | $408,289 |
| 2019 | $224,835 | $170,000 | $0 | $394,835 | $394,835 |
| 2018 | $225,451 | $140,000 | $0 | $365,451 | $365,451 |
| 2017 | $226,682 | $120,000 | $0 | $346,682 | $346,682 |
| 2016 | $229,147 | $75,000 | $0 | $304,147 | $304,147 |
| 2015 | $231,610 | $65,000 | $0 | $296,610 | $296,610 |
| 2014 | $234,075 | $55,000 | $0 | $289,075 | $289,075 |
| 2013 | $247,569 | $45,000 | $0 | $292,569 | $292,569 |
| 2012 | $250,232 | $45,900 | $0 | $296,132 | $296,132 |
| 2011 | $252,893 | $54,000 | $0 | $306,893 | $306,893 |
| 2010 | $259,443 | $65,000 | $0 | $324,443 | $324,443 |
| 2009 | $270,164 | $82,000 | $0 | $352,164 | $352,164 |
| 2008 | $270,309 | $100,000 | $0 | $370,309 | $370,309 |
| 2007 | $273,131 | $100,000 | $0 | $373,131 | $373,131 |
Deed and Sales History
| 1 | 02/20/2018 | QCD | Quit Claim Deed | SAUER, JOSHUA J | SAUER, JOSHUA J | | | $0.00 | 33070 | 4439799 |
| 2 | 02/20/2018 | QCD | Quit Claim Deed | SAUER, JOSHUA J | SAUER, JOSHUA J | | | $0.00 | 33027 | 4439622 |
| 3 | 02/16/2018 | WD | Warranty Deed | NELSON, RAE JEAN | SAUER, JOSHUA J | | | $410,000.00 | 33026 | 4439621 |
| 4 | 02/12/2014 | WD | Warranty Deed | MAXWELL, JACK F | NELSON, RAE JEAN | | | $285,000.00 | 14301 | 4355335 |
| 5 | 04/25/2007 | WD | Warranty Deed | GETCHEL HILL CONSTRUCTION LLC, | MAXWELL, JACK F | | | $399,950.00 | 71394 | 4200772 |
| 6 | 04/11/2005 | WD | Warranty Deed | NORTHERN SOUND CONSTRUCTION LL | GETCHEL HILL CONSTRUCTION LLC, | | | $22,500.00 | 51488 | 4130854 |
| 7 | 09/16/2004 | WD | Warranty Deed | HOSS, MILTON W | NORTHERN SOUND CONSTRUCTION LL | | | $32,000.00 | 44411 | 4113288 |
| 8 | 07/15/2004 | QCD | Quit Claim Deed | FRASER, ROSS | HOSS, MILTON W | | | $0.00 | 43258 | 4106185 |
| 9 | 04/01/1990 | REC | Real Estate Contract | HOSS, A E | FRASER, ROSS | | | $6,450.00 | 2463 | 90007935 |
| 10 | 01/01/1900 | OTHER | Other - Misc. Documents | Unknown | HOSS, A E | | | $0.00 | 0 | 0 |
Payout Agreement
| No payout information available.. |