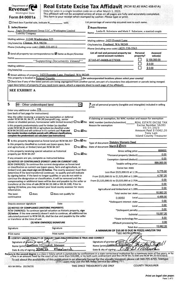
Property
Account |
| Property ID: | 279308 | Abbreviated Legal Description: | HHGY 7 LOT 8 BLK 6 |
| Geographic ID: | S7165-07-06008-0 | Agent Code: | |
| Type: | Real | | |
| Tax Area: | 770 - APPRAISER-S Whid Schl Dist, Special District, improved & less than 1 acre | Land Use Code | 11 |
| Open Space: | N | DFL | N |
| Historic Property: | N | Remodel Property: | N |
| Multi-Family Redevelopment: | N | | |
| Township: | | Section: | |
| Range: | |
Location |
| Address: | | Mapsco: | |
| Neighborhood: | Cycle 3 | Map ID: | 290 |
| Neighborhood CD: | 3 |
Owner |
| Name: | SCHWISOW, LESLIE R | Owner ID: | 308157 |
| Mailing Address: | MARK F SCHWISOW 1425 EVERETT LN FREELAND, WA 98249 | % Ownership: | 100.0000000000% |
| | | Exemptions: | |
Taxes and Assessment Details
Values
| (+) Improvement Homesite Value: | + | $0 | |
| (+) Improvement Non-Homesite Value: | + | $427,479 | |
| (+) Land Homesite Value: | + | $0 | |
| (+) Land Non-Homesite Value: | + | $330,000 | |
| (+) Curr Use (HS): | + | $0 | $0 |
| (+) Curr Use (NHS): | + | $0 | $0 |
| | | -------------------------- | |
| (=) Market Value: | = | $757,479 | |
| (–) Productivity Loss: | – | $0 | |
| | | -------------------------- | |
| (=) Subtotal: | = | $757,479 | |
| (+) Senior Appraised Value: | + | $0 | |
| (+) Non-Senior Appraised Value: | + | $757,479 | |
| | | -------------------------- | |
| (=) Total Appraised Value: | = | $757,479 | |
| (–) Senior Exemption Loss: | – | $0 | |
| (–) Exemption Loss: | – | $0 | |
| | | -------------------------- | |
| (=) Taxable Value: | = | $757,479 | |
Taxing Jurisdiction
| Owner: | SCHWISOW, LESLIE R | | |
| % Ownership: | 100.0000000000% | | |
| Total Value: | $757,479 | | |
| Tax Area: | 770 - APPRAISER-S Whid Schl Dist, Special District, improved & less than 1 acre |
| CF | Conservation Futures | 0.0313996660 | $757,479 | $757,479 | $23.78 | | |
| FIRE3 | Fire & Rescue Dist #3 S Whidbey GEN | 1.2130821753 | $757,479 | $757,479 | $918.88 | | |
| HOBOND | Hospital BOND | 0.1893405597 | $757,479 | $757,479 | $143.42 | | |
| HOGEN | Hospital GEN | 0.3848777722 | $757,479 | $757,479 | $291.54 | | |
| CE | County Current Expense | 0.3674210519 | $757,479 | $757,479 | $278.31 | | |
| CR | County Roads | 0.4614296361 | $757,479 | $757,479 | $349.52 | | |
| ISLANDEMS | Hospital GEN (EMS) | 0.4952018576 | $757,479 | $757,479 | $375.11 | | |
| LIB | Library Sno-Isle GEN | 0.3039084203 | $757,479 | $757,479 | $230.20 | | |
| PORTWHID | Port of S Whidbey GEN | 0.1086004714 | $757,479 | $757,479 | $82.26 | | |
| SCH206BOND | School 206 BOND | 0.5960237832 | $757,479 | $757,479 | $451.48 | | |
| SCH206CAP | School 206 CP | 0.3066144020 | $757,479 | $757,479 | $232.25 | | |
| SCH206MO | School 206 Enrichment | 0.4808755445 | $757,479 | $757,479 | $364.25 | | |
| ST | State School | 1.4761226122 | $757,479 | $757,479 | $1,118.13 | | |
| ST2 | State School Part 2 | 0.7953803475 | $757,479 | $757,479 | $602.48 | | |
| SWHIDPRBD | P & R S Whidbey BOND | 0.0144185398 | $757,479 | $757,479 | $10.92 | | |
| SWHIDPRBD3 | P & R S Whidbey BOND3 | 0.1483535547 | $757,479 | $757,479 | $112.37 | | |
| SWHIDPRMT | P & R S Whidbey GEN | 0.4600000000 | $757,479 | $757,479 | $348.44 | | |
| | Total Tax Rate: | 7.8330503944 | | | | | |
| | | | | Taxes w/Current Exemptions: | $5,933.34 | | |
| | | | | Taxes w/o Exemptions: | $5,933.34 | | |
Improvement / Building
| Improvement #1: | RESIDENTIAL | State Code: | Y | 1673.3 sqft | Value: | $427,479 |
| Bathrooms: | 2 | Bedrooms: | 3 | | Ceiling: | DRYWALL PAINTED | Cooling: | HEAT PUMP/CONV/V | | Exterior Wall/Cover: | CEMENT FIBER | Floor Covering: | VINYL 100% | | Floor Structure: | WOOD W/SUBFLOOR | Foundation: | CONCRETE | | Interior Finish: | DRYWALL PAINT | Plumbing Fixture Cnt: | 10 | | Roof Slope: | 8" IN 12" | Roof Structure/Cover: | CJ ASPHALT |
|
| | Type | Description | Class CD | Sub Class CD | Year Built | Area |
| | BAS | BASE/MAIN FLOOR | 4 | 0 | 2023 | 1673.3 |
| | AGR | ATTACHED GARAGE | 4 | 0 | 2023 | 484.0 |
| | OP4 | OPEN PORCH W/CEILING-ROOF | 4 | 0 | 2023 | 54.0 |
| | OWP | OPEN WOOD PORCH W/STEPS | 4 | 0 | 2023 | 626.0 |
Sketch
Property Image
Land
| 1 | 14 | SQ (08001-12000) | 0.2200 | 9583.20 | 0.00 | 0.00 | 1.00 | $330,000 | $0 |
Roll Value History
| 2026 | N/A | N/A | N/A | N/A | N/A |
| 2025 | $427,479 | $330,000 | $0 | $757,479 | $757,479 |
| 2024 | $435,251 | $300,000 | $0 | $735,251 | $735,251 |
| 2023 | $444,134 | $250,000 | $0 | $694,134 | $694,134 |
| 2022 | $0 | $100,000 | $0 | $100,000 | $100,000 |
| 2021 | $0 | $65,000 | $0 | $65,000 | $65,000 |
| 2020 | $0 | $65,000 | $0 | $65,000 | $65,000 |
| 2019 | $0 | $65,000 | $0 | $65,000 | $65,000 |
| 2018 | $0 | $65,000 | $0 | $65,000 | $65,000 |
| 2017 | $0 | $65,000 | $0 | $65,000 | $65,000 |
| 2016 | $0 | $65,000 | $0 | $65,000 | $65,000 |
| 2015 | $0 | $65,000 | $0 | $65,000 | $65,000 |
| 2014 | $0 | $65,000 | $0 | $65,000 | $65,000 |
| 2013 | $0 | $65,000 | $0 | $65,000 | $65,000 |
| 2012 | $0 | $65,000 | $0 | $65,000 | $65,000 |
| 2011 | $0 | $100,000 | $0 | $100,000 | $100,000 |
| 2010 | $0 | $100,000 | $0 | $100,000 | $100,000 |
| 2009 | $0 | $100,000 | $0 | $100,000 | $100,000 |
| 2008 | $0 | $125,000 | $0 | $125,000 | $125,000 |
| 2007 | $0 | $100,000 | $0 | $100,000 | $100,000 |
Deed and Sales History
| 1 | 03/28/2023 | WD | Warranty Deed | EAGLE DEVELOPMENT GROUP, LLC | SCHWISOW, LESLIE R | | | $899,000.00 | 56283 | 4558332 |
| 2 | 03/17/2022 | WD | Warranty Deed | BLOOM PROPERTY DEVELOPMENT LLC | EAGLE DEVELOPMENT GROUP, LLC | | | $200,000.00 | 52407 | 4542042 |
| 3 | 09/19/2007 | WD | Warranty Deed | PALMER, PATRICIA L | BLOOM PROPERTY DEVELOPMENT LLC | | | $137,500.00 | 73198 | 4212473 |
| 4 | 11/01/1993 | WD | Warranty Deed | MASTERS, BILLY G | PALMER, PATRICIA L | | | $0.00 | 34638 | 93024183 |
| 5 | 07/01/1978 | OTHER | Other - Misc. Documents | Unknown | MASTERS, BILLY G | | | $0.00 | 91669 | 350818 |
Payout Agreement
| No payout information available.. |