Property
Account |
| Property ID: | 279317 | Abbreviated Legal Description: | HHGY 7 LOT 9 BLK 6 |
| Geographic ID: | S7165-07-06009-0 | Agent Code: | |
| Type: | Real | | |
| Tax Area: | 770 - APPRAISER-S Whid Schl Dist, Special District, improved & less than 1 acre | Land Use Code | 11 |
| Open Space: | N | DFL | N |
| Historic Property: | N | Remodel Property: | N |
| Multi-Family Redevelopment: | N | | |
| Township: | | Section: | |
| Range: | |
Location |
| Address: | 1423 EVERETTE LN FREELAND, WA 98249 | Mapsco: | |
| Neighborhood: | Cycle 3 | Map ID: | 290 |
| Neighborhood CD: | 3 |
Owner |
| Name: | COOPER, GEORGE A | Owner ID: | 283932 |
| Mailing Address: | PO BOX 101 FREELAND, WA 98249 | % Ownership: | 100.0000000000% |
| | | Exemptions: | |
Taxes and Assessment Details
Values
| (+) Improvement Homesite Value: | + | $0 | |
| (+) Improvement Non-Homesite Value: | + | $415,562 | |
| (+) Land Homesite Value: | + | $0 | |
| (+) Land Non-Homesite Value: | + | $330,000 | |
| (+) Curr Use (HS): | + | $0 | $0 |
| (+) Curr Use (NHS): | + | $0 | $0 |
| | | -------------------------- | |
| (=) Market Value: | = | $745,562 | |
| (–) Productivity Loss: | – | $0 | |
| | | -------------------------- | |
| (=) Subtotal: | = | $745,562 | |
| (+) Senior Appraised Value: | + | $0 | |
| (+) Non-Senior Appraised Value: | + | $745,562 | |
| | | -------------------------- | |
| (=) Total Appraised Value: | = | $745,562 | |
| (–) Senior Exemption Loss: | – | $0 | |
| (–) Exemption Loss: | – | $0 | |
| | | -------------------------- | |
| (=) Taxable Value: | = | $745,562 | |
Taxing Jurisdiction
| Owner: | COOPER, GEORGE A | | |
| % Ownership: | 100.0000000000% | | |
| Total Value: | $745,562 | | |
| Tax Area: | 770 - APPRAISER-S Whid Schl Dist, Special District, improved & less than 1 acre |
| CF | Conservation Futures | 0.0313996660 | $745,562 | $745,562 | $23.41 | | |
| FIRE3 | Fire & Rescue Dist #3 S Whidbey GEN | 1.2130821753 | $745,562 | $745,562 | $904.43 | | |
| HOBOND | Hospital BOND | 0.1893405597 | $745,562 | $745,562 | $141.17 | | |
| HOGEN | Hospital GEN | 0.3848777722 | $745,562 | $745,562 | $286.95 | | |
| CE | County Current Expense | 0.3674210519 | $745,562 | $745,562 | $273.94 | | |
| CR | County Roads | 0.4614296361 | $745,562 | $745,562 | $344.02 | | |
| ISLANDEMS | Hospital GEN (EMS) | 0.4952018576 | $745,562 | $745,562 | $369.20 | | |
| LIB | Library Sno-Isle GEN | 0.3039084203 | $745,562 | $745,562 | $226.58 | | |
| PORTWHID | Port of S Whidbey GEN | 0.1086004714 | $745,562 | $745,562 | $80.97 | | |
| SCH206BOND | School 206 BOND | 0.5960237832 | $745,562 | $745,562 | $444.37 | | |
| SCH206CAP | School 206 CP | 0.3066144020 | $745,562 | $745,562 | $228.60 | | |
| SCH206MO | School 206 Enrichment | 0.4808755445 | $745,562 | $745,562 | $358.52 | | |
| ST | State School | 1.4761226122 | $745,562 | $745,562 | $1,100.54 | | |
| ST2 | State School Part 2 | 0.7953803475 | $745,562 | $745,562 | $593.01 | | |
| SWHIDPRBD | P & R S Whidbey BOND | 0.0144185398 | $745,562 | $745,562 | $10.75 | | |
| SWHIDPRBD3 | P & R S Whidbey BOND3 | 0.1483535547 | $745,562 | $745,562 | $110.61 | | |
| SWHIDPRMT | P & R S Whidbey GEN | 0.4600000000 | $745,562 | $745,562 | $342.96 | | |
| | Total Tax Rate: | 7.8330503944 | | | | | |
| | | | | Taxes w/Current Exemptions: | $5,840.03 | | |
| | | | | Taxes w/o Exemptions: | $5,840.03 | | |
Improvement / Building
| Improvement #1: | RESIDENTIAL | State Code: | Y | 1653.0 sqft | Value: | $415,562 |
| Bathrooms: | 2 | Bedrooms: | 3 | | Ceiling: | DRYWALL PAINTED | Cooling: | HEAT PUMP/CONV/V | | Exterior Wall/Cover: | CEMENT FIBER | Floor Covering: | VINYL 100% | | Floor Structure: | WOOD W/SUBFLOOR | Foundation: | CONCRETE | | Interior Finish: | DRYWALL PAINT | Plumbing Fixture Cnt: | 10 | | Roof Slope: | 4" IN 12" | Roof Structure/Cover: | CJ ASPHALT |
|
| | Type | Description | Class CD | Sub Class CD | Year Built | Area |
| | BAS | BASE/MAIN FLOOR | 4 | 0 | 2022 | 1653.0 |
| | AGR | ATTACHED GARAGE | 4 | 0 | 2022 | 484.0 |
| | OWP | OPEN WOOD PORCH W/STEPS | 4 | 0 | 2022 | 642.0 |
| | OP4 | OPEN PORCH W/CEILING-ROOF | 4 | 0 | 2022 | 48.0 |
Sketch
Property Image
Land
| 1 | 14 | SQ (08001-12000) | 0.2200 | 9583.20 | 0.00 | 0.00 | 1.00 | $330,000 | $0 |
Roll Value History
| 2026 | N/A | N/A | N/A | N/A | N/A |
| 2025 | $415,562 | $330,000 | $0 | $745,562 | $745,562 |
| 2024 | $419,926 | $300,000 | $0 | $719,926 | $719,926 |
| 2023 | $427,561 | $250,000 | $0 | $677,561 | $677,561 |
| 2022 | $199,948 | $100,000 | $0 | $299,948 | $299,948 |
| 2021 | $0 | $65,000 | $0 | $65,000 | $65,000 |
| 2020 | $0 | $65,000 | $0 | $65,000 | $65,000 |
| 2019 | $0 | $65,000 | $0 | $65,000 | $65,000 |
| 2018 | $0 | $65,000 | $0 | $65,000 | $65,000 |
| 2017 | $0 | $65,000 | $0 | $65,000 | $65,000 |
| 2016 | $0 | $65,000 | $0 | $65,000 | $65,000 |
| 2015 | $0 | $65,000 | $0 | $65,000 | $65,000 |
| 2014 | $0 | $65,000 | $0 | $65,000 | $65,000 |
| 2013 | $0 | $65,000 | $0 | $65,000 | $65,000 |
| 2012 | $0 | $65,000 | $0 | $65,000 | $65,000 |
| 2011 | $0 | $100,000 | $0 | $100,000 | $100,000 |
| 2010 | $0 | $100,000 | $0 | $100,000 | $100,000 |
| 2009 | $0 | $100,000 | $0 | $100,000 | $100,000 |
| 2008 | $0 | $125,000 | $0 | $125,000 | $125,000 |
| 2007 | $0 | $100,000 | $0 | $100,000 | $100,000 |
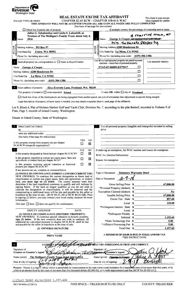
Deed and Sales History
| 1 | 02/13/2018 | QCD | Quit Claim Deed | COOPER, GEORGE A | COOPER, GEORGE A | | | $0.00 | 32984 | 4439391 |
| 2 | 02/09/2018 | WD | Warranty Deed | SAKALAUSKAS TRUSTEE, JULIUS G | COOPER, GEORGE A | | | $67,000.00 | 32983 | 4439390 |
| 3 | 07/12/2016 | WD | Warranty Deed | WILSON, ROBERTA M | SAKALAUSKAS TRUSTEE, JULIUS G | | | $47,000.00 | 25214 | 4403113 |
| 4 | 10/01/1989 | WD | Warranty Deed | MORAN, BYRON R | WILSON, ROBERTA M | | | $0.00 | 94293 | 89014054 |
| 5 | 10/01/1989 | OTHER | Other - Misc. Documents | MORAN, BYRON R | MORAN, BYRON R | | | $0.00 | 63353 | 89014052 |
| 6 | 03/01/1986 | QCD | Quit Claim Deed | WOSINSKI, MARLENE J | MORAN, BYRON R | | | $0.00 | 63243 | 86014601 |
| 7 | 05/01/1981 | CD | DNU - Correction Deed | WOSINSKI, J & | WOSINSKI, MARLENE J | | | $10.00 | 12519 | 386768 |
| 8 | 09/01/1978 | OTHER | Other - Misc. Documents | Unknown | WOSINSKI, J & | | | $9,500.00 | 84732 | 340318 |
Payout Agreement
| 482 | Locked | Annual Payments | | 10/29/2012 8:22:37 AM | Annually | 4 | $0 |