Property
Account |
| Property ID: | 279807 | Abbreviated Legal Description: | HHGY 8 LOT 4 & PT LOT 5 BLK 4: BG NWCR LOT 4 S33*E112.06' WLY ALG GOLFCREST AVE 34' NLY TPB |
| Geographic ID: | S7165-08-04004-0 | Agent Code: | |
| Type: | Real | | |
| Tax Area: | 770 - APPRAISER-S Whid Schl Dist, Special District, improved & less than 1 acre | Land Use Code | 11 |
| Open Space: | N | DFL | N |
| Historic Property: | N | Remodel Property: | N |
| Multi-Family Redevelopment: | N | | |
| Township: | | Section: | |
| Range: | |
Location |
| Address: | 4860 SPINNAKER DR FREELAND, WA 98249 | Mapsco: | |
| Neighborhood: | Cycle 3 | Map ID: | 289 |
| Neighborhood CD: | 3 |
Owner |
| Name: | SITTER TTEE, BARBARA GWEN | Owner ID: | 310459 |
| Mailing Address: | CHARLES G MOSLEY TTEE 3512 OVERLOOK DR LANGLEY, WA 98260 | % Ownership: | 100.0000000000% |
| | | Exemptions: | |
Taxes and Assessment Details
Values
| (+) Improvement Homesite Value: | + | $0 | |
| (+) Improvement Non-Homesite Value: | + | $354,631 | |
| (+) Land Homesite Value: | + | $0 | |
| (+) Land Non-Homesite Value: | + | $285,000 | |
| (+) Curr Use (HS): | + | $0 | $0 |
| (+) Curr Use (NHS): | + | $0 | $0 |
| | | -------------------------- | |
| (=) Market Value: | = | $639,631 | |
| (–) Productivity Loss: | – | $0 | |
| | | -------------------------- | |
| (=) Subtotal: | = | $639,631 | |
| (+) Senior Appraised Value: | + | $0 | |
| (+) Non-Senior Appraised Value: | + | $639,631 | |
| | | -------------------------- | |
| (=) Total Appraised Value: | = | $639,631 | |
| (–) Senior Exemption Loss: | – | $0 | |
| (–) Exemption Loss: | – | $0 | |
| | | -------------------------- | |
| (=) Taxable Value: | = | $639,631 | |
Taxing Jurisdiction
| Owner: | SITTER TTEE, BARBARA GWEN | | |
| % Ownership: | 100.0000000000% | | |
| Total Value: | $639,631 | | |
| Tax Area: | 770 - APPRAISER-S Whid Schl Dist, Special District, improved & less than 1 acre |
| CF | Conservation Futures | 0.0313996660 | $639,631 | $639,631 | $20.08 | | |
| FIRE3 | Fire & Rescue Dist #3 S Whidbey GEN | 1.2130821753 | $639,631 | $639,631 | $775.92 | | |
| HOBOND | Hospital BOND | 0.1893405597 | $639,631 | $639,631 | $121.11 | | |
| HOGEN | Hospital GEN | 0.3848777722 | $639,631 | $639,631 | $246.18 | | |
| CE | County Current Expense | 0.3674210519 | $639,631 | $639,631 | $235.01 | | |
| CR | County Roads | 0.4614296361 | $639,631 | $639,631 | $295.14 | | |
| ISLANDEMS | Hospital GEN (EMS) | 0.4952018576 | $639,631 | $639,631 | $316.75 | | |
| LIB | Library Sno-Isle GEN | 0.3039084203 | $639,631 | $639,631 | $194.39 | | |
| PORTWHID | Port of S Whidbey GEN | 0.1086004714 | $639,631 | $639,631 | $69.46 | | |
| SCH206BOND | School 206 BOND | 0.5960237832 | $639,631 | $639,631 | $381.24 | | |
| SCH206CAP | School 206 CP | 0.3066144020 | $639,631 | $639,631 | $196.12 | | |
| SCH206MO | School 206 Enrichment | 0.4808755445 | $639,631 | $639,631 | $307.58 | | |
| ST | State School | 1.4761226122 | $639,631 | $639,631 | $944.17 | | |
| ST2 | State School Part 2 | 0.7953803475 | $639,631 | $639,631 | $508.75 | | |
| SWHIDPRBD | P & R S Whidbey BOND | 0.0144185398 | $639,631 | $639,631 | $9.22 | | |
| SWHIDPRBD3 | P & R S Whidbey BOND3 | 0.1483535547 | $639,631 | $639,631 | $94.89 | | |
| SWHIDPRMT | P & R S Whidbey GEN | 0.4600000000 | $639,631 | $639,631 | $294.23 | | |
| | Total Tax Rate: | 7.8330503944 | | | | | |
| | | | | Taxes w/Current Exemptions: | $5,010.24 | | |
| | | | | Taxes w/o Exemptions: | $5,010.24 | | |
Improvement / Building
| Improvement #1: | RESIDENTIAL | State Code: | Y | 1893.2 sqft | Value: | $354,631 |
| Bathrooms: | 2 | Bedrooms: | 3 | | Ceiling: | DRYWALL PAINTED | Cooling: | HEAT PUMP/CONV/V | | Exterior Wall/Cover: | CEMENT FIBER | Floor Covering: | CARPET/VINYL 20-80 | | Floor Structure: | WOOD W/SUBFLOOR | Foundation: | CONCRETE | | Interior Finish: | DRYWALL PAINT | Plumbing Fixture Cnt: | 12 | | Roof Slope: | 4" IN 12" | Roof Structure/Cover: | CJ ASPHALT |
|
| | Type | Description | Class CD | Sub Class CD | Year Built | Area |
| | BAS | BASE/MAIN FLOOR | 4 | 0 | 1972 | 1893.2 |
| | OP1 | OPEN PORCH SLAB | 4 | 0 | 1972 | 638.0 |
Sketch
Property Image
Land
| 1 | 14 | SQ (08001-12000) | 0.2200 | 9583.20 | 0.00 | 0.00 | 1.00 | $285,000 | $0 |
Roll Value History
| 2026 | N/A | N/A | N/A | N/A | N/A |
| 2025 | $354,631 | $285,000 | $0 | $639,631 | $639,631 |
| 2024 | $358,891 | $260,000 | $0 | $618,891 | $618,891 |
| 2023 | $363,150 | $240,000 | $0 | $603,150 | $603,150 |
| 2022 | $332,695 | $200,000 | $0 | $532,695 | $532,695 |
| 2021 | $292,644 | $115,000 | $0 | $407,644 | $407,644 |
| 2020 | $284,718 | $100,000 | $0 | $384,718 | $384,718 |
| 2019 | $201,670 | $170,000 | $0 | $371,670 | $371,670 |
| 2018 | $197,686 | $140,000 | $0 | $337,686 | $337,686 |
| 2017 | $198,829 | $120,000 | $0 | $318,829 | $318,829 |
| 2016 | $201,114 | $75,000 | $0 | $276,114 | $276,114 |
| 2015 | $203,400 | $65,000 | $0 | $268,400 | $268,400 |
| 2014 | $185,274 | $55,000 | $0 | $240,274 | $240,274 |
| 2013 | $228,960 | $45,000 | $0 | $273,960 | $273,960 |
| 2012 | $231,345 | $45,900 | $0 | $277,245 | $277,245 |
| 2011 | $233,730 | $54,000 | $0 | $287,730 | $287,730 |
| 2010 | $244,544 | $65,000 | $0 | $309,544 | $309,544 |
| 2009 | $252,313 | $82,000 | $0 | $334,313 | $334,313 |
| 2008 | $255,396 | $85,000 | $0 | $340,396 | $340,396 |
| 2007 | $149,119 | $78,000 | $0 | $227,119 | $227,119 |
Deed and Sales History
| 1 | 10/05/2023 | QCD | Quit Claim Deed | SITTER, BARBARA GWEN | SITTER TTEE, BARBARA GWEN | | | $0.00 | 58309 | 4566012 |
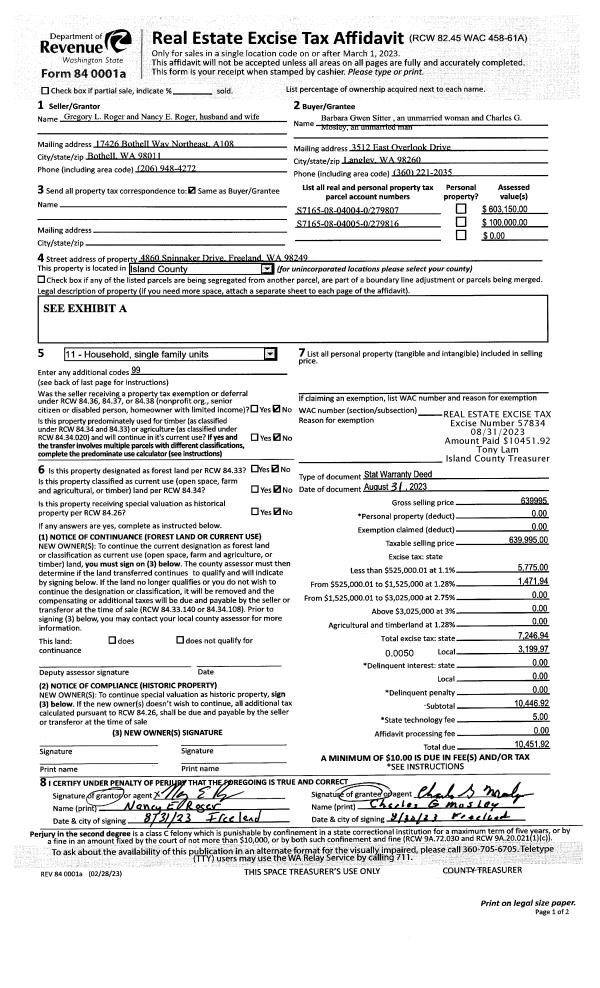
| 2 | 08/31/2023 | WD | Warranty Deed | ROGER, GREGORY L | SITTER, BARBARA GWEN | | | $639,995.00 | 57834 | 4564185 |
|   | |
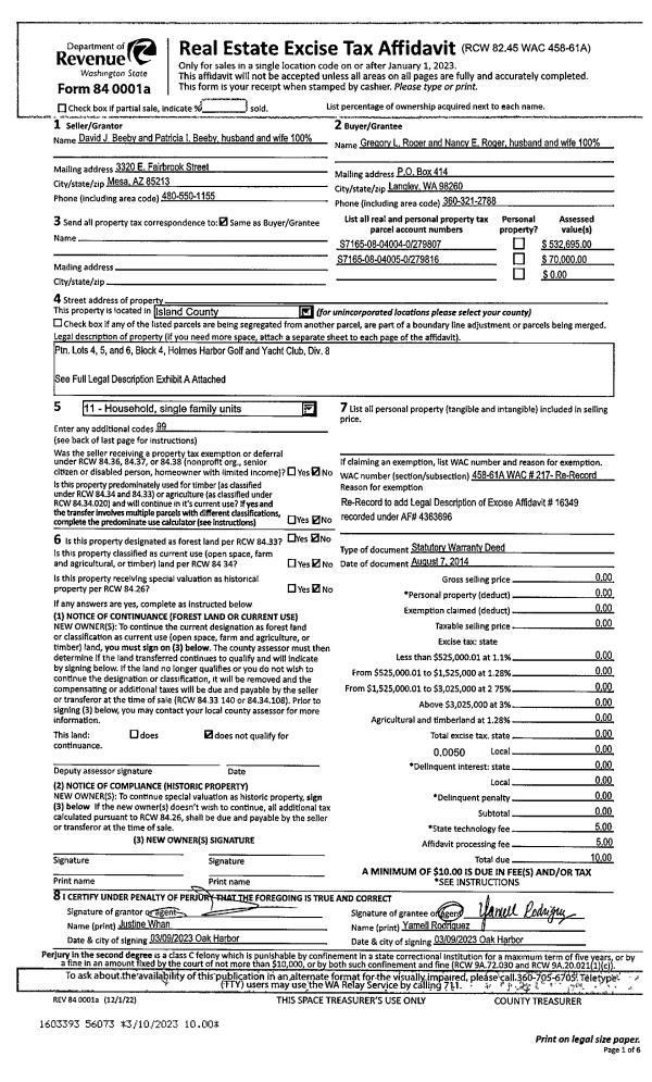
| 3 | 08/07/2014 | WD | Warranty Deed | BEEBY, DAVID J | ROGER, GREGORY L | | | $0.00 | 56073 | 4557586 |
| 4 | 08/07/2014 | WD | Warranty Deed | BEEBY, DAVID J | ROGER, GREGORY L | | | $300,000.00 | 16349 | 4363696 |
|   | |
| 5 | 02/24/1999 | WD | Warranty Deed | VAN, SKYHAWK, W | BEEBY, DAVID J | | | $134,000.00 | 90664 | 99004769 |
| 6 | 01/01/1996 | WD | Warranty Deed | VAN, SKYHAWK, W | VAN, SKYHAWK, W | | | $0.00 | 60124 | 96000464 |
| 7 | 05/01/1994 | WD | Warranty Deed | HUNT, DEBRA D | VAN, SKYHAWK, W | | | $125,000.00 | 42231 | 94012698 |
| 8 | 03/01/1991 | DECREE | Divorce Decree/Legal Separation | HUNT, HERB W | HUNT, DEBRA D | | | $0.00 | 10724 | 91003256 |
| 9 | 10/01/1984 | WD | Warranty Deed | JOHNSON, JOHN O | HUNT, HERB W | | | $61,000.00 | 43023 | 84004504 |
| 10 | 12/01/1981 | OTHER | Other - Misc. Documents | JOHNSON, JOHN O | JOHNSON, JOHN O | | | $0.00 | 59330 | 0 |
| 11 | 01/01/1900 | OTHER | Other - Misc. Documents | Unknown | JOHNSON, JOHN O | | | $0.00 | 0 | 0 |
Payout Agreement
| 389 | Active | Annual Payments | | 10/23/2012 9:50:17 AM | Annually | 2 | $0 |