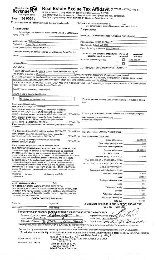
Property
Account |
| Property ID: | 279852 | Abbreviated Legal Description: | HHGY 8 LOT 9 BLK 4 EX SWLY 10' |
| Geographic ID: | S7165-08-04009-0 | Agent Code: | |
| Type: | Real | | |
| Tax Area: | 770 - APPRAISER-S Whid Schl Dist, Special District, improved & less than 1 acre | Land Use Code | 11 |
| Open Space: | N | DFL | N |
| Historic Property: | N | Remodel Property: | N |
| Multi-Family Redevelopment: | N | | |
| Township: | | Section: | |
| Range: | |
Location |
| Address: | 4878 SPINNAKER DR FREELAND, WA 98249 | Mapsco: | |
| Neighborhood: | Cycle 3 | Map ID: | 289 |
| Neighborhood CD: | 3 |
Owner |
| Name: | BEAVERS, KARL D | Owner ID: | 298585 |
| Mailing Address: | TRESA A SADLER 24224 6TH PL W BOTHELL, WA 98021 | % Ownership: | 100.0000000000% |
| | | Exemptions: | |
Taxes and Assessment Details
Values
| (+) Improvement Homesite Value: | + | $0 | |
| (+) Improvement Non-Homesite Value: | + | $17,925 | |
| (+) Land Homesite Value: | + | $0 | |
| (+) Land Non-Homesite Value: | + | $110,000 | |
| (+) Curr Use (HS): | + | $0 | $0 |
| (+) Curr Use (NHS): | + | $0 | $0 |
| | | -------------------------- | |
| (=) Market Value: | = | $127,925 | |
| (–) Productivity Loss: | – | $0 | |
| | | -------------------------- | |
| (=) Subtotal: | = | $127,925 | |
| (+) Senior Appraised Value: | + | $0 | |
| (+) Non-Senior Appraised Value: | + | $127,925 | |
| | | -------------------------- | |
| (=) Total Appraised Value: | = | $127,925 | |
| (–) Senior Exemption Loss: | – | $0 | |
| (–) Exemption Loss: | – | $0 | |
| | | -------------------------- | |
| (=) Taxable Value: | = | $127,925 | |
Taxing Jurisdiction
| Owner: | BEAVERS, KARL D | | |
| % Ownership: | 100.0000000000% | | |
| Total Value: | $127,925 | | |
| Tax Area: | 770 - APPRAISER-S Whid Schl Dist, Special District, improved & less than 1 acre |
| CF | Conservation Futures | 0.0313996660 | $127,925 | $127,925 | $4.02 | | |
| FIRE3 | Fire & Rescue Dist #3 S Whidbey GEN | 1.2130821753 | $127,925 | $127,925 | $155.18 | | |
| HOBOND | Hospital BOND | 0.1893405597 | $127,925 | $127,925 | $24.22 | | |
| HOGEN | Hospital GEN | 0.3848777722 | $127,925 | $127,925 | $49.24 | | |
| CE | County Current Expense | 0.3674210519 | $127,925 | $127,925 | $47.00 | | |
| CR | County Roads | 0.4614296361 | $127,925 | $127,925 | $59.03 | | |
| ISLANDEMS | Hospital GEN (EMS) | 0.4952018576 | $127,925 | $127,925 | $63.35 | | |
| LIB | Library Sno-Isle GEN | 0.3039084203 | $127,925 | $127,925 | $38.88 | | |
| PORTWHID | Port of S Whidbey GEN | 0.1086004714 | $127,925 | $127,925 | $13.89 | | |
| SCH206BOND | School 206 BOND | 0.5960237832 | $127,925 | $127,925 | $76.25 | | |
| SCH206CAP | School 206 CP | 0.3066144020 | $127,925 | $127,925 | $39.22 | | |
| SCH206MO | School 206 Enrichment | 0.4808755445 | $127,925 | $127,925 | $61.52 | | |
| ST | State School | 1.4761226122 | $127,925 | $127,925 | $188.83 | | |
| ST2 | State School Part 2 | 0.7953803475 | $127,925 | $127,925 | $101.75 | | |
| SWHIDPRBD | P & R S Whidbey BOND | 0.0144185398 | $127,925 | $127,925 | $1.84 | | |
| SWHIDPRBD3 | P & R S Whidbey BOND3 | 0.1483535547 | $127,925 | $127,925 | $18.98 | | |
| SWHIDPRMT | P & R S Whidbey GEN | 0.4600000000 | $127,925 | $127,925 | $58.85 | | |
| | Total Tax Rate: | 7.8330503944 | | | | | |
| | | | | Taxes w/Current Exemptions: | $1,002.05 | | |
| | | | | Taxes w/o Exemptions: | $1,002.05 | | |
Improvement / Building
| Improvement #1: | RESIDENTIAL | State Code: | Y | 4013.5 sqft | Value: | $17,925 |
| Bathrooms: | 2.5 | Bedrooms: | 3 | | Ceiling: | (NONE) | Exterior Wall/Cover: | (NONE) | | Floor Covering: | (NONE) | Floor Structure: | WOOD W/SUBFLOOR | | Foundation: | CONCRETE | Heating: | (NONE) | | Interior Finish: | (NONE) | Plumbing Fixture Cnt: | 12 | | Roof Slope: | 6" IN 12" | Roof Structure/Cover: | CJ ASPHALT |
|
| | Type | Description | Class CD | Sub Class CD | Year Built | Area |
| | BAS | BASE/MAIN FLOOR | 3 | 0 | 2023 | 2013.5 |
| | DWN | DOWNSTAIRS LIVING AREA | 3 | 0 | 2023 | 2000.0 |
| | AGR | ATTACHED GARAGE | 3 | 0 | 2023 | 728.0 |
| | OWR | OPEN WOOD PORCH W/STEPS/ROOF | 3 | 0 | 2023 | 45.6 |
| | OWR | OPEN WOOD PORCH W/STEPS/ROOF | 3 | 0 | 2023 | 268.0 |
Sketch
Property Image
Land
| 1 | 14 | SQ (08001-12000) | 0.1700 | 7405.20 | 0.00 | 0.00 | 1.00 | $110,000 | $0 |
Roll Value History
| 2026 | N/A | N/A | N/A | N/A | N/A |
| 2025 | $17,925 | $110,000 | $0 | $127,925 | $127,925 |
| 2024 | $18,251 | $120,000 | $0 | $138,251 | $138,251 |
| 2023 | $0 | $100,000 | $0 | $100,000 | $100,000 |
| 2022 | $0 | $70,000 | $0 | $70,000 | $70,000 |
| 2021 | $0 | $60,000 | $0 | $60,000 | $60,000 |
| 2020 | $0 | $50,000 | $0 | $50,000 | $50,000 |
| 2019 | $0 | $40,000 | $0 | $40,000 | $40,000 |
| 2018 | $0 | $35,000 | $0 | $35,000 | $35,000 |
| 2017 | $0 | $35,000 | $0 | $35,000 | $35,000 |
| 2016 | $0 | $35,000 | $0 | $35,000 | $35,000 |
| 2015 | $0 | $30,000 | $0 | $30,000 | $30,000 |
| 2014 | $0 | $30,000 | $0 | $30,000 | $30,000 |
| 2013 | $0 | $30,000 | $0 | $30,000 | $30,000 |
| 2012 | $0 | $45,900 | $0 | $45,900 | $45,900 |
| 2011 | $0 | $54,000 | $0 | $54,000 | $54,000 |
| 2010 | $0 | $65,000 | $0 | $65,000 | $65,000 |
| 2009 | $0 | $82,000 | $0 | $82,000 | $82,000 |
| 2008 | $0 | $85,000 | $0 | $85,000 | $85,000 |
| 2007 | $0 | $78,000 | $0 | $78,000 | $78,000 |
Deed and Sales History
| 1 | 02/16/2021 | WD | Warranty Deed | LAMONTAGNE TRUSTEE, DONALD L | BEAVERS, KARL D | | | $52,000.00 | 47434 | 4514279 |
| 2 | 05/14/2008 | BLA | DNU - Boundary Line Adjustment | LAMONTAGNE TTEE, DONALD L | LAMONTAGNE TTEE, L | | | $0.00 | 80742 | 4168495 |
| 3 | 03/03/2006 | WD | Warranty Deed | R&D PARK CREEK LLC, | LAMONTAGNE TTEE, DONALD L | | | $35,000.00 | 61029 | 4164421 |
| 4 | 04/20/2000 | QCD | Quit Claim Deed | R & D PARTNERSHIP, | R&D PARK CREEK LLC, | | | $0.00 | 1504 | 20007310 |
| 5 | 09/30/1999 | QCD | Quit Claim Deed | R, K P | R & D PARTNERSHIP, | | | $13,200.00 | 94149 | 99022707 |
| 6 | 07/01/1988 | WD | Warranty Deed | WEST, WINDS I | R, K P | | | $3,575.00 | 82664 | 88010055 |
| 7 | 06/01/1988 | WD | Warranty Deed | FISHER, RONALD G | WEST, WINDS I | | | $2,675.00 | 81951 | 88007178 |
| 8 | 01/01/1900 | OTHER | Other - Misc. Documents | Unknown | FISHER, RONALD G | | | $0.00 | 0 | 0 |
Payout Agreement
| 402 | Active | Annual Payments | | 10/24/2012 2:46:00 PM | Annually | 2 | $0 |