Property
Account |
| Property ID: | 281509 | Abbreviated Legal Description: | HONMN LK 1 LOT 23 |
| Geographic ID: | S7180-00-00023-0 | Agent Code: | |
| Type: | Real | | |
| Tax Area: | 319 - APPRAISER-Cpvl Schl Dist, outside Cpvl, vacant & 50 acres or less | Land Use Code | 99 |
| Open Space: | N | DFL | N |
| Historic Property: | N | Remodel Property: | N |
| Multi-Family Redevelopment: | N | | |
| Township: | | Section: | |
| Range: | |
Location |
| Address: | | Mapsco: | |
| Neighborhood: | Cycle 3 | Map ID: | 438 |
| Neighborhood CD: | 3 |
Owner |
| Name: | LEONARD, JENNIFER MCCOY | Owner ID: | 300691 |
| Mailing Address: | 4297 HONEYMOON BAY RD GREENBANK, WA 98253 | % Ownership: | 100.0000000000% |
| | | Exemptions: | |
Taxes and Assessment Details
Values
| (+) Improvement Homesite Value: | + | $0 | |
| (+) Improvement Non-Homesite Value: | + | $0 | |
| (+) Land Homesite Value: | + | $0 | |
| (+) Land Non-Homesite Value: | + | $100,000 | |
| (+) Curr Use (HS): | + | $0 | $0 |
| (+) Curr Use (NHS): | + | $0 | $0 |
| | | -------------------------- | |
| (=) Market Value: | = | $100,000 | |
| (–) Productivity Loss: | – | $0 | |
| | | -------------------------- | |
| (=) Subtotal: | = | $100,000 | |
| (+) Senior Appraised Value: | + | $0 | |
| (+) Non-Senior Appraised Value: | + | $100,000 | |
| | | -------------------------- | |
| (=) Total Appraised Value: | = | $100,000 | |
| (–) Senior Exemption Loss: | – | $0 | |
| (–) Exemption Loss: | – | $0 | |
| | | -------------------------- | |
| (=) Taxable Value: | = | $100,000 | |
Taxing Jurisdiction
| Owner: | LEONARD, JENNIFER MCCOY | | |
| % Ownership: | 100.0000000000% | | |
| Total Value: | $100,000 | | |
| Tax Area: | 319 - APPRAISER-Cpvl Schl Dist, outside Cpvl, vacant & 50 acres or less |
| CF | Conservation Futures | 0.0313996660 | $100,000 | $100,000 | $3.14 | | |
| CEM2 | Cemetery #2 | 0.0092609791 | $100,000 | $100,000 | $0.93 | | |
| HOBOND | Hospital BOND | 0.1893405597 | $100,000 | $100,000 | $18.93 | | |
| HOGEN | Hospital GEN | 0.3848777722 | $100,000 | $100,000 | $38.49 | | |
| CE | County Current Expense | 0.3674210519 | $100,000 | $100,000 | $36.74 | | |
| CR | County Roads | 0.4614296361 | $100,000 | $100,000 | $46.14 | | |
| ISLANDEMS | Hospital GEN (EMS) | 0.4952018576 | $100,000 | $100,000 | $49.52 | | |
| LIB | Library Sno-Isle GEN | 0.3039084203 | $100,000 | $100,000 | $30.39 | | |
| LIBCAP | Library Sno-Isle BOND (Cap Fac Imp Area) | 0.0528562629 | $100,000 | $100,000 | $5.29 | | |
| POCOUP | Port of Coupeville GEN | 0.1065226063 | $100,000 | $100,000 | $10.65 | | |
| POCOUPIDD | Port of Coupeville IDD | 0.3353038577 | $100,000 | $100,000 | $33.53 | | |
| COUPSDTECH | School 204 CP (TECH) | 0.1215123397 | $100,000 | $100,000 | $12.15 | | |
| SCH204MO | School 204 Enrichment | 0.6416662518 | $100,000 | $100,000 | $64.17 | | |
| ST | State School | 1.4761226122 | $100,000 | $100,000 | $147.61 | | |
| ST2 | State School Part 2 | 0.7953803475 | $100,000 | $100,000 | $79.54 | | |
| | Total Tax Rate: | 5.7722042210 | | | | | |
| | | | | Taxes w/Current Exemptions: | $577.22 | | |
| | | | | Taxes w/o Exemptions: | $577.22 | | |
Improvement / Building
Sketch
| No sketches available for this property. |
Property Image
Land
| 1 | 14 | SQ (08001-12000) | 0.2200 | 9583.20 | 0.00 | 0.00 | 1.00 | $100,000 | $0 |
Roll Value History
| 2026 | N/A | N/A | N/A | N/A | N/A |
| 2025 | $0 | $100,000 | $0 | $100,000 | $100,000 |
| 2024 | $0 | $70,000 | $0 | $70,000 | $70,000 |
| 2023 | $0 | $70,000 | $0 | $70,000 | $70,000 |
| 2022 | $0 | $70,000 | $0 | $70,000 | $70,000 |
| 2021 | $0 | $60,000 | $0 | $60,000 | $60,000 |
| 2020 | $0 | $60,000 | $0 | $60,000 | $60,000 |
| 2019 | $0 | $60,000 | $0 | $60,000 | $60,000 |
| 2018 | $0 | $60,000 | $0 | $60,000 | $60,000 |
| 2017 | $0 | $60,000 | $0 | $60,000 | $60,000 |
| 2016 | $0 | $60,000 | $0 | $60,000 | $60,000 |
| 2015 | $0 | $60,000 | $0 | $60,000 | $60,000 |
| 2014 | $0 | $60,000 | $0 | $60,000 | $60,000 |
| 2013 | $0 | $25,000 | $0 | $25,000 | $25,000 |
| 2012 | $0 | $25,000 | $0 | $25,000 | $25,000 |
| 2011 | $0 | $25,000 | $0 | $25,000 | $25,000 |
| 2010 | $0 | $25,000 | $0 | $25,000 | $25,000 |
| 2009 | $0 | $37,500 | $0 | $37,500 | $37,500 |
| 2008 | $0 | $37,500 | $0 | $37,500 | $37,500 |
| 2007 | $0 | $35,000 | $0 | $35,000 | $35,000 |
Deed and Sales History
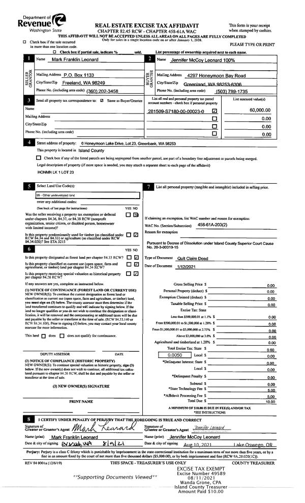
| 1 | 01/12/2021 | QCD | Quit Claim Deed | LEONARD, MARK F | LEONARD, JENNIFER MCCOY | | | $0.00 | 49589 | 4526953 |
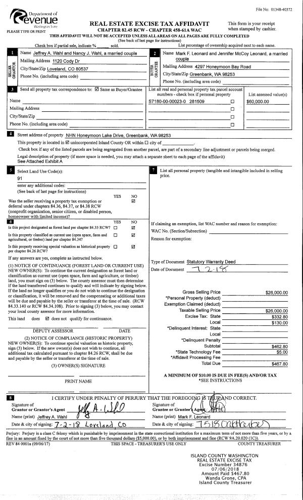
| 2 | 07/02/2018 | WD | Warranty Deed | WAHL, JEFFREY A | LEONARD, MARK F | | | $26,000.00 | 34876 | 4447504 |
| 3 | 09/10/2014 | WD | Warranty Deed | ANASTASI, DAVID P | WAHL, JEFFREY A | | | $20,000.00 | 16792 | 4365527 |
| 4 | 10/03/2006 | WD | Warranty Deed | WILSON, RICHARD B | ANASTASI, DAVID P | | | $35,000.00 | 64382 | 4183917 |
| 5 | 07/07/2005 | QCD | Quit Claim Deed | WILSON, JEFFREY L | WILSON, RICHARD B | | | $0.00 | 55190 | 4150711 |
| 6 | 12/01/1991 | WD | Warranty Deed | WILSON, RICHARD B | WILSON, JEFFREY L | | | $0.00 | 14459 | 91019449 |
| 7 | 07/01/1991 | WD | Warranty Deed | TORRANCE, ROSCOE C | WILSON, RICHARD B | | | $6,000.00 | 12456 | 91010483 |
| 8 | 01/01/1983 | QCD | Quit Claim Deed | WOOD, & R | TORRANCE, ROSCOE C | | | $0.00 | 30414 | 406101 |
| 9 | 07/01/1978 | OTHER | Other - Misc. Documents | Unknown | WOOD, & R | | | $0.00 | 84446 | 3395290 |
Payout Agreement
| No payout information available.. |