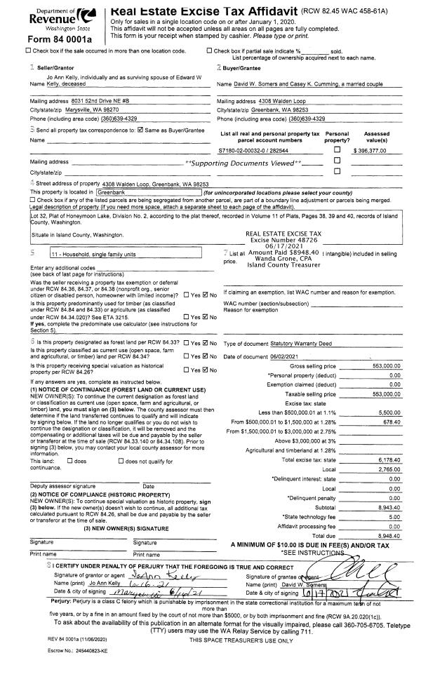
Property
Account |
| Property ID: | 282544 | Abbreviated Legal Description: | HONMN LK 2 LOT 32 |
| Geographic ID: | S7180-02-00032-0 | Agent Code: | |
| Type: | Real | | |
| Tax Area: | 310 - APPRAISER-Cpvl Schl Dist, outside Cpvl, improved & 1 acre or less | Land Use Code | 11 |
| Open Space: | N | DFL | N |
| Historic Property: | N | Remodel Property: | N |
| Multi-Family Redevelopment: | N | | |
| Township: | | Section: | |
| Range: | |
Location |
| Address: | 4308 WALDEN LOOP GREENBANK, WA 98253 | Mapsco: | |
| Neighborhood: | Cycle 3 | Map ID: | 422 |
| Neighborhood CD: | 3 |
Owner |
| Name: | SOMERS, DAVID W | Owner ID: | 300455 |
| Mailing Address: | CASEY K. CUMMING 4308 WALDEN LOOP GREENBANK, WA 98253 | % Ownership: | 100.0000000000% |
| | | Exemptions: | |
Taxes and Assessment Details
Values
| (+) Improvement Homesite Value: | + | $0 | |
| (+) Improvement Non-Homesite Value: | + | $318,424 | |
| (+) Land Homesite Value: | + | $0 | |
| (+) Land Non-Homesite Value: | + | $260,000 | |
| (+) Curr Use (HS): | + | $0 | $0 |
| (+) Curr Use (NHS): | + | $0 | $0 |
| | | -------------------------- | |
| (=) Market Value: | = | $578,424 | |
| (–) Productivity Loss: | – | $0 | |
| | | -------------------------- | |
| (=) Subtotal: | = | $578,424 | |
| (+) Senior Appraised Value: | + | $0 | |
| (+) Non-Senior Appraised Value: | + | $578,424 | |
| | | -------------------------- | |
| (=) Total Appraised Value: | = | $578,424 | |
| (–) Senior Exemption Loss: | – | $0 | |
| (–) Exemption Loss: | – | $0 | |
| | | -------------------------- | |
| (=) Taxable Value: | = | $578,424 | |
Taxing Jurisdiction
| Owner: | SOMERS, DAVID W | | |
| % Ownership: | 100.0000000000% | | |
| Total Value: | $578,424 | | |
| Tax Area: | 310 - APPRAISER-Cpvl Schl Dist, outside Cpvl, improved & 1 acre or less |
| CF | Conservation Futures | 0.0313996660 | $578,424 | $578,424 | $18.16 | | |
| CEM2 | Cemetery #2 | 0.0092609791 | $578,424 | $578,424 | $5.36 | | |
| FIRE5 | Fire & Rescue Dist #5 C Whidbey GEN | 1.1892169230 | $578,424 | $578,424 | $687.87 | | |
| FIRE5BOND | Fire & Rescue Dist #5 C Whidbey BOND | 0.1394359503 | $578,424 | $578,424 | $80.65 | | |
| HOBOND | Hospital BOND | 0.1893405597 | $578,424 | $578,424 | $109.52 | | |
| HOGEN | Hospital GEN | 0.3848777722 | $578,424 | $578,424 | $222.62 | | |
| CE | County Current Expense | 0.3674210519 | $578,424 | $578,424 | $212.53 | | |
| CR | County Roads | 0.4614296361 | $578,424 | $578,424 | $266.90 | | |
| ISLANDEMS | Hospital GEN (EMS) | 0.4952018576 | $578,424 | $578,424 | $286.44 | | |
| LIB | Library Sno-Isle GEN | 0.3039084203 | $578,424 | $578,424 | $175.79 | | |
| LIBCAP | Library Sno-Isle BOND (Cap Fac Imp Area) | 0.0528562629 | $578,424 | $578,424 | $30.57 | | |
| POCOUP | Port of Coupeville GEN | 0.1065226063 | $578,424 | $578,424 | $61.62 | | |
| POCOUPIDD | Port of Coupeville IDD | 0.3353038577 | $578,424 | $578,424 | $193.95 | | |
| COUPSDTECH | School 204 CP (TECH) | 0.1215123397 | $578,424 | $578,424 | $70.29 | | |
| SCH204MO | School 204 Enrichment | 0.6416662518 | $578,424 | $578,424 | $371.16 | | |
| ST | State School | 1.4761226122 | $578,424 | $578,424 | $853.82 | | |
| ST2 | State School Part 2 | 0.7953803475 | $578,424 | $578,424 | $460.07 | | |
| | Total Tax Rate: | 7.1008570943 | | | | | |
| | | | | Taxes w/Current Exemptions: | $4,107.32 | | |
| | | | | Taxes w/o Exemptions: | $4,107.32 | | |
Improvement / Building
| Improvement #1: | RESIDENTIAL | State Code: | Y | 1568.0 sqft | Value: | $318,424 |
| Bathrooms: | 2 | Bedrooms: | 3 | | Ceiling: | DRYWALL PAINTED | Exterior Wall/Cover: | SHINGLE | | Floor Covering: | CARPET/VINYL 80-20 | Floor Structure: | WOOD W/SUBFLOOR | | Foundation: | CONCRETE | Heating: | FHA GAS | | Interior Finish: | DRYWALL PAINT | Plumbing Fixture Cnt: | 11 | | Roof Slope: | 8" IN 12" | Roof Structure/Cover: | CJ ASPHALT |
|
| | Type | Description | Class CD | Sub Class CD | Year Built | Area |
| | BAS | BASE/MAIN FLOOR | 3 | 0 | 1995 | 992.0 |
| | AGR | ATTACHED GARAGE | 3 | 0 | 1995 | 552.0 |
| | UPS | UPPER STORY | 3 | 0 | 1995 | 576.0 |
| | OWP | OPEN WOOD PORCH W/STEPS | 3 | 0 | 1995 | 96.0 |
| | OWP | OPEN WOOD PORCH W/STEPS | 3 | 0 | 1995 | 367.0 |
| | OWC | OPEN WOOD PORCH W/STEPS/ROOF/C | 3 | 0 | 1995 | 40.0 |
| | ENP | ENCLOSED PORCH | 3 | 0 | 1995 | 192.0 |
Sketch
Property Image
Land
| 1 | 15 | SQ (12001-21780) | 0.4500 | 19602.00 | 0.00 | 0.00 | 1.00 | $260,000 | $0 |
Roll Value History
| 2026 | N/A | N/A | N/A | N/A | N/A |
| 2025 | $318,424 | $260,000 | $0 | $578,424 | $578,424 |
| 2024 | $322,443 | $230,000 | $0 | $552,443 | $552,443 |
| 2023 | $326,462 | $220,000 | $0 | $546,462 | $546,462 |
| 2022 | $299,256 | $220,000 | $0 | $519,256 | $519,256 |
| 2021 | $263,383 | $150,000 | $0 | $413,383 | $413,383 |
| 2020 | $256,377 | $140,000 | $0 | $396,377 | $288,965 |
| 2019 | $178,965 | $180,000 | $0 | $358,965 | $288,965 |
| 2018 | $179,508 | $140,000 | $0 | $319,508 | $319,508 |
| 2017 | $180,599 | $100,000 | $0 | $280,599 | $280,599 |
| 2016 | $182,775 | $90,000 | $0 | $272,775 | $272,775 |
| 2015 | $184,954 | $90,000 | $0 | $274,954 | $274,954 |
| 2014 | $187,133 | $75,000 | $0 | $262,133 | $262,133 |
| 2013 | $182,452 | $60,000 | $0 | $242,452 | $242,452 |
| 2012 | $184,573 | $60,000 | $0 | $244,573 | $244,573 |
| 2011 | $186,697 | $65,000 | $0 | $251,697 | $251,697 |
| 2010 | $191,029 | $65,000 | $0 | $256,029 | $256,029 |
| 2009 | $199,193 | $82,000 | $0 | $281,193 | $281,193 |
| 2008 | $201,668 | $85,000 | $0 | $286,668 | $286,668 |
| 2007 | $181,095 | $65,000 | $0 | $246,095 | $246,095 |
Deed and Sales History
| 1 | 06/02/2021 | WD | Warranty Deed | KELLY, EDWARD W / JO ANN K | SOMERS, DAVID W | | | $553,000.00 | 48726 | 4522097 |
| 2 | 05/01/1993 | WD | Warranty Deed | VINYARD, KAY | KELLY, EDWARD W | | | $22,000.00 | 31768 | 93009263 |
| 3 | 05/01/1992 | OTHER | Other - Misc. Documents | VINYARD, RONALD E | VINYARD, KAY | | | $0.00 | 64855 | 0 |
| 4 | 01/01/1900 | OTHER | Other - Misc. Documents | Unknown | VINYARD, RONALD E | | | $0.00 | 0 | 0 |
Payout Agreement
| No payout information available.. |