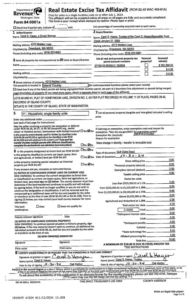
Property
Account |
| Property ID: | 282624 | Abbreviated Legal Description: | HONEYMOON LAKE 2 LOTS 40 & 41 |
| Geographic ID: | S7180-02-00040-0 | Agent Code: | |
| Type: | Real | | |
| Tax Area: | 310 - APPRAISER-Cpvl Schl Dist, outside Cpvl, improved & 1 acre or less | Land Use Code | 11 |
| Open Space: | N | DFL | N |
| Historic Property: | N | Remodel Property: | N |
| Multi-Family Redevelopment: | N | | |
| Township: | | Section: | |
| Range: | |
Location |
| Address: | 4313 WALDEN LOOP GREENBANK, WA 98253 | Mapsco: | |
| Neighborhood: | Cycle 3 | Map ID: | 422 |
| Neighborhood CD: | 3 |
Owner |
| Name: | HAYES TTEE, CAROL S | Owner ID: | 314548 |
| Mailing Address: | 4313 WALDEN LOOP GREENBANK, WA 98253 | % Ownership: | 100.0000000000% |
| | | Exemptions: | |
Taxes and Assessment Details
Values
| (+) Improvement Homesite Value: | + | $0 | |
| (+) Improvement Non-Homesite Value: | + | $293,289 | |
| (+) Land Homesite Value: | + | $0 | |
| (+) Land Non-Homesite Value: | + | $260,000 | |
| (+) Curr Use (HS): | + | $0 | $0 |
| (+) Curr Use (NHS): | + | $0 | $0 |
| | | -------------------------- | |
| (=) Market Value: | = | $553,289 | |
| (–) Productivity Loss: | – | $0 | |
| | | -------------------------- | |
| (=) Subtotal: | = | $553,289 | |
| (+) Senior Appraised Value: | + | $0 | |
| (+) Non-Senior Appraised Value: | + | $553,289 | |
| | | -------------------------- | |
| (=) Total Appraised Value: | = | $553,289 | |
| (–) Senior Exemption Loss: | – | $0 | |
| (–) Exemption Loss: | – | $0 | |
| | | -------------------------- | |
| (=) Taxable Value: | = | $553,289 | |
Taxing Jurisdiction
| Owner: | HAYES TTEE, CAROL S | | |
| % Ownership: | 100.0000000000% | | |
| Total Value: | $553,289 | | |
| Tax Area: | 310 - APPRAISER-Cpvl Schl Dist, outside Cpvl, improved & 1 acre or less |
| CF | Conservation Futures | 0.0313996660 | $553,289 | $553,289 | $17.37 | | |
| CEM2 | Cemetery #2 | 0.0092609791 | $553,289 | $553,289 | $5.12 | | |
| FIRE5 | Fire & Rescue Dist #5 C Whidbey GEN | 1.1892169230 | $553,289 | $553,289 | $657.98 | | |
| FIRE5BOND | Fire & Rescue Dist #5 C Whidbey BOND | 0.1394359503 | $553,289 | $553,289 | $77.15 | | |
| HOBOND | Hospital BOND | 0.1893405597 | $553,289 | $553,289 | $104.76 | | |
| HOGEN | Hospital GEN | 0.3848777722 | $553,289 | $553,289 | $212.95 | | |
| CE | County Current Expense | 0.3674210519 | $553,289 | $553,289 | $203.29 | | |
| CR | County Roads | 0.4614296361 | $553,289 | $553,289 | $255.30 | | |
| ISLANDEMS | Hospital GEN (EMS) | 0.4952018576 | $553,289 | $553,289 | $273.99 | | |
| LIB | Library Sno-Isle GEN | 0.3039084203 | $553,289 | $553,289 | $168.15 | | |
| LIBCAP | Library Sno-Isle BOND (Cap Fac Imp Area) | 0.0528562629 | $553,289 | $553,289 | $29.24 | | |
| POCOUP | Port of Coupeville GEN | 0.1065226063 | $553,289 | $553,289 | $58.94 | | |
| POCOUPIDD | Port of Coupeville IDD | 0.3353038577 | $553,289 | $553,289 | $185.52 | | |
| COUPSDTECH | School 204 CP (TECH) | 0.1215123397 | $553,289 | $553,289 | $67.23 | | |
| SCH204MO | School 204 Enrichment | 0.6416662518 | $553,289 | $553,289 | $355.03 | | |
| ST | State School | 1.4761226122 | $553,289 | $553,289 | $816.72 | | |
| ST2 | State School Part 2 | 0.7953803475 | $553,289 | $553,289 | $440.08 | | |
| | Total Tax Rate: | 7.1008570943 | | | | | |
| | | | | Taxes w/Current Exemptions: | $3,928.82 | | |
| | | | | Taxes w/o Exemptions: | $3,928.82 | | |
Improvement / Building
| Improvement #1: | RESIDENTIAL | State Code: | Y | 1491.0 sqft | Value: | $293,289 |
| Bathrooms: | 2 | Bedrooms: | 3 | | Ceiling: | DRYWALL PAINTED | Cooling: | HEAT PUMP/CONV/V | | Exterior Wall/Cover: | CEMENT FIBER | Floor Covering: | VINYL 100% | | Floor Structure: | WOOD W/SUBFLOOR | Foundation: | CONCRETE | | Interior Finish: | DRYWALL PAINT | Plumbing Fixture Cnt: | 1 | | Roof Slope: | 5" IN 12" | Roof Structure/Cover: | CJ ASPHALT |
|
| | Type | Description | Class CD | Sub Class CD | Year Built | Area |
| | BAS | BASE/MAIN FLOOR | 3 | 0 | 2022 | 1491.0 |
| | AGR | ATTACHED GARAGE | 3 | 0 | 2022 | 748.0 |
| | OWR | OPEN WOOD PORCH W/STEPS/ROOF | 3 | 0 | 2022 | 60.0 |
| | OWR | OPEN WOOD PORCH W/STEPS/ROOF | 3 | 0 | 2022 | 192.0 |
Sketch
Property Image
Land
| 1 | 16 | AC (00.51-01.00) | 0.5700 | 24829.20 | 0.00 | 0.00 | 1.00 | $260,000 | $0 |
Roll Value History
| 2026 | N/A | N/A | N/A | N/A | N/A |
| 2025 | $293,289 | $260,000 | $0 | $553,289 | $553,289 |
| 2024 | $296,368 | $230,000 | $0 | $526,368 | $526,368 |
| 2023 | $301,757 | $220,000 | $0 | $521,757 | $521,757 |
| 2022 | $0 | $70,000 | $0 | $70,000 | $70,000 |
| 2021 | $0 | $60,000 | $0 | $60,000 | $60,000 |
| 2020 | $0 | $40,000 | $0 | $40,000 | $40,000 |
| 2019 | $0 | $40,000 | $0 | $40,000 | $40,000 |
| 2018 | $0 | $30,000 | $0 | $30,000 | $30,000 |
| 2017 | $0 | $30,000 | $0 | $30,000 | $30,000 |
| 2016 | $0 | $60,000 | $0 | $60,000 | $60,000 |
| 2015 | $0 | $60,000 | $0 | $60,000 | $60,000 |
| 2014 | $0 | $60,000 | $0 | $60,000 | $60,000 |
| 2013 | $0 | $60,000 | $0 | $60,000 | $60,000 |
| 2012 | $0 | $60,000 | $0 | $60,000 | $60,000 |
| 2011 | $0 | $65,000 | $0 | $65,000 | $65,000 |
| 2010 | $0 | $65,000 | $0 | $65,000 | $65,000 |
| 2009 | $0 | $65,000 | $0 | $65,000 | $65,000 |
| 2008 | $0 | $65,000 | $0 | $65,000 | $65,000 |
| 2007 | $0 | $60,500 | $0 | $60,500 | $60,500 |
Deed and Sales History
| 1 | 10/30/2024 | QCD | Quit Claim Deed | HAYES, CAROL S | HAYES TTEE, CAROL S | | | $0.00 | 61824 | 4579346 |
| 2 | 08/09/2021 | WD | Warranty Deed | POPE, RACHEL | HAYES, CAROL S | | | $127,000.00 | 49602 | 4526690 |
| 3 | 10/16/2008 | OTHER | Other - Misc. Documents | POPE, GIRDWOOD C | POPE, RACHEL | | | $0.00 | 80962 | 0 |
| 4 | 10/01/1990 | OTHER | Other - Misc. Documents | POPE, GIRDWOOD C | POPE, GIRDWOOD C | | | $0.00 | 63909 | 90018009 |
| 5 | 09/01/1990 | WD | Warranty Deed | BRAMAN, ROBERT A | POPE, GIRDWOOD C | | | $11,750.00 | 5472 | 90018238 |
| 6 | 08/01/1986 | WD | Warranty Deed | NW, PROGRESSIVE B | BRAMAN, ROBERT A | | | $0.00 | 62087 | 86009781 |
| 7 | 07/01/1979 | TRUSTEED | Trustee's Deed | HONEYMOON, LAKE I | NW, PROGRESSIVE B | | | $39,600.00 | 93368 | 355426 |
| 8 | 01/01/1900 | OTHER | Other - Misc. Documents | Unknown | HONEYMOON, LAKE I | | | $0.00 | 0 | 0 |
Payout Agreement
| No payout information available.. |