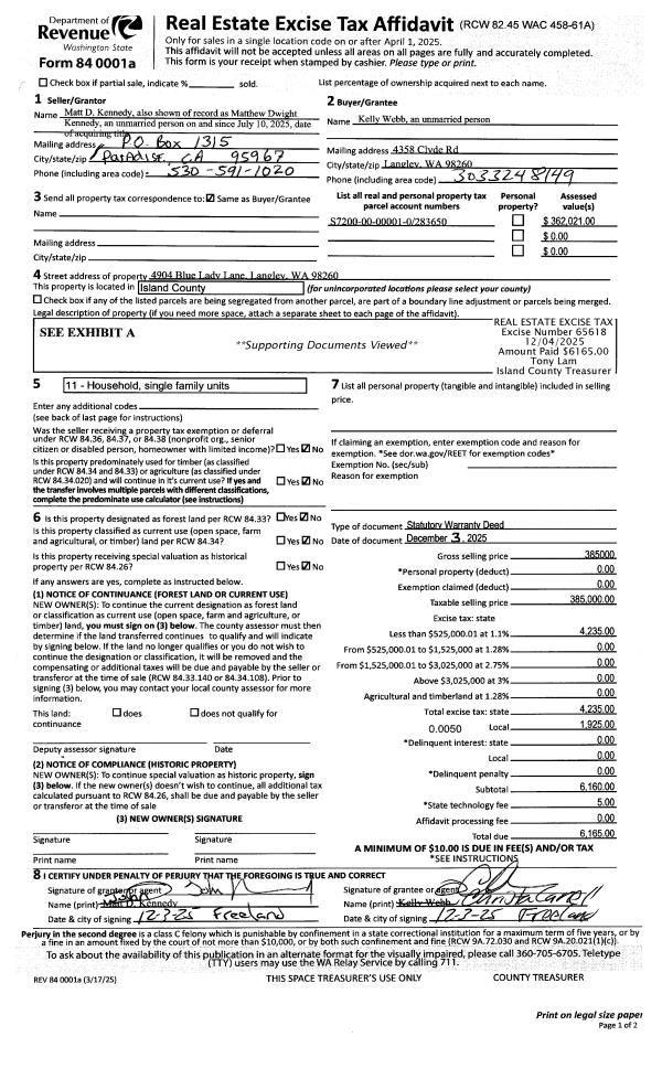
Property
Account |
| Property ID: | 283650 | Abbreviated Legal Description: | HORSE HAVEN 1 LOT 1 TGW EZ |
| Geographic ID: | S7200-00-00001-0 | Agent Code: | |
| Type: | Real | | |
| Tax Area: | 710 - APPRAISER-S Whid Schl Dist, outside Langley, improved & 1 acre or less | Land Use Code | 11 |
| Open Space: | N | DFL | N |
| Historic Property: | N | Remodel Property: | N |
| Multi-Family Redevelopment: | N | | |
| Township: | | Section: | |
| Range: | |
Location |
| Address: | 4904 BLUE LADY LN LANGLEY, WA 98260 | Mapsco: | |
| Neighborhood: | Cycle 4 | Map ID: | 722 |
| Neighborhood CD: | 4 |
Owner |
| Name: | KENNEDY, MATT D | Owner ID: | 317331 |
| Mailing Address: | 4904 BLUE LADY LN LANGLEY, WA 98260 | % Ownership: | 100.0000000000% |
| | | Exemptions: | |
Taxes and Assessment Details
Values
| (+) Improvement Homesite Value: | + | $0 | |
| (+) Improvement Non-Homesite Value: | + | $132,021 | |
| (+) Land Homesite Value: | + | $0 | |
| (+) Land Non-Homesite Value: | + | $230,000 | |
| (+) Curr Use (HS): | + | $0 | $0 |
| (+) Curr Use (NHS): | + | $0 | $0 |
| | | -------------------------- | |
| (=) Market Value: | = | $362,021 | |
| (–) Productivity Loss: | – | $0 | |
| | | -------------------------- | |
| (=) Subtotal: | = | $362,021 | |
| (+) Senior Appraised Value: | + | $0 | |
| (+) Non-Senior Appraised Value: | + | $362,021 | |
| | | -------------------------- | |
| (=) Total Appraised Value: | = | $362,021 | |
| (–) Senior Exemption Loss: | – | $0 | |
| (–) Exemption Loss: | – | $0 | |
| | | -------------------------- | |
| (=) Taxable Value: | = | $362,021 | |
Taxing Jurisdiction
| Owner: | KENNEDY, MATT D | | |
| % Ownership: | 100.0000000000% | | |
| Total Value: | $362,021 | | |
| Tax Area: | 710 - APPRAISER-S Whid Schl Dist, outside Langley, improved & 1 acre or less |
| CF | Conservation Futures | 0.0313996660 | $362,021 | $362,021 | $11.37 | | |
| FIRE3 | Fire & Rescue Dist #3 S Whidbey GEN | 1.2130821753 | $362,021 | $362,021 | $439.16 | | |
| HOBOND | Hospital BOND | 0.1893405597 | $362,021 | $362,021 | $68.55 | | |
| HOGEN | Hospital GEN | 0.3848777722 | $362,021 | $362,021 | $139.33 | | |
| CE | County Current Expense | 0.3674210519 | $362,021 | $362,021 | $133.01 | | |
| CR | County Roads | 0.4614296361 | $362,021 | $362,021 | $167.05 | | |
| ISLANDEMS | Hospital GEN (EMS) | 0.4952018576 | $362,021 | $362,021 | $179.27 | | |
| LIB | Library Sno-Isle GEN | 0.3039084203 | $362,021 | $362,021 | $110.02 | | |
| PORTWHID | Port of S Whidbey GEN | 0.1086004714 | $362,021 | $362,021 | $39.32 | | |
| SCH206BOND | School 206 BOND | 0.5960237832 | $362,021 | $362,021 | $215.77 | | |
| SCH206CAP | School 206 CP | 0.3066144020 | $362,021 | $362,021 | $111.00 | | |
| SCH206MO | School 206 Enrichment | 0.4808755445 | $362,021 | $362,021 | $174.09 | | |
| ST | State School | 1.4761226122 | $362,021 | $362,021 | $534.39 | | |
| ST2 | State School Part 2 | 0.7953803475 | $362,021 | $362,021 | $287.94 | | |
| SWHIDPRBD | P & R S Whidbey BOND | 0.0144185398 | $362,021 | $362,021 | $5.22 | | |
| SWHIDPRBD3 | P & R S Whidbey BOND3 | 0.1483535547 | $362,021 | $362,021 | $53.71 | | |
| SWHIDPRMT | P & R S Whidbey GEN | 0.4600000000 | $362,021 | $362,021 | $166.53 | | |
| | Total Tax Rate: | 7.8330503944 | | | | | |
| | | | | Taxes w/Current Exemptions: | $2,835.73 | | |
| | | | | Taxes w/o Exemptions: | $2,835.73 | | |
Improvement / Building
| Improvement #1: | RESIDENTIAL | State Code: | Y | 1109.0 sqft | Value: | $132,021 |
| Bathrooms: | 1 | Bedrooms: | 1 | | Ceiling: | DRYWALL PAINTED | Exterior Wall/Cover: | WOOD SIDING | | Floor Covering: | CARPET/VINYL 60-40 | Floor Structure: | WOOD W/SUBFLOOR | | Foundation: | CONCRETE | Heating: | BASEBOARD ELECTRIC | | Interior Finish: | DRYWALL PAINT | Plumbing Fixture Cnt: | 6 | | Roof Slope: | 5" IN 12" | Roof Structure/Cover: | CJ ALUMINIUM HEAVY |
|
| | Type | Description | Class CD | Sub Class CD | Year Built | Area |
| | BAS | BASE/MAIN FLOOR | 3 | 0 | 1940 | 1109.0 |
| | OP3 | OPEN PORCH W/ROOF | 3 | 0 | 1940 | 147.0 |
| | UTY | STORAGE/UTILITY | 3 | 0 | 1940 | 77.0 |
| | OWP | OPEN WOOD PORCH W/STEPS | 3 | 0 | 1940 | 36.0 |
Sketch
Property Image
Land
| 1 | 15 | SQ (12001-21780) | 0.0000 | 0.00 | 0.00 | 0.00 | 1.00 | $230,000 | $0 |
Roll Value History
| 2026 | N/A | N/A | N/A | N/A | N/A |
| 2025 | $132,021 | $230,000 | $0 | $362,021 | $362,021 |
| 2024 | $137,163 | $220,000 | $0 | $357,163 | $357,163 |
| 2023 | $139,600 | $220,000 | $0 | $359,600 | $359,600 |
| 2022 | $128,616 | $200,000 | $0 | $328,616 | $328,616 |
| 2021 | $113,763 | $140,000 | $0 | $253,763 | $253,763 |
| 2020 | $111,490 | $130,000 | $0 | $241,490 | $241,490 |
| 2019 | $80,175 | $150,000 | $0 | $230,175 | $230,175 |
| 2018 | $80,503 | $130,000 | $0 | $210,503 | $210,503 |
| 2017 | $81,157 | $110,000 | $0 | $191,157 | $191,157 |
| 2016 | $82,466 | $100,000 | $0 | $182,466 | $182,466 |
| 2015 | $83,776 | $100,000 | $0 | $183,776 | $183,776 |
| 2014 | $47,950 | $100,000 | $0 | $147,950 | $147,950 |
| 2013 | $49,013 | $100,000 | $0 | $149,013 | $149,013 |
| 2012 | $50,074 | $139,500 | $0 | $189,574 | $189,574 |
| 2011 | $51,137 | $155,000 | $0 | $206,137 | $206,137 |
| 2010 | $60,342 | $155,000 | $0 | $215,342 | $215,342 |
| 2009 | $63,380 | $225,000 | $0 | $288,380 | $288,380 |
| 2008 | $46,449 | $245,775 | $0 | $292,224 | $292,224 |
| 2007 | $47,605 | $245,775 | $0 | $293,380 | $293,380 |
Deed and Sales History
| 1 | 12/03/2025 | WD | Warranty Deed | KENNEDY, MATT D | WEBB, KELLY | | | $385,000.00 | 65618 | 4594199 |
| 2 | 11/13/2024 | QCD | Quit Claim Deed | KENNEDY TRUSTEE, NANCY W | KENNEDY, MATT D | | | $0.00 | 64099 | 4588018 |
| 3 | 04/01/1997 | QCD | Quit Claim Deed | KENNEDY, NANCY W | KENNEDY, NANCY W | | | $0.00 | 71216 | 97005444 |
| 4 | 12/01/1996 | WD | Warranty Deed | LARUE, MICHELE M | KENNEDY, NANCY W | | | $105,000.00 | 70083 | 97000236 |
| 5 | 11/01/1996 | ESTSEPPROP | Establish Separate Property | LARUE, MICHELE M | LARUE, MICHELE M | | | $0.00 | 70082 | 97000235 |
| 6 | 08/01/1993 | DECREE | Divorce Decree/Legal Separation | DUNNER, MICHELE M | LARUE, MICHELE M | | | $0.00 | 65536 | 0 |
| 7 | 04/01/1987 | WD | Warranty Deed | SCHULTZ, ARVILLA S | DUNNER, MICHELE M | | | $31,000.00 | 70951 | 87004874 |
| 8 | 08/01/1982 | OTHER | Other - Misc. Documents | LACKIE, PETER J | SCHULTZ, ARVILLA S | | | $0.00 | 21914 | 399354 |
| 9 | 07/01/1982 | EXECUTORD | Executor Deed | STEVENS, LILLIE C | LACKIE, PETER J | | | $22,500.00 | 21913 | 399353 |
| 10 | 01/01/1900 | OTHER | Other - Misc. Documents | Unknown | STEVENS, LILLIE C | | | $0.00 | 0 | 0 |
Payout Agreement
| No payout information available.. |