Property
Account |
| Property ID: | 283865 | Abbreviated Legal Description: | PT LOT 7:E60' OF W180'L7 N & W OF TR Y INCL 1/10 INT IN TR Y DESC 185D613 (A33903) |
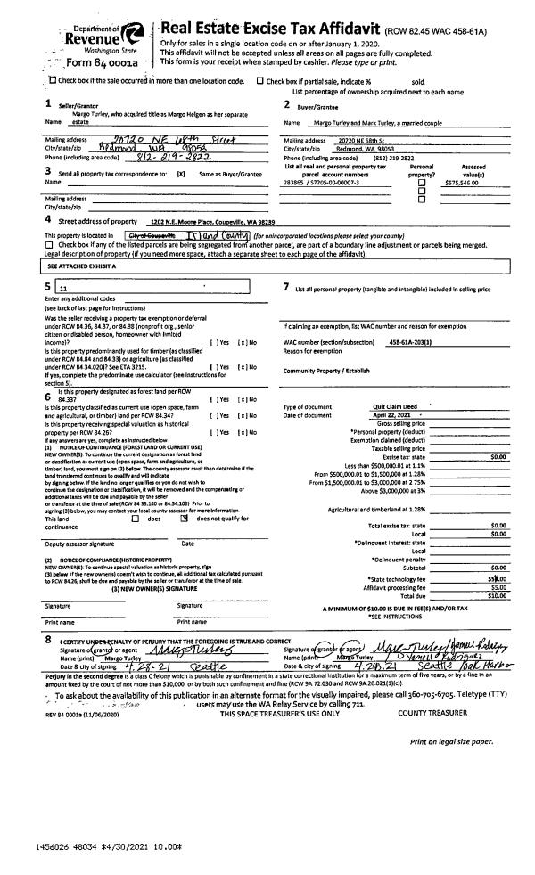
| Geographic ID: | S7205-00-00007-3 | Agent Code: | |
| Type: | Real | | |
| Tax Area: | 300 - APPRAISER-Cpvl Schl Dist, in Cpvl | Land Use Code | 11 |
| Open Space: | N | DFL | N |
| Historic Property: | N | Remodel Property: | N |
| Multi-Family Redevelopment: | N | | |
| Township: | | Section: | |
| Range: | |
Location |
| Address: | 1202 NE MOORE PLACE COUPEVILLE, WA 98239 | Mapsco: | |
| Neighborhood: | Cycle 2 | Map ID: | 180 |
| Neighborhood CD: | 2 |
Owner |
| Name: | STROHBUSH, NEIL J | Owner ID: | 299140 |
| Mailing Address: | HEATHER & ROBERT LINDSAY, MARGO & MARK TURLEY NATHAN & SARAH SPITLER, THERESA OWENS STEPHEN ROCKWOOD 20720 NE 68TH ST REDMOND, WA 98053 | % Ownership: | 100.0000000000% |
| | | Exemptions: | |
Taxes and Assessment Details
Values
| (+) Improvement Homesite Value: | + | $0 | |
| (+) Improvement Non-Homesite Value: | + | $217,592 | |
| (+) Land Homesite Value: | + | $0 | |
| (+) Land Non-Homesite Value: | + | $550,000 | |
| (+) Curr Use (HS): | + | $0 | $0 |
| (+) Curr Use (NHS): | + | $0 | $0 |
| | | -------------------------- | |
| (=) Market Value: | = | $767,592 | |
| (–) Productivity Loss: | – | $0 | |
| | | -------------------------- | |
| (=) Subtotal: | = | $767,592 | |
| (+) Senior Appraised Value: | + | $0 | |
| (+) Non-Senior Appraised Value: | + | $767,592 | |
| | | -------------------------- | |
| (=) Total Appraised Value: | = | $767,592 | |
| (–) Senior Exemption Loss: | – | $0 | |
| (–) Exemption Loss: | – | $0 | |
| | | -------------------------- | |
| (=) Taxable Value: | = | $767,592 | |
Taxing Jurisdiction
| Owner: | STROHBUSH, NEIL J | | |
| % Ownership: | 100.0000000000% | | |
| Total Value: | $767,592 | | |
| Tax Area: | 300 - APPRAISER-Cpvl Schl Dist, in Cpvl |
| CF | Conservation Futures | 0.0313996660 | $767,592 | $767,592 | $24.10 | | |
| CEM2 | Cemetery #2 | 0.0092609791 | $767,592 | $767,592 | $7.11 | | |
| COUP | City: Town of Coupeville | 0.8188663519 | $767,592 | $767,592 | $628.56 | | |
| FIRE5 | Fire & Rescue Dist #5 C Whidbey GEN | 1.1892169230 | $767,592 | $767,592 | $912.83 | | |
| FIRE5BOND | Fire & Rescue Dist #5 C Whidbey BOND | 0.1394359503 | $767,592 | $767,592 | $107.03 | | |
| HOBOND | Hospital BOND | 0.1893405597 | $767,592 | $767,592 | $145.34 | | |
| HOGEN | Hospital GEN | 0.3848777722 | $767,592 | $767,592 | $295.43 | | |
| CE | County Current Expense | 0.3674210519 | $767,592 | $767,592 | $282.03 | | |
| ISLANDEMS | Hospital GEN (EMS) | 0.4952018576 | $767,592 | $767,592 | $380.11 | | |
| LIB | Library Sno-Isle GEN | 0.3039084203 | $767,592 | $767,592 | $233.28 | | |
| LIBCAP | Library Sno-Isle BOND (Cap Fac Imp Area) | 0.0528562629 | $767,592 | $767,592 | $40.57 | | |
| POCOUP | Port of Coupeville GEN | 0.1065226063 | $767,592 | $767,592 | $81.77 | | |
| POCOUPIDD | Port of Coupeville IDD | 0.3353038577 | $767,592 | $767,592 | $257.38 | | |
| COUPSDTECH | School 204 CP (TECH) | 0.1215123397 | $767,592 | $767,592 | $93.27 | | |
| SCH204MO | School 204 Enrichment | 0.6416662518 | $767,592 | $767,592 | $492.54 | | |
| ST | State School | 1.4761226122 | $767,592 | $767,592 | $1,133.06 | | |
| ST2 | State School Part 2 | 0.7953803475 | $767,592 | $767,592 | $610.53 | | |
| | Total Tax Rate: | 7.4582938101 | | | | | |
| | | | | Taxes w/Current Exemptions: | $5,724.94 | | |
| | | | | Taxes w/o Exemptions: | $5,724.94 | | |
Improvement / Building
| Improvement #1: | RESIDENTIAL | State Code: | Y | 1498.0 sqft | Value: | $217,592 |
| Bathrooms: | 2 | Bedrooms: | 3 | | Ceiling: | DRYWALL PAINTED | Exterior Wall/Cover: | WOOD SIDING | | Floor Covering: | CARPET/VINYL 60-40 | Floor Structure: | WOOD W/SUBFLOOR | | Foundation: | CONCRETE | Heating: | BASEBOARD ELECTRIC | | Interior Finish: | DRYWALL PAINT | Plumbing Fixture Cnt: | 11 | | Roof Slope: | 5" IN 12" | Roof Structure/Cover: | CJ ASPHALT |
|
| | Type | Description | Class CD | Sub Class CD | Year Built | Area |
| | BAS | BASE/MAIN FLOOR | 3 | 0 | 1970 | 999.0 |
| | DGR | DETACHED GARAGE | 3 | 0 | 1970 | 625.0 |
| | UPS | UPPER STORY | 3 | 0 | 1970 | 499.0 |
| | BAW | BALCONY WOOD RAIL | 3 | 0 | 1970 | 68.0 |
| | OWP | OPEN WOOD PORCH W/STEPS | 3 | 0 | 1970 | 753.8 |
Sketch
| No sketches available for this property. |
Property Image
Land
| 1 | LB | LOW BANK | 0.3500 | 15246.00 | 60.00 | 0.00 | 1.00 | $550,000 | $0 |
Roll Value History
| 2026 | N/A | N/A | N/A | N/A | N/A |
| 2025 | $217,592 | $550,000 | $0 | $767,592 | $767,592 |
| 2024 | $218,741 | $525,000 | $0 | $743,741 | $743,741 |
| 2023 | $222,042 | $525,000 | $0 | $747,042 | $747,042 |
| 2022 | $204,047 | $480,000 | $0 | $684,047 | $684,047 |
| 2021 | $180,034 | $400,000 | $0 | $580,034 | $580,034 |
| 2020 | $175,546 | $400,000 | $0 | $575,546 | $575,546 |
| 2019 | $125,273 | $400,000 | $0 | $525,273 | $525,273 |
| 2018 | $101,546 | $400,000 | $0 | $501,546 | $501,546 |
| 2017 | $102,435 | $350,000 | $0 | $452,435 | $452,435 |
| 2016 | $104,214 | $350,000 | $0 | $454,214 | $454,214 |
| 2015 | $105,993 | $350,000 | $0 | $455,993 | $455,993 |
| 2014 | $107,772 | $350,000 | $0 | $457,772 | $457,772 |
| 2013 | $109,551 | $361,474 | $0 | $471,025 | $471,025 |
| 2012 | $107,772 | $361,474 | $0 | $469,246 | $469,246 |
| 2011 | $109,551 | $361,474 | $0 | $471,025 | $471,025 |
| 2010 | $121,464 | $361,474 | $0 | $482,938 | $482,938 |
| 2009 | $126,979 | $437,006 | $0 | $563,985 | $563,985 |
| 2008 | $128,843 | $437,006 | $0 | $565,849 | $565,849 |
| 2007 | $128,891 | $437,006 | $0 | $565,897 | $565,897 |
Deed and Sales History
| 1 | 04/22/2021 | QCD | Quit Claim Deed | STROHBUSCH, NEIL J | STROHBUSH, NEIL J | | | $0.00 | 48034 | 4517913 |
| 2 | 02/10/2016 | CHGOFIDENT | DNU - Change In Identity | JIMMY'S ROUND HAUL, LLC | STROHBUSCH, NEIL J | | | $0.00 | 23143 | 4394072 |
| 3 | 04/07/2014 | WD | Warranty Deed | OWENS TTEE, FLORENCE L | JIMMY'S ROUND HAUL, LLC | | | $450,000.00 | 14928 | 4357983 |
| 4 | 05/22/2008 | QCD | Quit Claim Deed | OWENS, JAMES M | OWENS TTEE, FLORENCE L | | | $0.00 | 81420 | 4230043 |
| 5 | 08/19/1998 | QCD | Quit Claim Deed | Unknown | OWENS, JAMES M | | | $0.00 | 83844 | 98020766 |
Payout Agreement
| No payout information available.. |