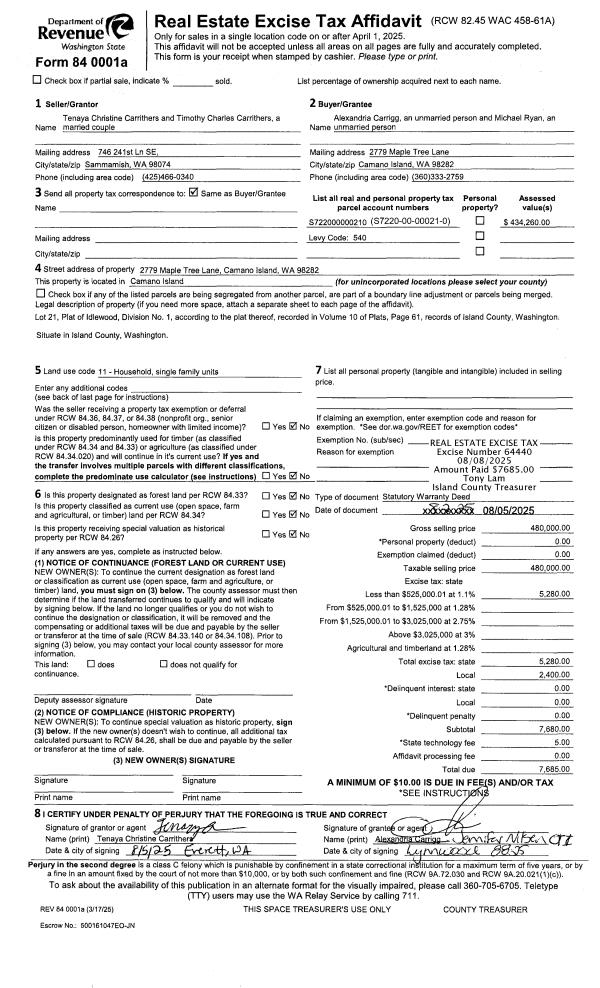
Property
Account |
| Property ID: | 284374 | Abbreviated Legal Description: | IDLEWOOD 1 LOT 21 |
| Geographic ID: | S7220-00-00021-0 | Agent Code: | |
| Type: | Real | | |
| Tax Area: | 540 - APPRAISER-Stan/Cam Schl Dist, Special Dist, improved & less than 1 acre | Land Use Code | 11 |
| Open Space: | N | DFL | N |
| Historic Property: | N | Remodel Property: | N |
| Multi-Family Redevelopment: | N | | |
| Township: | | Section: | |
| Range: | |
Location |
| Address: | 2779 MAPLE TREE LN CAMANO ISLAND, WA 98282 | Mapsco: | |
| Neighborhood: | Cycle 5 | Map ID: | 852 |
| Neighborhood CD: | 5 |
Owner |
| Name: | CARRITHERS, TENAYA CHRISTINE | Owner ID: | 305176 |
| Mailing Address: | TIMOTHY CHARLES CARRITHERS 2779 MAPLE TREE LN CAMANO ISLAND, WA 98282 | % Ownership: | 100.0000000000% |
| | | Exemptions: | |
Taxes and Assessment Details
Values
| (+) Improvement Homesite Value: | + | $0 | |
| (+) Improvement Non-Homesite Value: | + | $224,260 | |
| (+) Land Homesite Value: | + | $0 | |
| (+) Land Non-Homesite Value: | + | $210,000 | |
| (+) Curr Use (HS): | + | $0 | $0 |
| (+) Curr Use (NHS): | + | $0 | $0 |
| | | -------------------------- | |
| (=) Market Value: | = | $434,260 | |
| (–) Productivity Loss: | – | $0 | |
| | | -------------------------- | |
| (=) Subtotal: | = | $434,260 | |
| (+) Senior Appraised Value: | + | $0 | |
| (+) Non-Senior Appraised Value: | + | $434,260 | |
| | | -------------------------- | |
| (=) Total Appraised Value: | = | $434,260 | |
| (–) Senior Exemption Loss: | – | $0 | |
| (–) Exemption Loss: | – | $0 | |
| | | -------------------------- | |
| (=) Taxable Value: | = | $434,260 | |
Taxing Jurisdiction
| Owner: | CARRITHERS, TENAYA CHRISTINE | | |
| % Ownership: | 100.0000000000% | | |
| Total Value: | $434,260 | | |
| Tax Area: | 540 - APPRAISER-Stan/Cam Schl Dist, Special Dist, improved & less than 1 acre |
| CF | Conservation Futures | 0.0313996660 | $434,260 | $434,260 | $13.64 | | |
| EMS1 | Fire & Rescue Dist #1 Camano GEN (EMS) | 0.4998471806 | $434,260 | $434,260 | $217.06 | | |
| FIRE1 | Fire & Rescue Dist #1 Camano GEN | 1.2496603404 | $434,260 | $434,260 | $542.68 | | |
| FIRE1BOND | Fire & Rescue Dist #1 Camano BOND | 0.1630371212 | $434,260 | $434,260 | $70.80 | | |
| CE | County Current Expense | 0.3674210519 | $434,260 | $434,260 | $159.56 | | |
| CR | County Roads | 0.4614296361 | $434,260 | $434,260 | $200.38 | | |
| LIB | Library Sno-Isle GEN | 0.3039084203 | $434,260 | $434,260 | $131.98 | | |
| SCH205_401 | School 205-401 Enrichment | 1.3697998934 | $434,260 | $434,260 | $594.85 | | |
| SCH205BOND | School 205-401 BOND | 0.9354199323 | $434,260 | $434,260 | $406.22 | | |
| ST | State School | 1.4761226122 | $434,260 | $434,260 | $641.02 | | |
| ST2 | State School Part 2 | 0.7953803475 | $434,260 | $434,260 | $345.40 | | |
| | Total Tax Rate: | 7.6534262019 | | | | | |
| | | | | Taxes w/Current Exemptions: | $3,323.59 | | |
| | | | | Taxes w/o Exemptions: | $3,323.59 | | |
Improvement / Building
| Improvement #1: | RESIDENTIAL | State Code: | Y | 1152.0 sqft | Value: | $224,260 |
| Bathrooms: | 2 | Bedrooms: | 2 | | Ceiling: | DRYWALL PAINTED | Exterior Wall/Cover: | VINYL | | Floor Covering: | VINYL/HARDWOOD 60-40 | Floor Structure: | WOOD W/SUBFLOOR | | Foundation: | CONCRETE | Heating: | FHA GAS | | Interior Finish: | DRYWALL PAINT | Plumbing Fixture Cnt: | 9 | | Roof Slope: | 5" IN 12" | Roof Structure/Cover: | CJ ASPHALT |
|
| | Type | Description | Class CD | Sub Class CD | Year Built | Area |
| | BAS | BASE/MAIN FLOOR | 3 | 0 | 1991 | 1152.0 |
| | OP1 | OPEN PORCH SLAB | 3 | 0 | 1991 | 197.0 |
| | OP2 | OPEN PORCH W/STEPS | 3 | 0 | 1991 | 49.0 |
| | AGR | ATTACHED GARAGE | 3 | 0 | 1991 | 576.0 |
Sketch
Property Image
Land
| 1 | 15 | SQ (12001-21780) | 0.0000 | 0.00 | 0.00 | 0.00 | 1.00 | $210,000 | $0 |
Roll Value History
| 2026 | N/A | N/A | N/A | N/A | N/A |
| 2025 | $224,260 | $210,000 | $0 | $434,260 | $434,260 |
| 2024 | $227,126 | $200,000 | $0 | $427,126 | $427,126 |
| 2023 | $229,993 | $190,000 | $0 | $419,993 | $419,993 |
| 2022 | $209,655 | $180,000 | $0 | $389,655 | $389,655 |
| 2021 | $177,121 | $130,000 | $0 | $307,121 | $307,121 |
| 2020 | $172,498 | $90,000 | $0 | $262,498 | $262,498 |
| 2019 | $122,597 | $130,000 | $0 | $252,597 | $252,597 |
| 2018 | $122,995 | $120,000 | $0 | $242,995 | $242,995 |
| 2017 | $123,787 | $75,000 | $0 | $198,787 | $198,787 |
| 2016 | $125,375 | $50,000 | $0 | $175,375 | $175,375 |
| 2015 | $110,664 | $40,000 | $0 | $150,664 | $150,664 |
| 2014 | $112,078 | $40,000 | $0 | $152,078 | $152,078 |
| 2013 | $113,491 | $40,000 | $0 | $153,491 | $153,491 |
| 2012 | $114,904 | $66,400 | $0 | $181,304 | $181,304 |
| 2011 | $116,317 | $83,000 | $0 | $199,317 | $199,317 |
| 2010 | $123,209 | $83,000 | $0 | $206,209 | $206,209 |
| 2009 | $124,654 | $90,000 | $0 | $214,654 | $214,654 |
| 2008 | $126,290 | $90,000 | $0 | $216,290 | $216,290 |
| 2007 | $126,830 | $117,073 | $0 | $243,903 | $243,903 |
Deed and Sales History
| 1 | 08/05/2025 | WD | Warranty Deed | CARRITHERS, TENAYA CHRISTINE | CARRIGG, ALEXANDRIA | | | $480,000.00 | 64440 | 4589401 |
| 2 | 06/22/2022 | WD | Warranty Deed | SCOTT, MICHAEL D | CARRITHERS, TENAYA CHRISTINE | | | $435,000.00 | 53667 | 4547495 |
| 3 | 02/25/2016 | WD | Warranty Deed | HOFER, CHRISTOPHER J | SCOTT, MICHAEL D | | | $189,000.00 | 23320 | 4394940 |
| 4 | 01/22/2014 | WD | Warranty Deed | SPENCER, DANIEL D | HOFER, CHRISTOPHER J | | | $158,000.00 | 14152 | 4354588 |
| 5 | 07/27/2011 | BARGSLD | Bargain And Sale Deed | FEDERAL NATIONAL MORTGAGE ASSOCIATION | SPENCER, DANIEL D | | | $123,500.00 | 5082 | 4298738 |
| 6 | 04/21/2011 | TRUSTEED | Trustee's Deed | GERRING, WILLIAM A | FEDERAL NATIONAL MORTGAGE ASSOCIATION | | | $101,573.00 | 4218 | 4294171 |
| 7 | 05/01/1993 | WD | Warranty Deed | BRUNES, DONALD W | GERRING, WILLIAM A | | | $97,000.00 | 31913 | 93010002 |
| 8 | 03/01/1990 | WD | Warranty Deed | NOREN, C M | BRUNES, DONALD W | | | $10,000.00 | 1892 | 90006085 |
| 9 | 01/01/1900 | OTHER | Other - Misc. Documents | Unknown | NOREN, C M | | | $0.00 | 0 | 0 |
Payout Agreement
| No payout information available.. |