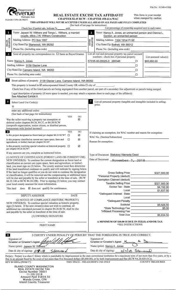
Property
Account |
| Property ID: | 285346 | Abbreviated Legal Description: | ISLAND TERR LOT 25 |
| Geographic ID: | S7235-00-00025-0 | Agent Code: | |
| Type: | Real | | |
| Tax Area: | 560 - APPRAISER-Stan/Cam Schl Dist, Special Dist, improved & less than 1 acre | Land Use Code | 11 |
| Open Space: | N | DFL | N |
| Historic Property: | N | Remodel Property: | N |
| Multi-Family Redevelopment: | N | | |
| Township: | | Section: | |
| Range: | |
Location |
| Address: | 3139 GLACIER LN CAMANO ISLAND, WA 98282 | Mapsco: | |
| Neighborhood: | 58NofTamarackS | Map ID: | 864 |
| Neighborhood CD: | 58RntamS |
Owner |
| Name: | JONES, NANCY A | Owner ID: | 287844 |
| Mailing Address: | DIANNA L GORDON 3139 GLACIER LN CAMANO ISLAND, WA 98282 | % Ownership: | 100.0000000000% |
| | | Exemptions: | |
Taxes and Assessment Details
Values
| (+) Improvement Homesite Value: | + | $0 | |
| (+) Improvement Non-Homesite Value: | + | $300,641 | |
| (+) Land Homesite Value: | + | $0 | |
| (+) Land Non-Homesite Value: | + | $230,000 | |
| (+) Curr Use (HS): | + | $0 | $0 |
| (+) Curr Use (NHS): | + | $0 | $0 |
| | | -------------------------- | |
| (=) Market Value: | = | $530,641 | |
| (–) Productivity Loss: | – | $0 | |
| | | -------------------------- | |
| (=) Subtotal: | = | $530,641 | |
| (+) Senior Appraised Value: | + | $0 | |
| (+) Non-Senior Appraised Value: | + | $530,641 | |
| | | -------------------------- | |
| (=) Total Appraised Value: | = | $530,641 | |
| (–) Senior Exemption Loss: | – | $0 | |
| (–) Exemption Loss: | – | $0 | |
| | | -------------------------- | |
| (=) Taxable Value: | = | $530,641 | |
Taxing Jurisdiction
| Owner: | JONES, NANCY A | | |
| % Ownership: | 100.0000000000% | | |
| Total Value: | $530,641 | | |
| Tax Area: | 560 - APPRAISER-Stan/Cam Schl Dist, Special Dist, improved & less than 1 acre |
| CF | Conservation Futures | 0.0313996660 | $530,641 | $530,641 | $16.66 | | |
| EMS1 | Fire & Rescue Dist #1 Camano GEN (EMS) | 0.4998471806 | $530,641 | $530,641 | $265.24 | | |
| FIRE1 | Fire & Rescue Dist #1 Camano GEN | 1.2496603404 | $530,641 | $530,641 | $663.12 | | |
| FIRE1BOND | Fire & Rescue Dist #1 Camano BOND | 0.1630371212 | $530,641 | $530,641 | $86.51 | | |
| CE | County Current Expense | 0.3674210519 | $530,641 | $530,641 | $194.97 | | |
| CR | County Roads | 0.4614296361 | $530,641 | $530,641 | $244.85 | | |
| LIB | Library Sno-Isle GEN | 0.3039084203 | $530,641 | $530,641 | $161.27 | | |
| SCH205_401 | School 205-401 Enrichment | 1.3697998934 | $530,641 | $530,641 | $726.87 | | |
| SCH205BOND | School 205-401 BOND | 0.9354199323 | $530,641 | $530,641 | $496.37 | | |
| ST | State School | 1.4761226122 | $530,641 | $530,641 | $783.29 | | |
| ST2 | State School Part 2 | 0.7953803475 | $530,641 | $530,641 | $422.06 | | |
| | Total Tax Rate: | 7.6534262019 | | | | | |
| | | | | Taxes w/Current Exemptions: | $4,061.21 | | |
| | | | | Taxes w/o Exemptions: | $4,061.21 | | |
Improvement / Building
| Improvement #1: | RESIDENTIAL | State Code: | Y | 1274.0 sqft | Value: | $300,641 |
| Bathrooms: | 2 | Bedrooms: | 3 | | Ceiling: | DRYWALL PAINTED | Cooling: | HEAT PUMP/CONV/V | | Exterior Wall/Cover: | CEMENT FIBER | Floor Covering: | VINYL TILE | | Floor Structure: | WOOD W/SUBFLOOR | Foundation: | CONCRETE | | Interior Finish: | DRYWALL PAINT | Plumbing Fixture Cnt: | 9 | | Roof Slope: | 5" IN 12" | Roof Structure/Cover: | CJ ASPHALT |
|
| | Type | Description | Class CD | Sub Class CD | Year Built | Area |
| | BAS | BASE/MAIN FLOOR | 3 | 0 | 2018 | 1274.0 |
| | AGR | ATTACHED GARAGE | 3 | 0 | 2018 | 429.0 |
| | OP1 | OPEN PORCH SLAB | 3 | 0 | 2018 | 456.0 |
| | OWC | OPEN WOOD PORCH W/STEPS/ROOF/C | 3 | 0 | 2018 | 72.0 |
Sketch
Property Image
Land
| 1 | 14 | SQ (08001-12000) | 0.0000 | 0.00 | 0.00 | 0.00 | 1.00 | $230,000 | $0 |
Roll Value History
| 2026 | N/A | N/A | N/A | N/A | N/A |
| 2025 | $300,641 | $230,000 | $0 | $530,641 | $530,641 |
| 2024 | $303,065 | $220,000 | $0 | $523,065 | $523,065 |
| 2023 | $305,489 | $220,000 | $0 | $525,489 | $525,489 |
| 2022 | $278,823 | $200,000 | $0 | $478,823 | $478,823 |
| 2021 | $241,658 | $140,000 | $0 | $381,658 | $381,658 |
| 2020 | $236,592 | $110,000 | $0 | $346,592 | $346,592 |
| 2019 | $170,589 | $140,000 | $0 | $310,589 | $310,589 |
| 2018 | $30,660 | $35,000 | $0 | $65,660 | $65,660 |
| 2017 | $0 | $30,000 | $0 | $30,000 | $30,000 |
| 2016 | $0 | $25,000 | $0 | $25,000 | $25,000 |
| 2015 | $0 | $25,000 | $0 | $25,000 | $25,000 |
| 2014 | $0 | $25,000 | $0 | $25,000 | $25,000 |
| 2013 | $0 | $13,280 | $0 | $13,280 | $13,280 |
| 2012 | $0 | $13,280 | $0 | $13,280 | $13,280 |
| 2011 | $0 | $13,280 | $0 | $13,280 | $13,280 |
| 2010 | $0 | $13,280 | $0 | $13,280 | $13,280 |
| 2009 | $0 | $14,400 | $0 | $14,400 | $14,400 |
| 2008 | $0 | $16,830 | $0 | $16,830 | $16,830 |
| 2007 | $0 | $16,000 | $0 | $16,000 | $16,000 |
Deed and Sales History
| 1 | 11/07/2018 | WD | Warranty Deed | WITHERS, JAYSON W | JONES, NANCY A | | | $327,500.00 | 36601 | 4454773 |
| 2 | 06/01/2017 | WD | Warranty Deed | AALMO, BRUCE | WITHERS, JAYSON W | | | $40,000.00 | 29551 | 4423534 |
| 3 | 04/13/2015 | WD | Warranty Deed | MEIER, ERNEST B | AALMO, BRUCE | | | $15,000.00 | 19171 | 4376641 |
| 4 | 10/01/1979 | EXECUTORD | Executor Deed | ISLAND, TERRACE D | MEIER, ERNEST B | | | $5,000.00 | 95180 | 361254 |
| 5 | 01/01/1900 | OTHER | Other - Misc. Documents | Unknown | ISLAND, TERRACE D | | | $0.00 | 0 | 0 |
Payout Agreement
| No payout information available.. |