Property
Account |
| Property ID: | 286817 | Abbreviated Legal Description: | KENWOOD AC LOT 3 |
| Geographic ID: | S7265-00-00003-0 | Agent Code: | |
| Type: | Real | | |
| Tax Area: | 510 - APPRAISER-Stan/Cam Schl Dist, improved & 1 acre or less | Land Use Code | 11 |
| Open Space: | N | DFL | N |
| Historic Property: | N | Remodel Property: | N |
| Multi-Family Redevelopment: | N | | |
| Township: | | Section: | |
| Range: | |
Location |
| Address: | 980 N WEST CAMANO DR CAMANO ISLAND, WA 98282 | Mapsco: | |
| Neighborhood: | North Camano | Map ID: | 554 |
| Neighborhood CD: | 06-C |
Owner |
| Name: | SCHAFFER, BRENT | Owner ID: | 306303 |
| Mailing Address: | SARAH SCHAFFER 7629 RUSTICO DR CARLSBAD, CA 92009 | % Ownership: | 100.0000000000% |
| | | Exemptions: | |
Taxes and Assessment Details
Values
| (+) Improvement Homesite Value: | + | $0 | |
| (+) Improvement Non-Homesite Value: | + | $239,307 | |
| (+) Land Homesite Value: | + | $0 | |
| (+) Land Non-Homesite Value: | + | $260,000 | |
| (+) Curr Use (HS): | + | $0 | $0 |
| (+) Curr Use (NHS): | + | $0 | $0 |
| | | -------------------------- | |
| (=) Market Value: | = | $499,307 | |
| (–) Productivity Loss: | – | $0 | |
| | | -------------------------- | |
| (=) Subtotal: | = | $499,307 | |
| (+) Senior Appraised Value: | + | $0 | |
| (+) Non-Senior Appraised Value: | + | $499,307 | |
| | | -------------------------- | |
| (=) Total Appraised Value: | = | $499,307 | |
| (–) Senior Exemption Loss: | – | $0 | |
| (–) Exemption Loss: | – | $0 | |
| | | -------------------------- | |
| (=) Taxable Value: | = | $499,307 | |
Taxing Jurisdiction
| Owner: | SCHAFFER, BRENT | | |
| % Ownership: | 100.0000000000% | | |
| Total Value: | $499,307 | | |
| Tax Area: | 510 - APPRAISER-Stan/Cam Schl Dist, improved & 1 acre or less |
| CF | Conservation Futures | 0.0313996660 | $499,307 | $499,307 | $15.68 | | |
| EMS1 | Fire & Rescue Dist #1 Camano GEN (EMS) | 0.4998471806 | $499,307 | $499,307 | $249.58 | | |
| FIRE1 | Fire & Rescue Dist #1 Camano GEN | 1.2496603404 | $499,307 | $499,307 | $623.96 | | |
| FIRE1BOND | Fire & Rescue Dist #1 Camano BOND | 0.1630371212 | $499,307 | $499,307 | $81.41 | | |
| CE | County Current Expense | 0.3674210519 | $499,307 | $499,307 | $183.46 | | |
| CR | County Roads | 0.4614296361 | $499,307 | $499,307 | $230.40 | | |
| LIB | Library Sno-Isle GEN | 0.3039084203 | $499,307 | $499,307 | $151.74 | | |
| SCH205_401 | School 205-401 Enrichment | 1.3697998934 | $499,307 | $499,307 | $683.95 | | |
| SCH205BOND | School 205-401 BOND | 0.9354199323 | $499,307 | $499,307 | $467.06 | | |
| ST | State School | 1.4761226122 | $499,307 | $499,307 | $737.04 | | |
| ST2 | State School Part 2 | 0.7953803475 | $499,307 | $499,307 | $397.14 | | |
| | Total Tax Rate: | 7.6534262019 | | | | | |
| | | | | Taxes w/Current Exemptions: | $3,821.42 | | |
| | | | | Taxes w/o Exemptions: | $3,821.42 | | |
Improvement / Building
| Improvement #1: | RESIDENTIAL | State Code: | Y | 1888.0 sqft | Value: | $239,307 |
| Bathrooms: | 1.75 | Bedrooms: | 2 | | Ceiling: | TONGUE & GROOVE | Exterior Wall/Cover: | WOOD SIDING | | Floor Covering: | CARPET/VINYL 80-20 | Floor Structure: | WOOD W/SUBFLOOR | | Foundation: | CONCRETE | Heating: | WALL HEAT ELECTRIC | | Interior Finish: | DRYWALL PAINT | Plumbing Fixture Cnt: | 9 | | Roof Slope: | 18" IN 12" | Roof Structure/Cover: | CJ ASPHALT |
|
| | Type | Description | Class CD | Sub Class CD | Year Built | Area |
| | BAS | BASE/MAIN FLOOR | 3 | 0 | 1968 | 832.0 |
| | DWN | DOWNSTAIRS LIVING AREA | 3 | 0 | 1968 | 768.0 |
| | OP1 | OPEN PORCH SLAB | 3 | 0 | 1968 | 288.0 |
| | AGR | ATTACHED GARAGE | 3 | 0 | 1968 | 572.0 |
| | OWP | OPEN WOOD PORCH W/STEPS | 3 | 0 | 1968 | 312.0 |
| | OWP | OPEN WOOD PORCH W/STEPS | 3 | 0 | 1968 | 117.0 |
| | LOF | LOFT | 3 | 0 | 1968 | 288.0 |
| | OWP | OPEN WOOD PORCH W/STEPS | 3 | 0 | 1968 | 162.0 |
| | UTY | STORAGE/UTILITY | 3 | 0 | 1968 | 30.0 |
Sketch
Property Image
Land
| 1 | 15 | SQ (12001-21780) | 0.4590 | 19994.04 | 0.00 | 0.00 | 1.00 | $260,000 | $0 |
Roll Value History
| 2026 | N/A | N/A | N/A | N/A | N/A |
| 2025 | $239,307 | $260,000 | $0 | $499,307 | $499,307 |
| 2024 | $242,761 | $250,000 | $0 | $492,761 | $492,761 |
| 2023 | $246,219 | $250,000 | $0 | $496,219 | $496,219 |
| 2022 | $219,823 | $260,000 | $0 | $479,823 | $479,823 |
| 2021 | $193,874 | $220,000 | $0 | $413,874 | $413,874 |
| 2020 | $189,632 | $190,000 | $0 | $379,632 | $379,632 |
| 2019 | $143,810 | $230,000 | $0 | $373,810 | $373,810 |
| 2018 | $144,302 | $200,000 | $0 | $344,302 | $344,302 |
| 2017 | $145,283 | $150,000 | $0 | $295,283 | $295,283 |
| 2016 | $87,140 | $100,000 | $0 | $187,140 | $187,140 |
| 2015 | $88,850 | $85,000 | $0 | $173,850 | $173,850 |
| 2014 | $90,558 | $85,000 | $0 | $175,558 | $175,558 |
| 2013 | $92,266 | $85,000 | $0 | $177,266 | $177,266 |
| 2012 | $93,976 | $61,752 | $0 | $155,728 | $155,728 |
| 2011 | $95,684 | $77,190 | $0 | $172,874 | $172,874 |
| 2010 | $109,893 | $77,190 | $0 | $187,083 | $187,083 |
| 2009 | $114,909 | $120,000 | $0 | $234,909 | $234,909 |
| 2008 | $116,729 | $130,000 | $0 | $246,729 | $246,729 |
| 2007 | $118,550 | $130,000 | $0 | $248,550 | $248,550 |
Deed and Sales History
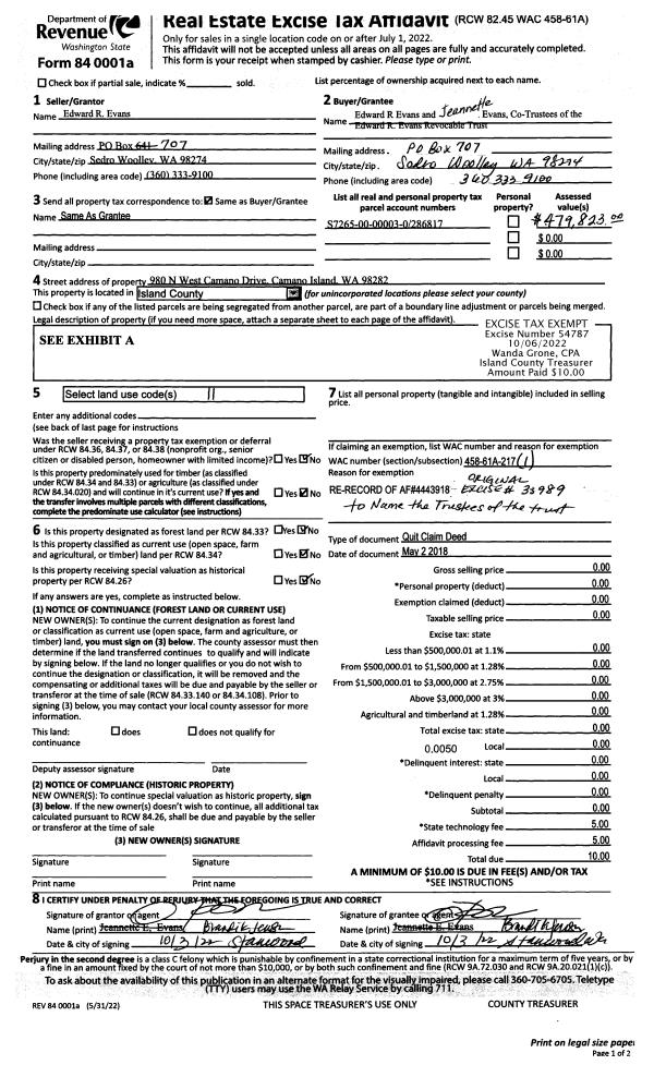
| 1 | 05/02/2018 | QCD | Quit Claim Deed | EVANS, EDWARD R | EVANS TTEE, EDWARD R | | | $0.00 | 54787 | 4552246 |
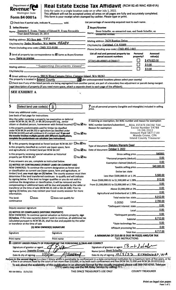
| 2 | 10/03/2022 | WD | Warranty Deed | EDWARD R EVANS REV TRUST, | SCHAFFER, BRENT | | | $540,000.00 | 54788 | 4552247 |
| 3 | 05/02/2018 | QCD | Quit Claim Deed | EVANS, EDWARD R | EDWARD R EVANS REV TRUST, | | | $0.00 | 33989 | 4443918 |
| 4 | 10/07/2016 | WD | Warranty Deed | DEPOLO, TERRY B | EVANS, EDWARD R | | | $296,500.00 | 26577 | 4409518 |
| 5 | 02/11/2011 | WD | Warranty Deed | CAMPBELL, MARY M | DEPOLO, TERRY B | | | $195,000.00 | 3654 | 4290897 |
| 6 | 11/01/1992 | QCD | Quit Claim Deed | CAMPBELL, MARY M | CAMPBELL, MARY M | | | $0.00 | 32330 | 93012037 |
| 7 | 03/01/1990 | QCD | Quit Claim Deed | CAMPBELL, EDWARD G | CAMPBELL, MARY M | | | $0.00 | 1510 | 90005162 |
Payout Agreement
| No payout information available.. |