Property
Account |
| Property ID: | 287148 | Abbreviated Legal Description: | KIMBALL HTS 2 LOT 5 BLK 3 |
| Geographic ID: | S7275-02-03005-0 | Agent Code: | |
| Type: | Real | | |
| Tax Area: | 100 - APPRAISER-OH Schl Dist, in OH | Land Use Code | 11 |
| Open Space: | N | DFL | N |
| Historic Property: | N | Remodel Property: | N |
| Multi-Family Redevelopment: | N | | |
| Township: | | Section: | |
| Range: | |
Location |
| Address: | 1057 SW 4TH AVE OAK HARBOR, WA 98277 | Mapsco: | |
| Neighborhood: | Cycle 1 | Map ID: | 92 |
| Neighborhood CD: | 1 |
Owner |
| Name: | CAMACHO, KRYSTLE | Owner ID: | 313016 |
| Mailing Address: | 1057 SW 4TH AVE OAK HARBOR, WA 98277 | % Ownership: | 100.0000000000% |
| | | Exemptions: | |
Taxes and Assessment Details
Values
| (+) Improvement Homesite Value: | + | $0 | |
| (+) Improvement Non-Homesite Value: | + | $308,358 | |
| (+) Land Homesite Value: | + | $0 | |
| (+) Land Non-Homesite Value: | + | $190,000 | |
| (+) Curr Use (HS): | + | $0 | $0 |
| (+) Curr Use (NHS): | + | $0 | $0 |
| | | -------------------------- | |
| (=) Market Value: | = | $498,358 | |
| (–) Productivity Loss: | – | $0 | |
| | | -------------------------- | |
| (=) Subtotal: | = | $498,358 | |
| (+) Senior Appraised Value: | + | $0 | |
| (+) Non-Senior Appraised Value: | + | $498,358 | |
| | | -------------------------- | |
| (=) Total Appraised Value: | = | $498,358 | |
| (–) Senior Exemption Loss: | – | $0 | |
| (–) Exemption Loss: | – | $0 | |
| | | -------------------------- | |
| (=) Taxable Value: | = | $498,358 | |
Taxing Jurisdiction
| Owner: | CAMACHO, KRYSTLE | | |
| % Ownership: | 100.0000000000% | | |
| Total Value: | $498,358 | | |
| Tax Area: | 100 - APPRAISER-OH Schl Dist, in OH |
| CF | Conservation Futures | 0.0313996660 | $498,358 | $498,358 | $15.65 | | |
| CEM1 | Cemetery #1 | 0.0040018856 | $498,358 | $498,358 | $1.99 | | |
| COH | City of Oak Harbor | 2.3090730572 | $498,358 | $498,358 | $1,150.75 | | |
| OAKBOND | City of Oak Harbor BOND | 0.1902260131 | $498,358 | $498,358 | $94.80 | | |
| HOBOND | Hospital BOND | 0.1893405597 | $498,358 | $498,358 | $94.36 | | |
| HOGEN | Hospital GEN | 0.3848777722 | $498,358 | $498,358 | $191.81 | | |
| CE | County Current Expense | 0.3674210519 | $498,358 | $498,358 | $183.11 | | |
| ISLANDEMS | Hospital GEN (EMS) | 0.4952018576 | $498,358 | $498,358 | $246.79 | | |
| LIB | Library Sno-Isle GEN | 0.3039084203 | $498,358 | $498,358 | $151.46 | | |
| NWHIDPRMT | P & R N Whidbey GEN | 0.1990272349 | $498,358 | $498,358 | $99.19 | | |
| SCH201MO | School 201 Enrichment | 2.3851112745 | $498,358 | $498,358 | $1,188.64 | | |
| ST | State School | 1.4761226122 | $498,358 | $498,358 | $735.64 | | |
| ST2 | State School Part 2 | 0.7953803475 | $498,358 | $498,358 | $396.38 | | |
| | Total Tax Rate: | 9.1310917527 | | | | | |
| | | | | Taxes w/Current Exemptions: | $4,550.57 | | |
| | | | | Taxes w/o Exemptions: | $4,550.57 | | |
Improvement / Building
| Improvement #1: | RESIDENTIAL | State Code: | Y | 2114.0 sqft | Value: | $308,358 |
| Bathrooms: | 2.5 | Bedrooms: | 4 | | Ceiling: | DRY WALL SPRAYED | Exterior Wall/Cover: | WOOD SIDING | | Floor Covering: | CARPET/VINYL 80-20 | Floor Structure: | WOOD W/SUBFLOOR | | Foundation: | CONCRETE BLOCKS | Heating: | FHA GAS | | Interior Finish: | DRYWALL PAINT | Plumbing Fixture Cnt: | 11 | | Roof Slope: | 4" IN 12" | Roof Structure/Cover: | CJ ASPHALT |
|
| | Type | Description | Class CD | Sub Class CD | Year Built | Area |
| | BAS | BASE/MAIN FLOOR | 3 | 0 | 1971 | 2114.0 |
| | OP4 | OPEN PORCH W/CEILING-ROOF | 3 | 0 | 1971 | 16.0 |
| | AGR | ATTACHED GARAGE | 3 | 0 | 1971 | 528.0 |
| | OWP | OPEN WOOD PORCH W/STEPS | 3 | 0 | 1971 | 426.0 |
Sketch
Property Image
Land
| 1 | 14 | SQ (08001-12000) | 0.0000 | 0.00 | 0.00 | 0.00 | 1.00 | $190,000 | $0 |
Roll Value History
| 2026 | N/A | N/A | N/A | N/A | N/A |
| 2025 | $308,358 | $190,000 | $0 | $498,358 | $498,358 |
| 2024 | $312,456 | $180,000 | $0 | $492,456 | $492,456 |
| 2023 | $310,458 | $190,000 | $0 | $500,458 | $500,458 |
| 2022 | $284,867 | $180,000 | $0 | $464,867 | $464,867 |
| 2021 | $250,958 | $120,000 | $0 | $370,958 | $370,958 |
| 2020 | $244,939 | $100,000 | $0 | $344,939 | $344,939 |
| 2019 | $187,430 | $150,000 | $0 | $337,430 | $337,430 |
| 2018 | $188,022 | $130,000 | $0 | $318,022 | $318,022 |
| 2017 | $175,094 | $110,000 | $0 | $285,094 | $285,094 |
| 2016 | $177,526 | $90,000 | $0 | $267,526 | $267,526 |
| 2015 | $179,959 | $70,000 | $0 | $249,959 | $249,959 |
| 2014 | $182,391 | $55,000 | $0 | $237,391 | $237,391 |
| 2013 | $184,823 | $55,000 | $0 | $239,823 | $239,823 |
| 2012 | $187,253 | $60,000 | $0 | $247,253 | $247,253 |
| 2011 | $198,281 | $50,000 | $0 | $248,281 | $248,281 |
| 2010 | $206,199 | $50,000 | $0 | $256,199 | $256,199 |
| 2009 | $215,101 | $60,000 | $0 | $275,101 | $275,101 |
| 2008 | $217,732 | $68,000 | $0 | $285,732 | $285,732 |
| 2007 | $220,363 | $68,000 | $0 | $288,363 | $288,363 |
Deed and Sales History
| 1 | 06/28/2024 | QCD | Quit Claim Deed | STEINGLESSER, DONALD J | CAMACHO, KRYSTLE | | | $0.00 | 60534 | 4574157 |
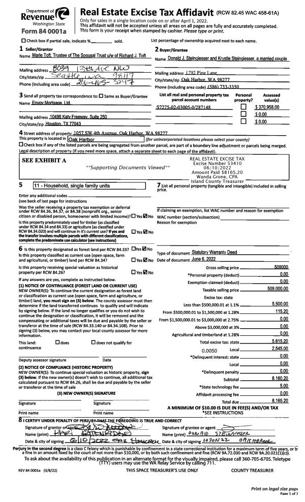
| 2 | 06/06/2022 | WD | Warranty Deed | TOFT TTEE, MARIE | STEINGLESSER, DONALD J | | | $509,000.00 | 53410 | 4546475 |
| 3 | 05/27/2022 | BARGSLD | Bargain And Sale Deed | TOFT, RICHARD J | TOFT TTEE, MARIE | | | $0.00 | 53246 | 4545808 |
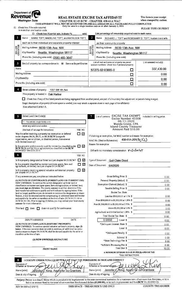
| 4 | 06/04/2020 | QCD | Quit Claim Deed | TOFT, MARIE | TOFT, RICHARD J | | | $0.00 | 43308 | 4488492 |
| 5 | 06/04/2020 | QCD | Quit Claim Deed | TOFT TTEE, MARIE | TOFT, MARIE | | | $0.00 | 43254 | 4488294 |
| 6 | 12/28/2018 | QCD | Quit Claim Deed | TOFT, RICHARD J | TOFT TTEE, MARIE | | | $0.00 | 37218 | 4457552 |
Payout Agreement
| No payout information available.. |