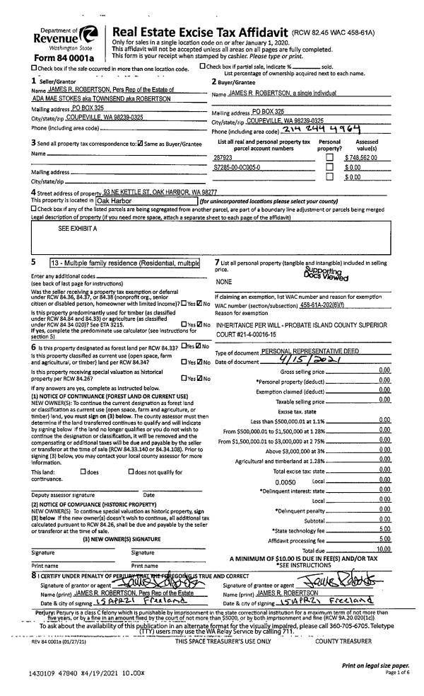
Property
Account |
| Property ID: | 287923 | Abbreviated Legal Description: | KOETJE ADD LOT 5 BLK C TGW E/2 VAC ST ADJ TO WLN AF#310539 |
| Geographic ID: | S7285-00-0C005-0 | Agent Code: | |
| Type: | Real | | |
| Tax Area: | 100 - APPRAISER-OH Schl Dist, in OH | Land Use Code | 13 |
| Open Space: | N | DFL | N |
| Historic Property: | N | Remodel Property: | N |
| Multi-Family Redevelopment: | N | | |
| Township: | | Section: | |
| Range: | |
Location |
| Address: | 93 NE KETTLE ST OAK HARBOR, WA 98277 | Mapsco: | |
| Neighborhood: | 6AcOH-nekettle st | Map ID: | 257 |
| Neighborhood CD: | 6AcOHnektl |
Owner |
| Name: | ROBERTSON, JAMES R | Owner ID: | 298946 |
| Mailing Address: | PO BOX 325 COUPEVILLE, WA 98239 | % Ownership: | 100.0000000000% |
| | | Exemptions: | |
Taxes and Assessment Details
Values
| (+) Improvement Homesite Value: | + | $0 | |
| (+) Improvement Non-Homesite Value: | + | $634,296 | |
| (+) Land Homesite Value: | + | $0 | |
| (+) Land Non-Homesite Value: | + | $780,595 | |
| (+) Curr Use (HS): | + | $0 | $0 |
| (+) Curr Use (NHS): | + | $0 | $0 |
| | | -------------------------- | |
| (=) Market Value: | = | $1,414,891 | |
| (–) Productivity Loss: | – | $0 | |
| | | -------------------------- | |
| (=) Subtotal: | = | $1,414,891 | |
| (+) Senior Appraised Value: | + | $0 | |
| (+) Non-Senior Appraised Value: | + | $1,414,891 | |
| | | -------------------------- | |
| (=) Total Appraised Value: | = | $1,414,891 | |
| (–) Senior Exemption Loss: | – | $0 | |
| (–) Exemption Loss: | – | $0 | |
| | | -------------------------- | |
| (=) Taxable Value: | = | $1,414,891 | |
Taxing Jurisdiction
| Owner: | ROBERTSON, JAMES R | | |
| % Ownership: | 100.0000000000% | | |
| Total Value: | $1,414,891 | | |
| Tax Area: | 100 - APPRAISER-OH Schl Dist, in OH |
| CF | Conservation Futures | 0.0313996660 | $1,414,891 | $1,414,891 | $44.43 | | |
| CEM1 | Cemetery #1 | 0.0040018856 | $1,414,891 | $1,414,891 | $5.66 | | |
| COH | City of Oak Harbor | 2.3090730572 | $1,414,891 | $1,414,891 | $3,267.09 | | |
| OAKBOND | City of Oak Harbor BOND | 0.1902260131 | $1,414,891 | $1,414,891 | $269.15 | | |
| HOBOND | Hospital BOND | 0.1893405597 | $1,414,891 | $1,414,891 | $267.90 | | |
| HOGEN | Hospital GEN | 0.3848777722 | $1,414,891 | $1,414,891 | $544.56 | | |
| CE | County Current Expense | 0.3674210519 | $1,414,891 | $1,414,891 | $519.86 | | |
| ISLANDEMS | Hospital GEN (EMS) | 0.4952018576 | $1,414,891 | $1,414,891 | $700.66 | | |
| LIB | Library Sno-Isle GEN | 0.3039084203 | $1,414,891 | $1,414,891 | $430.00 | | |
| NWHIDPRMT | P & R N Whidbey GEN | 0.1990272349 | $1,414,891 | $1,414,891 | $281.60 | | |
| SCH201MO | School 201 Enrichment | 2.3851112745 | $1,414,891 | $1,414,891 | $3,374.67 | | |
| ST | State School | 1.4761226122 | $1,414,891 | $1,414,891 | $2,088.55 | | |
| ST2 | State School Part 2 | 0.7953803475 | $1,414,891 | $1,414,891 | $1,125.38 | | |
| | Total Tax Rate: | 9.1310917527 | | | | | |
| | | | | Taxes w/Current Exemptions: | $12,919.51 | | |
| | | | | Taxes w/o Exemptions: | $12,919.51 | | |
Improvement / Building
| Improvement #1: | COMMERCIAL | State Code: | F1 | 1200.0 sqft | Value: | $125,915 |
| Bathrooms: | 2 | Bedrooms: | 2 | | Ceiling: | DRYWALL PAINTED | Exterior Wall/Cover: | CONCRETE BLOCK | | Floor Covering: | VINYL TILE/CARP 20-80 | Floor Structure: | SLAB ON GRADE | | Foundation: | SLAB | Heating: | BASEBOARD ELECTRIC | | Interior Finish: | DRYWALL PAINT | Plumbing Fixture Cnt: | 12 | | Roof Slope: | FLAT | Roof Structure/Cover: | CJ BUILT-UP ROCK |
|
| | Type | Description | Class CD | Sub Class CD | Year Built | Area |
| | BAS | BASE/MAIN FLOOR | 3 | 0 | 1961 | 1200.0 |
| | OCP | OPEN CARPORT | 3 | 0 | 1961 | 552.0 |
| | oPV1 | PV/ASPH 2" | 3 | 0 | 1961 | 7400.0 |
| Improvement #2: | COMMERCIAL | State Code: | F1 | 1200.0 sqft | Value: | $123,035 |
| Bathrooms: | 2 | Bedrooms: | 2 | | Ceiling: | DRYWALL PAINTED | Exterior Wall/Cover: | CONCRETE BLOCK | | Floor Covering: | VINYL TILE/CARP 20-80 | Floor Structure: | SLAB ON GRADE | | Foundation: | SLAB | Heating: | BASEBOARD ELECTRIC | | Interior Finish: | DRYWALL PAINT | Plumbing Fixture Cnt: | 12 | | Roof Slope: | FLAT | Roof Structure/Cover: | CJ BUILT-UP ROCK |
|
| | Type | Description | Class CD | Sub Class CD | Year Built | Area |
| | BAS | BASE/MAIN FLOOR | 3 | 0 | 1961 | 1200.0 |
| | OCP | OPEN CARPORT | 3 | 0 | 1961 | 552.0 |
| Improvement #3: | COMMERCIAL | State Code: | F1 | 1200.0 sqft | Value: | $133,004 |
| Bathrooms: | 2 | Bedrooms: | 2 | | Ceiling: | DRYWALL PAINTED | Exterior Wall/Cover: | CONCRETE BLOCK | | Floor Covering: | TILE CERAMIC | Floor Structure: | SLAB ON GRADE | | Foundation: | SLAB | Heating: | BASEBOARD ELECTRIC | | Interior Finish: | DRYWALL PAINT | Plumbing Fixture Cnt: | 12 | | Roof Slope: | FLAT | Roof Structure/Cover: | CJ BUILT-UP ROCK |
|
| | Type | Description | Class CD | Sub Class CD | Year Built | Area |
| | BAS | BASE/MAIN FLOOR | 3 | 0 | 1961 | 1200.0 |
| | OCP | OPEN CARPORT | 3 | 0 | 1961 | 552.0 |
| Improvement #4: | COMMERCIAL | State Code: | F1 | 1200.0 sqft | Value: | $126,171 |
| Bathrooms: | 2 | Bedrooms: | 2 | | Ceiling: | DRYWALL PAINTED | Exterior Wall/Cover: | CONCRETE BLOCK | | Floor Covering: | CERAMIC TILE/CPT 40-60 | Floor Structure: | SLAB ON GRADE | | Foundation: | SLAB | Heating: | BASEBOARD ELECTRIC | | Interior Finish: | DRYWALL PAINT | Plumbing Fixture Cnt: | 12 | | Roof Slope: | FLAT | Roof Structure/Cover: | CJ BUILT-UP ROCK |
|
| | Type | Description | Class CD | Sub Class CD | Year Built | Area |
| | BAS | BASE/MAIN FLOOR | 3 | 0 | 1961 | 1200.0 |
| | OCP | OPEN CARPORT | 3 | 0 | 1961 | 552.0 |
| Improvement #5: | COMMERCIAL | State Code: | F1 | 1200.0 sqft | Value: | $126,171 |
| Bathrooms: | 2 | Bedrooms: | 2 | | Ceiling: | DRYWALL PAINTED | Exterior Wall/Cover: | CONCRETE BLOCK | | Floor Covering: | CERAMIC TILE/CPT 40-60 | Floor Structure: | SLAB ON GRADE | | Foundation: | SLAB | Heating: | BASEBOARD ELECTRIC | | Interior Finish: | DRYWALL PAINT | Plumbing Fixture Cnt: | 12 | | Roof Slope: | FLAT | Roof Structure/Cover: | CJ BUILT-UP ROCK |
|
| | Type | Description | Class CD | Sub Class CD | Year Built | Area |
| | BAS | BASE/MAIN FLOOR | 3 | 0 | 1961 | 1200.0 |
| | OCP | OPEN CARPORT | 3 | 0 | 1961 | 552.0 |
Sketch
Property Image
Land
| 1 | 61 | MULTIPLE RESIDENCES | 1.1200 | 48787.20 | 0.00 | 0.00 | 1.00 | $780,595 | $0 |
Roll Value History
| 2026 | N/A | N/A | N/A | N/A | N/A |
| 2025 | $634,296 | $780,595 | $0 | $1,414,891 | $1,414,891 |
| 2024 | $539,984 | $780,595 | $0 | $1,320,579 | $1,320,579 |
| 2023 | $671,080 | $780,595 | $0 | $1,451,675 | $1,451,675 |
| 2022 | $471,496 | $339,768 | $0 | $811,264 | $811,264 |
| 2021 | $418,178 | $339,768 | $0 | $757,946 | $757,946 |
| 2020 | $408,794 | $339,768 | $0 | $748,562 | $748,562 |
| 2019 | $304,304 | $391,169 | $0 | $695,473 | $695,473 |
| 2018 | $305,671 | $250,000 | $0 | $555,671 | $555,671 |
| 2017 | $308,397 | $167,213 | $0 | $475,610 | $475,610 |
| 2016 | $326,191 | $167,213 | $0 | $493,404 | $493,404 |
| 2015 | $326,191 | $167,213 | $0 | $493,404 | $493,404 |
| 2014 | $326,191 | $167,213 | $0 | $493,404 | $493,404 |
| 2013 | $326,191 | $167,213 | $0 | $493,404 | $493,404 |
| 2012 | $326,191 | $167,213 | $0 | $493,404 | $493,404 |
| 2011 | $326,191 | $167,213 | $0 | $493,404 | $493,404 |
| 2010 | $361,858 | $167,213 | $0 | $529,071 | $529,071 |
| 2009 | $378,058 | $217,912 | $0 | $595,970 | $595,970 |
| 2008 | $383,785 | $217,912 | $0 | $601,697 | $601,697 |
| 2007 | $389,514 | $217,912 | $0 | $607,426 | $607,426 |
Deed and Sales History
| 1 | 04/15/2021 | PRD | Personal Representatives Deed | STOKES, ADA | ROBERTSON, JAMES R | | | $0.00 | 47840 | 4516798 |
| 2 | 10/01/1994 | REC | Real Estate Contract | HUDDLESTON, ROBERT L | STOKES, ADA & | | | $350,000.00 | 44408 | 94022726 |
| 3 | 07/01/1978 | OTHER | Other - Misc. Documents | Unknown | HUDDLESTON, ROBERT L | | | $157,588.00 | 83092 | 335442 |
Payout Agreement
| No payout information available.. |